T
Traumfaenger31.07.17 22:3311ant schrieb:
Das Problem ist hier, daß bis auf etwa 75 cm fast die ganzen etwa 45 m Außenwandlänge des OG regelrecht "neben" der Wand des EG stehen. Die statische Dimension knirscht da schon arg, und die thermische Dimension macht dann vollends den Strich durch die Rechnung.Kannst Du das bitte näher erläutern? Dass die Statik dadurch kompliziert wird, ist klar. Aber ich kenne einen Neubau mit noch größerer Außenwandlänge und einem allseits (!) zurückspringenden Staffelgeschoss, der trotzdem KFW40 ist. Worin genau siehst Du die Herausforderung?Traumfaenger schrieb:
Dass die Statik dadurch kompliziert wird,... ist: diplomatisch formuliert Traumfaenger schrieb:
einen Neubau mit noch größerer AußenwandlängeDas an sich ist kein Problem - das ist normal, wenn das Gebäude entsprechend größer ist.Traumfaenger schrieb:
und einem allseits (!) zurückspringenden Staffelgeschoss,Wenn es darunter gut gestützt werden kann, ist das prinzipiell schon machbar.Traumfaenger schrieb:
Worin genau siehst Du die Herausforderung?Die spezielle Schwierigkeit liegt hier zum einen darin, daß wie bei einer Schere die obere "Klinge" genau neben der unteren liegt; und ich nichts sehe, worauf sich diese regelrecht umlaufenden Unterzüge stützen sollten. Hinzu kommt, daß entsprechend ebenso umlaufend auch die thermische Isolierung der Deckenfelder an diesem verschobenen Anstoß an die Außenwände in diesem Grat verläuft.https://www.instagram.com/11antgmxde/
https://www.linkedin.com/company/bauen-jetzt/
R
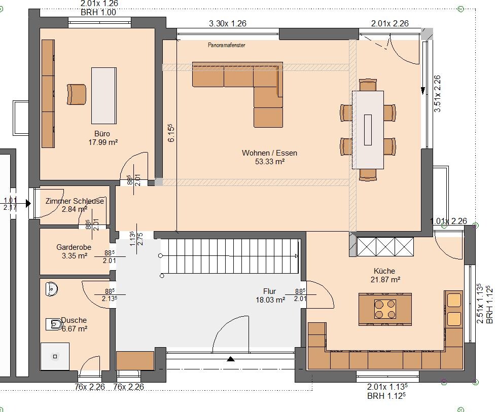
R.Hotzenplotz02.08.17 16:10Man hat jetzt mal versucht, Dinge etwas zu vereinfachen.
Dazu kam die Idee, da die Küche nun rechts liegt, die Möglichkeit eines Eckfensters zu schaffen, um die Sonne morgens einzufangen: ist hier als Terrassentür eingezeichnet, soll aber - sofern das realisiert wird - ein Eckfenster werden. Da dieser Gebäudeteil wieder etwas aufwendiger wäre von der Konstruktion her, muss man mal sehen, ob das realisiert wird.
Ansonsten finde ich das ganz gut als Idee. Sind noch viele Details zu klären:
- vielleicht die Dusche weg aus dem EG, dafür die Garderobe größer
- bodentiefes Fenster vor dem EG-WC? weiß nicht....
- Kinderbad Duschsituation wurde ja schon mal erwähnt
- Balkongitter hinten an die Fassade dran
- Überarbeitung der Fenster.... die Terrassentür-Situation gefällt mir noch nicht so gut; muss mal überlegen
Sonst finde ich das Ganze ziemlich gut. Kenne aber die neue Kalkulation noch nicht. Die Fläche ist etwas größer aber es müssten sich dagegen konstruktionstechnische Kostenvorteile ergeben. Bin gespannt.





Dazu kam die Idee, da die Küche nun rechts liegt, die Möglichkeit eines Eckfensters zu schaffen, um die Sonne morgens einzufangen: ist hier als Terrassentür eingezeichnet, soll aber - sofern das realisiert wird - ein Eckfenster werden. Da dieser Gebäudeteil wieder etwas aufwendiger wäre von der Konstruktion her, muss man mal sehen, ob das realisiert wird.
Ansonsten finde ich das ganz gut als Idee. Sind noch viele Details zu klären:
- vielleicht die Dusche weg aus dem EG, dafür die Garderobe größer
- bodentiefes Fenster vor dem EG-WC? weiß nicht....
- Kinderbad Duschsituation wurde ja schon mal erwähnt
- Balkongitter hinten an die Fassade dran
- Überarbeitung der Fenster.... die Terrassentür-Situation gefällt mir noch nicht so gut; muss mal überlegen
Sonst finde ich das Ganze ziemlich gut. Kenne aber die neue Kalkulation noch nicht. Die Fläche ist etwas größer aber es müssten sich dagegen konstruktionstechnische Kostenvorteile ergeben. Bin gespannt.
Ausnahmsweise fange ich mal mit dem Lob an: die "Ordnung" der Fensteröffnungen hat sich deutlich geklärt. Und immerhin kann man nun mal erkennen, daß jemand begonnen hat, über Statik nachzudenken.
Dennoch bin ich per Saldo nicht begeistert. Welcher Stil / Stiel / Stihl soll das sein ? - es gibt Flachdachhäuser, es gibt Walmdachhäuser - warum dann ein "Ich weiß nicht was soll es bedeuten" ?
Einerseits bist Du bemüht, das Haus nicht wie viele andere aussehen zu lassen - andererseits sehe ich auf den "3D"-Zeichnungen immer wieder, daß es diese unvermeidlichen Leoprint-Leggings trägt, die man im Porzer Putzfrauenchic wohl schon zu den Basics zählen muß.
Auch wenn ich mich wiederhole: die Dosis an "Individualität", die im Planungsmaßstab gerade ausreichend wirken läßt, wirkt in Originalgröße später versalzen.
Dies ist ein Flachdachhaus mit Walmdach und nach wie vor zu dick aufgetragener Baukörper- und Fassadengliederung.
In meiner Kindheit gab es ein Hörspiel, wo Stoffel für Wolfgang kochen will. Am Schluss gibt es eine Suppe mit Limonade, Schokolade und Nudeln - im Einzelnen alles Dinge, die Wolfgang gern mag. Trotzdem schmeckt´s nicht, obwohl mit Liebe gekocht.
https://www.instagram.com/11antgmxde/
https://www.linkedin.com/company/bauen-jetzt/
Dennoch bin ich per Saldo nicht begeistert. Welcher Stil / Stiel / Stihl soll das sein ? - es gibt Flachdachhäuser, es gibt Walmdachhäuser - warum dann ein "Ich weiß nicht was soll es bedeuten" ?
Einerseits bist Du bemüht, das Haus nicht wie viele andere aussehen zu lassen - andererseits sehe ich auf den "3D"-Zeichnungen immer wieder, daß es diese unvermeidlichen Leoprint-Leggings trägt, die man im Porzer Putzfrauenchic wohl schon zu den Basics zählen muß.
Auch wenn ich mich wiederhole: die Dosis an "Individualität", die im Planungsmaßstab gerade ausreichend wirken läßt, wirkt in Originalgröße später versalzen.
Dies ist ein Flachdachhaus mit Walmdach und nach wie vor zu dick aufgetragener Baukörper- und Fassadengliederung.
In meiner Kindheit gab es ein Hörspiel, wo Stoffel für Wolfgang kochen will. Am Schluss gibt es eine Suppe mit Limonade, Schokolade und Nudeln - im Einzelnen alles Dinge, die Wolfgang gern mag. Trotzdem schmeckt´s nicht, obwohl mit Liebe gekocht.
https://www.instagram.com/11antgmxde/
https://www.linkedin.com/company/bauen-jetzt/
R
R.Hotzenplotz02.08.17 17:38Ich habe hier auch die Flachdachoptik. Gefällt aber weniger.....
Von hinten allerdings bin ich auch bei dir @11ant, dass das Walmdach so noch nicht 100% passt. Ist aber auch der Teilverklinkerung geschuldet, die beim Walmdach nicht passt und die ggf. auch nicht zum tragen käme. Wir sind aber übereingekommen, erst mal das Gebäude fertig zu planen und dann solche Details anzugehen. Macht auch Sinn. Denn es ist theoretisch denkbar, dass das Bauamt am Ende dem Walmdach nicht zustimmt und es dann doch das Flachdach wird....
Wir sind erst mal froh, dass der Erker jetzt Geschichte ist.
Was sind denn Leoprint-Leggings?



Von hinten allerdings bin ich auch bei dir @11ant, dass das Walmdach so noch nicht 100% passt. Ist aber auch der Teilverklinkerung geschuldet, die beim Walmdach nicht passt und die ggf. auch nicht zum tragen käme. Wir sind aber übereingekommen, erst mal das Gebäude fertig zu planen und dann solche Details anzugehen. Macht auch Sinn. Denn es ist theoretisch denkbar, dass das Bauamt am Ende dem Walmdach nicht zustimmt und es dann doch das Flachdach wird....
Wir sind erst mal froh, dass der Erker jetzt Geschichte ist.
Was sind denn Leoprint-Leggings?
R.Hotzenplotz schrieb:
Was sind denn Leoprint-Leggings?Na, die "Teilverklinkerung". Die aufgespritzte Attika ist aber ebensoschön. Gezeichnet harmlos, in "echt" wuchtig.https://www.instagram.com/11antgmxde/
https://www.linkedin.com/company/bauen-jetzt/
Ähnliche Themen