Hallo zusammen,
ich habe hier vor einigen Wochen bereits unsere selbst gezeichneten Grundriss-Ideen eingestellt. Nachdem Ihr viele gute Anregungen gegeben habt, sind nun die Grobentwürfe vom Architekten da, die ich gerne erneut zur Diskussion stellen möchte.
Es geht um ein Zweifamilienhaus, eine Wohneinheit im EG (für meine Eltern, spätere Vermietung), die OGs für uns. Das Haus bekommt ein Flachdach. Die etwas unkonventionelle Aufteilung der oberen Wohnung (Gemeinschaftsräume oben, Ruheräume unten) ist von uns so gewollt.
Freue mich auf Eure Kommentare.
Danke, Jim





ich habe hier vor einigen Wochen bereits unsere selbst gezeichneten Grundriss-Ideen eingestellt. Nachdem Ihr viele gute Anregungen gegeben habt, sind nun die Grobentwürfe vom Architekten da, die ich gerne erneut zur Diskussion stellen möchte.
Es geht um ein Zweifamilienhaus, eine Wohneinheit im EG (für meine Eltern, spätere Vermietung), die OGs für uns. Das Haus bekommt ein Flachdach. Die etwas unkonventionelle Aufteilung der oberen Wohnung (Gemeinschaftsräume oben, Ruheräume unten) ist von uns so gewollt.
Freue mich auf Eure Kommentare.
Danke, Jim
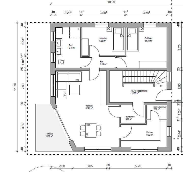
Ich muss gestehen, dass ich das gar nicht so schlecht finde. Eventuell kann man noch über den Eingang zur Speis in der oberen Wohnung durch die Küche diskutieren. Sonst ist der Weg doch recht weit.
Was ich nicht ganz so toll finde, ist der Flur in der Zwischenetage, also da, wo Ihr die Schlafräume habt. Der ist finster wie im Affen****, da müsst Ihr immer Licht anmachen.
Was ich nicht ganz so toll finde, ist der Flur in der Zwischenetage, also da, wo Ihr die Schlafräume habt. Der ist finster wie im Affen****, da müsst Ihr immer Licht anmachen.
Hallo Jaydee,
da gebe ich Dir völlig Recht - die Speisekammer muss von der Küche aus zugänglich sein, was ja auch problemlos änderbar ist.
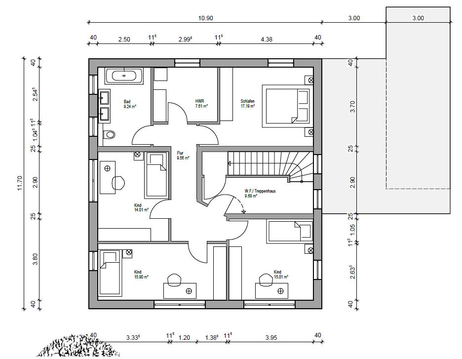
Der Gang im OG1 lässt sich hoffentlich dadurch akzeptabel aufhellen, indem die Türen vom Hauswirtschaftsraum und zur Garderobe Oberlichter bekommen. Trotzdem wir das bestimmt nicht der hellste Ort im Haus. Dazu müsste man alles etwas offener gestalten, z.B. die Wand zur Garderobe weglassen. Die ist uns aber doch recht wichtig, weil man so z.B. am Abend mit Besuch ungestört an den Ruheräumen der Kinder vorbeikommt. Tagsüber ist die Türe zwischen Gang und Garderobe vermutlich aber immer offen, dann kommt auch mehr Licht rein.
da gebe ich Dir völlig Recht - die Speisekammer muss von der Küche aus zugänglich sein, was ja auch problemlos änderbar ist.
Der Gang im OG1 lässt sich hoffentlich dadurch akzeptabel aufhellen, indem die Türen vom Hauswirtschaftsraum und zur Garderobe Oberlichter bekommen. Trotzdem wir das bestimmt nicht der hellste Ort im Haus. Dazu müsste man alles etwas offener gestalten, z.B. die Wand zur Garderobe weglassen. Die ist uns aber doch recht wichtig, weil man so z.B. am Abend mit Besuch ungestört an den Ruheräumen der Kinder vorbeikommt. Tagsüber ist die Türe zwischen Gang und Garderobe vermutlich aber immer offen, dann kommt auch mehr Licht rein.
Ja, das Zimmer ist ein rechter Schlauch. Man könnte den linken Teil der Nordwand noch 20cm nach Norden schieben. Doch dann wird der Grundriss verworrener. (Was man nicht merkt, wenn man drin ist, aber von oben sieht's halt unschön aus und kostet vielleicht minimal mehr). Ob da wirklich mal ein Kind drin wohnt, wird sich zeigen
Hm, wann benutzt Ihr denn die Sauna? Wahrscheinlich nicht dann, wenn die Sonne am höchsten steh?
Die Nordlage finde ich nicht attraktiv, sondern denke, dass sie vergrünt und vermoost in der schattigen Lage.
Außerdem kann man am Abend, wenn Ihr saunt und die Kids im Kino sind oder schlafen , mal kurz durchs Wohnzimmer zur schönen Wellness-Lounge auf die Dachterrasse... das sind doch keine Wege, die da zurückgelegt werden...
Ich habe übrigens auch nichts am Konzept auszusetzen. Natürlich wäre es nicht meine Form zu wohnen, aber man muss sich halt an die Begebenheit und Situation anpassen.
Einzig finde ich die schrägen Wände sehr gewöhnungsbedürftig... auch die Trennwand Diele im Schlafgeschoss.
Auf die Speis würde ich hier nicht verzichten (bin kein Speisliebhaber), da die Wege zum Keller lang sein können... und dort steht normalerweise der zweite Kühlschrank und alles andere nötige, was nicht gerade dekorativ ist (Staubsauger und co)
Die Nordlage finde ich nicht attraktiv, sondern denke, dass sie vergrünt und vermoost in der schattigen Lage.
Außerdem kann man am Abend, wenn Ihr saunt und die Kids im Kino sind oder schlafen , mal kurz durchs Wohnzimmer zur schönen Wellness-Lounge auf die Dachterrasse... das sind doch keine Wege, die da zurückgelegt werden...
Ich habe übrigens auch nichts am Konzept auszusetzen. Natürlich wäre es nicht meine Form zu wohnen, aber man muss sich halt an die Begebenheit und Situation anpassen.
Einzig finde ich die schrägen Wände sehr gewöhnungsbedürftig... auch die Trennwand Diele im Schlafgeschoss.
Auf die Speis würde ich hier nicht verzichten (bin kein Speisliebhaber), da die Wege zum Keller lang sein können... und dort steht normalerweise der zweite Kühlschrank und alles andere nötige, was nicht gerade dekorativ ist (Staubsauger und co)
Die Wohnung im EG find ich nicht so prickelnd. Die Küche ist sehr schmal - wenn man da zu zweit drin ist, muss man schon aneinander vorbeidrängeln - nicht gerade eine Traumküche. Im Bad passt nicht mal eine Badewanne rein - ok, eventuell bewußte Entscheidung. Die Garderobe ist mickrig - auch so eine Drängelsache. Mehr als 1 Person darf nicht Gleichzeit rein oder raus gehen. Mir persönlich wär das einfach ständig zu eng.
Ähnliche Themen