Hausbau - Ratgeber
Bauherrenhilfe
- Bauherrenhilfe vor Vertragsabschluss
-- Warum einen unabhängigen Baubetreuer?
-- Vertragsgrundlagen
-- Bausumme
-- Zahlungsplan zur Kostenkontrolle
-- Pflichten des Bauherren vor Vertragsabschluss
-- Unterlagen beim Hausbau vor Vertragsabschluss
- Bauherrenhilfe nach Vertragsabschluss
-- Bauantrag bei Behörden
-- Bau-Genehmigungsverfahren bei Baubehörden
-- Bauspezifische Versicherungen
-- Bauzeitenplan
-- Baubeginn - die Letzten Pflichten der Bauherrschaft
- Bauherrenhilfe während der Bauzeit
- Gewährleistungsansprüche
- Bauabnahme
Baufinanzierung
- Baufinanzierung - Allgemeine Fragen
- Kreditarten
- Kredit-Konditionen
- Bausparen
- Staatliche Förderungen
- Verkehrswert
- Haushaltsrechnung und Bonität
Hausbau Planung
- Haustypen
- Hausbau Vorbereitungsarbeiten
- Das Baugrundstück
- Baugrund beim Hausbau
- Baurecht
- Gebäudeschutz
- Erdarbeiten und Wasserhaltung
- Stützmauern
- Einfriedung
- Untergeschoss
- Kanalisation
- Tragende Elemente
- Nichttragende Innenwände
- Fundation / Fundament
- Deckenkonstruktionen
- Dächer
- Kaminanlagen
- Treppen Rampen Leitern
- Dachbeläge und Spengler
- Fenster
- Sonnen und Wetterschutz
- Aussenputze
- Einbauten, Küchen, Türen
- Bodenbeläge und Unterlagsböden
- Parkett
- Gips, Wand, Decke
Haustechnik und Energie
- Heiztechnik
- Lüftung und Klimatechnik
- Sanitärtechnik
- Elektrotechnik
- Erneuerbare Energie
Whirlpools / Jacuzzi
Hausbau Magazin
- Baufinanzierung trotz Krise?
- Das Blockhaus
- Moderne Dämmstoffe im Vergleich
- Erker Vor- und Nachteile
- Glasflächen beim Hausbau
- Günstig ein Haus Bauen
- Mediterraner Hausbaustil
- Mehrgenerationenhaus
- Moderne Architektur
- Gartengestaltung leicht gemacht
- Traditioneller Ziegelbau
- Villa als höchster Traum
- Im Eigenheim Ruhestand geniessen
- Altbau sanieren
- Kauf einer Holzgarage
- Immobilienmakler
- Arbeitshandschuhe für den Winter
- Zuhause verschönern
- Outdoor-Plissees
- Schlafzimmer planen
- Terrassenüberdachung
- Wohngebäudeversicherung
- Zaunarten und Eigenschaften
- Hauseingang gestalten
- Der perfekte Grundriss
- Sparsamer heizen im Altbau
- Einfamilienhaus smart finanzieren
- Planung einer PV-Anlage
- Neues Haus
- Immobilienfinanzierung
- Installation einer Photovoltaikanlage
- Asbest erkennen und entfernen
- Gartenpflege im Frühling – worauf achten
- Sauna im Fokus - Wellness zuhause
- Erfolgreich vermieten
- Die perfekte Winterbekleidung
- Das Niedrigenergiehaus
- Der April und seine Stürme
- Architektonische Vielfalt
- Ökologisch und nachhaltig bauen
- Das perfekte Schlafzimmer
- Nachhaltige Energieversorgung
- Zukunftsorientiert bauen
- Nachhaltigkeit beim Hausbau
- Tiny Houses
- Wärmepumpen als nachhaltige Heizvariante
- Maßgeschneiderten Kleiderschrank
- Der richtige Baukredit
- Ratgeber für erfolgreichen Hausbau
- Haus als Altersvorsorge
Do-it-yourself Anleitungen
- Verlegeanleitung für Bodenbeläge und Parkett
- Bodenbeläge und Parkett reinigen und pflegen
- Malerarbeiten am Haus
- Garten Tipps
- Umzug und Reinigung

ᐅ Grundriss Wohnteil Bauernhaus CH - Aufteilung Zimmer / Nutzung Fläche

Erstellt am: 24.04.24 23:24
F
faselph
F
faselph
24.04.24 23:24
Hallo zusammen
wir planen bei einem ungenutzen Bauernhaus in der Schweiz einen Ersatzneubau des Wohnteils. Das heisst wir würden den bestehenden Wohnteil abreisen (+ etwas mehr vom Stall) und dort den neuen Wohnteil erstellen. Der Rest des Bauernhauses bleibt wie es ist.
Da das bestehende Haus sehr nahe an der Strasse ist gehen wir (soweit es geht und sinnvoll ist) von der Strasse weg.
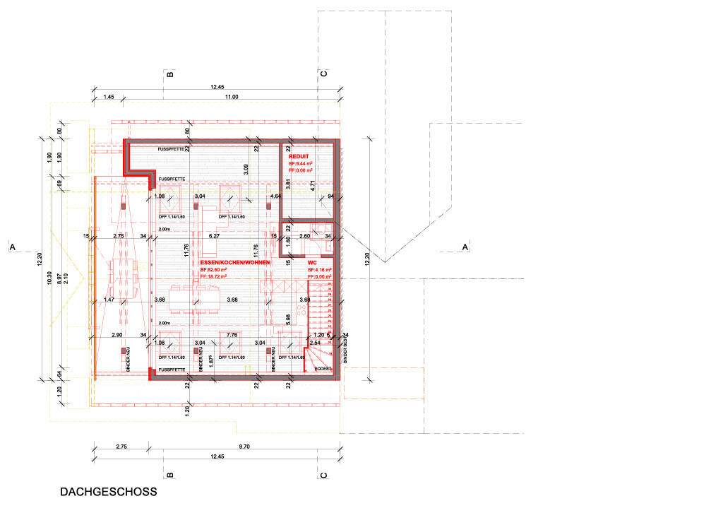
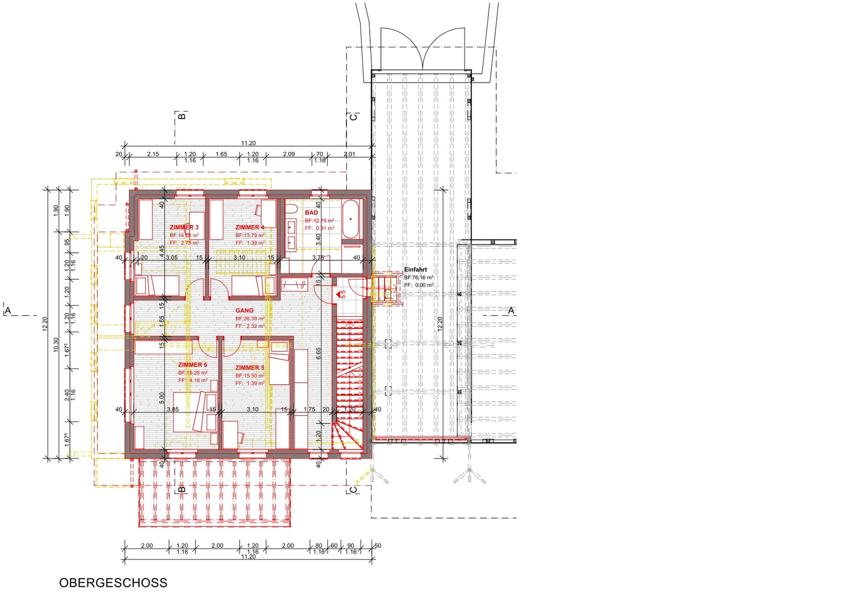
Geplant ist für unsere 5-köpfige Familie (3 Kinder, 2 Erwachsene) 4 Zimmer im OG, im EG gibt es ein Büro und ein Gästezimmer, welches ca. 90 Tage/Jahr genutzt wird (vielleicht/hoffentlich in Zukunft noch mehr). Das Dachgeschoss wird als Spielfläche genutzt.
In einem 2. Schritt kann das Dachgeschoss ausgebaut werden (Küche/Bad), so dass es durch die Abtrennung bei der Treppe:
- im EG eine ebenerdige Wohnung mit 2 Schlafzimmern gibt
- und im OG/DG eine Wohnung mit 4 Schlafzimmern.
Gezeichnet ist schon die Variante mit Ausbau Dachgeschoss, da wir dies bereits jetzt so planen und eingeben müssen.
Die Pläne sind von einem Architekten.

Für uns gelten in der Schweiz folgende Vorgaben: Der Wohnteil muss innerhalb der bestehenden Grundrisses/Volumen des gesamten Bauernhauses sein. Der Grundriss darf verkleinert, jedoch nicht vergrößert werden, es darf der Gesamte Grundriss des bestehenden/alten Bauernhauses verwendet werden (auch Stall etc.). In den Angefügten Plänen ist in gelb jeweils der bestehende Teil, der geplant ist abzureißen.
Ebenfalls ist die gesamte Wohnfläche limitiert (als Wohnfläche zählen Zimmer, Gang, Essen, Kochen, Wohnen, Waschküche/Technik, Stauraum oder Balkon zählt jedoch nicht). So wie EG, OG u. DG im Ausbau (2. Schritt) geplant sind nutzen wir diese Fläche komplett aus (größer geht somit eigentlich nicht).

Fragen:
- Erdgeschoss Raumausnutzung: Generell haben wir das Gefühl das es zu viel Gang und "ungenutzte" Fläche gibt (z. Bsp. Wand mit Schränken neben Küche, aufgrund der Statik wird aber etwas benötigt und ebenfalls muss es einen Zugang zu den Zimmern geben). Aufgrund der zu Verfügung stehenden Fläche im EG habe ich das Gefühl, dass es eigentlich noch Platz für ein 3. Zimmer im EG hätte, vielleicht täusche ich mich da auch.
- Erdgeschoss Küche: Kochinsel relativ klein. Wäre es möglich die Küche anstelle der Wand zu platzieren. Falls ja was wären die Vor-/Nachteile.
- Obergeschoss: Ebenfalls zu viel Gang / ungenutzte Fläche, wenn möglich würden wir gerne einen begehbaren Kleiderschrank im Elternzimmer integrieren
- Obergeschoss: wenn möglich hätten wir gerne eine begehbare Dusche im Bad OG

Vielen Dank vorab schon mal für Eure Anregungen und Ideen.


Bebauungsplan/Einschränkungen
Größe des Grundstücks: Ist in der Landwirtschaftzone in der Schweiz, deshalb ist Grundstücksfläche nicht relevant für Größe des Hauses, >1500m²
Hang: Leichte Neigung aber nicht Hang
Grundflächenzahl: ?? nicht bekannt / nicht relevant für den Bau in der Landwirtschaftzone in der Schweiz
Geschossflächenzahl: ?? nicht bekannt / nicht relevant für den Bau in der Landwirtschaftzone in der Schweiz
Baufenster, Baulinie und -grenze: Der Wohnteil muss innerhalb des bestehenden / alten Grundrisses des gesamten Bauernhauses sein. Der Grundriss darf verkleinert, jedoch nicht vergrößert werden, es darf der Gesamte Grundriss des bestehenden / alten Bauernhauses verwendet werden (auch Stall etc.). In den Angefügten Plänen ist in gelb jeweils der alte Teil, der geplant ist abzureissen.
Randbebauung: ???
Anzahl Stellplatz: 4
Geschossigkeit: EG, OG, DG
Dachform: Krüppelwalmdach
Stilrichtung: Bauernhaus
Ausrichtung: Keine Vorgaben,
Maximale Höhen/Begrenzungen: Wie bereits oben beschrieben darf der bestehende Grundriss nicht überschritten werden, Höhe durch bestehendes Dach vorgegeben (darf ebenfalls nicht überschritten werden)
weitere Vorgaben

Anforderungen der Bauherren
Stilrichtung, Dachform, Gebäudetyp: Krüppelwamdach, Grundsätzlich Styl des Bauernhauses beibehalten
Keller, Geschosse: Kein Keller, EG, OG, DG (DG wird vorbereitet für späteren Ausbau, im 1. Schritt jedoch "nur" Spielfläche)
Anzahl der Personen, Alter: 3 Kinder (4,4,9 Jahre) 2 Erwachsene (beide ca. 40)
Raumbedarf im EG, OG: minimum: EG.: offene Küche mit Wohnzimmer, 1 Gästezimmer und Büro, OG: 4 Zimmer (3xKinder, 1 x Eltern)
Büro: Familiennutzung oder Homeoffice? Homeoffice
Schlafgäste pro Jahr: ca. 90 Tage
offene oder geschlossene Architektur: offen
konservativ oder moderne Bauweise: modern aber doch passend zum Bauernhausstil
offene Küche, Kochinsel: offene Küche mit Kochinsel
Anzahl Essplätze: mind. 6
Kamin: Keine
Musik/Stereowand: keine vorgaben
Balkon, Dachterrasse: Offener Sitzplatz im EG
Garage, Carport: genügend Parkplatzmöglichkeiten schon vorhanden
Nutzgarten, Treibhaus: ??
weitere Wünsche/Besonderheiten/Tagesablauf, gern auch Begründungen, warum dieses oder das nicht sein soll

Hausentwurf
Von wem stammt die Planung: Architekt

Was gefällt besonders? Warum?: Möglichkeit zuerst EG und OG als Familienwohnung zu nutzen mit der Möglichkeit später das Dachgeschoss auszubauen und aus dem EG eine ebenerdige, kleinere Wohnung zu erstellen.
Grosser Essen/Wohnbereich, bietet für die Kinder auch viel Platz zum spielen. Zusätzlich kann das Dachgeschoss als Spielzimmer genutzt werden.

Was gefällt nicht? Warum?
- Erdgeschoss Raumausnutzung: Generell habe ich das Gefühl das es zu viel Gang und "ungenutzte" Fläche hat (z. Bsp. Wand mit Schränken neben Küche, ich weiss aber natürlich dass hier aufgrund der Statik etwas benötigt wird und ebenfalls ein Zugang zu den Zimmern). Aufgrund der zu Verfügung stehenden Fläche habe ich das Gefühl, dass es eigentlich noch Platz für ein 3. Zimmer im EG hätte, vielleicht täusche ich mich da auch.
- Erdgeschoss Küche: Kochinsel relativ klein
- Obergeschoss: Ebenfalls zu viel Gang / ungenutzte Fläche, wenn möglich würden wir gerne einen begehbaren Kleiderschrank integrieren
- Obergeschoss: begehbare Dusche


Wenn Ihr verzichten müsst, auf welche Details/Ausbauten
so wie gezeichnet können wir akzeptieren, wenn wir den Platz noch besser ausnutzen können für eine größere Kochinsel, möglicherweise ein weiteres Zimmer im EG, begehbarer Kleiderschrank im OG (Elternzimmer) und begehbare Dusche im Bad OG wäre toll.


Warum ist der Entwurf so geworden, wie er jetzt ist? ZB
Diskussion mit Architekten, Vorgaben gemäss Zone in der Schweiz.
Obergeschoss-Grundriss mit ZIMMER 3–6, Bad, Flur, Treppenhaus und Eingang.

Lageplan: rotes, schraffiertes Gebäude mit gelbem Rand; graue Blöcke 51/51a; Kompass.

Dachgeschoss Grundrissplan eines Hauses mit Zimmern und Wänden

Grundriss des Erdgeschosses zeigt offene Wohn-, Ess- und Küchenbereiche inkl. Eingang
H
haydee
25.04.24 09:08
Mich stört die Treppenlage. Spätere Teilung hin oder her, ein Treppenhaus trennt die Stockwerke doch massiv. Die Obere Wohnung kann später über den Eingang/Zufahrt oben erschlossen werden.
Es fehlt eine Garderobe, gerade bei 5 Köpfen kommt schon einiges zusammen.
Die Wand die dich stört im EG find ich gar nicht so schlecht, zumal ihr so etwas Stauraum habt.

Im OG ist sehr viel Flur, liegt unter anderem an der Treppenlage. Finde es jedoch großzügig und irgendwie passend zu dem Haus.

Zeichne in den Grundriss eure vorhandenen/gewünschten möbel im Maßstab ein und gehe euren Tagesablauf immer wieder durch. Ganz wichtig, dass das was euch an eurer Wohnsituation stört behoben ist.
F
faselph
25.04.24 22:33
Hallo Haydee, danke für deine Anregung.
Hättest du einen Vorschlag wie du die Treppe platzieren würdest vom EG zum OG und OG zum DG?
Ein Zugang über die Einfahrt/Zufahrt wäre wahrscheinlich möglich , aber etwas unpraktisch da es Momentan hinter dem Haus keine Parkplätze hat, nur Grünfläche. Aber man könnte um das Haus gehen, oder dann halt dort hinter dem Haus entsprechend Parkplätze erstellen, wenn man die Teilung macht.
Was denkst du zu der Idee anstelle der Wand im EG dort die Küche zu machen, dies würde wahrscheinlich auch eine größere Kochinsel ermöglichen?
Das mit dem Tagesablauf müssen wir mal machen, allerdings sind wir Momentan in einer 1-geschossigen 4.5 Zimmer-Wohnung, das ist von den Abläufen irgendwie schon ganz anders (mit 5 Schritten ist man vom Wohnbereich in jedem Zimmer).
H
haydee
26.04.24 09:39
Natürlich ist es anderes in einer zu kleinen Wohnsituation. Hatten wir auch. Aber mich hat zum Beispiel gestört, dass wir die Jacken an die Wohnungstüre hängen mußten. Im Winter ging die Türe nicht mehr anständig auf. Ihr habt sicherlich auch so Punkte die ihr unbedingt anders haben wollt, genauso gibt es Punkte die ihr eigentlich nicht anderes haben wollt. Dann schaut man sich auch bei anderen um. Beim Kumpel stört das enge Gäste-WC (Habt ihr in eurer Planung nicht) bei den Eltern das zugestellte Bad, weil kein Platz für einen Schrank ist, der Esstisch bei Schwiegereltern hat die optimale Größe usw.
Natürlich kann man nicht alles haben. Wir hatten ein kleines Bad total nervig, jedoch sind die kurzen Wege auch nicht schlecht. So eine Hand am Wickeltisch und mit der anderen am Waschbecken. Groß und kurze Wege passt nicht.

Wir hatten bei meinen Eltern ein abgeschlossenes Treppenhaus. Ich mochte es nicht. Ist die Treppe offen, hast du ein Ohr im Obergeschoss und weißt das um 22 Uhr noch jemand rumgeistert oder es kommt mal der unfeine Brüller "Beeil dich mal". Die Wanderdünen am Morgen müssen irgendwie beschleunigt werden. Da fehlt die Zeit und Geduld jedes Mal nach oben zu laufen und höflich zu fragen wo den das Problem liegt, dass nach 20 Min noch nichtmal die Socken angezogen sind.

Braucht ihr die Wand für die Statik oder ist die nur einfach da? Bei der Größe muß eine Wand, Unterzug oder Säule her. Hatte man zumindest uns damals gesagt
F
faselph
01.05.24 22:30
Hallo,

sorry für die späte Antwort, wir haben das mit der Küche jetzt mal mit dem Architekten angeschaut und er hat die Küche mal in der Mitte mit einer grossen Kochinsel und zwei Stützen für die die Statik eingezeichnet. Dadurch wird der Platz aus meiner Sicht schon viel besser ausgenutzt, dafür gehen aber alle Wege irgendwie durch die Küche... wir sind uns da noch nicht wirklich schlüssig (als Vergleich beide Varianten nochmals als Beilage).
Was meinst du/Ihr, vielleicht hat jemand einen ähnliche Platzierung der Küche so zentral und kann über seine Erfahrungen berichten?

Dass mit dem Treppenhaus habe ich vielleicht zu wenig gut erklärt, am Anfang wäre die Treppe offen und Teil des Eingangsbereiches, erst wenn man später eine Trennung der Wohnungen EG und OG/DG macht, würde durch erstellen einer Mauer inkl. Tür im EG und OG ein abgeschlossenes Treppenhaus entstehen. In der angefügten Zeichnung "Erdgeschoss-Variante Küche Mitte" ist das jetzt auch so (Treppe teil des Eingangsbereiches) eingezeichnet, damit man das mal besser sieht.

Das mit den Dingen die uns stören bzw. gefallen, haben wir sonst eigentlich schon versucht zu berücksichtigen, einzig die im Eingangspost noch erwähnten Punkte des begehbaren Kleiderschrank im Elternzimmer, eine begehbare Dusche im Bad OG und ein Zimmer mehr im EG als 2. Büro wären noch toll, aber das sind alles mehr "nett zu haben" als das es uns jetzt stören würde.
Grundrissplan eines Hauses mit Wohnbereich, Küche und Essbereich sowie Zimmern

Architekturplan des Erdgeschosses eines Hauses mit Küche, Essen-Wohnen-Bereich, Bad und Waschküche.
K
kbt09
01.05.24 23:47
Ich finde, die Planung leidet immer noch unter den Punkten, die @haydee bereits in Beitrag 2 geschrieben hat.

Ich würde den Gedanken an spätere Teilung zunächst nach hinten schieben. Wenn dann geteilt wird, dann eine Außentreppe fürs OG anbauen.

Und jetzt eher sehr zentral eine Treppe mitten im Haus planen .. fürs EG quasi als Trennung Wohnen/Essen/Kochen zu eher privaten Räumen wie Vollbad/Gästezimmer.
küchezimmerntreppenlagekochinselgrundrissdachgeschosswohnungerdgeschossobergeschossstatik