Hallo zusammen,
unsere Planungen sind mittlerweile schon etwas konkreter geworden und es liegt uns der erste Entwurf unseres Bauunternehmers vor. Der Entwurf basiert auf unseren Zeichnungen die wir zusammen mit dem Bauunternehmer noch verfeinert haben.
Grundstück
945m²
leichte Hanglage bei der Auffahrt, Rest eben
Nachbargarage/Haus im Westen und Süden
Bebauungsplan
Kniestock: 75cm
Dachneigung: 42°
Geschosse: 1+DG
Satteldach
Anforderungen/Wünsche unsererseits
Anzahl Personen: 4 (wir + 2 geplante Kinder)
Keller
Garage mit 2 Stellplätzen
Zentrale Kontrollierte-Wohnraumlüftung
Heizung mit Fernwärme (Biogas)
EG
Büro im EG
WC mit Dusche im EG
Garderobe
offener Wohn-/Essbereich
Küche mit Kochinsel und Speis
Platz um auch mal 10 Personen am esstisch zu platzieren
Kamin im Wohn-/Essbereich
Abtrennung Wohn-/Essbereich möglich
Terrasse
DG
2 Kinderzimmer
Elternschlafzimmer mit Ankleide
Bad mit begehbarer, offener Dusche
Übergang zu Garagenraum (später evt. ausbaubar)
Wir stellen uns gerade bei den Themen
- ist das kleinere Kinderzimmer groß genug
- wie groß sollte eine Speis sein
noch die Frage ob die Planung so funktioniert, da uns hier die Erfahrung fehlt. Vielleicht könnt ihr uns mit eurer Erfahrung weiterhelfen bzw. fallen vielleicht noch andere Punkte auf die eurer Meinung nach fehlen/unpassend sind.
Wir danken schon mal für jede Hilfe! 🙂
unsere Planungen sind mittlerweile schon etwas konkreter geworden und es liegt uns der erste Entwurf unseres Bauunternehmers vor. Der Entwurf basiert auf unseren Zeichnungen die wir zusammen mit dem Bauunternehmer noch verfeinert haben.
Grundstück
945m²
leichte Hanglage bei der Auffahrt, Rest eben
Nachbargarage/Haus im Westen und Süden
Bebauungsplan
Kniestock: 75cm
Dachneigung: 42°
Geschosse: 1+DG
Satteldach
Anforderungen/Wünsche unsererseits
Anzahl Personen: 4 (wir + 2 geplante Kinder)
Keller
Garage mit 2 Stellplätzen
Zentrale Kontrollierte-Wohnraumlüftung
Heizung mit Fernwärme (Biogas)
EG
Büro im EG
WC mit Dusche im EG
Garderobe
offener Wohn-/Essbereich
Küche mit Kochinsel und Speis
Platz um auch mal 10 Personen am esstisch zu platzieren
Kamin im Wohn-/Essbereich
Abtrennung Wohn-/Essbereich möglich
Terrasse
DG
2 Kinderzimmer
Elternschlafzimmer mit Ankleide
Bad mit begehbarer, offener Dusche
Übergang zu Garagenraum (später evt. ausbaubar)
Wir stellen uns gerade bei den Themen
- ist das kleinere Kinderzimmer groß genug
- wie groß sollte eine Speis sein
noch die Frage ob die Planung so funktioniert, da uns hier die Erfahrung fehlt. Vielleicht könnt ihr uns mit eurer Erfahrung weiterhelfen bzw. fallen vielleicht noch andere Punkte auf die eurer Meinung nach fehlen/unpassend sind.
Wir danken schon mal für jede Hilfe! 🙂
Schon wesentlich besser 😉 .. könnte aber mit WC und Stauraumschränken im DG wg. dem Kniestock eng werden.
@boysetsfire ... ist denn Süden genau planunten? Und, wäre ein Lageplan mal möglich, damit man sich das Haus auf dem Grundstück vorstellen kann? Übrigens, dein Hauswirtschaftsraum/Büro im EG das ist nicht nur etwas eng für die Nutzung als Schlafzimmer, das geht gar nicht für die Nutzung als Schlafzimmer. Wollt ihr auch eine Außentreppe in den Keller haben? Wäre ja durchaus sinnvoll - oder?
@boysetsfire ... ist denn Süden genau planunten? Und, wäre ein Lageplan mal möglich, damit man sich das Haus auf dem Grundstück vorstellen kann? Übrigens, dein Hauswirtschaftsraum/Büro im EG das ist nicht nur etwas eng für die Nutzung als Schlafzimmer, das geht gar nicht für die Nutzung als Schlafzimmer. Wollt ihr auch eine Außentreppe in den Keller haben? Wäre ja durchaus sinnvoll - oder?
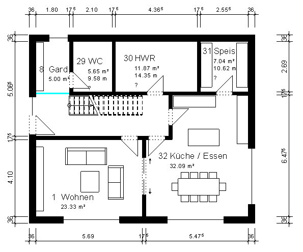
Sehe grad, dass da was schief gelaufen ist 😉
Hier noch mal das EG:

Mit dem Kniestock hast du natürlich recht - hier müsste man dann mal konkret mit Schnittzeichnungen Planen. Gute wäre es ggf. dann Abstellraum und Ankleide zu tauschen (also Bett und Abstellraum unter der Schräge, dafür Ankleide mit voller Raumhöhe).
Hier noch mal das EG:
Mit dem Kniestock hast du natürlich recht - hier müsste man dann mal konkret mit Schnittzeichnungen Planen. Gute wäre es ggf. dann Abstellraum und Ankleide zu tauschen (also Bett und Abstellraum unter der Schräge, dafür Ankleide mit voller Raumhöhe).
boysetsfire schrieb:
Übergang zu Garagenraum (später evt. ausbaubar)Warum wollt ihr das überhaupt? Durch die Dachform ergibt sich doch auch beim Haupthaus noch ein Spitzboden.B
boysetsfire27.07.15 18:28BeHaElJa schrieb:
So ich habe mal etwas gemalt - etwa eure Außenmaße. Fenster hab ich nur ein paar gesetzt ;-)
Vielleicht wäre das ein Denkanstoß.
Viele GrüßeBin gerade dabei deinen Vorschlag mit unseren Maßen umzusetzen und frage mich gerade warum ich's mir so schwer gemacht hab. ;-)
Der scheint ganz gut zu funktionieren. Wir waren anfangs nur recht von einer Podesttreppe überzeugt, die gerade hat aber auch was.
Ähnliche Themen