Hausbau - Ratgeber
Bauherrenhilfe
- Bauherrenhilfe vor Vertragsabschluss
-- Warum einen unabhängigen Baubetreuer?
-- Vertragsgrundlagen
-- Bausumme
-- Zahlungsplan zur Kostenkontrolle
-- Pflichten des Bauherren vor Vertragsabschluss
-- Unterlagen beim Hausbau vor Vertragsabschluss
- Bauherrenhilfe nach Vertragsabschluss
-- Bauantrag bei Behörden
-- Bau-Genehmigungsverfahren bei Baubehörden
-- Bauspezifische Versicherungen
-- Bauzeitenplan
-- Baubeginn - die Letzten Pflichten der Bauherrschaft
- Bauherrenhilfe während der Bauzeit
- Gewährleistungsansprüche
- Bauabnahme
Baufinanzierung
- Baufinanzierung - Allgemeine Fragen
- Kreditarten
- Kredit-Konditionen
- Bausparen
- Staatliche Förderungen
- Verkehrswert
- Haushaltsrechnung und Bonität
Hausbau Planung
- Haustypen
- Hausbau Vorbereitungsarbeiten
- Das Baugrundstück
- Baugrund beim Hausbau
- Baurecht
- Gebäudeschutz
- Erdarbeiten und Wasserhaltung
- Stützmauern
- Einfriedung
- Untergeschoss
- Kanalisation
- Tragende Elemente
- Nichttragende Innenwände
- Fundation / Fundament
- Deckenkonstruktionen
- Dächer
- Kaminanlagen
- Treppen Rampen Leitern
- Dachbeläge und Spengler
- Fenster
- Sonnen und Wetterschutz
- Aussenputze
- Einbauten, Küchen, Türen
- Bodenbeläge und Unterlagsböden
- Parkett
- Gips, Wand, Decke
Haustechnik und Energie
- Heiztechnik
- Lüftung und Klimatechnik
- Sanitärtechnik
- Elektrotechnik
- Erneuerbare Energie
Whirlpools / Jacuzzi
Hausbau Magazin
- Baufinanzierung trotz Krise?
- Das Blockhaus
- Moderne Dämmstoffe im Vergleich
- Erker Vor- und Nachteile
- Glasflächen beim Hausbau
- Günstig ein Haus Bauen
- Mediterraner Hausbaustil
- Mehrgenerationenhaus
- Moderne Architektur
- Gartengestaltung leicht gemacht
- Traditioneller Ziegelbau
- Villa als höchster Traum
- Im Eigenheim Ruhestand geniessen
- Altbau sanieren
- Kauf einer Holzgarage
- Immobilienmakler
- Arbeitshandschuhe für den Winter
- Zuhause verschönern
- Outdoor-Plissees
- Schlafzimmer planen
- Terrassenüberdachung
- Wohngebäudeversicherung
- Zaunarten und Eigenschaften
- Hauseingang gestalten
- Der perfekte Grundriss
- Sparsamer heizen im Altbau
- Einfamilienhaus smart finanzieren
- Planung einer PV-Anlage
- Neues Haus
- Immobilienfinanzierung
- Installation einer Photovoltaikanlage
- Asbest erkennen und entfernen
- Gartenpflege im Frühling – worauf achten
- Sauna im Fokus - Wellness zuhause
- Erfolgreich vermieten
- Die perfekte Winterbekleidung
- Das Niedrigenergiehaus
- Der April und seine Stürme
- Architektonische Vielfalt
- Ökologisch und nachhaltig bauen
- Das perfekte Schlafzimmer
- Nachhaltige Energieversorgung
- Zukunftsorientiert bauen
- Nachhaltigkeit beim Hausbau
- Tiny Houses
- Wärmepumpen als nachhaltige Heizvariante
- Maßgeschneiderten Kleiderschrank
- Der richtige Baukredit
- Ratgeber für erfolgreichen Hausbau
- Haus als Altersvorsorge
Do-it-yourself Anleitungen
- Verlegeanleitung für Bodenbeläge und Parkett
- Bodenbeläge und Parkett reinigen und pflegen
- Malerarbeiten am Haus
- Garten Tipps
- Umzug und Reinigung

ᐅ Grundriss Stadtvilla 160qm - Bitte um Tipps!

Erstellt am: 28.01.19 09:23
B
Bauherrin92
B
Bauherrin92
29.03.19 20:14
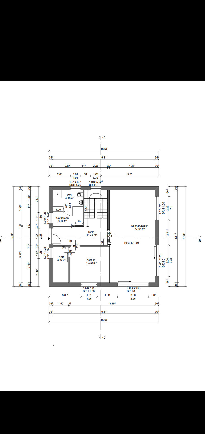
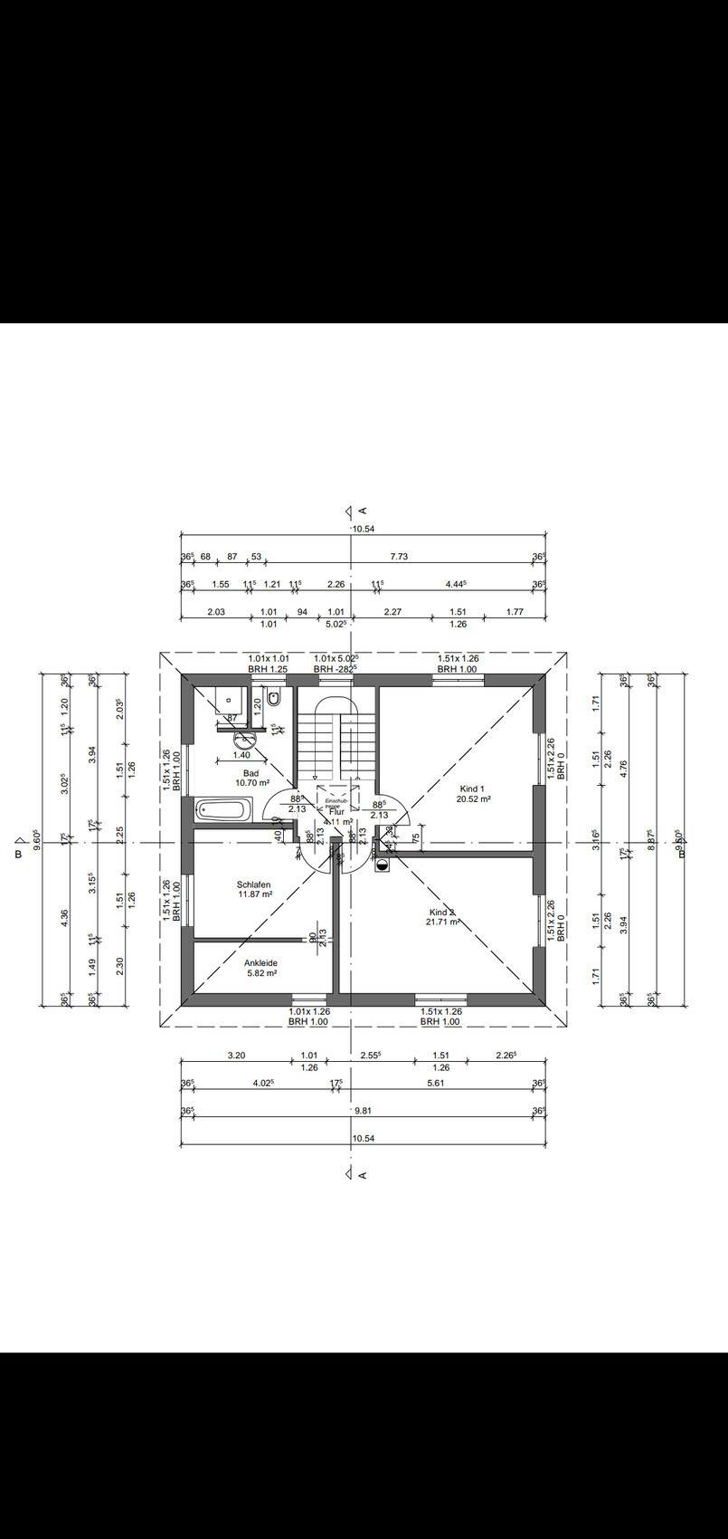
So die Pläne sind da

Grundriss eines Hauses mit Wohnzimmer, Essbereich, Küche, Diele, WC und Garderobe.


Grundriss eines Hauses: Treppe in der Mitte, Bad, Schlafen, Ankleide, zwei Kinderzimmer.
Y
ypg
29.03.19 20:58
Da fehlen mir echt die Worte.., 41 Seiten für nichts
Gibt es bei Euch irgendwie Kommunikationsprobleme? Werden denn eventuelle Knotenpunkte, also Problemecken überhaupt nicht kommuniziert von Euch?
11ant29.03.19 23:04
ypg schrieb:
41 Seiten für nichts
Der Erste, der den Plan entscheidend verändern wird, wird der Statiker sein
https://www.instagram.com/11antgmxde/
https://www.linkedin.com/company/bauen-jetzt/
Y
Yosan
29.03.19 23:21
Hab nicht alle Seiten gelesen aber bei den Plänen von heute hab ich mich im OG sofort gefragt , warum man nicht Schlafen und Ankleide tauscht...also, dass man durch die Ankleide in den Schlafbereich kommt...dann wäre die Ankleide dichter am Bad und man müsste nicht noch mal am Bett vorbei. Klar die Fenster wären dann nicht mehr so umsetzbar wie jetzt aber mir persönlich wäre es lieber, außen weniger Symmetrie und dafür innen sinnvollere Wege zu haben
kaho67429.03.19 23:30
Ein wenig ist ja schon passiert. Den Rest möchte die Familie ja so. Statische Probleme würde ich nicht vermuten - ist doch ne fette Wand in der Mitte.

Die Position der Küchentür gehört m.E. noch weiter nach planrechts, sonst läuft man später gegen die Küchenmöbel.
Schlafzimmer und Küche dringend mal möblieren. Nachtschränke neben dem Bett seh ich noch nicht - zumindest nicht beidseitig.

Fenster der Frontansicht würde ich versuchen noch mehr auszumitteln.
kbt0929.03.19 23:51
Ankleide und Schlafen muss getauscht werden, wobei egal wie .. viel mehr als knapp 3 m Schrank werden wohl nicht gehen. Sonst evtl. noch etwas Kommode.

Und insgesamt würde ich den Plan gerne mal mit der geplanten Möblierung sehen. Da werden sich dann noch einige wunde Ecken auftun.
ankleidebettfenster