
kaho674
4m? Da hab ich letztens was von Schwörerhaus gesehen. Die haben so einen Art Container-Programm: Flying spaces. Die sind um die 4m breit - dort könnte man sich inspirieren lassen. (Google ist Dein Freund)In den ersten Skizzenhätten wir im Nordteil des Hauses wohl schlimmstenfalls eine Breite von 4 Metern. Unsere Küche ist an einer Seite 3,20 Meter breit und da haben wir pragmatischerweise die Küche geplant.
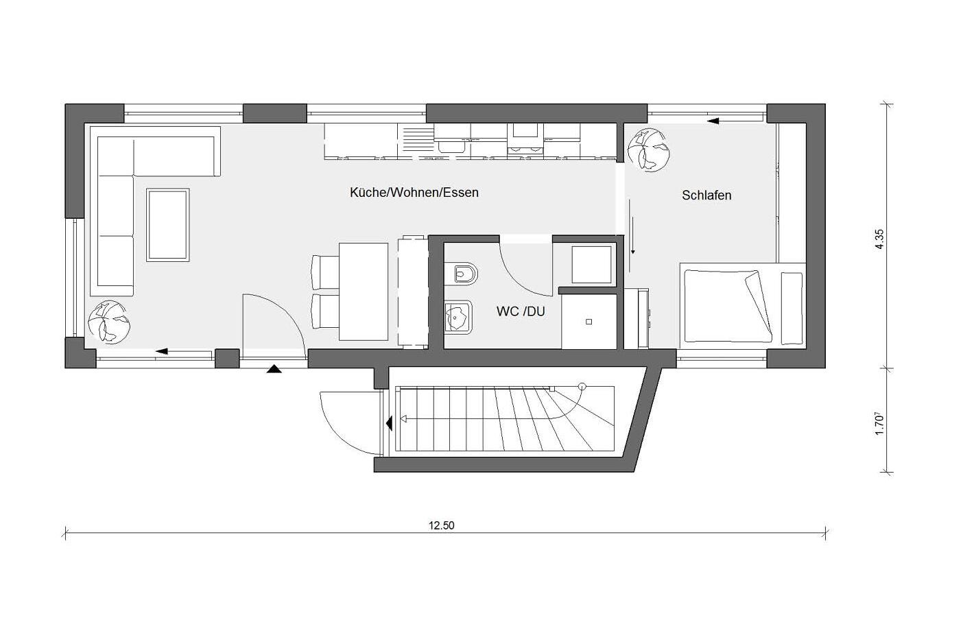
Mal ein Beispiel, wobei die Treppe vielleicht als untergeordnetes Bauteil auf die Grenze dürfte: