Hausbau - Ratgeber
Bauherrenhilfe
- Bauherrenhilfe vor Vertragsabschluss
-- Warum einen unabhängigen Baubetreuer?
-- Vertragsgrundlagen
-- Bausumme
-- Zahlungsplan zur Kostenkontrolle
-- Pflichten des Bauherren vor Vertragsabschluss
-- Unterlagen beim Hausbau vor Vertragsabschluss
- Bauherrenhilfe nach Vertragsabschluss
-- Bauantrag bei Behörden
-- Bau-Genehmigungsverfahren bei Baubehörden
-- Bauspezifische Versicherungen
-- Bauzeitenplan
-- Baubeginn - die Letzten Pflichten der Bauherrschaft
- Bauherrenhilfe während der Bauzeit
- Gewährleistungsansprüche
- Bauabnahme
Baufinanzierung
- Baufinanzierung - Allgemeine Fragen
- Kreditarten
- Kredit-Konditionen
- Bausparen
- Staatliche Förderungen
- Verkehrswert
- Haushaltsrechnung und Bonität
Hausbau Planung
- Haustypen
- Hausbau Vorbereitungsarbeiten
- Das Baugrundstück
- Baugrund beim Hausbau
- Baurecht
- Gebäudeschutz
- Erdarbeiten und Wasserhaltung
- Stützmauern
- Einfriedung
- Untergeschoss
- Kanalisation
- Tragende Elemente
- Nichttragende Innenwände
- Fundation / Fundament
- Deckenkonstruktionen
- Dächer
- Kaminanlagen
- Treppen Rampen Leitern
- Dachbeläge und Spengler
- Fenster
- Sonnen und Wetterschutz
- Aussenputze
- Einbauten, Küchen, Türen
- Bodenbeläge und Unterlagsböden
- Parkett
- Gips, Wand, Decke
Haustechnik und Energie
- Heiztechnik
- Lüftung und Klimatechnik
- Sanitärtechnik
- Elektrotechnik
- Erneuerbare Energie
Whirlpools / Jacuzzi
Hausbau Magazin
- Baufinanzierung trotz Krise?
- Das Blockhaus
- Moderne Dämmstoffe im Vergleich
- Erker Vor- und Nachteile
- Glasflächen beim Hausbau
- Günstig ein Haus Bauen
- Mediterraner Hausbaustil
- Mehrgenerationenhaus
- Moderne Architektur
- Gartengestaltung leicht gemacht
- Traditioneller Ziegelbau
- Villa als höchster Traum
- Im Eigenheim Ruhestand geniessen
- Altbau sanieren
- Kauf einer Holzgarage
- Immobilienmakler
- Arbeitshandschuhe für den Winter
- Zuhause verschönern
- Outdoor-Plissees
- Schlafzimmer planen
- Terrassenüberdachung
- Wohngebäudeversicherung
- Zaunarten und Eigenschaften
- Hauseingang gestalten
- Der perfekte Grundriss
- Sparsamer heizen im Altbau
- Einfamilienhaus smart finanzieren
- Planung einer PV-Anlage
- Neues Haus
- Immobilienfinanzierung
- Installation einer Photovoltaikanlage
- Asbest erkennen und entfernen
- Gartenpflege im Frühling – worauf achten
- Sauna im Fokus - Wellness zuhause
- Erfolgreich vermieten
- Die perfekte Winterbekleidung
- Das Niedrigenergiehaus
- Der April und seine Stürme
- Architektonische Vielfalt
- Ökologisch und nachhaltig bauen
- Das perfekte Schlafzimmer
- Nachhaltige Energieversorgung
- Zukunftsorientiert bauen
- Nachhaltigkeit beim Hausbau
- Tiny Houses
- Wärmepumpen als nachhaltige Heizvariante
- Maßgeschneiderten Kleiderschrank
- Der richtige Baukredit
- Ratgeber für erfolgreichen Hausbau
- Haus als Altersvorsorge
Do-it-yourself Anleitungen
- Verlegeanleitung für Bodenbeläge und Parkett
- Bodenbeläge und Parkett reinigen und pflegen
- Malerarbeiten am Haus
- Garten Tipps
- Umzug und Reinigung

ᐅ Grundriss Penthouse Wohnung anders planen

Erstellt am: 02.03.22 22:47
M
mayor333
M
mayor333
03.03.22 10:20
Hallo,

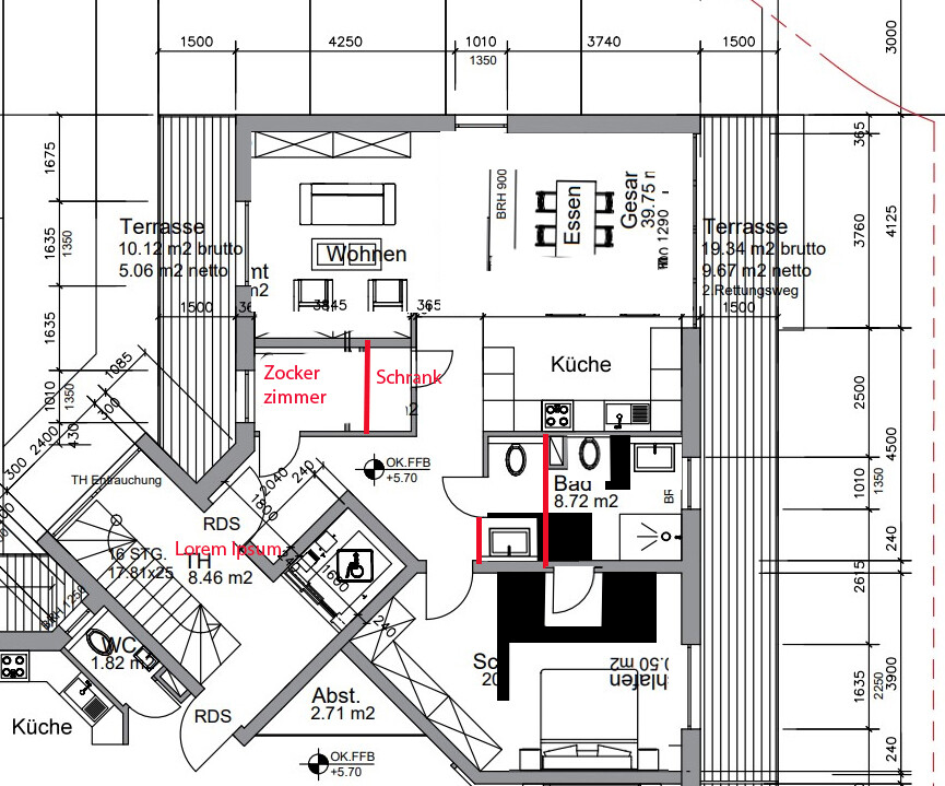
Tatsächlich wäre die Option Büro im Schlafzimmer nicht umsetzbar, es wurde schon bewusst die Wand gelassen. Neben Arbeit ist auch abends das zocken am PC bei mir vorhanden.

Meine Frau möchte hierbei ungestört auch mal Fernseh schauen oder hat Besuch. Demnach sollte es bei einer richtigen Trennung bleiben.

Das die Bad Tür zum Wohnzimmer geht, war wohl mein Fehler. Diese könnte auch bleiben wie im ursprünglichen Gäste-WC, zur Südseite hin bzw Flur.

Wir mögen eine große Couch haben, deswegen war eben die Überlegung den Raum größer zu bekommen. Gäste-WC kann defintiv wegfallen
M
Myrna_Loy
03.03.22 11:12
Dann vielleicht so?
Wobei der Wiederverkaufswert sicher etwas sinken wird.

Grundriss eines Hauses mit Wohn-, Ess- und Küchenbereich, Schlaf- und Badzimmer, Terrassen.
M
Myrna_Loy
03.03.22 11:22
Und eine Version mit Gästebad und Minibad ohne Wanne.

Grundriss einer Wohnung: Wohnzimmer, Esszimmer, Küche, Bad, Terrasse, WC, Abstellraum.
M
mayor333
03.03.22 11:44
Myrna_Loy schrieb:

Dann vielleicht so?
Wobei der Wiederverkaufswert sicher etwas sinken wird.

Hey danke für den Vorschlag.
Wenn die nördliche Wand des zocker Zimmers nach oben verschoben werden kann, wäre das eine Möglichkeit. Aktuell wären das ca. 3 qm ... da passt nicht mal ein kleiner schreibtisch rein :-(
Meine Absicht die Grundrisse zu ändern sind heute morgen mal zur Architektin überführt worden. Mal sehen was hierbei zurück kommt.
Melde mich zurück bei mehr Infos
K a t j a03.03.22 11:45
Ich hätte eher so gedacht:


Detaillierter Grundriss eines Hauses mit Wohnbereich, Küche, Büro, Schlafzimmer und Terrassen


30 Zeichen
M
mayor333
04.03.22 09:24
K a t j a schrieb:

Ich hätte eher so gedacht:

[ATTACH alt="penthouse.jpg"]70142[/ATTACH]

30 Zeichen

Guten Morgen,

Super danke für deine Mühe. Hast du jetzt hierbei eventuelle Versorgungsschächte schon berücksichtigt?

Das wäre tatsächlich nochmal eine bessere Alternative, essen und Wohnen könnte immer noch getauscht werden.

Bin gespannt was von der Architektin als Alternative zurück kommt 🙂
gäste-wcarchitektin