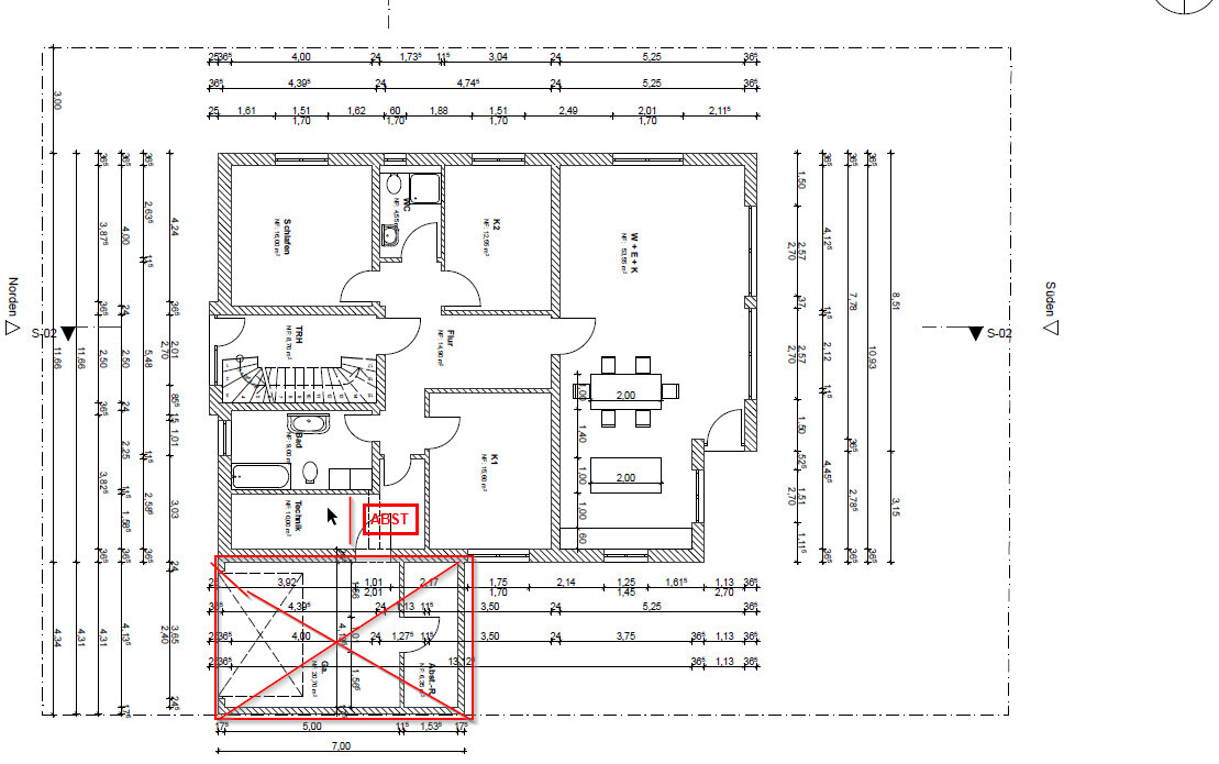
ᐅ Grundriss Neubau Mehrfamilienhaus mit 3 Wohneinheiten, Wohnfläche ca. 350m²
Erstellt am: 29.08.24 13:40
N
nevzatc21
Hallo zusammen,
ich habe ein Grundstück erworben und würde gerne Eure Meinungen zum Entwurf hören.
Geplant ist ein Mehrfamilienhaus mit 3 Wohneinheiten, je eine Wohnung pro Etage. Ggf. würden wir im EG-Treppenhausbereich einen Raum als Wasch-, Abstell- und Technikraum nutzen. Das Haus soll einen modernen und nützlichen Grundriss haben, idealerweise mit viel Licht und offenem Wohn-, Ess- und Kochbereich. Weiterhin ist mir sehr wichtig, dass jede Wohnung einen Balkon oder Terrasse hat auf der man gemütlich sitzen und Zeit verbringen kann.
Hier der Steckbrief:
Bebauungsplan/Einschränkungen
Größe des Grundstücks - 523m², 19m breit, 27,5 tief, rechteckig
Hang - nein
Grundflächenzahl - 0,4
Geschossflächenzahl - 0,8
Baufenster, Baulinie und -grenze - 5m von der Straße, 3m zum Nachbarn, keine Grenze zum garten
Randbebauung - "Auf jedem Baugrundstück ist entlang mindestens einer Grundstücksgrenze eine freiwachsende Hecke oder geschnittene Laubgehölzhecke anzulegen und zu unterhalten" mehr habe ich dazu nicht gefunden im Bebauungsplan.
Anzahl Stellplatz - 1,5 je Wohneinheit
Geschossigkeit - 2 Vollgeschosse
Dachform - alle Dachformen
Stilrichtung - keine vorgaben
Ausrichtung - Süd-Ausrichtung
Maximale Höhen/Begrenzungen FH max 11m, TH max 7m
weitere Vorgaben - keine wesentlichen die Einfluss auf die Planung nehmen.
Anforderungen der Bauherren
Stilrichtung, Dachform, Gebäudetyp- modernes Mehrfamilienhaus mit 2 Vollgeschossen und Staffelgeschoss mit Flachdach oder Pultdach.
Keller, Geschosse - kein Keller, 2 Vollgeschosse plus Staffelgeschoss
Anzahl der Personen, Alter - unbekannt, ca. 3-5 Personen je Wohneinheit
Raumbedarf im EG, OG - EG & OG ca. 130m², DG ca. 90m²
Büro: Familiennutzung oder Homeoffice? - Familiennutzung
Schlafgäste pro Jahr - wenig
offene oder geschlossene Architektur - keine Präferenz
konservativ oder moderne Bauweise - modern
offene Küche, Kochinsel - offene Küche ohne Kochinsel (wird zu teuer 😀)
Anzahl Essplätze - 1 je Wohneinheit
Kamin - nein
Musik/Stereowand - nein
Balkon, Dachterrasse - ja, Balkon ist mir sehr wichtig für die WHG im OG & DG
Garage, Carport - nein, Außenstellplätze
Nutzgarten, Treibhaus - nein,
weitere Wünsche/Besonderheiten/Tagesablauf, gern auch Begründungen, warum dieses oder das nicht sein soll - Mir ist es wichtig, dass wir die Wohnungen so gestalten, dass die Mieter dauerhaft dort leben wollen / können, Daher überlege ich auch einen Waschraum im EG einzuführen der auch als Technikraum und Abstellplatz genutzt werden kann. ansonsten sollte die Wohnungen über ausreichend Platz auf dem Balkon haben.
Hausentwurf
Von wem stammt die Planung - Mein Bruder ist Bauingenieur, der hat die Pläne entworfen.
Was gefällt besonders? Warum? - Großer Wohn, Ess- und Kochbereich im EG, Anzahl der Schlafzimmer und deren Größe.
Was gefällt nicht? Warum? - dass die Terrassen im EG in der West-Ecke den Ausgang hat und dass die Balkone im OG und DG in der OST ecke stehen.
Preisschätzung laut Architekt/Planer: 520.000 € inkl. MwSt., Ich vergebe die Gewerke selbst.
Persönliches Preislimit fürs Haus, inkl. Ausstattung: 520.000€
favorisierte Heiztechnik: Fernwärme ist von der Stadt mehr oder weniger vorgeschrieben.
Wenn Ihr verzichten müsst, auf welche Details/Ausbauten
-könnt Ihr verzichten: offene Küche. Gäste-WC
-könnt Ihr nicht verzichten: Balkon, Terrasse, Abstellraum
Warum ist der Entwurf so geworden, wie er jetzt ist? ZB
Standardentwurf vom Planer? - Es ist schon auf die Grundstücksgegebenheiten und unserer Vorstellung angepasst. Ich bin aber nicht sicher ob es das "richtige" für ein Mehrfamilienhaus ist. Vor allem das Thema Balkon, Waschraum/Abstellraum da bin ich nicht sicher ob das alles so passt.
Entsprechende/Welche Wünsche wurden vom Architekten umgesetzt? Eigentlich wurden alle wünsche umgesetzt, ich bin nicht sicher ob unsere Wünsche so "richtig" sind und was man ggf. besser machen kann.
Ein Gemisch aus vielen Beispielen aus div. Magazinen...
Was macht ihn in Euren Augen besonders gut oder schlecht?



Was haltet ihr von den Entwürfen? Wie findet ihr die Raumaufteilung, Was sagt ihr zum Thema Waschraum/Abstellraum im EG?
Was sagt ihr zu der Balkonsituation?
Danke für Euer Feedback!
Nevzat
ich habe ein Grundstück erworben und würde gerne Eure Meinungen zum Entwurf hören.
Geplant ist ein Mehrfamilienhaus mit 3 Wohneinheiten, je eine Wohnung pro Etage. Ggf. würden wir im EG-Treppenhausbereich einen Raum als Wasch-, Abstell- und Technikraum nutzen. Das Haus soll einen modernen und nützlichen Grundriss haben, idealerweise mit viel Licht und offenem Wohn-, Ess- und Kochbereich. Weiterhin ist mir sehr wichtig, dass jede Wohnung einen Balkon oder Terrasse hat auf der man gemütlich sitzen und Zeit verbringen kann.
Hier der Steckbrief:
Bebauungsplan/Einschränkungen
Größe des Grundstücks - 523m², 19m breit, 27,5 tief, rechteckig
Hang - nein
Grundflächenzahl - 0,4
Geschossflächenzahl - 0,8
Baufenster, Baulinie und -grenze - 5m von der Straße, 3m zum Nachbarn, keine Grenze zum garten
Randbebauung - "Auf jedem Baugrundstück ist entlang mindestens einer Grundstücksgrenze eine freiwachsende Hecke oder geschnittene Laubgehölzhecke anzulegen und zu unterhalten" mehr habe ich dazu nicht gefunden im Bebauungsplan.
Anzahl Stellplatz - 1,5 je Wohneinheit
Geschossigkeit - 2 Vollgeschosse
Dachform - alle Dachformen
Stilrichtung - keine vorgaben
Ausrichtung - Süd-Ausrichtung
Maximale Höhen/Begrenzungen FH max 11m, TH max 7m
weitere Vorgaben - keine wesentlichen die Einfluss auf die Planung nehmen.
Anforderungen der Bauherren
Stilrichtung, Dachform, Gebäudetyp- modernes Mehrfamilienhaus mit 2 Vollgeschossen und Staffelgeschoss mit Flachdach oder Pultdach.
Keller, Geschosse - kein Keller, 2 Vollgeschosse plus Staffelgeschoss
Anzahl der Personen, Alter - unbekannt, ca. 3-5 Personen je Wohneinheit
Raumbedarf im EG, OG - EG & OG ca. 130m², DG ca. 90m²
Büro: Familiennutzung oder Homeoffice? - Familiennutzung
Schlafgäste pro Jahr - wenig
offene oder geschlossene Architektur - keine Präferenz
konservativ oder moderne Bauweise - modern
offene Küche, Kochinsel - offene Küche ohne Kochinsel (wird zu teuer 😀)
Anzahl Essplätze - 1 je Wohneinheit
Kamin - nein
Musik/Stereowand - nein
Balkon, Dachterrasse - ja, Balkon ist mir sehr wichtig für die WHG im OG & DG
Garage, Carport - nein, Außenstellplätze
Nutzgarten, Treibhaus - nein,
weitere Wünsche/Besonderheiten/Tagesablauf, gern auch Begründungen, warum dieses oder das nicht sein soll - Mir ist es wichtig, dass wir die Wohnungen so gestalten, dass die Mieter dauerhaft dort leben wollen / können, Daher überlege ich auch einen Waschraum im EG einzuführen der auch als Technikraum und Abstellplatz genutzt werden kann. ansonsten sollte die Wohnungen über ausreichend Platz auf dem Balkon haben.
Hausentwurf
Von wem stammt die Planung - Mein Bruder ist Bauingenieur, der hat die Pläne entworfen.
Was gefällt besonders? Warum? - Großer Wohn, Ess- und Kochbereich im EG, Anzahl der Schlafzimmer und deren Größe.
Was gefällt nicht? Warum? - dass die Terrassen im EG in der West-Ecke den Ausgang hat und dass die Balkone im OG und DG in der OST ecke stehen.
Preisschätzung laut Architekt/Planer: 520.000 € inkl. MwSt., Ich vergebe die Gewerke selbst.
Persönliches Preislimit fürs Haus, inkl. Ausstattung: 520.000€
favorisierte Heiztechnik: Fernwärme ist von der Stadt mehr oder weniger vorgeschrieben.
Wenn Ihr verzichten müsst, auf welche Details/Ausbauten
-könnt Ihr verzichten: offene Küche. Gäste-WC
-könnt Ihr nicht verzichten: Balkon, Terrasse, Abstellraum
Warum ist der Entwurf so geworden, wie er jetzt ist? ZB
Standardentwurf vom Planer? - Es ist schon auf die Grundstücksgegebenheiten und unserer Vorstellung angepasst. Ich bin aber nicht sicher ob es das "richtige" für ein Mehrfamilienhaus ist. Vor allem das Thema Balkon, Waschraum/Abstellraum da bin ich nicht sicher ob das alles so passt.
Entsprechende/Welche Wünsche wurden vom Architekten umgesetzt? Eigentlich wurden alle wünsche umgesetzt, ich bin nicht sicher ob unsere Wünsche so "richtig" sind und was man ggf. besser machen kann.
Ein Gemisch aus vielen Beispielen aus div. Magazinen...
Was macht ihn in Euren Augen besonders gut oder schlecht?
Was haltet ihr von den Entwürfen? Wie findet ihr die Raumaufteilung, Was sagt ihr zum Thema Waschraum/Abstellraum im EG?
Was sagt ihr zu der Balkonsituation?
Danke für Euer Feedback!
Nevzat
nevzatc21 schrieb:
Du irrst Dich, hier die Vorgaben aus dem Bebauungsplan.Ja prima. Es ist immer sehr hilfreich, wenn man den Lageplan hier mit einstellt. Allerdings zählt ein Lageplan in Gänze (Legende und Zeichnung) Es ist vom Fragebogen her gefordert und ich habe ihn in #6 eingefordert. Da kam nichts. Dann schaut man sich den Entwurf an, fragt nach, wo Du die 5 Stellplätze lässt, und da kommt von Dir nichts.nevzatc21 schrieb:
Es ist schade, dass sich ein großer Teil der Diskussion um das Budget dreht, wenn das überhaupt nicht das Thema ist..Weil hier keiner Lust und Zeit hat, jede Schnapsidee, Luftschloss oder Simshaus ernsthaft zu diskutieren. Du wärest nicht der erste. Und sorry: zum Budget sage ich einfach mal: Willkommen in 2024!Dir werden ja auch andere Fragen gestellt, wo Du eben nicht drauf eingehst. Ich frage nach der Ver- und Entsorgung, nach den Stellplätzen, darauf kommt nichts von Dir. Man diskutiert hier, und wenn der TE nicht mitmacht, mit Falschinfos kommt oder sich rar macht oder stumm stellt, dann stimmt halt die Diskussion nicht.
Wer selbst plant, sollte sich vorab informieren.
Die Grundbedingungen müssen stimmen, dann geht es ins Detail!
nevzatc21 schrieb:
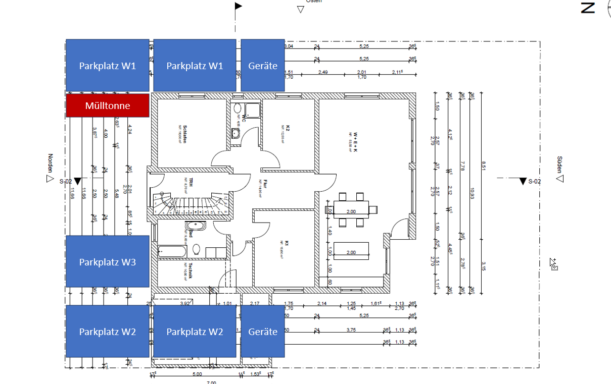
Die Garage wird nicht gebaut, stattdessen wird ein Art "Schuppen" auf jeder Hausseite gebaut für Fahrräder und Gartenzeug.Ich nehme mal an, die sind dann auch für den Müll?!Aber nochmal: wo sind die 4,5 Stellplätze? Wenn Du auf jeder Seite Deinen Schuppen auf Grenze setzt, hast Du nicht mehr viel Platz.
Und deshalb bewegen wir uns derzeit bei einer Schnapsidee - Wohnraum wird oft ohne Stellplatzverpflichtung geplant
Wo ist die Barrierefreiheit?
Wo ist der Technikraum?
N
nevzatc2130.08.24 10:05Hallo YPG,
Sorry für die Verwirrung,
Die Garage mit Abstellraum kommt weg. Stattdessen kommt je Hausseite ein geräteschuppen, hier gab es Planänderungen.
Für W1 ist der Plan, den Raum "Technik" zu teilen und den vorderen Bereich als Abstellraum und den Hinteren als Technik raum zu nutzen. hier die Skizze.

Korrekt, im aktuellen Plan ist vorgesehen, dass die Wäsche in der Wohnung gewaschen wird. Dafür sollte dann genug Platz für Waschmaschine und Trockner im Bad sein. Ansonsten kann im Balkon aufgehangen werden. Die Haustechnik befindet sich im EG raum "Technik" (Mehrspartenhausanschluss, Fernwärmestation, Zählerschrank etc.). Für Fahrradstellplätze wird mit Geräteschuppen gesorgt.
Wohnung im EG ist barrierefrei. 1 barrierefreie Wohnung ist bei einem 3-FH ausreichen.
Danke für diese Hinweise, es macht sinn das Dusch-WC zu erweitern auf 2m breite. der Verlust für die Nebenliegenden Räume ist vernachlässigbar. Sind 2m ausreichend?
Bezüglich Schlafzimmer gebe ich Dir recht. Hier muss ich entweder das Fenster umpositionieren oder das Bett an die Wand zum Dusch-WC stellen.
Auch ein guter Punkt, das Ziel war Fenster auf der Straßenseite zu vermeiden, da hier auch die Stellplätze teilweise sein werden. Welche Räume kann man am geeignetsten auf die Straßenseite setzen?

Es war mal gedacht selbst einzuziehen, aber dies ist vom Tisch. Daher kommt die Garage weg. Was meinst du mit "runder Ablage"?
ypg schrieb:
Uups, der Anbau von Wohneinheit EG dient als Technikraum?!
Also hat W1 keinen Abstellraum.
Sorry für die Verwirrung,
Die Garage mit Abstellraum kommt weg. Stattdessen kommt je Hausseite ein geräteschuppen, hier gab es Planänderungen.
Für W1 ist der Plan, den Raum "Technik" zu teilen und den vorderen Bereich als Abstellraum und den Hinteren als Technik raum zu nutzen. hier die Skizze.
Es gibt quasi noch keinen separaten Bereich für Technik, Waschmaschine und Fahrräder. Gibt es den Bauingenieur oder ist das hier eine Laienplanung?
Gebaut wird in Hessen? Dann verweise ich auf die HBO, wo zudem steht, dass eine Wohneinheit barrierefrei zu planen ist.
Das ist hier nicht der Fall Und kann auch nur W1 betreffen, da kein Fahrstuhl geplant ist.
Korrekt, im aktuellen Plan ist vorgesehen, dass die Wäsche in der Wohnung gewaschen wird. Dafür sollte dann genug Platz für Waschmaschine und Trockner im Bad sein. Ansonsten kann im Balkon aufgehangen werden. Die Haustechnik befindet sich im EG raum "Technik" (Mehrspartenhausanschluss, Fernwärmestation, Zählerschrank etc.). Für Fahrradstellplätze wird mit Geräteschuppen gesorgt.
Wohnung im EG ist barrierefrei. 1 barrierefreie Wohnung ist bei einem 3-FH ausreichen.
Wenn ich mir das Dusch-WC anschaue, sind es im RBM 173cm Breite. Da passt dann eine 80er Dusche rein, wenn daneben eine Toilette steht.
In einem Familiengrundriss sollte zudem im Schlafzimmer ein 3-Meter-Schrank Platz finden. Könnte an der Außenwand, was man ja als Eigentümer wegen des Schimmels vermeiden will. Und dann müsste das Bett unter das Fenster.
Danke für diese Hinweise, es macht sinn das Dusch-WC zu erweitern auf 2m breite. der Verlust für die Nebenliegenden Räume ist vernachlässigbar. Sind 2m ausreichend?
Bezüglich Schlafzimmer gebe ich Dir recht. Hier muss ich entweder das Fenster umpositionieren oder das Bett an die Wand zum Dusch-WC stellen.
Zum optischen Eindruck: ein Staffel macht natürlich immer etwas her, mehr als ein Satteldach. Es wirkt moderner.
Dennoch finde ich die Front-Fassade völlig misslungen. Mit gerade mal einem Badfenster ist die einladende Optik nicht getroffen.
Ein Architekt achtet auf eine ansprechende Optik. Aber auf dem wird hier verzichtet?!
Auch ein guter Punkt, das Ziel war Fenster auf der Straßenseite zu vermeiden, da hier auch die Stellplätze teilweise sein werden. Welche Räume kann man am geeignetsten auf die Straßenseite setzen?
Die Frage an Dich bleibt ja bestehen, für wen die Doppelgarage sein soll. Es kann ja nur sein, dass Du Deinen Wunsch hier ausleben möchtest und ein Haus von der Miete bezahlen lässt. Nur dann man es Sinn, wenn Du sagst, dass Dir der Terrassenzugang im EG nicht zusagt.
Dass man seine Immobilie möglichst lukrativ macht, in der man selbst wohnen möchte, sei ja erlaubt. Aber hier wird halt nicht fachmännisch geplant, sodass man eigentlich die runde Ablage erwähnen muss.
Es war mal gedacht selbst einzuziehen, aber dies ist vom Tisch. Daher kommt die Garage weg. Was meinst du mit "runder Ablage"?
N
nordanney30.08.24 10:16nevzatc21 schrieb:
Was meinst du mit "runder Ablage"?Ab in die Tonne.Wie ist denn nun die Definition der Traufhöhe im Bebauungsplan? Gibt es diese nicht explizit, kannst Du eh nicht bauen, wie gewünscht. Muss man Punkte 3x ansprechen, bis Du antwortest?
nevzatc21 schrieb:
Es ist schade, dass sich ein großer Teil der Diskussion um das Budget dreht, wenn das überhaupt nicht das Thema ist..Zu den Grundrissen:
ypg schrieb:
So wirklich durchdacht ist er nicht. Es scheint, dass der Entwurf erst einmal nur dazu da ist, ob sich Wohnungen eignen und wieviel Qm man herausbekommt.Bedeutet: Nicht effektiver Wohnungsbau! Viele Qm für wenig Nutzen: kein nutzbarer AB, kein Einbauschrank oder Nische für Garderobe, willkürliche Lage der Feuchträume sowie Ver- und Entsorgung, zu breiter Wohnraum, fehlendes Zimmer, keine Familienfreundlichkeit.nevzatc21 schrieb:
Wohnung im EG ist barrierefrei.Nein, ist sie nicht!nevzatc21 schrieb:
Für W1 ist der Plan, den Raum "Technik" zu teilen und den vorderen Bereich als Abstellraum und den Hinteren als Technik raum zu nutzen. hier die Skizze.Soll das ein Witz sein? Wird die Technik im Rohbau eingemauert und dann nie wieder betreten?nevzatc21 schrieb:
Welche Räume kann man am geeignetsten auf die Straßenseite setzen?Sorry, aber damit fängt man doch bei einer Hausplanung an, oder?nevzatc21 schrieb:
Was meinst du mit "runder Ablage"?Den Mülleimer!Zeige einen Entwurf mit den nötigen Stellplätzen, dann sehen wir weiter.
N
nevzatc2130.08.24 10:29ypg schrieb:
Das muss doch irgendwo an den unteren Wohnungen durchgeführt werden. Du hast „selbst“ an gar keine Technik gedacht.
Wahrscheinlich ist auch deshalb die Kalkulation so - ich nenne es mal „schwerfällig“. Da ist überhaupt nichts rund.
Auch die 4,5 Stellplätze bekommst Du nur mit Müh und Not an vordere Seite.
Ist denn überhaupt ein Mehrfamilienhaus erlaubt? Hallo, Ja. Mehrfamilienhaus ist erlaubt. Die Stellplätze werden so angelegt (siehe Skizze).
Nach meinem Verständnis ist das so zulässig. Muss natürlich noch genehmigt werden.
Ich habe noch einmal nachgeschaut: der andere hatte zumindest eine Vorstellung, dass es ihm knapp eine Mio kosten wird.
Leider wurde mein Satz dahingehend wohl gelöscht. Ich habe erst vor drei Tagen meine Planung für das Mehrfamilienhaus gelöscht. Weil du es budgetmäßig nicht schaffst?
Ein Raum, der sich selbst in Funktionen einordnet, damit man in seinen eigenen 4 Wänden noch Privatsphäre hat und sich nicht gegenseitig stört. Wenn man also einen Kinderhaushalt plant, dann ist ein offener Designraum kontraproduktiv, weil man gern die Küche zb versteckt um über Eck hat, damit ein anderer Wohnungsbewohner auch seine Ruhe bekommt. Parallel beim Kindererziehen oder Babybrei stampfen funktioniert nämlich das Sportschau-Schauen ganz schlecht. Und Besuch will man auch getrennt voneinander erwarten und bewirten, ohne dass sich der Partner hinter Kopfhörer auf der Couch verstecken muss. Deshalb plant man über Eck, zumindest ist das eine Methode. Ja, das ist ein guter punkt. Ich bin am Überlegen die Küche im EG und OG räumlich zu trennen. Dafür müsste das Kinderzimmer rüberwandern zur Seite vom Dusch-WC und die Küche Rückt in den freigewordenen Bereich..
Idee ist folgende:
N
nevzatc2130.08.24 10:40nordanney schrieb:
Ab in die Tonne.
Wie ist denn nun die Definition der Traufhöhe im Bebauungsplan? Gibt es diese nicht explizit, kannst Du eh nicht bauen, wie gewünscht. Muss man Punkte 3x ansprechen, bis Du antwortest?Ich weiß nicht warum ich ständige Sachen beantworten soll die nichts mit meiner Problemstellung zu tun haben. Sei Dir sicher, dass unsere Planung 100% den Vorgaben des Bebauungsplanes entspricht.
Ähnliche Themen