Bebauungsplan/Einschränkungen
Größe des Grundstücks: 505
Hang : Nein
Grundflächenzahl
Geschossflächenzahl : 0,4
Baufenster, Baulinie und -grenze 3m
Randbebauung : nicht geplant
Anzahl Stellplatz : 2, nur gepflastert
Geschossigkeit: 1,5
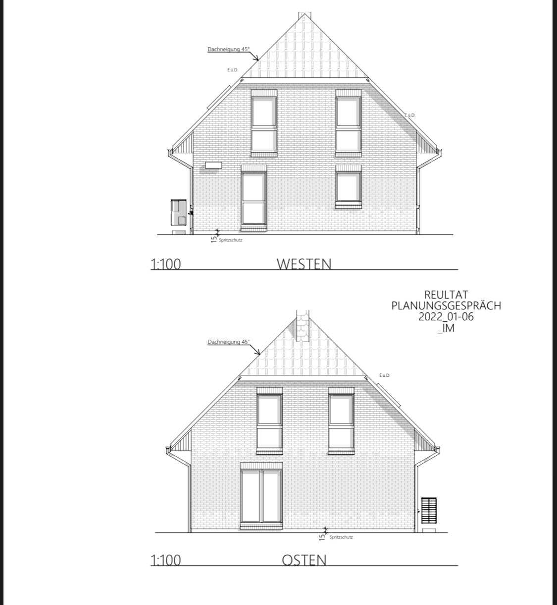
Dachform: Krüppelwalmdach
Stilrichtung: modern, zeitlos
Ausrichtung: Süd-Odt
Maximale Höhen/Begrenzungen 4,5m traufhöhe
weitere Vorgaben: Photovoltaik nur auf einer Seite
Anforderungen der Bauherren
Stilrichtung, Dachform, Gebäudetyp
Keller, Geschosse: Nein, 1,5
Anzahl der Personen, Alter: aktuell 2 (26-27) geplant zwei Kinder
Raumbedarf im EG, OG: naja, was 140 halt hergeben. Oben 2 KZ, 1 Schlafzimmer und optional Arbeitszimmer
Büro: Familiennutzung oder Homeoffice? Honeoffice
Schlafgäste pro Jahr: wenige
offene oder geschlossene Architektur: offen
konservativ oder moderne Bauweise: modern
offene Küche, Kochinsel: Ja
Anzahl Essplätze: 4-6
Kamin: ja
________
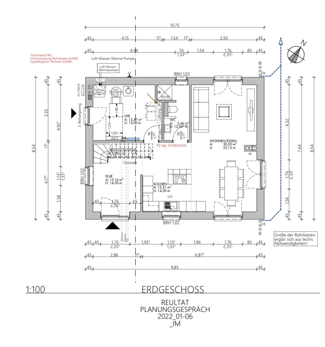
Moin, bin gespannt auf euer Feedback. Hatten das erste Planungsgespräch heute und haben nun die erste Skizze. Das meiste wurde umgesetzt, was wir uns vorher schon vorgenommen hatten.
Besonders gefällt uns:
das offene und platztechnisch gut ausgenutzte offene Wohnkonzept unten.
auch das Schlafzimmer oben gefällt uns gut. Wenn beide Kinder irgendwann da sind, kann man die Nische offen als Arbeitszimmer umgestalten oder zur Not mit einer Trockenbauwand abgrenzen und hat zusätzlich ein komplettes Zimmer.
Was nicht optimal ist:
Die Lage des Badezimmer unten ist nicht perfekt, haben wir aber nicht besser hinbekommen ohne nicht
A) einen zusätzlichen Flur zu schaffen
B) Platz auf der Südseite wegzunehmen
Die Wände dort werden zusätzlich aus Kalksandstein sein, damit es etwas besser schallisoliert ist. Wir sind aber generell offene Menschen, und Besucher, denen das nicht gefällt, gehen halt nach oben.
von daher passt das so.
Zudem nicht optimal ist die Lage des Kamins. Der schaut hier aus der abgewalmten Seite des Daches raus. Aber geht schon. Kein beinbruch.
Bin gespannt auf euer Feedback!





Größe des Grundstücks: 505
Hang : Nein
Grundflächenzahl
Geschossflächenzahl : 0,4
Baufenster, Baulinie und -grenze 3m
Randbebauung : nicht geplant
Anzahl Stellplatz : 2, nur gepflastert
Geschossigkeit: 1,5
Dachform: Krüppelwalmdach
Stilrichtung: modern, zeitlos
Ausrichtung: Süd-Odt
Maximale Höhen/Begrenzungen 4,5m traufhöhe
weitere Vorgaben: Photovoltaik nur auf einer Seite
Anforderungen der Bauherren
Stilrichtung, Dachform, Gebäudetyp
Keller, Geschosse: Nein, 1,5
Anzahl der Personen, Alter: aktuell 2 (26-27) geplant zwei Kinder
Raumbedarf im EG, OG: naja, was 140 halt hergeben. Oben 2 KZ, 1 Schlafzimmer und optional Arbeitszimmer
Büro: Familiennutzung oder Homeoffice? Honeoffice
Schlafgäste pro Jahr: wenige
offene oder geschlossene Architektur: offen
konservativ oder moderne Bauweise: modern
offene Küche, Kochinsel: Ja
Anzahl Essplätze: 4-6
Kamin: ja
________
Moin, bin gespannt auf euer Feedback. Hatten das erste Planungsgespräch heute und haben nun die erste Skizze. Das meiste wurde umgesetzt, was wir uns vorher schon vorgenommen hatten.
Besonders gefällt uns:
das offene und platztechnisch gut ausgenutzte offene Wohnkonzept unten.
auch das Schlafzimmer oben gefällt uns gut. Wenn beide Kinder irgendwann da sind, kann man die Nische offen als Arbeitszimmer umgestalten oder zur Not mit einer Trockenbauwand abgrenzen und hat zusätzlich ein komplettes Zimmer.
Was nicht optimal ist:
Die Lage des Badezimmer unten ist nicht perfekt, haben wir aber nicht besser hinbekommen ohne nicht
A) einen zusätzlichen Flur zu schaffen
B) Platz auf der Südseite wegzunehmen
Die Wände dort werden zusätzlich aus Kalksandstein sein, damit es etwas besser schallisoliert ist. Wir sind aber generell offene Menschen, und Besucher, denen das nicht gefällt, gehen halt nach oben.
von daher passt das so.
Zudem nicht optimal ist die Lage des Kamins. Der schaut hier aus der abgewalmten Seite des Daches raus. Aber geht schon. Kein beinbruch.
Bin gespannt auf euer Feedback!
Richooo schrieb:
das offene und platztechnisch gut ausgenutzte offene Wohnkonzept unten.
auch das Schlafzimmer oben gefällt uns gut. Wenn beide Kinder irgendwann da sind, kann man die Nische offen als Arbeitszimmer umgestalten oder zur Not mit einer Trockenbauwand abgrenzen und hat zusätzlich ein komplettes Zimmer.
Die Wände dort werden zusätzlich aus Kalksandstein sein, damit es etwas besser schallisoliert ist. Wir sind aber generell offene Menschen, und Besucher, denen das nicht gefällt, gehen halt nach oben.
Zudem nicht optimal ist die Lage des Kamins. Der schaut hier aus der abgewalmten Seite des Daches raus. Aber geht schon. Kein beinbruch.Also ich finde den Entwurf persönlich sehr ernüchternd.
1. Offen ist es wirklich. Ist wirklich keine Tür zum Eingangsbereich und Treppenhaus geplant? Bedenkt, dass alle Kochgerüche sich im ganzen Haus verteilen
2. Also ich find diesen Blinddarm im Schlafzimmer, weil Platz übrig war, wirklich schecklich. Die qm gehören ordentlich verplant und nicht nur "mitverkauft", weil unten die qm halt das OG so ergeben haben.
2.5. Flurfläche ist zwar normalerweise "tote" Fläche aber etwas mehr dürfte es schon sein. Begegnungsverkehr wird schon knapp und ihr habt überhaupt kein natürliches Licht im OG FLur
3. Aus was sollen die Innenwände denn sonst sein, wenn nicht Kalksandstein? Ich hoffe, das wird euch nicht als Extra verkauft
4. Geht schon, kein Beinbruch, wenn man alle Möglichkeiten in der Planungsphase hat für ein Investvolumen von min 350k zzgl. Nebenkosten? Noaja kann man machen. Aber einen Solitärschornstein mitten im OG Schlafzimmer grenzt schon an Folter.
5. Den WC ZUgang direkt in der Küche ist zumindest ungewöhnlich. Dass ihr offene Menschen seid, hätte ich jetzt anders verstanden. Ich als Gast nach nem Chili-Abendessen fänd es sehr unangenehm, wenn ich erst 5 Minuten auf dem Klo lüften müsste, um die Duftfahne nicht direkt in den Mittelpunkt zu ziehen.
Lieber @OWLer
vielen Dank für deine ausführliche Nachricht und deine Kritik.
Ich gehe kurz nacheinander auf die Punkte ein.
1) Genau, es ist in der Tat keine Tür geplant. Würde da nicht reinpassen Und darüber hinaus empfinde ich Flur auch als verschenkten Platz. Da soll genug für eine kleine Garderobe und ne Bank sein. Dafür reicht der Platz. Die Tür an sich sollte durch das Fenster und ein großes Glaselement neben der Tür im EG recht hell sein. Im OG überlegen wir noch ein Fenster einzubauen.
Würde mich aber auch ohne nicht stören.
2) Der von dir liebevoll „Blinddarm“ genannte Platz im Schlafzimmer war von uns so gewünscht. Wir hatten auch einen Grundriss, in dem das das Arbeitszimmer (an anderer Position war) was aber dazu führte, dass alle Räume oben klein wirkten. So hat meine eine weite Blickachse und der Raum dort (8m2) kann auch später als Arbeitszimmer abgetrennt werden. Davor soll es als sportecke dienen. Begehbarer kleiderschrank oder Ähnliches ginge natürlich genauso.
3) Die Innenwände sind meines Wissens nach aus Porenbeton.
4)nicht ganz, Hauskosten liegen bei 300k + Baunebenkosten aber letztendlich natürlich egal. Ist ein Haufen Geld.
Ich hätte keine Ahnung gehabt, wo der Schornstein sonst hin soll, damit es im EG an einem sinnvollen Platz steht. Das ist mein Problem. Der Bebauungsplan gibt vor, dass der Schornstein nur entlang der Mittelachsen des Daches verlaufen kann. (irgendwas mit der maximalen Höhe, die der rausguckt).
5) Wenn dieser Fall eintreten sollte, sage ich unserem Gast, er kann auch gern oben kacken gehen Kann. Dann hat er auch beim zweiten Mal Schärfe ungestört seine Ruhe.
Insgesamt wird man bestimmt keinen Grundriss erzeugen können, der alles perfekt miteinander verbindet. Deshalb sagte ich auch „Kein Beinbruch“. Denn Kompromisse wird man in jedem Fall machen müssen.
vielen Dank für deine ausführliche Nachricht und deine Kritik.
Ich gehe kurz nacheinander auf die Punkte ein.
1) Genau, es ist in der Tat keine Tür geplant. Würde da nicht reinpassen Und darüber hinaus empfinde ich Flur auch als verschenkten Platz. Da soll genug für eine kleine Garderobe und ne Bank sein. Dafür reicht der Platz. Die Tür an sich sollte durch das Fenster und ein großes Glaselement neben der Tür im EG recht hell sein. Im OG überlegen wir noch ein Fenster einzubauen.
Würde mich aber auch ohne nicht stören.
2) Der von dir liebevoll „Blinddarm“ genannte Platz im Schlafzimmer war von uns so gewünscht. Wir hatten auch einen Grundriss, in dem das das Arbeitszimmer (an anderer Position war) was aber dazu führte, dass alle Räume oben klein wirkten. So hat meine eine weite Blickachse und der Raum dort (8m2) kann auch später als Arbeitszimmer abgetrennt werden. Davor soll es als sportecke dienen. Begehbarer kleiderschrank oder Ähnliches ginge natürlich genauso.
3) Die Innenwände sind meines Wissens nach aus Porenbeton.
4)nicht ganz, Hauskosten liegen bei 300k + Baunebenkosten aber letztendlich natürlich egal. Ist ein Haufen Geld.
Ich hätte keine Ahnung gehabt, wo der Schornstein sonst hin soll, damit es im EG an einem sinnvollen Platz steht. Das ist mein Problem. Der Bebauungsplan gibt vor, dass der Schornstein nur entlang der Mittelachsen des Daches verlaufen kann. (irgendwas mit der maximalen Höhe, die der rausguckt).
5) Wenn dieser Fall eintreten sollte, sage ich unserem Gast, er kann auch gern oben kacken gehen Kann. Dann hat er auch beim zweiten Mal Schärfe ungestört seine Ruhe.
Insgesamt wird man bestimmt keinen Grundriss erzeugen können, der alles perfekt miteinander verbindet. Deshalb sagte ich auch „Kein Beinbruch“. Denn Kompromisse wird man in jedem Fall machen müssen.
Gute Gerüche würden mich jetzt nicht irritieren, aber die Toi am Herd ist dann doch too much.
Wir haben das Haus doch schon mal diskutiert… da ist doch nach meiner Erinnerung nichts verbessert worden?!
Da gibst Du Deine Idee zum Zeichnet, und der zeichnet es Dir kundenfreundlich nach. Und nun?
Wir haben das Haus doch schon mal diskutiert… da ist doch nach meiner Erinnerung nichts verbessert worden?!
Da gibst Du Deine Idee zum Zeichnet, und der zeichnet es Dir kundenfreundlich nach. Und nun?
ypg schrieb:
Gute Gerüche würden mich jetzt nicht irritieren, aber die Toi am Herd ist dann doch too much.
Wir haben das Haus doch schon mal diskutiert… da ist doch nach meiner Erinnerung nichts verbessert worden?!
Da gibst Du Deine Idee zum Zeichnet, und der zeichnet es Dir kundenfreundlich nach. Und nun?naja, doch schon. Denn die Breite der Gänge zur Treppe hin etc. Wurden schon angepasst und verbreitert, ebenso wie das Wohnzimmer. Aber eher Details. Das war vorher 3,70m breit und nun 3,93m, also die oft geforderten 4m
aber klar. Sie hat sich natürlich an unseren Vorschlägen orientiert und versucht es umzusetzen.
Bisher wurde natürlich viel kritisiert. Aber ein konstruktiver Vorschlag, wie man unseren Wunsch auch besser umsetzen kann, kam bisher nicht.
ypg schrieb:
Gute Gerüche würden mich jetzt nicht irritieren, aber die Toi am Herd ist dann doch too much.
Wir haben das Haus doch schon mal diskutiert… da ist doch nach meiner Erinnerung nichts verbessert worden?!
Da gibst Du Deine Idee zum Zeichnet, und der zeichnet es Dir kundenfreundlich nach. Und nun?Ich Frage mich nur, ob das Badezimmer im Alltag da WIRKLICH stört. Wen es als Besucher stört, geht nach oben. Uns, im Zusammenleben, interessiert das nicht die Bohne. Und 99% des Tages ist das einfach nur eine Wand mit einer geschlossenen Tür. Klar hätte ich Hauswirtschaftsraum und Badezimmer optimalerweise getauscht. Aber ich glaube im Alltag macht sich das kaum bemerkbar.
Ähnliche Themen