Hausbau - Ratgeber
Bauherrenhilfe
- Bauherrenhilfe vor Vertragsabschluss
-- Warum einen unabhängigen Baubetreuer?
-- Vertragsgrundlagen
-- Bausumme
-- Zahlungsplan zur Kostenkontrolle
-- Pflichten des Bauherren vor Vertragsabschluss
-- Unterlagen beim Hausbau vor Vertragsabschluss
- Bauherrenhilfe nach Vertragsabschluss
-- Bauantrag bei Behörden
-- Bau-Genehmigungsverfahren bei Baubehörden
-- Bauspezifische Versicherungen
-- Bauzeitenplan
-- Baubeginn - die Letzten Pflichten der Bauherrschaft
- Bauherrenhilfe während der Bauzeit
- Gewährleistungsansprüche
- Bauabnahme
Baufinanzierung
- Baufinanzierung - Allgemeine Fragen
- Kreditarten
- Kredit-Konditionen
- Bausparen
- Staatliche Förderungen
- Verkehrswert
- Haushaltsrechnung und Bonität
Hausbau Planung
- Haustypen
- Hausbau Vorbereitungsarbeiten
- Das Baugrundstück
- Baugrund beim Hausbau
- Baurecht
- Gebäudeschutz
- Erdarbeiten und Wasserhaltung
- Stützmauern
- Einfriedung
- Untergeschoss
- Kanalisation
- Tragende Elemente
- Nichttragende Innenwände
- Fundation / Fundament
- Deckenkonstruktionen
- Dächer
- Kaminanlagen
- Treppen Rampen Leitern
- Dachbeläge und Spengler
- Fenster
- Sonnen und Wetterschutz
- Aussenputze
- Einbauten, Küchen, Türen
- Bodenbeläge und Unterlagsböden
- Parkett
- Gips, Wand, Decke
Haustechnik und Energie
- Heiztechnik
- Lüftung und Klimatechnik
- Sanitärtechnik
- Elektrotechnik
- Erneuerbare Energie
Whirlpools / Jacuzzi
Hausbau Magazin
- Baufinanzierung trotz Krise?
- Das Blockhaus
- Moderne Dämmstoffe im Vergleich
- Erker Vor- und Nachteile
- Glasflächen beim Hausbau
- Günstig ein Haus Bauen
- Mediterraner Hausbaustil
- Mehrgenerationenhaus
- Moderne Architektur
- Gartengestaltung leicht gemacht
- Traditioneller Ziegelbau
- Villa als höchster Traum
- Im Eigenheim Ruhestand geniessen
- Altbau sanieren
- Kauf einer Holzgarage
- Immobilienmakler
- Arbeitshandschuhe für den Winter
- Zuhause verschönern
- Outdoor-Plissees
- Schlafzimmer planen
- Terrassenüberdachung
- Wohngebäudeversicherung
- Zaunarten und Eigenschaften
- Hauseingang gestalten
- Der perfekte Grundriss
- Sparsamer heizen im Altbau
- Einfamilienhaus smart finanzieren
- Planung einer PV-Anlage
- Neues Haus
- Immobilienfinanzierung
- Installation einer Photovoltaikanlage
- Asbest erkennen und entfernen
- Gartenpflege im Frühling – worauf achten
- Sauna im Fokus - Wellness zuhause
- Erfolgreich vermieten
- Die perfekte Winterbekleidung
- Das Niedrigenergiehaus
- Der April und seine Stürme
- Architektonische Vielfalt
- Ökologisch und nachhaltig bauen
- Das perfekte Schlafzimmer
- Nachhaltige Energieversorgung
- Zukunftsorientiert bauen
- Nachhaltigkeit beim Hausbau
- Tiny Houses
- Wärmepumpen als nachhaltige Heizvariante
- Maßgeschneiderten Kleiderschrank
- Der richtige Baukredit
- Ratgeber für erfolgreichen Hausbau
- Haus als Altersvorsorge
Do-it-yourself Anleitungen
- Verlegeanleitung für Bodenbeläge und Parkett
- Bodenbeläge und Parkett reinigen und pflegen
- Malerarbeiten am Haus
- Garten Tipps
- Umzug und Reinigung

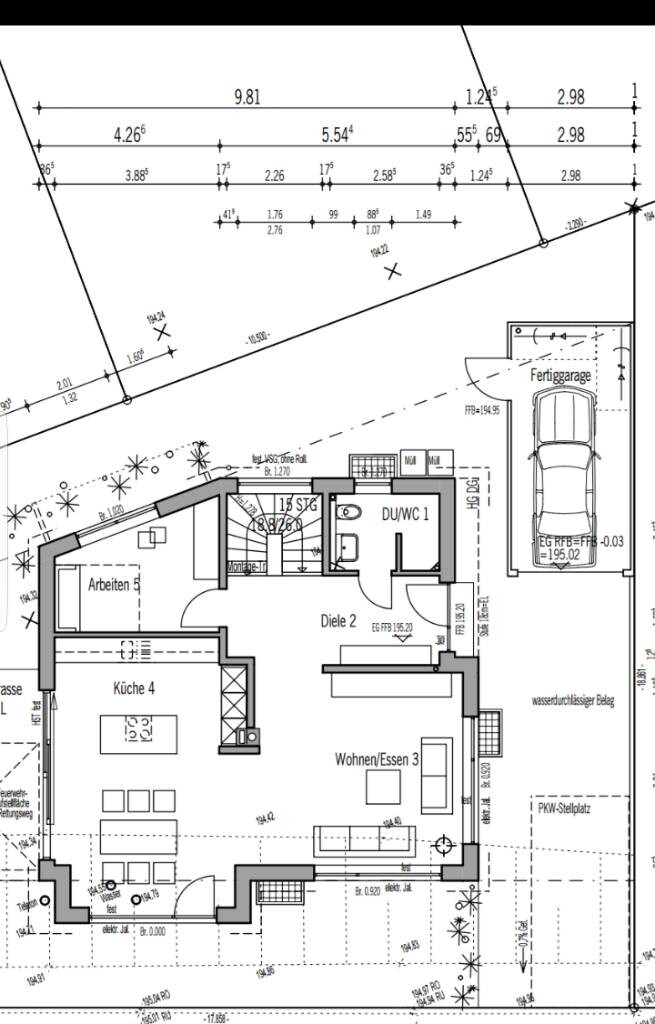
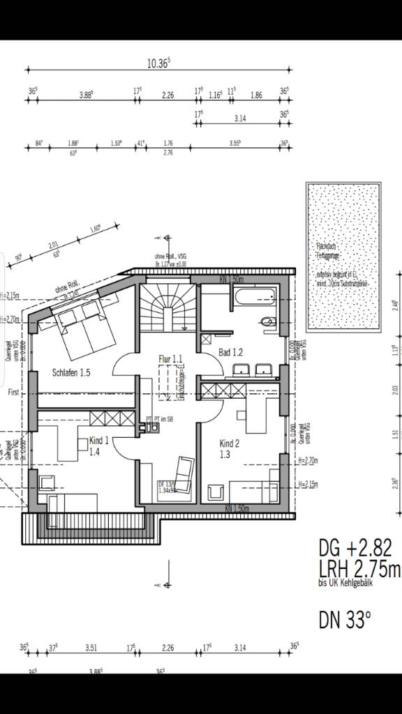
ᐅ Grundriss Entwurf Erdgeschoss und Obergeschoss

Erstellt am: 20.07.17 14:32
K
kuzu_kuzu
K
kuzu_kuzu
20.07.17 14:32
Hallo,

Hier zwei Bilder zu unserem Grundriss EG und OG, was haltet ihr davon? Was könnte man besser machen.


Liebe Grüße
Grundrissplan eines Hauses mit Küche, Wohnen/Essen und Dusche/WC

Grundriss eines Wohnhauses mit Schlafzimmern Bad Flur und Treppenbereich in 2D
Y
ypg
20.07.17 15:00
Oben findest Du den angepinnten Beitrag. Bitte lesen, beachten und ausfüllen. Nur do. geht's 🙂

Grundrissplanung - unbedingt vor Beitrag-Erstellung lesen!

https://r.tapatalk.com/shareLink?share_type=t&share_fid=45358&share_tid=11714&url=https://www.hausbau-forum.de/index.php?threads/Grundrissplanung---unbedingt-vor-Beitrag-Erstellung-lesen%21.11714/


In aller Kürze Grüsse
N
Nordlys
20.07.17 21:31
Die schiefe Wand find ich toll. Das das WZ zum Flur keine Tür hat, finde ich sinnbefreit. Ist mal ein Haus, dass etwas anders ist. Karsten
K
kuzu_kuzu
20.07.17 22:57
Nordlys schrieb:
Die schiefe Wand find ich toll. Das das WZ zum Flur keine Tür hat, finde ich sinnbefreit. Ist mal ein Haus, dass etwas anders ist. Karsten
Die schiefe Wand entstand aufgrund des schief geschnittenen Grundstücks.
11ant21.07.17 03:06
kuzu_kuzu schrieb:
Die schiefe Wand entstand aufgrund des schief geschnittenen Grundstücks.
Dafür sei dem Grundstück Dank, das sieht angenehm "anders " aus.

Den Winkel bei "Kind 1" finde ich noch verbesserungswürdig. Ich nehme an, es gibt einen Keller ? - sonst fehlte mir der HAR/Hauswirtschaftsraum.

Für welche Patienten / Besucher ist der Wartebereich zwischen den Kinderzimmern gedacht ? ;-)
https://www.instagram.com/11antgmxde/
https://www.linkedin.com/company/bauen-jetzt/
N
Nordlys
21.07.17 08:40
Och, grosser Flur ist schon gut. Die Carrerabahn können sie da zum Beispiel aufbauen. oder ne Mattell Hot Wheels Strecke.
flur