T
TheMikka12307.03.23 12:03Hallo zusammen,
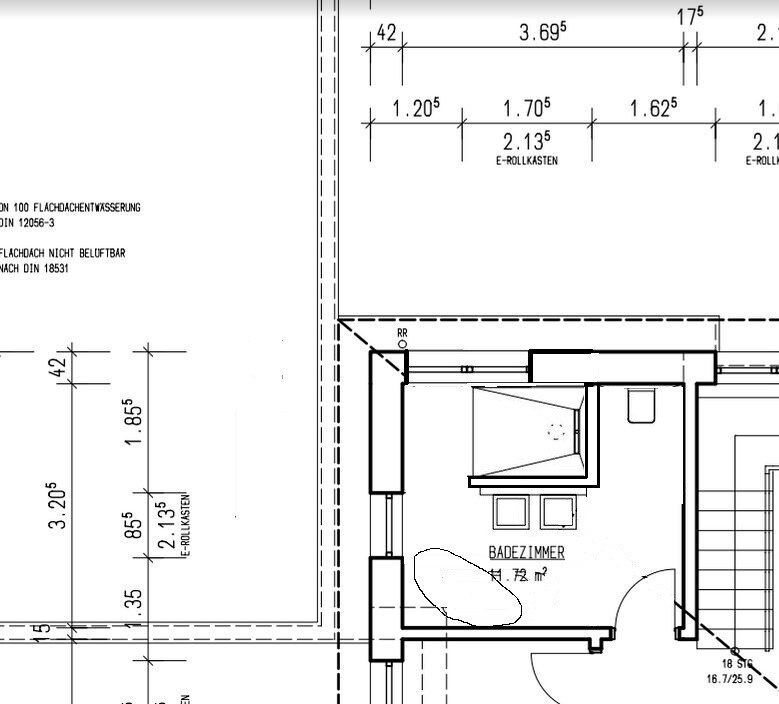
anbei 2 Bilder von unserem Hauptbad und Gästebad inkl. der Maße.
Die dort eingezeichneten Einrichtungen haben keine Gültigkeit. Wir wollen die Anordnung jetzt angehen und festlegen.
Dafür bin ich auf eure Ideen gespannt, da wir wahrscheinlich nicht an alles denken.
Die Fensterpositionen und Größen sind auch noch änderbar.
...

Vielen Dank
Viel Glück
anbei 2 Bilder von unserem Hauptbad und Gästebad inkl. der Maße.
Die dort eingezeichneten Einrichtungen haben keine Gültigkeit. Wir wollen die Anordnung jetzt angehen und festlegen.
Dafür bin ich auf eure Ideen gespannt, da wir wahrscheinlich nicht an alles denken.
Die Fensterpositionen und Größen sind auch noch änderbar.
Vielen Dank
Viel Glück
Also: Fensterüberschneidungen mit Duschen ist ja quasi schon ein Nogo.
Und mit dem Eintritt Blick auf Thron? Ich bin ja wahrlich nicht für Schamwände, aber als Eyecatcher muss ja nicht sein.
Soll das Ei eine Wanne sein? Das reicht nicht mit der Wandlänge!
Aber als erstes: für wieviel Personen sollen denn die Bäder ausgerichtet sein?
Für weitere Diskussionen sollte mehr als nur der Badausschnitt gezeigt werden.
Und mit dem Eintritt Blick auf Thron? Ich bin ja wahrlich nicht für Schamwände, aber als Eyecatcher muss ja nicht sein.
Soll das Ei eine Wanne sein? Das reicht nicht mit der Wandlänge!
Aber als erstes: für wieviel Personen sollen denn die Bäder ausgerichtet sein?
Für weitere Diskussionen sollte mehr als nur der Badausschnitt gezeigt werden.
T
TheMikka12307.03.23 13:55Danke. Ja das Ei soll eine Wanne sein, da wir gerne in diesem Bad eine freistehende hätten. Nicht sonderlich weit im raum, sondern nur nicht eingemauert. Kann also ruhig nah an der Wand stehen.
Und ja das Fenster oben kann noch schmaler gemacht werden, damit es nicht soweit in die Dusche reicht. Aber Tageslicht in der Dusche sollte schon sein. Da gibt es keine Einblickmöglichkeiten von außen oder Sichtschutz. Ja das mit der Toilette direkt gegenüber der Türe gefällt mir auch nicht, aber deswegen ja hier die Frage nach Anregungen.
Aktuell alles für 2 Personen, aber soll auch für 2 Erwachsene und 2 Kinder ausreichend sein.
Und ja das Fenster oben kann noch schmaler gemacht werden, damit es nicht soweit in die Dusche reicht. Aber Tageslicht in der Dusche sollte schon sein. Da gibt es keine Einblickmöglichkeiten von außen oder Sichtschutz. Ja das mit der Toilette direkt gegenüber der Türe gefällt mir auch nicht, aber deswegen ja hier die Frage nach Anregungen.
Aktuell alles für 2 Personen, aber soll auch für 2 Erwachsene und 2 Kinder ausreichend sein.
H
hanghaus202307.03.23 14:08Das Gäste-WC bekommt hier eine Priorität die ich gern mal im Plan des EG sehen würde. So aufwändig hätte ich das nicht geplant.
H
hanghaus202307.03.23 19:01Ähnliche Themen