opalau schrieb:
Es mag an meinem mangelnden Elefantengedächtnis liegen, aber warst nicht du es der sie vorgeschlagen hatte?Genau, da: https://www.hausbau-forum.de/threads/grundrissplanung-für-unser-Einfamilienhaus-efh-in-sh.28569/page-16#post-278074 - aber in Deinem Haus, und ich hoffe doch, daß das so umgesetzt wird https://www.instagram.com/11antgmxde/
https://www.linkedin.com/company/bauen-jetzt/
11ant schrieb:
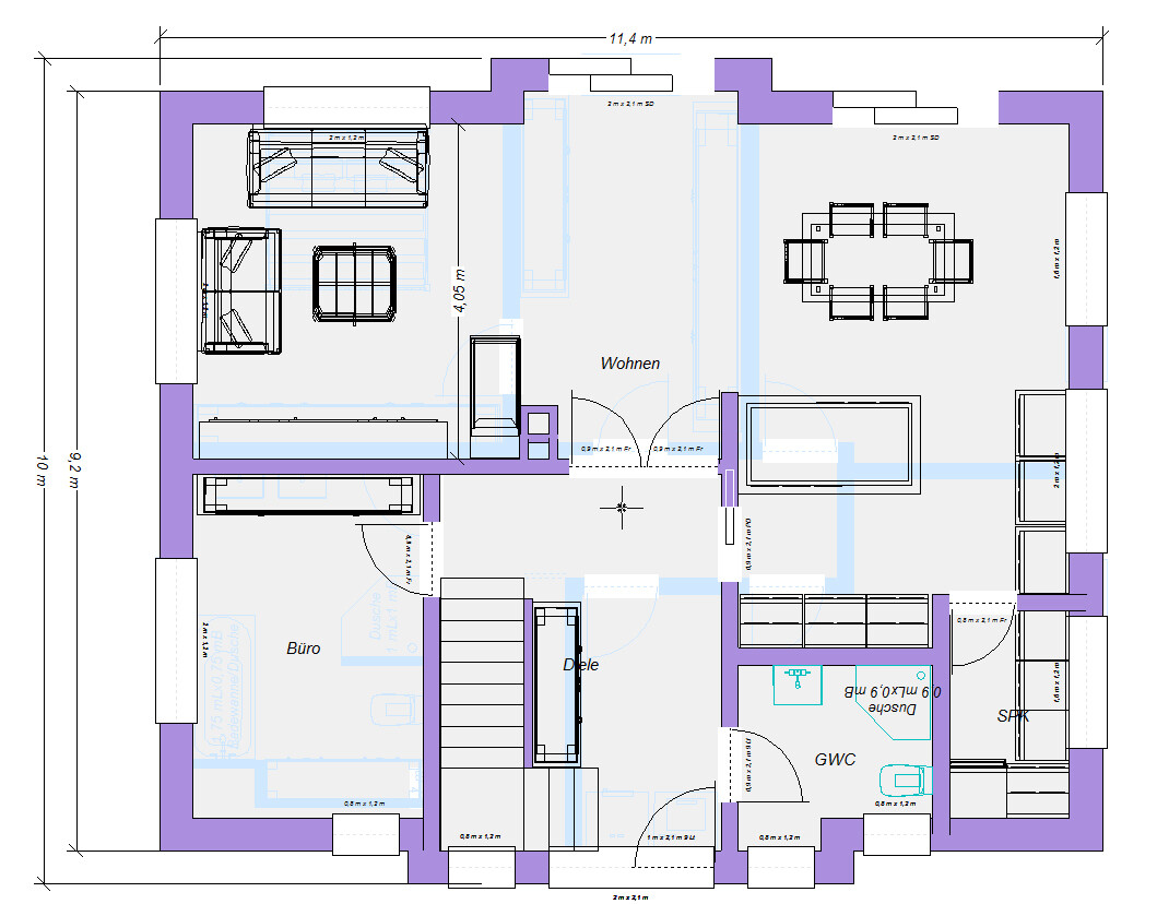
Genau, da: https://www.hausbau-forum.de/threads/grundrissplanung-für-unser-Einfamilienhaus-efh-in-sh.28569/page-16#post-278074 - aber in Deinem Haus, und ich hoffe doch, daß das so umgesetzt wird Ich weiß! Ich hab das Haus da rum geplant.Eine Standard-Variante mit m.E. optimaler Platzausnutzung, wenn man sich nicht daran stört, dass der Treppenantritt neben dem Eingang ist (Treppe keine Podest - wie immer).


Es gibt ähnliche Grundrisse sehr viele. Manchmal muss man nur einen Raum tauschen und hat das gewünschte Ergebnis. Bei diesen Standards gibt es oft auch noch den ein oder anderen Zentimeter, den man einsparen könnte, falls der Wunsche besteht, kleiner zu bauen.
Es gibt ähnliche Grundrisse sehr viele. Manchmal muss man nur einen Raum tauschen und hat das gewünschte Ergebnis. Bei diesen Standards gibt es oft auch noch den ein oder anderen Zentimeter, den man einsparen könnte, falls der Wunsche besteht, kleiner zu bauen.
kaho674 schrieb:
Eine Standard-Variante mit m.E. optimaler Platzausnutzung, wenn man sich nicht daran stört, dass der Treppenantritt neben dem Eingang ist (Treppe keine Podest - wie immer)Treppenaufgang in der Schmutzzone, das wird doch sonst immer verteufelt hier (zu Recht wenn ich mir den Dreck hinter der Haustür bei uns angucke, den möchte ich nicht auf die Treppe schleppen...)
Müllerin schrieb:
Treppenaufgang in der Schmutzzone, das wird doch sonst immer verteufelt hier (zu Recht wenn ich mir den Dreck hinter der Haustür bei uns angucke, den möchte ich nicht auf die Treppe schleppen...)Nicht von mir - aber ja, da gibt es manche, die das nicht verkraften. Deswegen hab ich extra dazu geschrieben. Ist bei Satteldach und Keller aber eben eine sehr platzsparende Variante und schafft ne Menge Zusatzraum im WZ, wie man hoffentlich sieht. Wir haben den Antritt auch neben der Tür und gar keine Probleme damit. Haben aber draußen nen ordentlichen Abtreter.
Ähnliche Themen