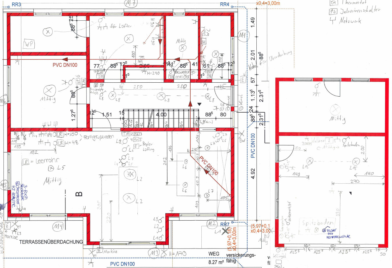
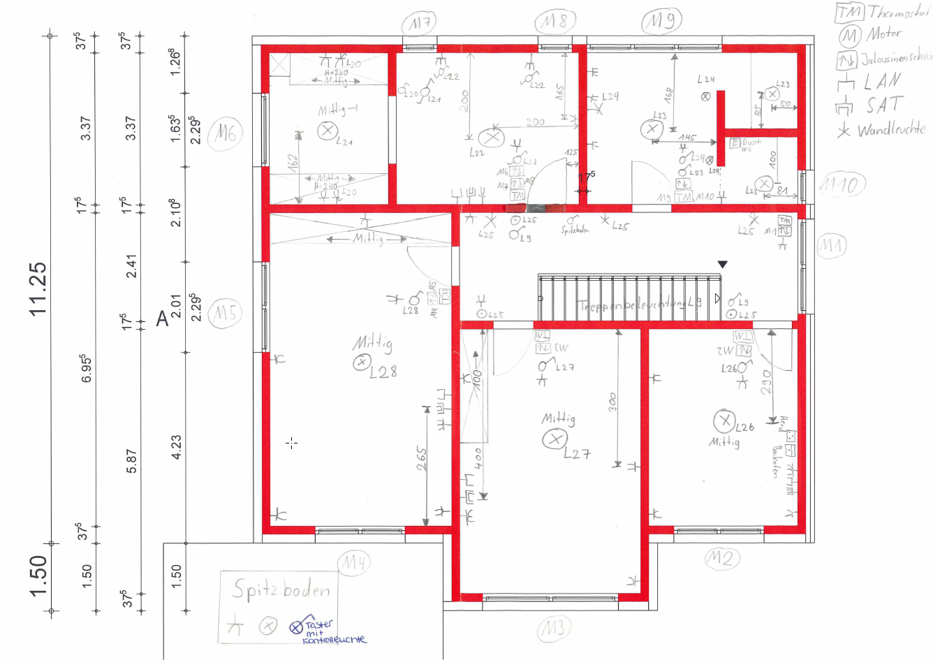
ᐅ Grundriss Einfamilienhaus 240m², 2 Vollgeschosse ohne Keller, Massiv
Erstellt am: 12.11.23 13:40
H
Haus LuniH
Haus Luni23.05.24 10:05S
Schorsch_baut23.05.24 10:39Ich frag trotzdem noch einmal nach - Ihr baut 260 qm plus Garage wie geplant für 550.000 Euro inklusiver aller Baunebenkosten? Das wäre selbst vor der Baukrise nur in einer Standardausstattung möglich gewesen. Es wäre echt interessant zu wissen, ob derartige qm Preise heute noch möglich sind, ohne extrem viel Eigenleistung - und damit meine ich jetzt nicht die planerische Eigenleistung. Total spannend. Wir haben für unseren geplanten Anbau auf Bodenplatte, also ohne Haustechnik, minimum 2600-2800 Euro/ qm genannt bekommen.
H
Haus Luni23.05.24 11:39Ja richtig soweit. Ein ausführliches Hausbautagebuch, wo man sieht was wir so machen, wäre sicherlich ziemlich interessant. Leider habe ich nicht die Zeit um so was zu führen.
Wir bauen ziemlich viel mit kleinen Vater/Sohn Betrieben und mussten schon recht viel suchen bis, wir geeignete Firmen gefunden haben die uns Qualität liefern, günstig sind und uns auch mitarbeiten lassen.

Wir bauen ziemlich viel mit kleinen Vater/Sohn Betrieben und mussten schon recht viel suchen bis, wir geeignete Firmen gefunden haben die uns Qualität liefern, günstig sind und uns auch mitarbeiten lassen.
N
nordanney23.05.24 16:13Schorsch_baut schrieb:
Wir haben für unseren geplanten Anbau auf Bodenplatte, also ohne Haustechnik, minimum 2600-2800 Euro/ qm genannt bekommen.Anbau = klein = hohe qm-KostenHier: großes Haus und viel Eigenleistungen. Wenn Du diese rausrechnest, wirst Du wieder auf die hier im Forum immer genannten +/- 3.000€/qm Baukosten + das ganze Drumherum kommen.
H
Haus Luni08.07.24 14:43Hallo zusammen,
ich möchte euch hiermit ein Update geben, um euch auf dem Laufenden zu halten.
Die Fenster sind eingebaut und aktuell wird das Haus von innen verputzt. In zwei Wochen kommt der Estrich rein. Alles läuft weitgehend nach Plan, auch kostenmäßig sind wir im Rahmen geblieben.
Ein paar Kommentare zu den Gewerken:
Rohbau:
Wir haben eine gute und kooperative Firma beauftragt. Wir haben vereinbart, dass wir die Garage selbst mauern können und Werkzeuge von der Firma nutzen durften. Das hat größtenteils gut funktioniert, war aber auch anstrengend und zeitlich knapp. Einmal ist uns beinahe eine Ecke umgefallen, was ziemlich blöd war und mir einen Schrecken eingejagt hat. Am Ende ist jedoch alles gut gegangen. Die Kosten sind um 4.000€ gestiegen, da wir einige kurzfristige Änderungen vorgenommen haben.
Dachstuhl: Der Dachstuhl wurde von der Firma aufgestellt. Beim Verlegen der Ziegel waren ein Mitarbeiter der Firma und vier Helfer beteiligt. Das lief sehr gut, trotz des schlechten Wetters. Wir haben uns entschieden, die Dämmung kurzfristig selbst zu besorgen und zu verlegen, was uns 4.000€ eingespart hat. Mit zwei Helfern haben wir eine Woche dafür gebraucht.
Haustechnik:
Wir mussten alle Stemmarbeiten selbst übernehmen, einen Meterriss anbringen und markieren, wo alles hinkommen soll. Dabei ist mir aufgefallen, dass Haustechniker und Elektriker häufig bevorzugen, Aufputz zu arbeiten und sagen: "Ja, das kannst du dann verkleiden." Zum Glück habe ich alle Aufputz-Arbeiten verboten und die Stemmarbeiten selbst durchgeführt. Trockenbau dauert länger und kostet mehr als ein paar Schlitze in die Mauer zu machen. Ich kann nur empfehlen, jede Vorwand- und Trockenbau-Arbeit zu vermeiden. Hier ist oft Eigeninitiative gefragt, da die Firmen das nicht von selbst vorschlagen.
Elektrik: Der Elektriker kostet mir bisher die meisten Nerven. Ich muss ihn stark unterstützen und betreuen. Er war jedoch der günstigste und trotz der Probleme würde ich ihn vermutlich wieder wählen, aufgrund des enormen Preisunterschieds zu anderen Elektrikern. Mittlerweile kann ich auch echt nicht nachvollziehen warum die Elektrik allgemein so teuer ist.
Fenster:
Hier haben wir wenig selbst gemacht, alles lief über die Firma. Es gab nur einen Lieferverzug bei den Fenstern. Leider habe ich die Innen Fensterbänke ich komplett vergessen, aber das konnte schnell gelöst werden. Eine Schleiferei in der Nähe hat mir innerhalb einer Woche die passenden Fensterbänke aus Granit geliefert, die ich dann mit einem Helfer in einem Tag gesetzt habe.
Verputzen:
Für den Verputzer hatte ich einige Vorbereitungen nicht bedacht. Der Verzug bei den Fenstern hat mir jedoch Zeit gegeben, diese nachzuholen. Trockenbau für die Vorwände und weitere kleinere Arbeiten konnte ich erledigen. Die Garagenabdichtung haben wir selbst übernommen, was teurer war, da die Firma eine starre Dichtschlämme verwenden wollte. Mir persönlich gefiel die flexible Variante besser, aber diese war deutlich teurer.
Mein bisheriges Fazit:
Es gibt immer viel zu tun und fleißige Helfer sind unerlässlich. Die Freizeitplanung ist schwierig, da man die Tage nehmen muss, wie sie kommen. Die Arbeit zu zweit ist effizienter; alleine benötigt man deutlich mehr Zeit. Gutes Planungs- und Zeitmanagement ist entscheidend, ebenso wie eine gute Kommunikation mit den Firmen. Man sollte nicht alles ungeprüft hinnehmen, was gesagt wird. Manchmal wird Pfusch als gut deklariert, manchmal werden Dinge als heikel eingestuft, was im Nachhinein nicht immer zutrifft.
ich möchte euch hiermit ein Update geben, um euch auf dem Laufenden zu halten.
Die Fenster sind eingebaut und aktuell wird das Haus von innen verputzt. In zwei Wochen kommt der Estrich rein. Alles läuft weitgehend nach Plan, auch kostenmäßig sind wir im Rahmen geblieben.
Ein paar Kommentare zu den Gewerken:
Rohbau:
Wir haben eine gute und kooperative Firma beauftragt. Wir haben vereinbart, dass wir die Garage selbst mauern können und Werkzeuge von der Firma nutzen durften. Das hat größtenteils gut funktioniert, war aber auch anstrengend und zeitlich knapp. Einmal ist uns beinahe eine Ecke umgefallen, was ziemlich blöd war und mir einen Schrecken eingejagt hat. Am Ende ist jedoch alles gut gegangen. Die Kosten sind um 4.000€ gestiegen, da wir einige kurzfristige Änderungen vorgenommen haben.
Dachstuhl: Der Dachstuhl wurde von der Firma aufgestellt. Beim Verlegen der Ziegel waren ein Mitarbeiter der Firma und vier Helfer beteiligt. Das lief sehr gut, trotz des schlechten Wetters. Wir haben uns entschieden, die Dämmung kurzfristig selbst zu besorgen und zu verlegen, was uns 4.000€ eingespart hat. Mit zwei Helfern haben wir eine Woche dafür gebraucht.
Haustechnik:
Wir mussten alle Stemmarbeiten selbst übernehmen, einen Meterriss anbringen und markieren, wo alles hinkommen soll. Dabei ist mir aufgefallen, dass Haustechniker und Elektriker häufig bevorzugen, Aufputz zu arbeiten und sagen: "Ja, das kannst du dann verkleiden." Zum Glück habe ich alle Aufputz-Arbeiten verboten und die Stemmarbeiten selbst durchgeführt. Trockenbau dauert länger und kostet mehr als ein paar Schlitze in die Mauer zu machen. Ich kann nur empfehlen, jede Vorwand- und Trockenbau-Arbeit zu vermeiden. Hier ist oft Eigeninitiative gefragt, da die Firmen das nicht von selbst vorschlagen.
Elektrik: Der Elektriker kostet mir bisher die meisten Nerven. Ich muss ihn stark unterstützen und betreuen. Er war jedoch der günstigste und trotz der Probleme würde ich ihn vermutlich wieder wählen, aufgrund des enormen Preisunterschieds zu anderen Elektrikern. Mittlerweile kann ich auch echt nicht nachvollziehen warum die Elektrik allgemein so teuer ist.
Fenster:
Hier haben wir wenig selbst gemacht, alles lief über die Firma. Es gab nur einen Lieferverzug bei den Fenstern. Leider habe ich die Innen Fensterbänke ich komplett vergessen, aber das konnte schnell gelöst werden. Eine Schleiferei in der Nähe hat mir innerhalb einer Woche die passenden Fensterbänke aus Granit geliefert, die ich dann mit einem Helfer in einem Tag gesetzt habe.
Verputzen:
Für den Verputzer hatte ich einige Vorbereitungen nicht bedacht. Der Verzug bei den Fenstern hat mir jedoch Zeit gegeben, diese nachzuholen. Trockenbau für die Vorwände und weitere kleinere Arbeiten konnte ich erledigen. Die Garagenabdichtung haben wir selbst übernommen, was teurer war, da die Firma eine starre Dichtschlämme verwenden wollte. Mir persönlich gefiel die flexible Variante besser, aber diese war deutlich teurer.
Mein bisheriges Fazit:
Es gibt immer viel zu tun und fleißige Helfer sind unerlässlich. Die Freizeitplanung ist schwierig, da man die Tage nehmen muss, wie sie kommen. Die Arbeit zu zweit ist effizienter; alleine benötigt man deutlich mehr Zeit. Gutes Planungs- und Zeitmanagement ist entscheidend, ebenso wie eine gute Kommunikation mit den Firmen. Man sollte nicht alles ungeprüft hinnehmen, was gesagt wird. Manchmal wird Pfusch als gut deklariert, manchmal werden Dinge als heikel eingestuft, was im Nachhinein nicht immer zutrifft.
Ähnliche Themen