ᐅ Grundriss Einfamilienhaus 1 Vollgeschoss Technik und Tageslicht
Erstellt am: 22.07.24 08:21
K
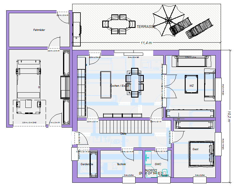
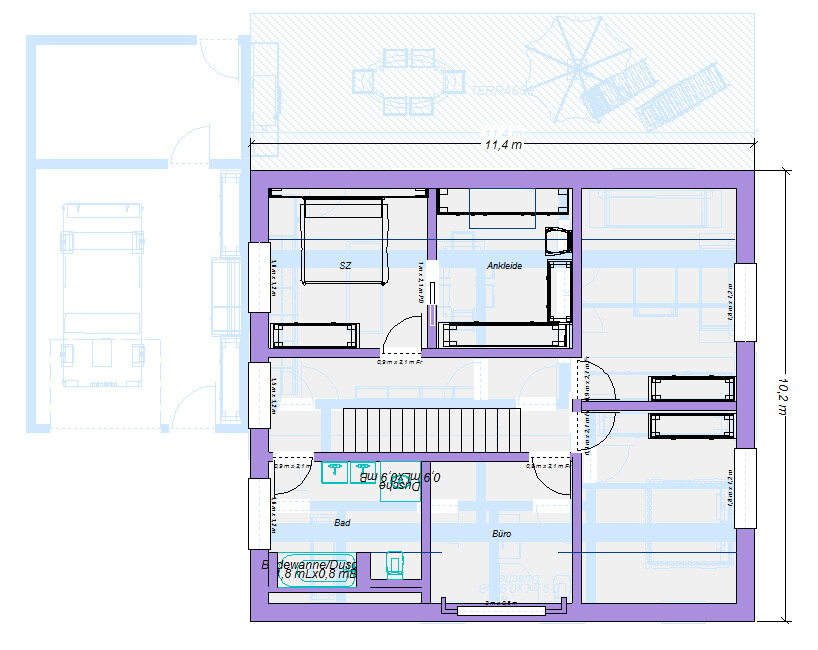
klabauter8614Hier die Option mit der Treppe horizontal zum Plan. Ich habe dem Haus mal mehr Tiefe gegeben und dafür in der Breite geschrumpft. 10,20m dürfte nahe am Maximum sein, um die 9,50m Firsthöhe einzuhalten bei den gegebenen Maßen. Kommt auf die Stärke des Daches an. Die kennt nur Dein GU.
Das Ganze hätte gleich mehrere Vorteile, z.B.:






Das Ganze hätte gleich mehrere Vorteile, z.B.:
- gerade Treppe - für viele die Lieblingstreppe,
- kann die Spitze über die gleiche Treppenposition erschlossen werden.
- hat die Spitze mehr Stehhöhe und könnte ein echtes zusätzliches Zimmer beherbergen (mit richtigen Türen).
- im EG kann Deine Kochinsel breiter sein (eingezeichnet sind 2,10m x 0,80m).
- rechteckiger Baukörper ohne Vorsprünge spart Kosten.
11ant schrieb:
Wechsele den Planer aus, das wird die höchstperformante Investition Deines Lebens. Hat der überhaupt jemals zu Gesicht bekommen, welche Gegenvorschläge beispielsweise Katja gemacht hat ?
Mit Patches kommt man nicht weiter. Über den Vorentwurf muß Einigkeit bestehen, bevor er zum Entwurf weiter destilliert wird.Bedauerlicherweise sind hier wie von Geisterhand - hheh - Betonungen verschwunden, sinnentstellende Mutationen waren bereits beim letzten Mal ein wesentlicher Mitgrund meiner Demission. Ich betone daher hier nochmals, daß ich die Auswechselung des Planers für dringend geboten halte, um das Projekt zu retten, bevor das Kind im Brunnen ist. Die jüngsten Pläne in Beitrag #78 lassen mich begründet zweifeln, daß Gegenvorschläge (hauptsächlich von Katja) jemals vom Planer wahrgenommen worden sind. In Taube Ohren braucht man aber nichts weiterzusagen, das kann man sich sparen.
Auch sollte nicht weniger als Einigkeit über den Vorentwurf herrschen, bevor der Entwurf erarbeitet wird.
Ein "Vorentwurf" ist wohlgemerkt kein "Entwurf, auf dessen Besserung man noch hofft", sondern ein eigenständiges Planungsstadium, das wenn es ausgelassen wird, sich im und am Ergebnis gründlich rächt.
https://www.instagram.com/11antgmxde/
https://www.linkedin.com/company/bauen-jetzt/
K a t j a schrieb:
Hier die Option mit der Treppe horizontal zum Plan. Ich habe dem Haus mal mehr Tiefe gegeben und dafür in der Breite geschrumpft.Der "Planer" soll das fehlerfrei abmalen und fertig. Zumindest meinen Stempel bekäme es.https://www.instagram.com/11antgmxde/
https://www.linkedin.com/company/bauen-jetzt/
K
klabauter861420.08.24 16:35K a t j a schrieb:
Ach ja, wenn Du die Pläne einstellst, versuche mal die Bemaßung nicht abzuschneiden. Das ist ungünstig.Jo habe ich auch gemerkt. Hier mal alle.K
klabauter861420.08.24 21:0111ant schrieb:
Meine Frage ging danach, welche Entwurfsversion mit diesem "vorher" gemeint sei, wie das Du das EG zu belassen dachtest.
Die Corona-Lockdowns sind vorüber, niemand muß mit seinem Planer Videokonferenzen machen, und Mißverständnis-Pingpong schon gar nicht. Mit der Überbauung meinte ich, daß Hauseinführungen unter dem Garagenboden in das Heizungskabuff hinter der Garage mit derselben überbaut wären. Wenn das schon klar ist und der Planer "nur" dennoch eine völlig andere Welt einzeichnet, gibt das spätestens bei der Ausführung Ärger. Niemand braucht Pläne, die die Ausführenden von vornherein zu Improvisationen zwingen (von denen die nachfolgenden Gewerken nichts wissen, und an den Planstand anzuschließen versuchen).
Nein, heule nicht, sondern brülle (den Planer unangespitzt in den Boden), daß ihm seine Renitenz vergeht. Eine nach Deinem Geschmack gefühlte Nogo-Wand ist nur die Spitze des Eisberges, ich sehe hier schon ein (guckstdu Forensuche) "Fleischerhaus" kommen. Ich sehe hier reihenweise Gedankenlosigkeiten (und meine auch meine Warnung mit der Hühnerleiter-Bodentreppe ernst). Leitersprossen und Treppentrittstufen kann man nicht vergleichen. Wenn der Murks gebaut ist, wirst Du Dir wünschen, die "schlechtere" Variante gewählt zu haben.
Wechsele den Planer aus, das wird die höchstperformante Investition Deines Lebens. Hat der überhaupt jemals zu Gesicht bekommen, welche Gegenvorschläge beispielsweise Katja gemacht hat ?
Mit Patches kommt man nicht weiter. Über den Vorentwurf muß Einigkeit bestehen, bevor er zum Entwurf weiter destilliert wird.K a t j a schrieb:
Nö, da fehlen 7cm beim Kniestock und bis zum First hättest Du noch satte 37cm. Aber ok, das ist für eine Idee erstmal nicht entscheidend. Ich finde den Entwurf jetzt nicht total gruselig. Einige Punkte hast Du ja schon selbst genannt. Mich stört vor allem die Haupttreppe, 19,5er Steigung muss wohl ein Scherz sein. Bei der Treppe mal eben eine Stufe mehr geht oft schlecht - die sollte von Anfang an passen. Die Stiege zur Spitze hatten wir ja schon diskutiert. Mit der Aussage
hilfst Du niemanden. Entscheidet Euch! Ist das so ok? Wie genau soll die Erschießung der Spitze aussehen? Sie wurde ja mal wieder nicht gezeigt. Soll unten eine Tür davor oder wie soll die thermische Abgrenzung erfolgen? Wollt Ihr den Dachboden immer komplett mit heizen? Das kann es nicht sein oder? Ohne klare Ansage, wirst Du auch kein sinnvolles Ergebnis bekommen.
Die Räume oben sind ja schon recht klar aufgeteilt. Wenn Du das Büro in den Norden schiebst, bleibt für die Treppe nur noch der Süden. Dann wäre sie unten im Wohnzimmer. Das wäre ja Mist. Man könnte nochmal mit einer horizontalen Anordnung rumprobieren... k.A. obe das Sinn hat.
Ich hatte es m.E. schon mal erwähnt, dass Ihr mit einer Klappleiter an einer Luke in die Spitze vermutlich den Platz besser nutzt. Allerdings ist die Hühnerstiege Eures Planers ja schon vergleichbar.11ant schrieb:
Ich betone daher hier nochmals, daß ich die Auswechselung des Planers für dringend geboten halte, um das Projekt zu retten, bevor das Kind im Brunnen ist. Die jüngsten Pläne in Beitrag #78 lassen mich begründet zweifeln, daß Gegenvorschläge (hauptsächlich von Katja) jemals vom Planer wahrgenommen worden sind. In Taube Ohren braucht man aber nichts weiterzusagen, das kann man sich sparen.
Auch sollte nicht weniger als Einigkeit über den Vorentwurf herrschen, bevor der Entwurf erarbeitet wird.
Ein "Vorentwurf" ist wohlgemerkt kein "Entwurf, auf dessen Besserung man noch hofft", sondern ein eigenständiges Planungsstadium, das wenn es ausgelassen wird, sich im und am Ergebnis gründlich rächt.Also es wurden folgende Absprachen getroffen:- OG Aufteilung sollte so bleiben wie im Ursprungspost, also 2 KZ rechts, Büro Nord, Schlafzimmer und Bad links. Und Büro im Norden nur als Option wegen der Aufheizung/störendes Sonnenlicht auf dem Bildschirm im Süden. Wenn es einen sinnvollen Weg gibt, das im Süden zu vermeiden (außer Rolllade den ganzen Tag unten zu haben), kann das Büro auch gerne in den Süden wie in #39.
- DG muss Möglichkeit für Stauraum bieten, also minimal Zugang über eine Luke, darf auch mit fester Treppe als Spielraum genutzt werden. Muss dann halt thermisch abgeschirmt werden.
- Es sollten zwei Skizzen in wenigen Tagen gemacht werden, um Einigkeit über den Vorentwurf zu erlangen. Dann erst wieder einen vollständigen Entwurf machen.
- Treppe sollte mit min. 16 Stufen mit ca. 17/29 oder max 18/27 geplant werden, und alle Technik in die thermische Hülle.
- Dann auf Basis der Skizzen zusammensetzen und diesen in 1-2 Terminen in einen zufriedenstellenden Vorentwurf weiterentwickeln, und das Ganze dann halt komplett als Entwurf zeichnen.
So und aus einem magischen Grund sind diese Dinge nicht umgesetzt worden, das sieht mir eher nach internem Kommunikationsproblem aus (musste ja wieder mehrere Wochen warten und habe nur 1 Entwurf). Diese Woche haben wir noch einen Termin, und dann werden wir die Zeit für einen vernünftigen Vorentwurf (auch dank der tapferen Hilfe von @K a t j a und @ypg ) machen. Und wenn das noch nicht nach Zufriedenheit klappt, dann erwäge ich wohl einen Wechsel. Eigentlich wollte ich ja auch noch eine Ausführungsplanung (da) machen, um die tollen Erfahrungen der anderen Bauherren in der Umgebung zu vermeiden (die meisten beauftragen einen Planer nur bis zum Bauantrag und fragen dann mit den Genehmigungsplänen bei vielen GU's an, gab natürlich Tag und Nacht Angebote).
Frage: Stärke des Daches kennt nur der GU? Wird sowas nicht bei der Ausführungsplanung festgelegt?
Ähnliche Themen