Hallo zusammen und ein frohes Neues.
Eine ganze Weile lese ich schon fleißig mit, da es bei mir (33) und meiner Partnerin (31) jetzt mit dem Hausbau losgehen soll.
Seit ein paar Wochen sitze ich nun über dem Grundriss und hätte gerne ein paar Meinungen dazu, eventuell seht Ihr ja noch Verbesserungspotential.
Norden ist in der Grundstückszeichnung oben.
Bebauungsplan/Einschränkungen
Größe des Grundstücks – 754 qm im Norden von M-V
Grundflächenzahl – 0,25
Baufenster, Baulinie und –grenze – 17x20m
Randbebauung – Garage auf Grundstücksgrenze
Anzahl Stellplatz - 2
Geschossigkeit – 1 Vollgeschoss
Dachform – 25° Walmdach gem. Bebauungsplan
Stilrichtung – Bungalow gem. Bebauungsplan
Maximale Höhen/Begrenzungen – Traufe 4,2 über Straßendeckschicht
Anforderungen der Bauherren
Keller, Geschosse – kein Keller, aber DG ausbaufähig mit Kniestock ca. 1m
Anzahl der Personen, Alter – 2 Personen, erstes Kind im Juli, zweites irgendwann geplant
EG Küche, Wohnen, Bad, Elternschlafzimmer, kleines Gästezimmer/Büro
OG Kinderzimmer
Hauswirtschaftsraum an Wohnzimmer angrenzend, da in die Wand ein Aquarium eingebaut werden soll.
Essplätze bis zu 8
Kamin
Garage, Carport doppel
Hausentwurf
Von wem stammt die Planung:
-Do-it-Yourself von Euch
Persönliches Preislimit fürs Haus, inkl Ausstattung: 180k
favorisierte Heiztechnik: Gasbrennwerttherme + Kontrollierte-Wohnraumlüftung
Viel Glück Kai
Eine ganze Weile lese ich schon fleißig mit, da es bei mir (33) und meiner Partnerin (31) jetzt mit dem Hausbau losgehen soll.
Seit ein paar Wochen sitze ich nun über dem Grundriss und hätte gerne ein paar Meinungen dazu, eventuell seht Ihr ja noch Verbesserungspotential.
Norden ist in der Grundstückszeichnung oben.
Bebauungsplan/Einschränkungen
Größe des Grundstücks – 754 qm im Norden von M-V
Grundflächenzahl – 0,25
Baufenster, Baulinie und –grenze – 17x20m
Randbebauung – Garage auf Grundstücksgrenze
Anzahl Stellplatz - 2
Geschossigkeit – 1 Vollgeschoss
Dachform – 25° Walmdach gem. Bebauungsplan
Stilrichtung – Bungalow gem. Bebauungsplan
Maximale Höhen/Begrenzungen – Traufe 4,2 über Straßendeckschicht
Anforderungen der Bauherren
Keller, Geschosse – kein Keller, aber DG ausbaufähig mit Kniestock ca. 1m
Anzahl der Personen, Alter – 2 Personen, erstes Kind im Juli, zweites irgendwann geplant
EG Küche, Wohnen, Bad, Elternschlafzimmer, kleines Gästezimmer/Büro
OG Kinderzimmer
Hauswirtschaftsraum an Wohnzimmer angrenzend, da in die Wand ein Aquarium eingebaut werden soll.
Essplätze bis zu 8
Kamin
Garage, Carport doppel
Hausentwurf
Von wem stammt die Planung:
-Do-it-Yourself von Euch
Persönliches Preislimit fürs Haus, inkl Ausstattung: 180k
favorisierte Heiztechnik: Gasbrennwerttherme + Kontrollierte-Wohnraumlüftung
Viel Glück Kai
Aus eigener Erfahrung: bauen ist teuer.
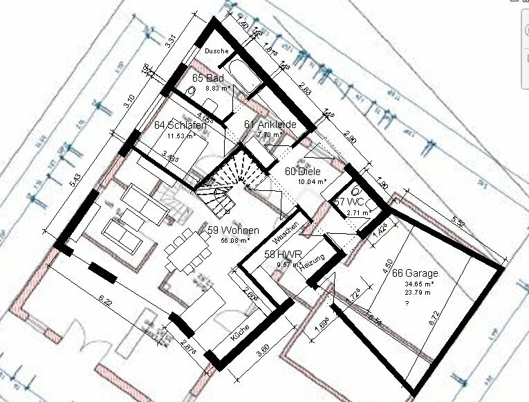
Hier noch mal mit Maßen (hoffe lesbar - Mauerbreiten Innenwände sind 14,5/19 wegen Putz) - etwas abgeänderte Garage bis an die 3 m Linie, aber so, dass sie nicht rausgelöst ist. Hauswirtschaftsraum hat nun auch ein bodentiefes Element, so dass man da gleich in den Garten bzw. in die Garage kann - wenn die Garage zu kurz ist, könnte man das Fensterelement im Hauswirtschaftsraum auch weiter nach unten setzen - hätte dann halt nicht mehr die Stellfläche unten)

Hier noch mal mit Maßen (hoffe lesbar - Mauerbreiten Innenwände sind 14,5/19 wegen Putz) - etwas abgeänderte Garage bis an die 3 m Linie, aber so, dass sie nicht rausgelöst ist. Hauswirtschaftsraum hat nun auch ein bodentiefes Element, so dass man da gleich in den Garten bzw. in die Garage kann - wenn die Garage zu kurz ist, könnte man das Fensterelement im Hauswirtschaftsraum auch weiter nach unten setzen - hätte dann halt nicht mehr die Stellfläche unten)
Hallo Forum,
wenn ich nochmal einen neuen Grundriss zum verurteilen einwerfen darf... 😀
Leider hat es auf Grund des B-Planes mit den Kinderzimmern im DG nicht geklappt, die Traufhöhe einfach nicht aus für vernünftige Zimmerhöhen.
Der neue Plan sieht vor unten 2 gleich große Schlafzimmer zu machen, in welchen zuerst wir und Kind schlafen, wenn das zweite Kind kommt, ziehen wir ins DG. Es sind mit den Bebauungsplan Vorgaben ca. 50 qm Wohnfläche oben möglich, da denke ich bekommt man gut Schlafzimmer und Duschbad unter. Daher stelle ich auch nur das EG ein.
Die freie Fläche links neben der WZ Tür ist für den Kamin reserviert.
Die gestellten Möbel (ausser dem Esstisch) sind in etwa das, was wir jetzt haben und mitnehmen werden. Wirkt auf mich aber leider ziemlich bescheiden... Vielleicht gibts ja bessere Vorschläge?
Zweite Frage, betrifft die Garage. Ich denke sie darf dort eher nicht errichtet werden. Laut Bebauungsplan sind diese ausserhalb des Baufensters nur im Bereich zwischen Straßenbegrenzungslinie und straßenseitiger Baugrenze zulässig (unter Einhaltung von 3m zur Straße). Leider ist die zuständige Mitarbeiterin im Bauamt erkrankt, so dass ich noch nicht fragen konnte. Hat jemand da zufällig mit Erfahrungen?
Viel Glück
wenn ich nochmal einen neuen Grundriss zum verurteilen einwerfen darf... 😀
Leider hat es auf Grund des B-Planes mit den Kinderzimmern im DG nicht geklappt, die Traufhöhe einfach nicht aus für vernünftige Zimmerhöhen.
Der neue Plan sieht vor unten 2 gleich große Schlafzimmer zu machen, in welchen zuerst wir und Kind schlafen, wenn das zweite Kind kommt, ziehen wir ins DG. Es sind mit den Bebauungsplan Vorgaben ca. 50 qm Wohnfläche oben möglich, da denke ich bekommt man gut Schlafzimmer und Duschbad unter. Daher stelle ich auch nur das EG ein.
Die freie Fläche links neben der WZ Tür ist für den Kamin reserviert.
Die gestellten Möbel (ausser dem Esstisch) sind in etwa das, was wir jetzt haben und mitnehmen werden. Wirkt auf mich aber leider ziemlich bescheiden... Vielleicht gibts ja bessere Vorschläge?
Zweite Frage, betrifft die Garage. Ich denke sie darf dort eher nicht errichtet werden. Laut Bebauungsplan sind diese ausserhalb des Baufensters nur im Bereich zwischen Straßenbegrenzungslinie und straßenseitiger Baugrenze zulässig (unter Einhaltung von 3m zur Straße). Leider ist die zuständige Mitarbeiterin im Bauamt erkrankt, so dass ich noch nicht fragen konnte. Hat jemand da zufällig mit Erfahrungen?
Viel Glück
Ähnliche Themen