ᐅ Grundriss, Bau bereits begonnen
Erstellt am: 07.09.20 13:46
Nachdem im Bilderthread der Wunsch aufgekommen ist, unseren Grundriss einsehen zu können, habe ich mich nun hingesetzt und die entsprechenden Bilder hier reingestellt.
Wie im Bilderthread bereits erwähnt, befindet sich das Haus bereits im Bau. Da ich erst Mitglied des Forums geworden bin, als der Bau begonnen hatte, gibt es von uns keinen klassischen Grundriss-Thread.
Es ist also zu spät, noch irgendwelche Änderungen vorzunehmen
Ich bitte also darum, gnädig zu sein und zu bedenken, dass man manches hätte anders machen können. Wir sind allerdings sehr zufrieden bis auf einige Kleinigkeiten.
Also Feuer frei^^
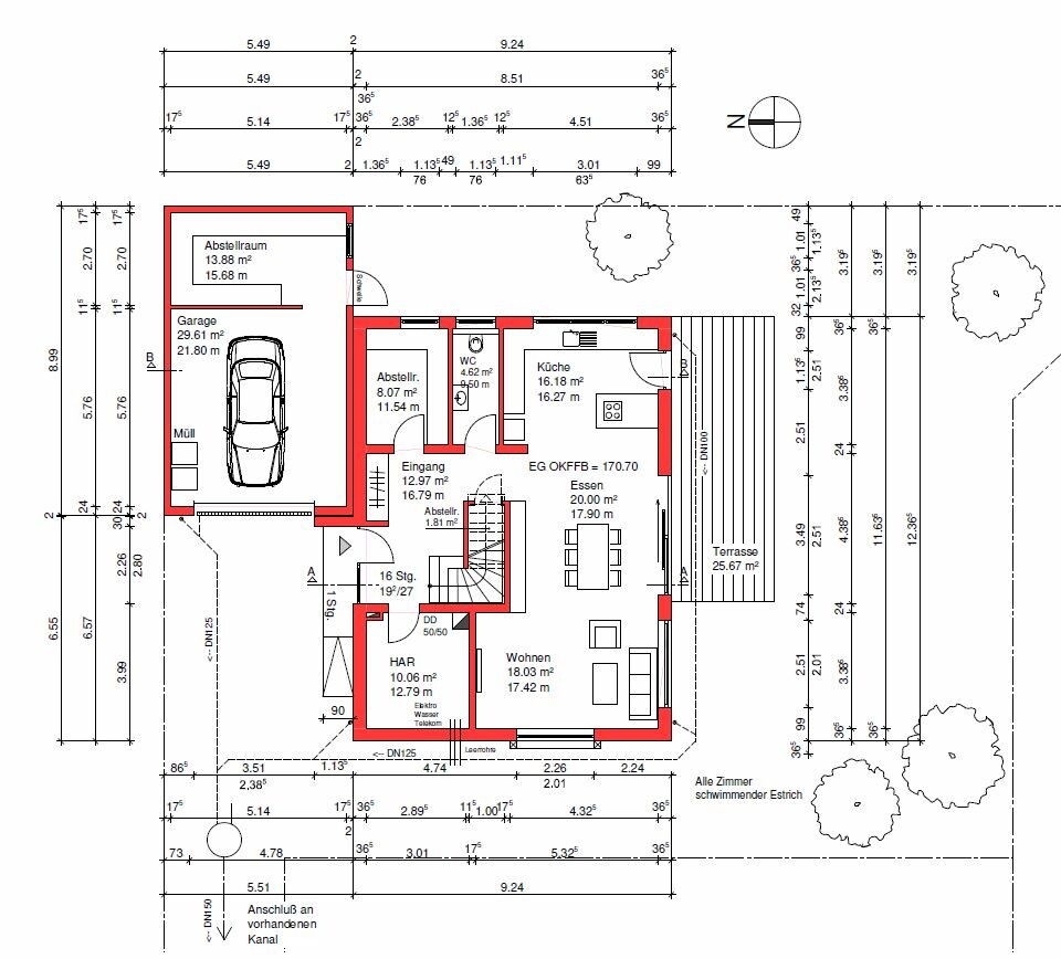
Grundstück, Norden Plan oben:

Erdgeschoss:

Obergeschoss:

Dachgeschoss:

Nord-/Ost-Ansicht:

Süd-/West-Ansicht:

Wie im Bilderthread bereits erwähnt, befindet sich das Haus bereits im Bau. Da ich erst Mitglied des Forums geworden bin, als der Bau begonnen hatte, gibt es von uns keinen klassischen Grundriss-Thread.
Es ist also zu spät, noch irgendwelche Änderungen vorzunehmen
Ich bitte also darum, gnädig zu sein und zu bedenken, dass man manches hätte anders machen können. Wir sind allerdings sehr zufrieden bis auf einige Kleinigkeiten.
Also Feuer frei^^
Grundstück, Norden Plan oben:
Erdgeschoss:
Obergeschoss:
Dachgeschoss:
Nord-/Ost-Ansicht:
Süd-/West-Ansicht:
A
Alessandro07.09.20 14:02gefällt mir gut!
Vor allem dass du zu Halloween dein Kind erschrecken kannst wenn du über das Dachgeschoss in das Kinderzimmer einsteigst
Vor allem dass du zu Halloween dein Kind erschrecken kannst wenn du über das Dachgeschoss in das Kinderzimmer einsteigst
Alessandro schrieb:
gefällt mir gut!
Vor allem dass du zu Halloween dein Kind erschrecken kannst wenn du über das Dachgeschoss in das Kinderzimmer einsteigst Hehe, irgendwie muss ich ja überprüfen, mit welchem Herren die Dame später verkehrt, sollte es mir nicht gelingen, ihn schon an der Haustür zu vernehmen.Tatsächlich mussten wir das so machen, wegen dem Fluchtweg übers Dach. Sonst hätten wir ein zweites Dachfenster verbauen müssen.
A
Alessandro07.09.20 14:27einzig im Badezimmer würde mich die Fenster in den Duschen stören. Das im Hauptbad hätte ich gegen ein Doppelflügelfenster getauscht
Ähnliche Themen