ᐅ Grundriss 166qm Stadtvilla mit zwei Vollgeschossen, 655qm Grundstück
Erstellt am: 06.02.25 11:55
S
Sawdust@11ant , ich verstehe leider nur Bahnhof bei deinem Beitrag, aber ich danke dir trotzdem für deine Infos. Ich werde mich mit dem Thema mal beschäftigen und das bei der Architektin auch noch einmal ansprechen.
Danke auch nochmal für die Übersicht der Pläne!
@K a t j a Danke für deine Gedanken!
Die Treppenrichtung finden wir nicht nur wegen des Drecks am Eingang besser, sondern auch praktischer weil man einfach öfter vom Wohnzimmer hoch- und runterläuft, als von der Haustür. Optisch sieht es auch schöner aus, wenn man vom Allraum durch die Glastür schaut. Mit der Tür hast du aber vollkommen recht, tatsächlich überlegen wir nur den rechten Flügel zugänglich zu machen oder vllt eine Schiebetür Lösung zu wählen. Der Flur ist tatsächlich etwas lang, aber ihn zu kürzen würde nicht viel bringen. Uns gefällt zum einen, dass es die Küchenzeile rechts etwas "einschließt" und dass links die TV/Beamer Wand dadurch lang genug ist. Wenn man die kürzt haut das leider nicht mehr hin. Unsere aktuelle Idee wäre deshalb tatsächlich noch ein breiter Erker zur Terrassenseite. Das würde den L-Raum großzügiger machen und die Engstelle an der Tür entschärfen.
Das Carport ist in dem Lageplan tatsächlich blöd eingezeichnet. Das soll natürlich direkt ans Haus mit ran. Licht verlieren wir da sowieso nicht, da das Carport an der Nordseite steht und wir da im EG eh keine Fenster haben. Glaub da hast du dich mit den Richtungen etwas verirrt beim Plan lesen. Bad im Süden ist vllt wirklich etwas sinnlos aber ich sehe keinen besseren Platz leider.
Zu der Anordnung der Räume:
-Der Technikraum muss oben links sein, aufgrund der Position der Hausanschlüsse. Find ich aber auch gut, weil eh Nord-Ostseite.
-Das Büro hätten wir gern auf der Ostseite wegen morgenlicht und da finden wir auch das Eckfenster gut.
-Die Küche wollen wir zum einen mit Terrassenausgang haben und zum anderen im Süden, damit sie viel Licht bekommt. Tagsüber ist das bei uns mit dem Esstisch der häufigste Aufenthaltsort.
-Die Wohnzimmerecke kann ruhig etwas abgeschattet sein, da man da eh nur gestört ist von Sonne bzw. wir eh nur Abends dort verbringen. Da war uns dann wichtig den Blick nach draußen Richtung Westen zu haben.
-Da bleibt quasi nur noch der Platz für das Bad, da wo es jetzt ist. Hat auch den Vorteil, dass man nicht durch den Schmutzbereich muss, wenn man mal aufs Klo will.
Das waren diesbezüglich unsere Ideen. Wäre natürlich toll, wenn man den Grundriss optimieren kann und diese Wünsche trotzdem irgendwie erfüllen kann.
Zum OG:
Ja, mit dem Abstellraum hast du Recht. Der ist wirklich sehr klein. Ich dachte halt, lieber ein kleiner Raum für Putzmittel, Klopapier und Staubsauger, als gar kein Raum? Auch hier, bin ich aber für jede Optimierungsidee dankbar!
Und ja, die Dusche ist dunkel. Vllt das Nordfenster nicht beim Klo sondern ein schmales bei der Dusche planen, welches man dann satiniert?
Vielen Dank euch!
LG
11ant schrieb:Von welchem Förderprogramm sprichst du denn da? Die KfW Programme sind für uns alle entweder nicht zutreffend oder rechnen sich tatsächlich nicht, weil die Ersparnis den Aufwand nicht wert ist. Andere Förderprogramme gibt es hier in Sachsen-Anhalt nicht, soweit ich weiß.
a hätte an Eurer Stelle zu meiner Kundenerwartung gehört, angesichts der Zielgröße 165/166 qm darauf hingewiesen zu werden, daß 160 qm in einem aktuellen Förderprogramm eine Grenze sind.
Danke auch nochmal für die Übersicht der Pläne!
@K a t j a Danke für deine Gedanken!
Die Treppenrichtung finden wir nicht nur wegen des Drecks am Eingang besser, sondern auch praktischer weil man einfach öfter vom Wohnzimmer hoch- und runterläuft, als von der Haustür. Optisch sieht es auch schöner aus, wenn man vom Allraum durch die Glastür schaut. Mit der Tür hast du aber vollkommen recht, tatsächlich überlegen wir nur den rechten Flügel zugänglich zu machen oder vllt eine Schiebetür Lösung zu wählen. Der Flur ist tatsächlich etwas lang, aber ihn zu kürzen würde nicht viel bringen. Uns gefällt zum einen, dass es die Küchenzeile rechts etwas "einschließt" und dass links die TV/Beamer Wand dadurch lang genug ist. Wenn man die kürzt haut das leider nicht mehr hin. Unsere aktuelle Idee wäre deshalb tatsächlich noch ein breiter Erker zur Terrassenseite. Das würde den L-Raum großzügiger machen und die Engstelle an der Tür entschärfen.
Das Carport ist in dem Lageplan tatsächlich blöd eingezeichnet. Das soll natürlich direkt ans Haus mit ran. Licht verlieren wir da sowieso nicht, da das Carport an der Nordseite steht und wir da im EG eh keine Fenster haben. Glaub da hast du dich mit den Richtungen etwas verirrt beim Plan lesen. Bad im Süden ist vllt wirklich etwas sinnlos aber ich sehe keinen besseren Platz leider.
Zu der Anordnung der Räume:
-Der Technikraum muss oben links sein, aufgrund der Position der Hausanschlüsse. Find ich aber auch gut, weil eh Nord-Ostseite.
-Das Büro hätten wir gern auf der Ostseite wegen morgenlicht und da finden wir auch das Eckfenster gut.
-Die Küche wollen wir zum einen mit Terrassenausgang haben und zum anderen im Süden, damit sie viel Licht bekommt. Tagsüber ist das bei uns mit dem Esstisch der häufigste Aufenthaltsort.
-Die Wohnzimmerecke kann ruhig etwas abgeschattet sein, da man da eh nur gestört ist von Sonne bzw. wir eh nur Abends dort verbringen. Da war uns dann wichtig den Blick nach draußen Richtung Westen zu haben.
-Da bleibt quasi nur noch der Platz für das Bad, da wo es jetzt ist. Hat auch den Vorteil, dass man nicht durch den Schmutzbereich muss, wenn man mal aufs Klo will.
Das waren diesbezüglich unsere Ideen. Wäre natürlich toll, wenn man den Grundriss optimieren kann und diese Wünsche trotzdem irgendwie erfüllen kann.
Zum OG:
Ja, mit dem Abstellraum hast du Recht. Der ist wirklich sehr klein. Ich dachte halt, lieber ein kleiner Raum für Putzmittel, Klopapier und Staubsauger, als gar kein Raum? Auch hier, bin ich aber für jede Optimierungsidee dankbar!
Und ja, die Dusche ist dunkel. Vllt das Nordfenster nicht beim Klo sondern ein schmales bei der Dusche planen, welches man dann satiniert?
Vielen Dank euch!
LG
Sawdust schrieb:
Von welchem Förderprogramm sprichst du denn da? Die KfW Programme sind für uns alle entweder nicht zutreffend oder rechnen sich tatsächlich nicht, weil die Ersparnis den Aufwand nicht wert ist. Andere Förderprogramme gibt es hier in Sachsen-Anhalt nicht, soweit ich weiß.Wußte die Architektin, daß es in Eurem Fall nicht relevant ist ?Wir sprechen hier über viele Planungen über mehrere Monate, während derer sich Richtlinien von Förderprogrammen auch ändern können. Du kannst hier mehrere Threads finden, wo Bauwillige ihre Pläne auf Eis gelegt hatten, als die Töpfe für KfW55 vorzeitig leer gemeldet wurden - einige von ihnen können nun an einem nachhaltigkeitsfokussierten Förderprogramm teilhaben (aber nur wenn ihr Haushaltseinkommen paßt und sie den Deckel 160 qm nicht sprengen). ArchitektInnen sollten solche Nachrichten im Hinterkopf behalten und mit ihren Baupaaren ansprechen. Wenn die dann sagen, für sie wäre es nicht bedeutend, dann gut. Aber daß die Fachperson es erst einmal anspricht, finde ich wichtig (bei mir macht das dann "meine" Susanne).
Sawdust schrieb:
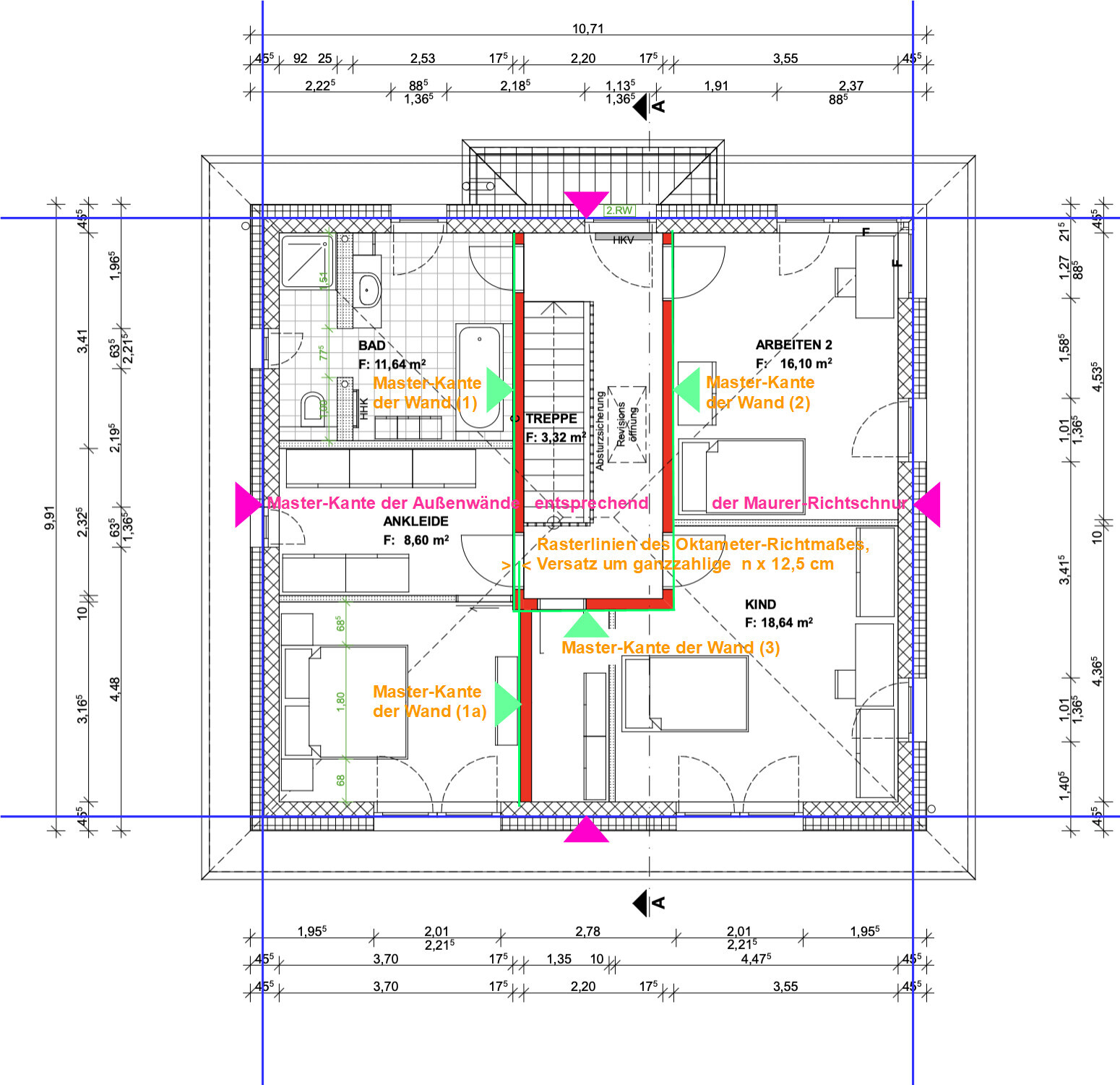
@11ant , ich verstehe leider nur Bahnhof bei deinem Beitrag, aber ich danke dir trotzdem für deine Infos. Ich werde mich mit dem Thema mal beschäftigen und das bei der Architektin auch noch einmal ansprechen. [...] Danke auch nochmal für die Übersicht der Pläne!Dein Dank nur aus Höflichkeit ist nett aber nutzlos, wenn meine Informationen es für Dich sind. Ich versuche es Dir bebildert nochmals zu erläutern, nachstehend illustriert am Beispiel des OG in der professionellen Zeichnungsversion, und wiederhole den Inhalt meines Textes dazu in "einfacher Sprache":1. Die Steinformate leiten sich von der Idee ab, die Einheit "1,00 Meter" in acht gleich lange Schritte zu unterteilen. Daher sollten Architekten nicht so arrogante Akademiker sein, sich einen feuchten Kehricht um die Praxis der Maurer zu scheren. Immer wenn die armen Maurer die Steine zur Säge schleppen müssen, entstehen auch Verwerfungen im Takt der Fugen (und wird in die Sägewunden der Steine Mörtel geschmiert, der in den Stoßfugen da eigentlich nicht vorgesehen ist). Dann hat die Mauer nachher "Pfuschertaschen" als Kainsmale, daß der Architekt ein schlampiger Schlingel ist. Wenngleich ein Dutzend solcher Kainsmale ein Haus noch nicht zum Einsturz bringt, schwächt das doch die Stabilität des Mauerverbandes. Daher sollten Architekten in ganzen Achtelmeterschritten denken, um unnötige Sägerei der eigentlich auf diesen Takt perfekt abgestimmten Steine zu vermeiden.
2. Steine werden möglichst so aneinandergesetzt, daß die Fugen in der Mitte der darüber bzw. darunter befindlichen Steinlagen zu liegen kommen, die Lagen überbinden einander dabei gegenseitig zu einem stabilen Verband im sogenannten "Überbindemaß". Früher mauerte man dabei abwechselnd längs liegende Steine (so ausgerichtet heißen sie Läufer, weil die Wand in dieser Richtung verläuft) und in der nächsten Lage quer liegende Steine (so verbinden sie die parallelen Läufer der benachbarten Lage miteinander, deshalb heißen sie dann Binder). Die heutigen Steinformate fassen in einem Stein ein Mauerstück zusammen, das einem ganzen Block ihrer kleinformatigen Kollegen entspricht. Dabei werden die Wände in den Stärken bis 24 cm (also auch 17,5 cm) als reine Läuferverbände hergestellt, deren einzelne Steine meist inklusive der Stoßfuge (= Fuge zwischen Steinen derselben Lage, heute regelmäßig "trocken" also mörtelfrei) 50 cm lang sind. Wände in den Stärken 30, 36,5 oder 42,5 cm hingegen werden heute üblich in reinen Binderverbänden gemauert, wobei die Steine dann mitsamt der Stoßfuge 25 cm breit sind. Gemörtelt werden regelmäßig nur die "Lagerfugen", also wo die Steinelagen aufeinander lagern. Entsprechend des Mauerverbandes (monolithisch als ganze Wand im Binderverband oder im WDVS als konstruktive Wandschale im Läuferverband) ergibt sich daraus nach der Maxime "der Architekt sollte so denken wie der Maurer arbeitet", in ganzzahligen (oder sogar geradzahligen) Vielfachen eines Achtelmeters zu denken, also die Wändepositionen und Mauerstückelängen in einem Rastergitter von einem oder sogar doppelten Achtelmeter (12,5 bzw. 25 cm) auf virtuelle Linien zu setzen.
3. Die Maurer legen die Steine mit ihren nach außen zeigenden Kanten an eine Richtschnur an. Mauern beginnen stets an den Außenecken, lagenweise zuerst die Außenwände und die tragenden Innenwände. Die nichttragenden Innenwände wie auch die Dämmungsschale eines WDVS folgen erst in späteren Arbeitsschritten. Startpunkte der virtuellen Rasterlinien sind daher am besten die Außenkanten der Außenwände, die genau auf der Richtschnur liegen. Im Sinne weitmöglichst vermiedener Steinesägerei stehen diese Kanten der tragenden Innenwände in 12,5 cm Schritten in Richtung Hausmitte dahinter. Die Wand 1 macht ihren Versatz zum weiteren Verlauf als Wand 1a zwischen Schlafzimmer und Abstellraum also idealerweise ebenfalls um 12,5 / 25 / 37,5 ... cm. Da ihre Stärke mit 17,5 cm nicht einen oder zwei sondern anderthalb Schritte beträgt, kann hier nur ihre zur Außenwand oder zur Hausmitte zeigende Kante auf einer Rasterlinie zu liegen kommen. Hier verstärkt sich also die Bedeutung einer Regel, welche Wandseite in solchen Zweifelsfällen die maßgebliche ist - von mir als Masterkante bezeichnet. Die Wände zwischen Ankleide und Bad bzw. Schlafzimmer und zwischen Arbeits- und Kinderzimmer sind hier zwar gemauert aber nichttragend und können dementsprechend ungeachtet ihrer Wandstärke nach freier Phantasie positioniert werden.
Übrigens stimmen hier manche Maße rechnerisch nicht, die Wände 1 und 1a sind in der Zeichnung mit einem Versatz von vmtl. einem Achtelmeterschritt dargestellt, verlaufen gemäß der Maßangaben jedoch in gerader Linie durchgehend beide um 3,70 m hinter der Außenwandinnenkante. Von einer 24 cm starken Konstruktionsmauerschale ausgehend, wären das 3,94 m ("richtig" sollten es 4,00 oder 3,875 m sein).
4. Das vorstehend Erläuterte gilt sinngemäß auch für die Wandabschnitte. Beispielsweise sind 2,19 m (am Bad) 4,38 Steine (besser 4,5 = 2,25 oder 4,25 = 2,125 m), 1,91 m (am Arbeitszimmer) 3,82 Steine (besser 4 = 2,00 oder 3,75 = 187,5 m) und so weiter. Wie gesagt, davon stürzt in dieser Dosierung das Haus noch nicht ein, aber einen Mehrwert hat diese "Maurerquälerei" (wie gesagt, fehlende Satzzeichenemoticons sind nicht meine Schuld) für niemanden.
Hinsichtlich aller dieser Regeln kann Deine Architektin anderer Ansicht sein (und diese dann hoffentlich auch einleuchtend begründen). Wichtig ist hier primär, daß Ihr beiden die Planung nicht aneinander vorbei weiterentwickelt, Euch also über solche Regeln einigt. Auch wenn Du der Bauherr bist und Dir insofern der Vorrang zustünde, solltest Du sie also nicht damit belehren wollen, Ihr die Sichtweise eines alten weißen Mannes / gelben 11anten überstülpen zu wollen. Wichtiger ist, daß sie und "ihre" Maurer in dieser Frage gleichschwingen. Daher lasse sie die Regeln wählen und beachte sie dann bei Deinen Weiterentwicklungsschritten. Eventuell wird auch dieser Absatz wieder von Narrenhänden deformatiert - manchmal muß man also schnell sein, meine Worte vor ihrer Verpfuschung bereits gelesen zu haben.
Du sollst hier nichts zwecks Anbetung meiner Weisheit lernen, sondern es soll Dir nützen. Daher frage bitte, wenn mir etwas noch nicht Dir verständlich zu machen gelungen ist. Nun also zur Zeichnung:
https://www.instagram.com/11antgmxde/
https://www.linkedin.com/company/bauen-jetzt/
Danke @11ant für die Informationen. Ich habe das Thema jetzt verstanden. Der Plan geht nach der Entwurfsplanung wohl zum Fachplaner, der dann die Ausführungszeichnungen, Schal- und Bewehrungspläne macht. Soweit ich das verstehe, wird dieser dann auf diese Punkte achten, aber ich werde da weiter nachfragen.
Nochmal zurück zum Entwurf. Anbei mal ein neuer Entwurf des Architekten. Was haltet ihr von der Treppe? Die ist laut Plan scheinbar 3,25m lang und die Geschosshöhe beträgt 2,50m. Inklusive Deckenhöhe muss die Treppe eine Höhe von 2,84m überwinden. Laut Baufirma verbauen die immer diese Maße, mir kommt es aber etwas steil vor. Was denkt ihr?
Aufgrund des etwas zu engen Wohnraum hatte ich jetzt noch mal die Idee den Erker am Eingang zu opfern und dafür die Wand zur Terrasse rauszusetzen und mit einer Hebeschiebetür zu bestücken. Das wäre nochmal ein Aufpreis, aber vielleicht wäre es das ja wert. Was denkt ihr?
LG


Nochmal zurück zum Entwurf. Anbei mal ein neuer Entwurf des Architekten. Was haltet ihr von der Treppe? Die ist laut Plan scheinbar 3,25m lang und die Geschosshöhe beträgt 2,50m. Inklusive Deckenhöhe muss die Treppe eine Höhe von 2,84m überwinden. Laut Baufirma verbauen die immer diese Maße, mir kommt es aber etwas steil vor. Was denkt ihr?
Aufgrund des etwas zu engen Wohnraum hatte ich jetzt noch mal die Idee den Erker am Eingang zu opfern und dafür die Wand zur Terrasse rauszusetzen und mit einer Hebeschiebetür zu bestücken. Das wäre nochmal ein Aufpreis, aber vielleicht wäre es das ja wert. Was denkt ihr?
LG
Sawdust schrieb:
Danke @11ant für die Informationen. Ich habe das Thema jetzt verstanden. Der Plan geht nach der Entwurfsplanung wohl zum Fachplaner, der dann die Ausführungszeichnungen, Schal- und Bewehrungspläne macht. Soweit ich das verstehe, wird dieser dann auf diese Punkte achten, aber ich werde da weiter nachfragen.Ich teile Deine Hoffnung nicht. Er wird nicht als Kritiker bezahlt und hat keinen Prüf-, sondern lediglich Umsetzungsauftrag. Die Erfahrung sagt, er wird das Küchenfenster 1:1 genau so gegen den Wasserhahn der Spüle dengeln lassen, wie Du es eingezeichnet hast. Und er wird auch nicht ausrechnen, mit wie vielen Stufen die Treppe bequemer zu gehen wäre.Sawdust schrieb:
Aufgrund des etwas zu engen Wohnraum hatte ich jetzt noch mal die Idee den Erker am Eingang zu opfern und dafür die Wand zur Terrasse rauszusetzen und mit einer Hebeschiebetür zu bestücken. Das wäre nochmal ein Aufpreis, aber vielleicht wäre es das ja wert. Was denkt ihr?Was wir darüber denken, haben wir bereits zighundertfach in anderen Threads geschrieben: 2. an der Haustür nützt Dir das Vordach, aber der "Erker" nicht; 1. der "Erker" kostet ein Vielfaches davon, die gleichen Mehrquadratmeter als durchgängige Erhöhung der Haustiefe zu bauen. Ein Wievielfaches genau, hängt auch davon ab, ob das Dach den Vorsprung mitmachen soll. Und zumindest von mir kannst Du 3. schon mehrfach gelesen haben, daß ich der Hebeschiebetür nur noch eine Handvoll Jahre gebe, bis sie zu Recht aus der Mode kommen wird. Mehr Preis ohne mehr Nutzen. Die Dinger gibt es nur, weil sie vor einem halben Jahrhundert in Besserverdienerhäusern zum Standard gehörten. Heute gehören einläufige gerade Treppen, bodentiefe Fenster in Überdosis und Eckfenster als kecker Clou zum sozialen Villenbau.(M)einer persönlichen Beratung wirst Du wohl nicht bedürfen, Dein Entwurf hat wenig Schmerzpunkte sondern eher generell ein Auge darauf nötig (vielleicht so wie einem anderen TE von Katja empfohlen.
K a t j a schrieb:
Ich würde raten, sich eine Vertrauensperson mit Erfahrung zu suchen, die Euch beim Bau berät.In meinem Wartezimmer sitzen jedenfalls Bauwillige mit mehr fachmännischem Handlungsbedarf, und Du weißt ja nun, in welcher Weise ich Deinem Blick eine Schärfung empfehle, was Du auch selbst umsetzen kannst.https://www.instagram.com/11antgmxde/
https://www.linkedin.com/company/bauen-jetzt/
11ant schrieb:
Die Erfahrung sagt, er wird das Küchenfenster 1:1 genau so gegen den Wasserhahn der Spüle dengeln lassen, wie Du es eingezeichnet hast. Und er wird auch nicht ausrechnen, mit wie vielen Stufen die Treppe bequemer zu gehen wäre.Das Küchenfenster hat ein fixes Element im unteren Bereich (siehe Südansicht) und dengelt somit nicht gegen den Wasserhahn, es sei denn wir bauen da eine extrem hohe Armatur ein. (Kleiner Scherz)
Das mit der Treppe frage ich ja genau aus dem Grund hier. Ich bin aber heut bei Bekannten eine Treppe mit fast gleichen Maßen hochgegangen und fand es ok.
11ant schrieb:
Was wir darüber denken, haben wir bereits zighundertfach in anderen Threads geschrieben: 2. an der Haustür nützt Dir das Vordach, aber der "Erker" nicht; 1. der "Erker" kostet ein Vielfaches davon, die gleichen Mehrquadratmeter als durchgängige Erhöhung der Haustiefe zu bauen. Ein Wievielfaches genau, hängt auch davon ab, ob das Dach den Vorsprung mitmachen soll. Und zumindest von mir kannst Du 3. schon mehrfach gelesen haben, daß ich der Hebeschiebetür nur noch eine Handvoll Jahre gebe, bis sie zu Recht aus der Mode kommen wird. Mehr Preis ohne mehr Nutzen. Die Dinger gibt es nur, weil sie vor einem halben Jahrhundert in Besserverdienerhäusern zum Standard gehörten. Heute gehören einläufige gerade Treppen, bodentiefe Fenster in Überdosis und Eckfenster als kecker Clou zum sozialen Villenbau.Macht alles Sinn, vielen Dank für deinen Input. Wir planen jetzt ein Vordach vor dem Eingang und die Wandecken fliegen raus. Hebeschiebetür ist wahrscheinlich auch abgewählt. Stattdessen wirds ein fixes Element und eine Terrassentür.
Durchgängige Erhöhung der Haustiefe wäre natürlich toll, aber ist ja immer das Problem, dass die dann auch auf beiden Etagen passieren muss und da sind wir dann irgendwann bei schnell bei über 170qm. Aber einen Erker im Allraum in der breite Einzubauen wie ich ihn hier gedacht habe ist wahrscheinlich wirklich extrem teuer, weil ja das Gewicht des OG ja dann durchweg gestützt werden muss. Alles schwierig...
Sawdust schrieb:
Das Küchenfenster hat ein fixes Element im unteren Bereich (siehe Südansicht) und dengelt somit nicht gegen den Wasserhahn, es sei denn wir bauen da eine extrem hohe Armatur ein. (Kleiner Scherz)Haha, lustig - im Grundriss hast Du es explizit so eingezeichnet, als sei der Öffnungswinkel des Fensters begrenzt.https://www.instagram.com/11antgmxde/
https://www.linkedin.com/company/bauen-jetzt/
Ähnliche Themen