B
Bauexperte
Hallo,
Unsere Kinder sind die überwiegende Zeit in gemieteten Häusern groß geworden; ich glaube nicht, dass sie auch nur etwas vermißt hätten, denn es kommt doch real auf andere Dinge an, als die Frage "gehört das Haus den Eltern" oder nicht?
Was Deine eigentliche Aussage betrifft, so finde ich keineswegs, dass 140 qm zu klein sind; insbesondere vor dem Hintergrund, dass in einem absehbaren Zeitraum ausschließlich 2 Menschen - von gelegentlichen Übernachtungsgästen mal abgesehen - die gesamte Fläche sauber halten und bewohnen müssen. Es ist vielmehr eine Frage der geschickten Planung.
Ich habe Dir einmal die Perspektive eines klassischen "Landhauses" (gesamt: reine Wohnfläche 130 qm nach DIN) und das dazugehörige Dachgeschoss angehängt, welches wir in Bälde im Kreis Neuss bauen werden. Die reine Wohnfläche im DG beträgt 59,69 qm, das Zimmer "Gast" ist ein Platzhalter für das geplante 2 Kind, die Wände des mittigen Zimmers "Spielen" werden in Leichtbauweise erstellt. So haben wir zum Einen Vorsorge dafür getroffen, dass die nächste Schwangerschaft auch Zwillinge hervorbringen könnte und zum Zweiten Raum zur "möglichen" späteren Erweiterung der Zimmer "Anna" und/oder "Gast" "bevorratet" und trotzdem eine ansprechende Aufteilung erzielt, welche auch noch einen kleinen Luftraum oberhalb des Eingangs im EG erlaubt. Der Spitzboden oberhalb des DG wird im konkreten Fall als reine Abstellfläche genutzt, da das Bauvorhaben auf Bodenplatte realisiert wird; das Gebäude wird als Klinkerbau erstellt.
Dieser Planung sind etliche Gespräche mit den Bauherren vorausgegangen, insbesondere mit unserem Architekten, denn auch die unterschiedlichen Arbeitszeiten, Eigenheiten und Vorstellungen der zukünftigen Bewohner mußten "unter einen Hut" gebracht werden.
Ich möchte Dir daher empfehlen, Dich von Aussagen vmtl. Freunde oder Bekannten zu befreien und Dein Ziel zu verfolgen, denn es kommt Niemand, der Dir den größeren Raum freiwillig aus seiner Schatulle bezahlt. Ganz wichtig: Du brauchst einen kreativen Architekten, der die Aufteilung der Räume anhand eurer Lebenssituation plant und nicht eure Lebenssituation um ein Typenhaus arrangiert
Noch etwas. Du hast an einer Stelle in einer Deiner früheren Antworten geschrieben, dass die monatliche Belastung den Ausschlag für Dich geben würde. Das ist in aller Regel richtig. Suche Dir unabhängige Finanzberatung, dann sollte Dein Bauvorhaben auf eine solide Basis gestellt werden können und vielleicht parallel doch Raum für den ein oder anderen Quadratmeter oder Extrawunsch realisiert werden können.
Freundliche Grüße
Ja, schmunzeln muß ich des Öfteren auchEigentlich kann ich nur noch lachen über diese Diskussion.
Der kleine Mann ist "Feuer und Flamme" weil es ein neues Abenteuer für ihn wird und: eine Baustelle ist der schönste Abenteuerspielplatz überhauptIch habe es toll gefunden, im Eigenheim zu wohnen. Auch als Kind.Unser knapp 4-jähriger hat so langsam auch kapiert, dass wir bauen wollen und ist jetzt schon Feuer und Flamme.
Unsere Kinder sind die überwiegende Zeit in gemieteten Häusern groß geworden; ich glaube nicht, dass sie auch nur etwas vermißt hätten, denn es kommt doch real auf andere Dinge an, als die Frage "gehört das Haus den Eltern" oder nicht?
Auch das ist normal, die Frage der Zimmergröße stellt sich - wenn überhaupt, denn auch kleine Zimmer kann man sehr geschickt und gemütlich einrichten - erst, wenn sie in die Pubertät kommen. Dann dauert es nicht mehr lange und sie nehmen ihr eigenes Leben mehr oder weniger selbst in die Hand; sei es über den Weg des Studiums (wer weiß schon heute, wo sie einen Studienplatz bekommen oder für welches Studium sie sich entscheiden) oder die anschließende Ausbildung, oder, oder, oder ...Noch teilen sich unsere Kinder ein lächerliches 16 qm -Kinderzimmer. Und wisst ihr was: sie haben echt viel und schönes Spielzeug und wo sind sie den lieben langen Tag? Da, wo ich auch bin: in der Küche, im Wohnzimmer...Nur fast nie in ihrem Zimmer!
Die, auf Deine Frage fußende, Aussage ist imho der Einstellung der Gesellschaft in ihrer aktuellen Erscheinungsform geschuldet. Andererseits ist so manches Statement hier auch nicht unberechtigt, denn es gibt in der Tat Menschen, welche - ohne rosa Brille betrachtet - das bauen eines Eigenheimes noch einige Jahre verschieben sollten; niedriger Zinssatz hin oder her - die langfristig gesicherte Existenz ist wichtiger als das Ansehen in den Augen vmtl. selbsternannter Prediger pro Eigentum!Ich frage mich außerdem, was einem 140qm-Haus klein sein soll.
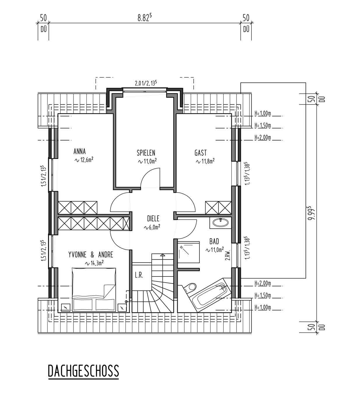
Was Deine eigentliche Aussage betrifft, so finde ich keineswegs, dass 140 qm zu klein sind; insbesondere vor dem Hintergrund, dass in einem absehbaren Zeitraum ausschließlich 2 Menschen - von gelegentlichen Übernachtungsgästen mal abgesehen - die gesamte Fläche sauber halten und bewohnen müssen. Es ist vielmehr eine Frage der geschickten Planung.
Ich habe Dir einmal die Perspektive eines klassischen "Landhauses" (gesamt: reine Wohnfläche 130 qm nach DIN) und das dazugehörige Dachgeschoss angehängt, welches wir in Bälde im Kreis Neuss bauen werden. Die reine Wohnfläche im DG beträgt 59,69 qm, das Zimmer "Gast" ist ein Platzhalter für das geplante 2 Kind, die Wände des mittigen Zimmers "Spielen" werden in Leichtbauweise erstellt. So haben wir zum Einen Vorsorge dafür getroffen, dass die nächste Schwangerschaft auch Zwillinge hervorbringen könnte und zum Zweiten Raum zur "möglichen" späteren Erweiterung der Zimmer "Anna" und/oder "Gast" "bevorratet" und trotzdem eine ansprechende Aufteilung erzielt, welche auch noch einen kleinen Luftraum oberhalb des Eingangs im EG erlaubt. Der Spitzboden oberhalb des DG wird im konkreten Fall als reine Abstellfläche genutzt, da das Bauvorhaben auf Bodenplatte realisiert wird; das Gebäude wird als Klinkerbau erstellt.
Dieser Planung sind etliche Gespräche mit den Bauherren vorausgegangen, insbesondere mit unserem Architekten, denn auch die unterschiedlichen Arbeitszeiten, Eigenheiten und Vorstellungen der zukünftigen Bewohner mußten "unter einen Hut" gebracht werden.
Ich möchte Dir daher empfehlen, Dich von Aussagen vmtl. Freunde oder Bekannten zu befreien und Dein Ziel zu verfolgen, denn es kommt Niemand, der Dir den größeren Raum freiwillig aus seiner Schatulle bezahlt. Ganz wichtig: Du brauchst einen kreativen Architekten, der die Aufteilung der Räume anhand eurer Lebenssituation plant und nicht eure Lebenssituation um ein Typenhaus arrangiert
Noch etwas. Du hast an einer Stelle in einer Deiner früheren Antworten geschrieben, dass die monatliche Belastung den Ausschlag für Dich geben würde. Das ist in aller Regel richtig. Suche Dir unabhängige Finanzberatung, dann sollte Dein Bauvorhaben auf eine solide Basis gestellt werden können und vielleicht parallel doch Raum für den ein oder anderen Quadratmeter oder Extrawunsch realisiert werden können.
Freundliche Grüße