ᐅ Gestaltung Außenanlage Höhen Terrasse Böschung Rasenfläche
Erstellt am: 22.05.25 13:52
D
Dachshund90D
Dachshund9022.05.25 13:52Hallo,
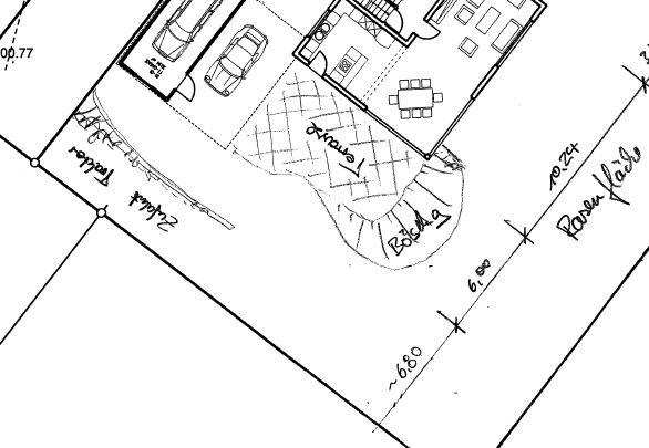
ich bin mir etwas unsicher mit unserer Außenanlage, konkret geht es um die Hausecke im Süden. Hier trifft die Terrasse (Höhe EG) auf die Rasenfläche (Höhe KG). Es gilt also einen Höhenunterschied von einem Geschoss zu überwinden.
Ursprünglich war vom Planer angedacht, unten zur Hausseite hin Natursteine aufzubauen, die dann weg vom Haus auslaufen. Daneben schließt sich eine Böschung an. Mir fehlt es etwas an Vorstellungkraft. Wenn die Ebene Keller möglichst groß werden soll, wird auch die Böschung sehr groß und trotzdem steil. Hier fehlt mir die Idee, wie man diese Böschung gestalten könnte, ohne dass sie zu viel Arbeit macht.
Um zu Fuß von der Terrasse in den Bereich vor den Kellerräumen zu können müsste man nach dieser Planung ganz außen an der Grundstücksgrenze laufen, ein recht weiter Weg, finde ich auch nicht ganz optimal.
Anbei ein paar Bilder der Situation.
Wie breit würdet ihr die Terrasse machen? Würdet ihr auch Natursteine nur Haus nehmen, Rest Böschung? Ist vermutlich das günstigste? Was "macht" man mit der Böschung? Wie steil würdet ihr die Böschung machen um die ebene Rasenfläche möglichst groß zu lassen?
Gibt es noch Ideen?





ich bin mir etwas unsicher mit unserer Außenanlage, konkret geht es um die Hausecke im Süden. Hier trifft die Terrasse (Höhe EG) auf die Rasenfläche (Höhe KG). Es gilt also einen Höhenunterschied von einem Geschoss zu überwinden.
Ursprünglich war vom Planer angedacht, unten zur Hausseite hin Natursteine aufzubauen, die dann weg vom Haus auslaufen. Daneben schließt sich eine Böschung an. Mir fehlt es etwas an Vorstellungkraft. Wenn die Ebene Keller möglichst groß werden soll, wird auch die Böschung sehr groß und trotzdem steil. Hier fehlt mir die Idee, wie man diese Böschung gestalten könnte, ohne dass sie zu viel Arbeit macht.
Um zu Fuß von der Terrasse in den Bereich vor den Kellerräumen zu können müsste man nach dieser Planung ganz außen an der Grundstücksgrenze laufen, ein recht weiter Weg, finde ich auch nicht ganz optimal.
Anbei ein paar Bilder der Situation.
Wie breit würdet ihr die Terrasse machen? Würdet ihr auch Natursteine nur Haus nehmen, Rest Böschung? Ist vermutlich das günstigste? Was "macht" man mit der Böschung? Wie steil würdet ihr die Böschung machen um die ebene Rasenfläche möglichst groß zu lassen?
Gibt es noch Ideen?
H
hanghaus202322.05.25 15:05Terrasse wie gezeichnet.
Böschungen am besten nicht steiler als 1:2 wenn steiler dann must irgendwie befestigen. Eventuell mit einem Steingarten der gut bewachsen wird.
Oben auf die Böschung grosse Pflanztröge zur Absturzsicherung.
Sie SM und die Pflanztröge werden mit der Böschung abgesetzt und auslaufen lassen.


Böschungen am besten nicht steiler als 1:2 wenn steiler dann must irgendwie befestigen. Eventuell mit einem Steingarten der gut bewachsen wird.
Oben auf die Böschung grosse Pflanztröge zur Absturzsicherung.
Sie SM und die Pflanztröge werden mit der Böschung abgesetzt und auslaufen lassen.
W
wiltshire22.05.25 15:28Es ist nicht leicht das auf den Plänen gut zu erkennen.
Wie oft und zu welchem Zweck wird denn die Verbindung zwischen Terrasse und unterem Gebäudeteil genutzt?
Eine Böschungslösung mit einem kurzen Weg nach unten kommt auch mir gestalterisch schwierig vor, da dieser gestalterischen Maßnahme nur wenig Platz eingeräumt werden soll. Wenn der Weg unbedingt kurz sein soll, bau ne Treppe. Anderenfalls baue mit dem Hang und fange was abzufangen ist mit Natursteinmauern ab.
Wie oft und zu welchem Zweck wird denn die Verbindung zwischen Terrasse und unterem Gebäudeteil genutzt?
Eine Böschungslösung mit einem kurzen Weg nach unten kommt auch mir gestalterisch schwierig vor, da dieser gestalterischen Maßnahme nur wenig Platz eingeräumt werden soll. Wenn der Weg unbedingt kurz sein soll, bau ne Treppe. Anderenfalls baue mit dem Hang und fange was abzufangen ist mit Natursteinmauern ab.
D
Dachshund9026.05.25 11:34Guten Morgen, danke für die Rückmeldungen, das deckt sich ja fast mit den Infos vom Planer. Das mit den Pflanztrog werde ich nochmal weiter verfolgen, finde die Idee gut.
Ich denke wir werden uns an den "weiten" Weg gewöhnen, finde auch keine alltägliche Anwendung, bei der man den Weg gehen muss.
Ich denke wir werden uns an den "weiten" Weg gewöhnen, finde auch keine alltägliche Anwendung, bei der man den Weg gehen muss.
H
hanghaus202326.05.25 12:01W
wiltshire26.05.25 13:00Wir haben am Ausgang der Küchenseite eine Mini-Terrasse aus Stein, die auf die das Haus halb umlaufende Holzterrasse führt, aber auch nach unten in einen Gartenteil. Hier haben wir eine maximal simple Lösung gefunden und größere Grauwacke-Steine als Stufen eingesetzt. Vielleicht ist das ja auch eine Inspiration für Dich, wenngleich unser Gelände deutlich steiler (an dieser Stelle 27% bzw. knapp über 50%) ist. Die Bilder sind nicht insta-mäßig aufgeräumt und man sieht auch, dass alles gerade etwas zuwächst. Wir mögen das, wenngleich etwas Rückschnitt nach den aktuellen Regentagen wohl angegangen werden wird. Die Kurzhaarcollies haben eine Schulterhöhe von 60cm und dienen hier als Maßstab. Wer sich über das Holzgeländer im Hintergrund der Bilder von wundert - an der Küchenterrasse haben wir eine Natursteinmauer und oberhalb ist noch eine kleine Terrasse mit einem Strandkorb, in den wir uns hin und wieder zurückziehen. Man kann nicht genug Terrassen haben.



Ähnliche Themen