ᐅ Belastbarkeit L-Stein und Wasserablauf bei 45° Böschung
Erstellt am: 03.05.22 15:39
Moin in die Runde,
wir haben auf der Südseite des Grundstücks vor eine Stützmauer mit 2m hohen L-Steinen zu errichten. Und um möglichst zügig von 300 auf 305m zukommen (der Bebauungsplan erlaubt als Stützmauer 2m) darauf auch noch eine Böschung zu setzen.
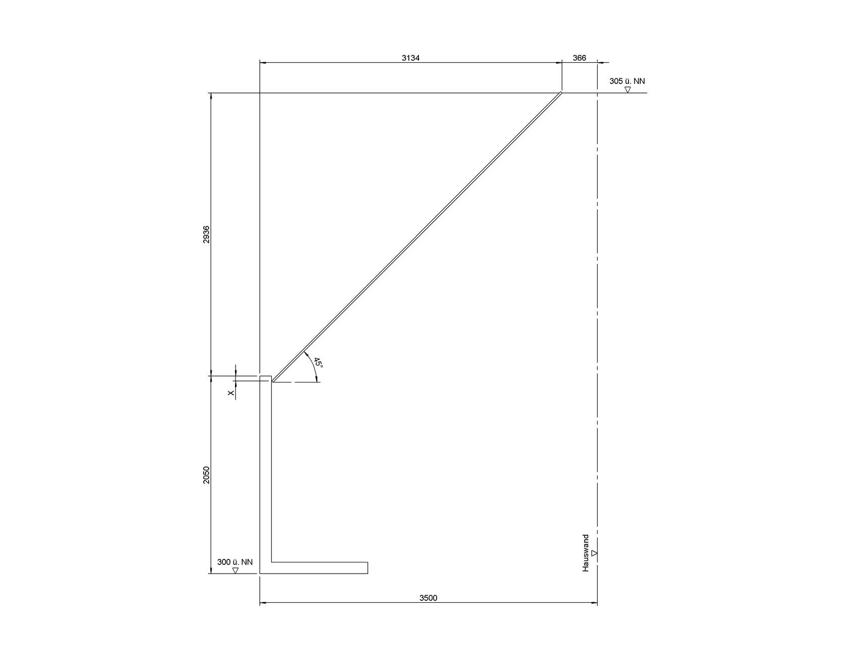
Im Anhang hab ich mal eine kleine Skizze vorbereitet. Die Skizze zeigt einen 2m hohen L-Stein der ca. auf der Höhe 300m üNN liegt. Rechts davon ist eine gestrichelte Linie die die Hauswand darstellen soll und ca. 3,5m weg von der Stützmauer sitzt. Rechts oben ist die Einfamilienhaus (Erdgeschossfußbodenhöhe) bei 305m üNN. Die 45 Grad Linie soll die Böschung darstellen.
Ich hoff man kann es sich ein wenig vorstellen.

Nun zu meinen beiden Fragen.
Wir hatten schon ein paar Erdbauer da, die sich das ganze angesehen haben und hier keine Probleme sehen. Gestern habe ich eine Vorwarnung vom Landratsamt erhalten, dass ein Nachbar unterhalb von uns Einspruch eingelegt hat. Nicht gegen die Mauer, er wollte uns vorschreiben die Mauer massiv aus Beton zu errichten, aus Gründen der Statik blabla, zudem muss das Wasser unseres Grundstücks auch bei uns bleiben. Sein Wunsch nach der massiven Mauer kann er laut Landratsamt nicht durchsetzen, hier hat er Pech gehabt. Das mit dem Wasser ist für mich absolut nachzuvollziehen und wird Thema in Frage zwei.
Da der gute Mann, der wohl selbst Bauunternehmer ist, nun schon die Statik angreift, können wir uns sehr sicher auf Überprüfung unserer Mauer einstellen, weshalb ich einfach mal sicher gehen will.
Wie gesagt sehen die Erdbauer keine Probleme mit der zwei Meter hohen L-Stein Mauer und einer 45° Böschung. Das Problem das ich gerade sehe, ist dass ich im Netz laienhaft mal L-Steine gegoogelt habe und keinen einzigen 2m hohen L-Stein finden konnte, der statisch eine anschließende Böschung größer 30 Grad erlaubt.
Ist hier jemand der bestätigen kann, dass es solche Steine gibt? Ich glaube den Erdbauern zwar, dass das geht, mir ist aber wichtig es auch nachweisen zu können, wenn jemand danach fragt.
Weiter geht’s mit Frage zwei.
Hier geht es um das Wasser, dass bei Starkregen und dieser Böschung sicherlich auch den Weg über das restliche Stück Mauer findet.
In meiner Skizze habe ich am oberen Ende des L-Steins ein Maß X markiert. Wie weit glaubt ihr muss ich hier nach unten gehen um sicherzustellen, dass kein Wasser überläuft?
Nebenbei möchte ich noch erwähnen, dass das skizzierte Szenario die steilste Stelle darstellt, das Gefälle auf dem Grundstück verläuft auch noch mit der Mauer in eine Richtung, sodass es teilweise auch wesentlich weniger Böschung bedarf. Und ich hier somit auch noch eine Art Rinne erstellen könnte.
Der Plan ist die Böschung mit Bodendeckern und (hoffentlich) auch noch paar ein paar Büschen bepflanzen zu können, sollten die darauf Halt finden, aber hier erstelle ich zu gegebener Zeit noch einen entsprechenden Thread.
Geben die paar Pflanzen der Böschung ausreichend „Bremse“ um das Wasser am überlaufen zu hintern, bzw. die Fließgeschwindigkeit stark zu reduzieren?
Wir haben vor irgendwann nach dem Bau des Hauses einen Garten-Landschaftsbauer mit diesem Problem zu konfrontieren, der muss aber aus Kostengründen erst noch warten.
Würde mich über eure Antworten freuen...
wir haben auf der Südseite des Grundstücks vor eine Stützmauer mit 2m hohen L-Steinen zu errichten. Und um möglichst zügig von 300 auf 305m zukommen (der Bebauungsplan erlaubt als Stützmauer 2m) darauf auch noch eine Böschung zu setzen.
Im Anhang hab ich mal eine kleine Skizze vorbereitet. Die Skizze zeigt einen 2m hohen L-Stein der ca. auf der Höhe 300m üNN liegt. Rechts davon ist eine gestrichelte Linie die die Hauswand darstellen soll und ca. 3,5m weg von der Stützmauer sitzt. Rechts oben ist die Einfamilienhaus (Erdgeschossfußbodenhöhe) bei 305m üNN. Die 45 Grad Linie soll die Böschung darstellen.
Ich hoff man kann es sich ein wenig vorstellen.
Nun zu meinen beiden Fragen.
Wir hatten schon ein paar Erdbauer da, die sich das ganze angesehen haben und hier keine Probleme sehen. Gestern habe ich eine Vorwarnung vom Landratsamt erhalten, dass ein Nachbar unterhalb von uns Einspruch eingelegt hat. Nicht gegen die Mauer, er wollte uns vorschreiben die Mauer massiv aus Beton zu errichten, aus Gründen der Statik blabla, zudem muss das Wasser unseres Grundstücks auch bei uns bleiben. Sein Wunsch nach der massiven Mauer kann er laut Landratsamt nicht durchsetzen, hier hat er Pech gehabt. Das mit dem Wasser ist für mich absolut nachzuvollziehen und wird Thema in Frage zwei.
Da der gute Mann, der wohl selbst Bauunternehmer ist, nun schon die Statik angreift, können wir uns sehr sicher auf Überprüfung unserer Mauer einstellen, weshalb ich einfach mal sicher gehen will.
Wie gesagt sehen die Erdbauer keine Probleme mit der zwei Meter hohen L-Stein Mauer und einer 45° Böschung. Das Problem das ich gerade sehe, ist dass ich im Netz laienhaft mal L-Steine gegoogelt habe und keinen einzigen 2m hohen L-Stein finden konnte, der statisch eine anschließende Böschung größer 30 Grad erlaubt.
Ist hier jemand der bestätigen kann, dass es solche Steine gibt? Ich glaube den Erdbauern zwar, dass das geht, mir ist aber wichtig es auch nachweisen zu können, wenn jemand danach fragt.
Weiter geht’s mit Frage zwei.
Hier geht es um das Wasser, dass bei Starkregen und dieser Böschung sicherlich auch den Weg über das restliche Stück Mauer findet.
In meiner Skizze habe ich am oberen Ende des L-Steins ein Maß X markiert. Wie weit glaubt ihr muss ich hier nach unten gehen um sicherzustellen, dass kein Wasser überläuft?
Nebenbei möchte ich noch erwähnen, dass das skizzierte Szenario die steilste Stelle darstellt, das Gefälle auf dem Grundstück verläuft auch noch mit der Mauer in eine Richtung, sodass es teilweise auch wesentlich weniger Böschung bedarf. Und ich hier somit auch noch eine Art Rinne erstellen könnte.
Der Plan ist die Böschung mit Bodendeckern und (hoffentlich) auch noch paar ein paar Büschen bepflanzen zu können, sollten die darauf Halt finden, aber hier erstelle ich zu gegebener Zeit noch einen entsprechenden Thread.
Geben die paar Pflanzen der Böschung ausreichend „Bremse“ um das Wasser am überlaufen zu hintern, bzw. die Fließgeschwindigkeit stark zu reduzieren?
Wir haben vor irgendwann nach dem Bau des Hauses einen Garten-Landschaftsbauer mit diesem Problem zu konfrontieren, der muss aber aus Kostengründen erst noch warten.
Würde mich über eure Antworten freuen...
O
Osnabruecker03.05.22 15:48Da scheinen Probleme vorprogrammiert zu sein sobald der erste Regen kommt...
Ist es eine Möglichkeit eine einvernehmliche Lösung mit dem Nachbarn zu finden? Wenn dieser ja anscheinend vom Fach ist...
Ist es eine Möglichkeit eine einvernehmliche Lösung mit dem Nachbarn zu finden? Wenn dieser ja anscheinend vom Fach ist...
Da der Nachbar selbst gar nicht da wohnt, kennen wir ihn eigentlich nur als höflichen Nachbarn vom Telefon. Wir sind selbst erstaunt, dass er so auf unseren Bauantrag reagiert hat (die nette Dame vom Amt hat mir seine Stellungnahme komplett vorgelesen, sehr krass und detailierte Einwände, als hätte er das nicht das erste Mal getan 😉).
Wir haben vor ihn mal anzurufen, nicht um ihn damit zu konfrontieren, sondern um ihn zu fragen, was er als Bauunternehmen alles so leisten kann, vielleicht ja eine Mauer 😀.
Glaubst du, dass das Wasser sich hier nicht aufhalten lässt?
Wir haben vor ihn mal anzurufen, nicht um ihn damit zu konfrontieren, sondern um ihn zu fragen, was er als Bauunternehmen alles so leisten kann, vielleicht ja eine Mauer 😀.
Glaubst du, dass das Wasser sich hier nicht aufhalten lässt?
Nixwill2 schrieb:
Geben die paar Pflanzen der Böschung ausreichend „Bremse“ um das Wasser am überlaufen zu hintern, bzw. die Fließgeschwindigkeit stark zu reduzieren?Nein. Evtl. könntest du aber in den Reis-Ackerbau starten.
Das ist jetzt wirklich kniffelig. Was ist denn die Ausgangssituation=natürlicher Bodenverlauf?
Ich weiß nicht genau was du mit natürlichem Bodenverlauf meinst, ich rate einfach mal:
Das Grundstück verläuft auf einer Breite von ca. 20m, von Nord nach Süd, grob von 306m auf 300m runter. Also deutliche Hanglage würde ich sagen.
Vielleicht noch kurz zur Veranschaulichung, die Einfamilienhaus sitzt auf 305m wir wollen hier eine Terrasse platzieren und dann das ganze Gelände, eben (wie gerade) auf 305m verlaufen lassen, sprich Terrasse, direkt anbindend Rasen und auf selber Höhe ein Carport und Einfahrt. Einfach ein Plateau auf 305m und die Böschung soll über die gesamte Südflanke oben in den Rasen laufen und unten auf die Stützmauer stoßen.
Das Grundstück verläuft auf einer Breite von ca. 20m, von Nord nach Süd, grob von 306m auf 300m runter. Also deutliche Hanglage würde ich sagen.
Vielleicht noch kurz zur Veranschaulichung, die Einfamilienhaus sitzt auf 305m wir wollen hier eine Terrasse platzieren und dann das ganze Gelände, eben (wie gerade) auf 305m verlaufen lassen, sprich Terrasse, direkt anbindend Rasen und auf selber Höhe ein Carport und Einfahrt. Einfach ein Plateau auf 305m und die Böschung soll über die gesamte Südflanke oben in den Rasen laufen und unten auf die Stützmauer stoßen.
M
Myrna_Loy03.05.22 19:49Euer Haus thront dann auf einen 5 m hohen künstlichen Hügel? 😳
Auf der Böschung wird nichts wachsen, vor allem nicht, wenn es Südseite ist. Die Befestigung ist auch nicht unaufwändig. Ich würde vielleicht mal einen Gartenlandschaftsbauer vorher kontaktieren, statt zu hoffen, dass dieser mit kleinem Geld was zaubert, wenn alles passiert ist. Ich würde zB auch mal den Aspekt Kindersicherheit mitdenken. 45 Grad Böschung und dann ein 2 m Fall ist eher was für Burgenbau.
Für die Böschungspflege kann man dann auch noch gleich die Sicherheitshaken mit einplanen lassen. Gärtner mal auf einer 45 Grad Böschung mit einer 2 m Absturzkante.
Auf der Böschung wird nichts wachsen, vor allem nicht, wenn es Südseite ist. Die Befestigung ist auch nicht unaufwändig. Ich würde vielleicht mal einen Gartenlandschaftsbauer vorher kontaktieren, statt zu hoffen, dass dieser mit kleinem Geld was zaubert, wenn alles passiert ist. Ich würde zB auch mal den Aspekt Kindersicherheit mitdenken. 45 Grad Böschung und dann ein 2 m Fall ist eher was für Burgenbau.
Für die Böschungspflege kann man dann auch noch gleich die Sicherheitshaken mit einplanen lassen. Gärtner mal auf einer 45 Grad Böschung mit einer 2 m Absturzkante.
Ähnliche Themen