M
MorteMorte22.05.21 09:39Hallo liebes Forum,
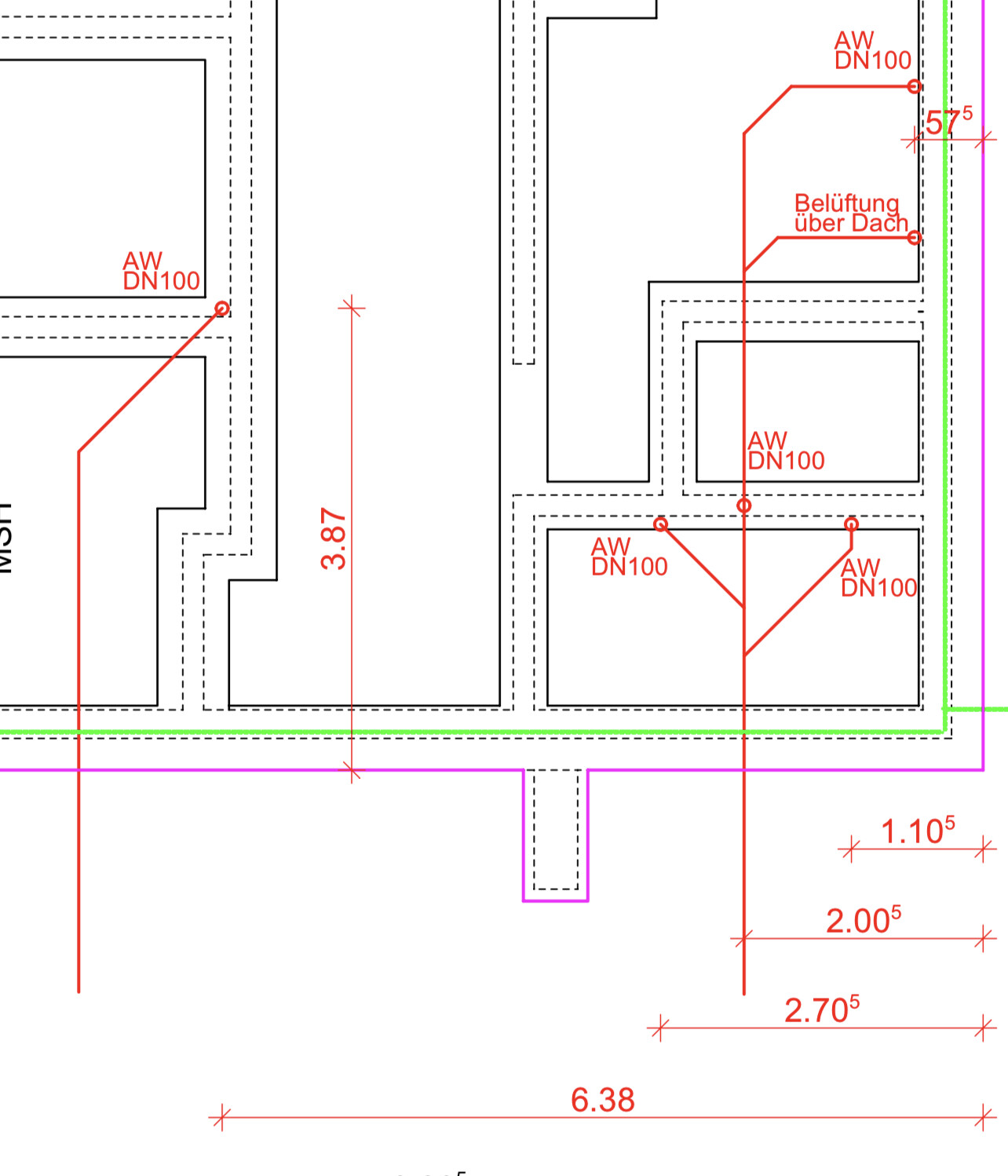
im Anhang findet Ihr zwei Bilder. Einmal der Vorschlag der Entwässerung von unserem Bauingenieur und einmal der meines Gas-Wasser-Installateurs. Der Bauingenieur möchte zwei Entlüftungen über Dach führen da er der Meinung ist das es anders zu Problemen führen wird. Ich persönlich favorisiere die Lösung meines Installateurs. Nur eine Entlüftung über das Dach. Wenn ich die DIN 1986-100 richtig deute spricht da auch überhaupt nichts dagegen.
Was haltet Ihr davon? Spricht bautechnisch irgend etwas dagegen?
Wie auf den Fotos zu sehen die zwei Versionen!
lieben Dank für Eure Hilfe


im Anhang findet Ihr zwei Bilder. Einmal der Vorschlag der Entwässerung von unserem Bauingenieur und einmal der meines Gas-Wasser-Installateurs. Der Bauingenieur möchte zwei Entlüftungen über Dach führen da er der Meinung ist das es anders zu Problemen führen wird. Ich persönlich favorisiere die Lösung meines Installateurs. Nur eine Entlüftung über das Dach. Wenn ich die DIN 1986-100 richtig deute spricht da auch überhaupt nichts dagegen.
Was haltet Ihr davon? Spricht bautechnisch irgend etwas dagegen?
Wie auf den Fotos zu sehen die zwei Versionen!
lieben Dank für Eure Hilfe
MorteMorte schrieb:
Hallo liebes Forum,
im Anhang findet Ihr zwei Bilder.Hallo lieber Fragesteller, Du darfst gerne mehr Zusammenhang zeigen.https://www.instagram.com/11antgmxde/
https://www.linkedin.com/company/bauen-jetzt/
I
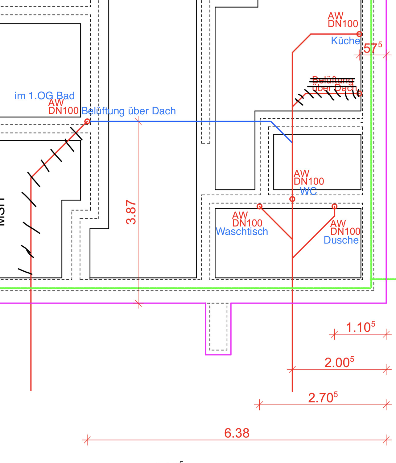
i_b_n_a_n22.05.21 18:56es sind übrigens eher Belüftungen denn Entlüftungen (aber eigentlich beides). Ohne Luftzufuhr in das Rohr läuft Abwasser wg. des entstehenden Unterdrucks nicht ab. Ich sehe in der einen Variante einen Strang aber gar nicht belüftet? Das wäre nicht O.K. Da geht optional natürlich auch eine Innenbelüftung, aber wenn das vermeidbar ist würde ich das nie im Leben machen. Einmal in den sauren Apfel beissen und die paar Euro Mehrkosten für die Überdach geführte Belüftung installieren lassen. Abwasser "flutscht" so besser durch die Leitung
In der Variante 2 hängt das Bad 1OG ja mit an der Entwässerung des EG, die Entlüftung erfolgt über Dach am Bad 1OG.
Bin mir nicht sicher, ob das ne gute Idee ist die einzige Entlüftung „hinter“ einem Fallrohr zu setzen. Mit der Variante vom Architekten gehste auf Nummer sicher
Bin mir nicht sicher, ob das ne gute Idee ist die einzige Entlüftung „hinter“ einem Fallrohr zu setzen. Mit der Variante vom Architekten gehste auf Nummer sicher
M
MorteMorte22.05.21 19:05Das ist klar, er will aber beide Stränge entlüften. Ich würde die halt am liebsten so wie auf meinem Plan mit der blauen Linie eine Entlüftung über Dach installieren lassen. Dort ist eh ein Schacht. Sonst wäre ein zweiter abgekofferter Schacht da. Reicht das nicht so wie ich denke?
MorteMorte schrieb:
Reicht das nicht so wie ich denke?Den größten Teil Deiner Gedanken können wir mit diesem kleinen Detailausschnitt und sonst null Kenntnis über Dein Haus im Zusammenhang nicht mitgehen.https://www.instagram.com/11antgmxde/
https://www.linkedin.com/company/bauen-jetzt/
Ähnliche Themen