ᐅ Gäste-WC: Decke abhängen oder Rohr verkleiden?
Erstellt am: 15.05.19 15:27
Hallo,
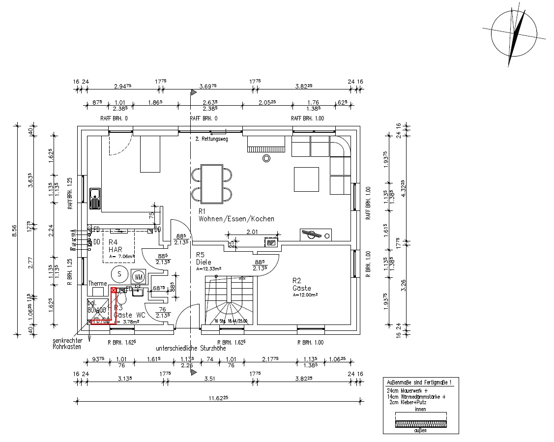
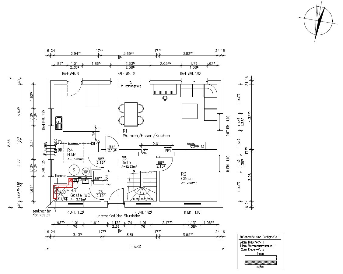
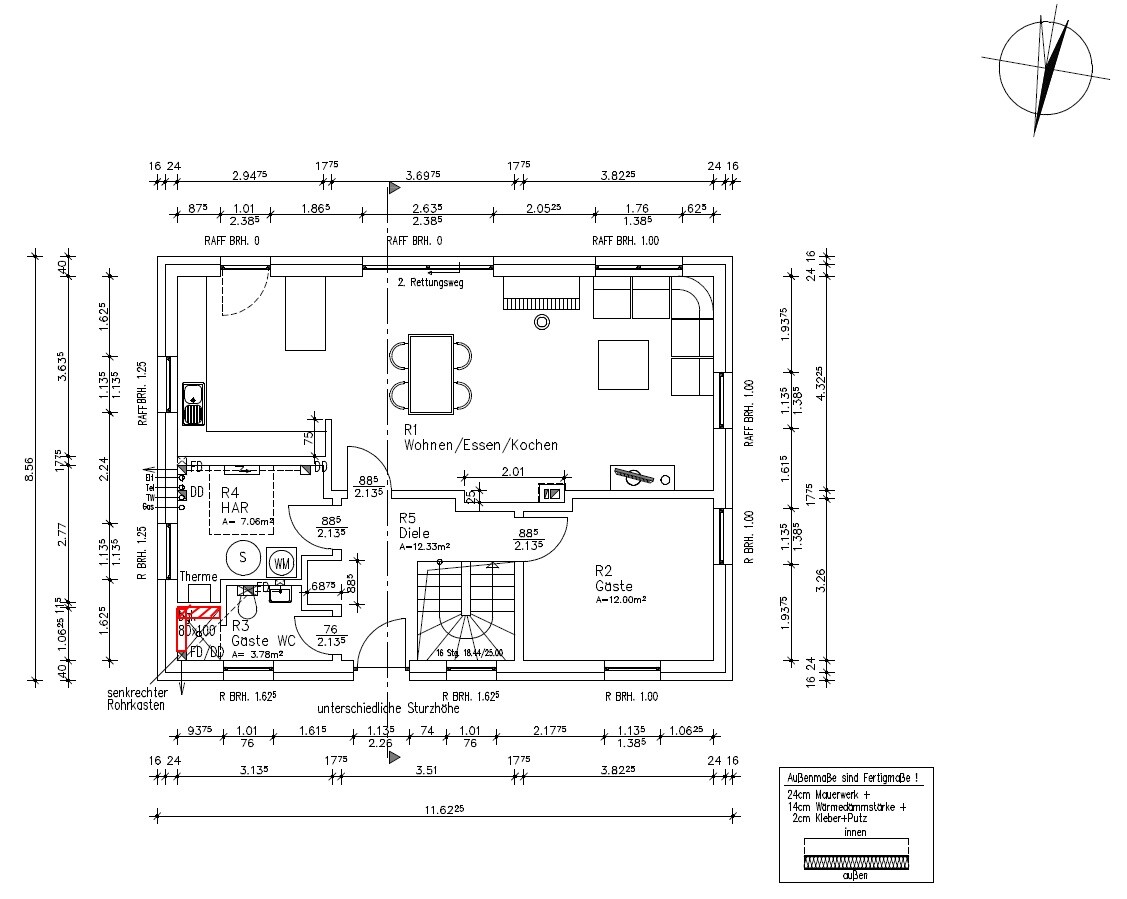
wir haben bei unserem Neubau das folgende Problem: in der Dusche vom Gäste-WC im EG ist ein senkrechter Rohrkasten geplant, um das Abwasser vom OG nach unten zu leiten. Der Rohrkasten befindet sich genau in der Nähe des Eingangs und wir würden ihn daher gern an der Stelle nicht haben.
Nun zu den Möglichkeiten, die ich so sehe:
A) Ein Vorschlag der Sanitärfirma war, den Rohrkasten neben das WC zu verlegen, wo es auch einen Durchbruch im Fußboden gibt und das Wasser dann dort abzuleiten. Dabei müsste aber das Rohr von der ursprünglichen Öffnung unter der Wand an die neue Stelle des Rohrkastens geführt werden.
Dies entweder in der Dusche oder davor (siehe Variante 1 und 2).


Nun frage ich mich, macht es Sinn, das so zu machen und dann die Decke abzuhängen, um das Rohr nicht zu sehen? Deckenhöhe würde sich dann von 2,6 m auf ~2.45 m verringern! Dafür könnte man aber auch gut Spots integrieren etc.
Wie ist es aber mit Dampf/Wasser in dem Hohlraum etc.?
B) Eine Alternative, die mir noch eingefallen ist, wäre, den Rohrkasten in der Dusche an die andere Wand zu verlegen. Dort könnte man dann eine Vorwand bauen, wo der Rohrkasten enthalten ist. Größe der Dusche würde sich dann verringen, was aber ok ist. (siehe Variante 3).
Die Frage ist, ob dann das Wasser vom Rohrkasten unter der Duschwanne zum ursprünglichen Abfluss geleitet werden kann...

Was sagt ihr dazu?
Freue mich über Meinungen.
wir haben bei unserem Neubau das folgende Problem: in der Dusche vom Gäste-WC im EG ist ein senkrechter Rohrkasten geplant, um das Abwasser vom OG nach unten zu leiten. Der Rohrkasten befindet sich genau in der Nähe des Eingangs und wir würden ihn daher gern an der Stelle nicht haben.
Nun zu den Möglichkeiten, die ich so sehe:
A) Ein Vorschlag der Sanitärfirma war, den Rohrkasten neben das WC zu verlegen, wo es auch einen Durchbruch im Fußboden gibt und das Wasser dann dort abzuleiten. Dabei müsste aber das Rohr von der ursprünglichen Öffnung unter der Wand an die neue Stelle des Rohrkastens geführt werden.
Dies entweder in der Dusche oder davor (siehe Variante 1 und 2).
Nun frage ich mich, macht es Sinn, das so zu machen und dann die Decke abzuhängen, um das Rohr nicht zu sehen? Deckenhöhe würde sich dann von 2,6 m auf ~2.45 m verringern! Dafür könnte man aber auch gut Spots integrieren etc.
Wie ist es aber mit Dampf/Wasser in dem Hohlraum etc.?
B) Eine Alternative, die mir noch eingefallen ist, wäre, den Rohrkasten in der Dusche an die andere Wand zu verlegen. Dort könnte man dann eine Vorwand bauen, wo der Rohrkasten enthalten ist. Größe der Dusche würde sich dann verringen, was aber ok ist. (siehe Variante 3).
Die Frage ist, ob dann das Wasser vom Rohrkasten unter der Duschwanne zum ursprünglichen Abfluss geleitet werden kann...
Was sagt ihr dazu?
Freue mich über Meinungen.
Wo sind denn eure Bedenken bei der aktuellen Position? Meint ihr man hört dies dann draußen in massiver Weise? Ansonsten erscheint mir der Aufwand dafür doch etwas unsinnig. Ich würde es so belassen, klar wäre die Dusche ohne diese Ecke schöner. Aber ich sehe da kein großes Problem drin!
Ansonsten eben mit abgehängter Decke an gewünschte Stelle verziehen, Dampf etc. da sehe ich keine Probleme (wir haben auch eine abgehängte Decke im Bad und keinerlei Probleme. Lüften sollte man natürlich! In der Dusche zu verziehen halte ich für die schlechteste Variante, da so die Dusche doch klein wird.
Ansonsten eben mit abgehängter Decke an gewünschte Stelle verziehen, Dampf etc. da sehe ich keine Probleme (wir haben auch eine abgehängte Decke im Bad und keinerlei Probleme. Lüften sollte man natürlich! In der Dusche zu verziehen halte ich für die schlechteste Variante, da so die Dusche doch klein wird.
cschiko schrieb:
Wo sind denn eure Bedenken bei der aktuellen Position? Meint ihr man hört dies dann draußen in massiver Weise? Ansonsten erscheint mir der Aufwand dafür doch etwas unsinnig. Ich würde es so belassen, klar wäre die Dusche ohne diese Ecke schöner. Aber ich sehe da kein großes Problem drin!
Ansonsten eben mit abgehängter Decke an gewünschte Stelle verziehen, Dampf etc. da sehe ich keine Probleme (wir haben auch eine abgehängte Decke im Bad und keinerlei Probleme. Lüften sollte man natürlich! In der Dusche zu verziehen halte ich für die schlechteste Variante, da so die Dusche doch klein wird.Es geht nicht um Geräusche oder so...einfach nur um das Aussehen. Mich stören diese senkrechten Rohrkästen überall. Hätte ich das vorher gewusst, hätte ich die Bäder/Hauswirtschaftsraum so geplant, dass keins sichtbar ist. Es ist auch schon ein großer Platzverlust, im Bad OG haben wir so 20-30 cm weniger Platz für unseren waschtisch, den wir eigentlich eingeplant hatten. Und in der Dusche sieht es auch bescheuert aus. In der Dusche verziehen wäre ja auch noch ok, wenn sie trotzdem noch 80 x 80 oder so am Ende ist (aktuell 100 x 80)..B
boxandroof25.06.19 12:17chrisw81 schrieb:
im Bad OG haben wir so 20-30 cm weniger Platz für unseren WaschtischBei uns ist das Rohr plan mit der Vormauerung für den Waschtisch und daher nicht störend, es fehlen nur 20cm Ablagefläche. Kommt bei Dir der Waschtisch direkt an die Wand?So unterschiedlich sind die "Ansichten", für mich wäre klar 80x80 Dusche geht gar nicht. Auch eigentlich nicht als Gästedusche, denn das ist für mich mit 1,86m schon recht beengt.
Aber wenn dich der Kasten da so stört, warum nicht das Rohr dort runter laufen lassen und eben ie Abkastung dann eben über die gesamte Wand bis zur Tür ziehen (wobei gut dann wird ggf. der Eingang rect schmal). Der Vorkasten könnte dann ja eine Ablage enthalten. Oder eben in der Dusche rüber und dann an der Duschseite die nicht Außenwand ist ausführen.
Aber wenn dich der Kasten da so stört, warum nicht das Rohr dort runter laufen lassen und eben ie Abkastung dann eben über die gesamte Wand bis zur Tür ziehen (wobei gut dann wird ggf. der Eingang rect schmal). Der Vorkasten könnte dann ja eine Ablage enthalten. Oder eben in der Dusche rüber und dann an der Duschseite die nicht Außenwand ist ausführen.
Ähnliche Themen