Hausbau - Ratgeber
Bauherrenhilfe
- Bauherrenhilfe vor Vertragsabschluss
-- Warum einen unabhängigen Baubetreuer?
-- Vertragsgrundlagen
-- Bausumme
-- Zahlungsplan zur Kostenkontrolle
-- Pflichten des Bauherren vor Vertragsabschluss
-- Unterlagen beim Hausbau vor Vertragsabschluss
- Bauherrenhilfe nach Vertragsabschluss
-- Bauantrag bei Behörden
-- Bau-Genehmigungsverfahren bei Baubehörden
-- Bauspezifische Versicherungen
-- Bauzeitenplan
-- Baubeginn - die Letzten Pflichten der Bauherrschaft
- Bauherrenhilfe während der Bauzeit
- Gewährleistungsansprüche
- Bauabnahme
Baufinanzierung
- Baufinanzierung - Allgemeine Fragen
- Kreditarten
- Kredit-Konditionen
- Bausparen
- Staatliche Förderungen
- Verkehrswert
- Haushaltsrechnung und Bonität
Hausbau Planung
- Haustypen
- Hausbau Vorbereitungsarbeiten
- Das Baugrundstück
- Baugrund beim Hausbau
- Baurecht
- Gebäudeschutz
- Erdarbeiten und Wasserhaltung
- Stützmauern
- Einfriedung
- Untergeschoss
- Kanalisation
- Tragende Elemente
- Nichttragende Innenwände
- Fundation / Fundament
- Deckenkonstruktionen
- Dächer
- Kaminanlagen
- Treppen Rampen Leitern
- Dachbeläge und Spengler
- Fenster
- Sonnen und Wetterschutz
- Aussenputze
- Einbauten, Küchen, Türen
- Bodenbeläge und Unterlagsböden
- Parkett
- Gips, Wand, Decke
Haustechnik und Energie
- Heiztechnik
- Lüftung und Klimatechnik
- Sanitärtechnik
- Elektrotechnik
- Erneuerbare Energie
Whirlpools / Jacuzzi
Hausbau Magazin
- Baufinanzierung trotz Krise?
- Das Blockhaus
- Moderne Dämmstoffe im Vergleich
- Erker Vor- und Nachteile
- Glasflächen beim Hausbau
- Günstig ein Haus Bauen
- Mediterraner Hausbaustil
- Mehrgenerationenhaus
- Moderne Architektur
- Gartengestaltung leicht gemacht
- Traditioneller Ziegelbau
- Villa als höchster Traum
- Im Eigenheim Ruhestand geniessen
- Altbau sanieren
- Kauf einer Holzgarage
- Immobilienmakler
- Arbeitshandschuhe für den Winter
- Zuhause verschönern
- Outdoor-Plissees
- Schlafzimmer planen
- Terrassenüberdachung
- Wohngebäudeversicherung
- Girokonto für Bauherren finden
- Hauseingang gestalten
- Zaunarten und Eigenschaften
- Der perfekte Grundriss
- Sparsamer heizen im Altbau
- Einfamilienhaus smart finanzieren
- Planung einer PV-Anlage
- Neues Haus
- Immobilienfinanzierung
- Installation einer Photovoltaikanlage
- Asbest erkennen und entfernen
- Gartenpflege im Frühling – worauf achten
- Sauna im Fokus - Wellness zuhause
- Erfolgreich vermieten
- Die perfekte Winterbekleidung
- Das Niedrigenergiehaus
- Der April und seine Stürme
- Architektonische Vielfalt
- Ökologisch und nachhaltig bauen
- Das perfekte Schlafzimmer
- Nachhaltige Energieversorgung
- Zukunftsorientiert bauen
- Nachhaltigkeit beim Hausbau
- Tiny Houses
- Wärmepumpen als nachhaltige Heizvariante
- Maßgeschneiderten Kleiderschrank
- Der richtige Baukredit
- Ratgeber für erfolgreichen Hausbau
- Haus als Altersvorsorge
Do-it-yourself Anleitungen
- Verlegeanleitung für Bodenbeläge und Parkett
- Bodenbeläge und Parkett reinigen und pflegen
- Malerarbeiten am Haus
- Garten Tipps
- Umzug und Reinigung

ᐅ Flach mit Begrünung ohne Attika

Erstellt am: 19.12.18 12:02
C
Christian K.
C
Christian K.
19.12.18 12:02
Hallo Zusammen,

wir planen ein Haus mit Flachdach und müssen dieses extensiv Begrünen. Wir würden gern auf die Attika verzichten, jedoch hat man uns davon abgeraten. Ein Grund war, dass man bei einer Begrünung eine Attika benötigt, was ich auch so teilweise im Netz gelesen habe. Der andere Grund war, dass durch die Randlage der Wind die Begrünung wegwehen kann, wenn keine Attika vorhanden ist.

Ich habe nun aber auch gehört, dass man früher immer eine Attika verwendet hat, aber heute es auch andere Möglichkeiten geben soll. Wie gut diese sind und ob sie sich mit dem Wind vertragen, kann ich natürlich nicht einschätzen. Könnt ihr hierzu etwas sagen?

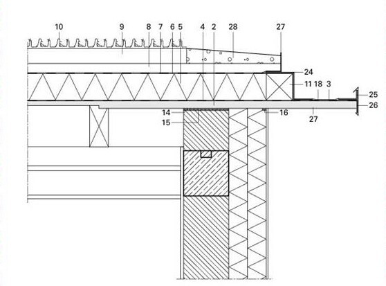
Hier ist ein Beispiel einer Dachbegrünung ohne Attika.

Querschnitt einer Dachkonstruktion über Wand, Fundament, Dämmung und Bodenplatten


Was mich auch interessieren würde ist auch, ob sich die Höhe des Dachaufbaus ändert, wenn man auf die Attika verzichtet (dem zufolge auch die Gesamthöhe des Hauses).

Viele Grüße
CK
M
Mottenhausen
19.12.18 12:38
Zwecks Höhe des Hauses musst du schauen, welcher Bestandteil als Bezug genommen wird? Was steht im Bebauungsplan oder im Gesetz? Manchmal wird eine Attikahöhe bis Max. xy cm verlangt, manchmal zählt wirklich der höchste Punkt des Hauses z.B. Schornstein oder Photovoltaikanlage, manchmal zählt die Traufhöhe (dann darf die Attika das überschreiten).

In deiner Skizze nimmt die Verblechung (Nr.27) die Aufgabe einer niedrigen Attika wahr, einen Abschluss muss es nun mal geben. Das abgeböschte Kiesbett (Nr.28) erlaubt keine starken Böschungswinkel, da man an dieser Stelle kein gebrochenes Material verwendet. Die Dicke der Pflanzboden- & Wasserspeicherschicht Nr.8 wird durch die geplante Pflanzenart vorgegeben.

Dir geht es um den Dachüberstand, der bei einer Attika entfallen würde?
C
Christian K.
19.12.18 12:53
Danke für die schnelle Antwort.

Wenn ich den Bebauungsplan richtig lese, dann wird an der Firsthöhe gemessen. "Die Max. zulässige Firsthöhe bei Dächern mit einer Dachneigung > 15° beträgt 12m.Die Max. zulässige Gebäudeoberkante bei Dächern mit einer Dachneigung <= 15° beträgt 9m".

Was wäre das in meiner Zeichnung? Die "25, 24, 27 oder 10", vereinfacht gesagt? Ich denke die 10, weil es der höchste Punkt ist, hoffe aber auf einen niedrigeren Wert
Mottenhausen schrieb:
Das abgeböschte Kiesbett (Nr.28) erlaubt keine starken Böschungswinkel, da man an dieser Stelle kein gebrochenes Material verwendet.
Was meinst du damit?
Mottenhausen schrieb:
Dir geht es um den Dachüberstand, der bei einer Attika entfallen würde?
Wir haben zwei Gründe:
1. Wir wollen wissen ob das geht, da man uns teilweise wegen Wind etc. davon abrät
2. Wir wollen die Raumhöhen richtig planen und wollen daher wissen, welchen Punkt wir zur Berechnung nutzen sollen. Bei einer Attika wäre dies vermutlich die Attika und wir hoffen, dass wenn diese Wegfällt, die Gebäudehöhe auch etwas sinkt. Wenn aber der die (Nr. 10) als Gebäudehöhe genommen wird, ist es ja egal.
attikabegrünungbebauungsplanfirsthöhedachneigung