Hausbau - Ratgeber
Bauherrenhilfe
- Bauherrenhilfe vor Vertragsabschluss
-- Warum einen unabhängigen Baubetreuer?
-- Vertragsgrundlagen
-- Bausumme
-- Zahlungsplan zur Kostenkontrolle
-- Pflichten des Bauherren vor Vertragsabschluss
-- Unterlagen beim Hausbau vor Vertragsabschluss
- Bauherrenhilfe nach Vertragsabschluss
-- Bauantrag bei Behörden
-- Bau-Genehmigungsverfahren bei Baubehörden
-- Bauspezifische Versicherungen
-- Bauzeitenplan
-- Baubeginn - die Letzten Pflichten der Bauherrschaft
- Bauherrenhilfe während der Bauzeit
- Gewährleistungsansprüche
- Bauabnahme
Baufinanzierung
- Baufinanzierung - Allgemeine Fragen
- Kreditarten
- Kredit-Konditionen
- Bausparen
- Staatliche Förderungen
- Verkehrswert
- Haushaltsrechnung und Bonität
Hausbau Planung
- Haustypen
- Hausbau Vorbereitungsarbeiten
- Das Baugrundstück
- Baugrund beim Hausbau
- Baurecht
- Gebäudeschutz
- Erdarbeiten und Wasserhaltung
- Stützmauern
- Einfriedung
- Untergeschoss
- Kanalisation
- Tragende Elemente
- Nichttragende Innenwände
- Fundation / Fundament
- Deckenkonstruktionen
- Dächer
- Kaminanlagen
- Treppen Rampen Leitern
- Dachbeläge und Spengler
- Fenster
- Sonnen und Wetterschutz
- Aussenputze
- Einbauten, Küchen, Türen
- Bodenbeläge und Unterlagsböden
- Parkett
- Gips, Wand, Decke
Haustechnik und Energie
- Heiztechnik
- Lüftung und Klimatechnik
- Sanitärtechnik
- Elektrotechnik
- Erneuerbare Energie
Whirlpools / Jacuzzi
Hausbau Magazin
- Baufinanzierung trotz Krise?
- Das Blockhaus
- Moderne Dämmstoffe im Vergleich
- Erker Vor- und Nachteile
- Glasflächen beim Hausbau
- Günstig ein Haus Bauen
- Mediterraner Hausbaustil
- Mehrgenerationenhaus
- Moderne Architektur
- Gartengestaltung leicht gemacht
- Traditioneller Ziegelbau
- Villa als höchster Traum
- Im Eigenheim Ruhestand geniessen
- Altbau sanieren
- Kauf einer Holzgarage
- Immobilienmakler
- Arbeitshandschuhe für den Winter
- Zuhause verschönern
- Outdoor-Plissees
- Schlafzimmer planen
- Terrassenüberdachung
- Wohngebäudeversicherung
- Girokonto für Bauherren finden
- Hauseingang gestalten
- Zaunarten und Eigenschaften
- Der perfekte Grundriss
- Sparsamer heizen im Altbau
- Einfamilienhaus smart finanzieren
- Planung einer PV-Anlage
- Neues Haus
- Immobilienfinanzierung
- Installation einer Photovoltaikanlage
- Asbest erkennen und entfernen
- Gartenpflege im Frühling – worauf achten
- Sauna im Fokus - Wellness zuhause
- Erfolgreich vermieten
- Die perfekte Winterbekleidung
- Das Niedrigenergiehaus
- Der April und seine Stürme
- Architektonische Vielfalt
- Ökologisch und nachhaltig bauen
- Das perfekte Schlafzimmer
- Nachhaltige Energieversorgung
- Zukunftsorientiert bauen
- Nachhaltigkeit beim Hausbau
- Tiny Houses
- Wärmepumpen als nachhaltige Heizvariante
- Maßgeschneiderten Kleiderschrank
- Der richtige Baukredit
- Ratgeber für erfolgreichen Hausbau
- Haus als Altersvorsorge
Do-it-yourself Anleitungen
- Verlegeanleitung für Bodenbeläge und Parkett
- Bodenbeläge und Parkett reinigen und pflegen
- Malerarbeiten am Haus
- Garten Tipps
- Umzug und Reinigung

ᐅ Fertighausbau mit Massivhaus-Grundriss sinnvoll?

Erstellt am: 23.09.24 22:50
S
Skya2020
Hallo zusammen,

wir haben gerade ein Grundstück in NRW gekauft. Die Vorbesitzer hatten bereits einen Architekten beauftragt, der den Bau in Massivbauweise komplett begleiten sollte und schon über 50k€ für die Phasen 1-6 bezahlt. Es gibt bereits eine Baugenehmigung und man könnte quasi sofort mit dem Bau starten.
Wir haben allerdings vorgehabt in Fertigbauweise zu bauen und fragen uns jetzt wie wir am besten vorgehen. Die Vorbesitzer haben uns angeboten ihnen die Planung abzukaufen. So oder so müssten wir diese (abgesehen von den Außenmaßen) noch an unsere Wünsche anpassen.
Das Grundstück liegt am Hang und es gibt jetzt auch nicht viele Möglichkeiten diesen zu bebauen, daher würde es so oder so auf einen ähnlichen Entwurf hinauslaufen.
Ergibt es Sinn den Vorbesitzern die Planungen abzukaufen und dann mit dem Architekten Änderungen einzuarbeiten und damit dann zu Fertighausanbietern zu gehen? Oder kann man mit den Grundrissen aufgrund anderer Bauweise eh nicht viel anfangen und es macht mehr Sinn nochmal selbst einen anderen Architekten für eine Entwurfsplanung zu beauftragen?
Und falls ihr das abkaufen würdet - wie viel würdet ihr bezahlen (eine gute Verhandlungsbasis haben sie ja nicht grade...)?

Wir stehen komplett am Anfang unserer Hausbau-Reise daher entschuldige ich mich schonmal, falls die Frage total dumm ist... Wir wissen einfach nicht recht wie wir jetzt am besten starten sollen.
S
Skya2020
25.09.24 12:46
11ant schrieb:

Dann verlinke doch mal den besagten Beitrag.
https://www.hausbau-forum.de/threads/bohn-massivhaus-gmbh-erfahrungen-wer-hat-mit-denen-gebaut.28082/

Der Architekt war jetzt nicht derselbe wie in diesem Beitrag wenn ich es richtig sehe, ist aber Teil der Firma
H
hanghaus2023
25.09.24 12:59
Ich habe mal das Haus 1 m kürzer gemacht sonst reicht Euer Budget nicht. Das bringt ca. 100 k Einsparung. Ansonsten noch so einige Änderungen.


Grundriss eines Wohnhauses mit Terrasse, Garten und Bäumen; Orientierung nach Norden.



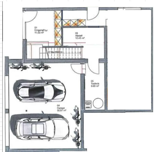
Grundriss eines Hauses: Garage mit zwei Autos, Treppe, Eingangsbereich, Abstellraum.




Grundriss einer Wohnung: offenes Koch-/Esszimmer, Wohnzimmer, Schlafzimmer, Bad, Flur, Terrasse


Das die Terrasse im Westen zu kurz ist habe ich nicht korrigiert.


Grundriss eines Wohnhauses mit Flur, Treppenhaus, Elternbad, Schlafzimmer und zwei Kinderzimmer
H
hanghaus2023
25.09.24 13:06
Ich wollte den Grundstück Plan noch richtig drehen. Wieder mal die 4 min.



Grundriss eines Hauses über einem Architekturplan mit Garten und Bäumen.


DIe Fenster habe ich noch nicht angepasst.
S
Skya2020
25.09.24 13:42
hanghaus2023 schrieb:

Ich wollte den Grundstück Plan noch richtig drehen. Wieder mal die 4 min.
DIe Fenster habe ich noch nicht angepasst.
Das ist sehr lieb, aber unser Budget ist ja noch gar nicht in Stein gemeißelt. Und da wir uns das Haus jetzt neu planen lassen, würde ich mich gar nicht so intensiv mit diesem Grundriss beschäftigen. Vielleicht ergibt sich ja doch eine etwas andere Planung. Da gibt es dann mit Sicherheit auch Optimierungsmöglichkeiten
11ant25.09.24 14:17
Skya2020 schrieb:

Der Architekt war jetzt nicht derselbe wie in diesem Beitrag wenn ich es richtig sehe, ist aber Teil der Firma
Also der Architekt hinter den Euch angebotenen Plänen ist Teil dieses Bauunternehmens (?)
https://www.instagram.com/11antgmxde/
https://www.linkedin.com/company/bauen-jetzt/
S
Skya2020
25.09.24 14:23
11ant schrieb:

Also der Architekt hinter den Euch angebotenen Plänen ist Teil dieses Bauunternehmens (?)
Genau. Das ist quasi Architekturbüro mit angeschlossenem Bauunternehmen.
architekt