Ferienhaus Einfamilienhaus Grundrissplanung ca. 165 qm

4,50 Stern(e) 6 Votes
Zuletzt aktualisiert 24.11.2025
Sie befinden sich auf der Seite 3 der Diskussion zum Thema: Ferienhaus Einfamilienhaus Grundrissplanung ca. 165 qm
>> Zum 1. Beitrag <<

Y

ypg

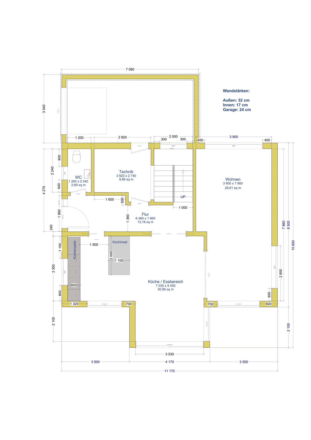
Ich seh das genauso: kleinere Schlafzimmer mit eigenem Dusch-WC, dann bleibt auch ein Raum für eine Sauna mit Ersatzdusche übrig. Schöner Allraum für alle. Ich würde versuchen, unten noch ein Schlafzimmer zu generieren, für die Eltern, die irgendwann keine Treppe mehr gehen können.
 
P

Pardan86

Zuletzt aktualisiert 24.11.2025
Im Forum Grundrissplanung / Grundstücksplanung gibt es 2536 Themen mit insgesamt 88012 Beiträgen


Ähnliche Themen zu Ferienhaus Einfamilienhaus Grundrissplanung ca. 165 qm
Nr.ErgebnisBeiträge
1Sauna im Haupt-Bad oder im Keller? - Seite 634
2was für Farben für das Schlafzimmer ? 44
3Ankleide/Schlafzimmer Problem - Grundrissdiskussion 25
4Schlafzimmer auf der Südseite zu warm? 18
5Heizung Kinderzimmer,schlafzimmer und Bad 14
6Gestaltung Schlafzimmer 35
7Grundriss Elternbad und Durchgang zu Schlafzimmer 13
8Pfiffige Schlafzimmer Idee mit Ankleide gesucht 19
9Größe vom Schlafzimmer und Kinderzimmer - Seite 238
10Schlafzimmer warm im Haus mit Lüftung inkl. Wärmerückgewinnung 24
11Teppich im Schlafzimmer trotz Fußbodenheizung? 36
12Extra-Bad vom Schlafzimmer oder doch Abstellraum? 29
13Schaltung - Schlafzimmer - Deckenleuchte / Nachttischlampe 12
14Dachfenster im Schlafzimmer? 13
15Abluft im Schlafzimmer - Zuluft im Abstellraum 24
16Kinderzimmer und Schlafzimmer - Welche Größe ist zu empfehlen? 56
17Verbindung Schlafzimmer / Ankleidezimmer / Bad 16
18Feuchtigkeit im Schlafzimmer an Außenwand - Woher kommt die? 10
19Idee Schlafzimmer - Bett / Schrank Anordnung 32
20Schalldämmung - geräusche aus dem Schlafzimmer 27

Oben