Guten Tag Liebe Forumgemeinde,
ich bin ein stiller Mitleser und hole mir sehr viele Ideen aus diesem Forum. Ich weiß nicht, ob das Thema hier richtig ist. Wenn nicht, bitte einmal verschieben.
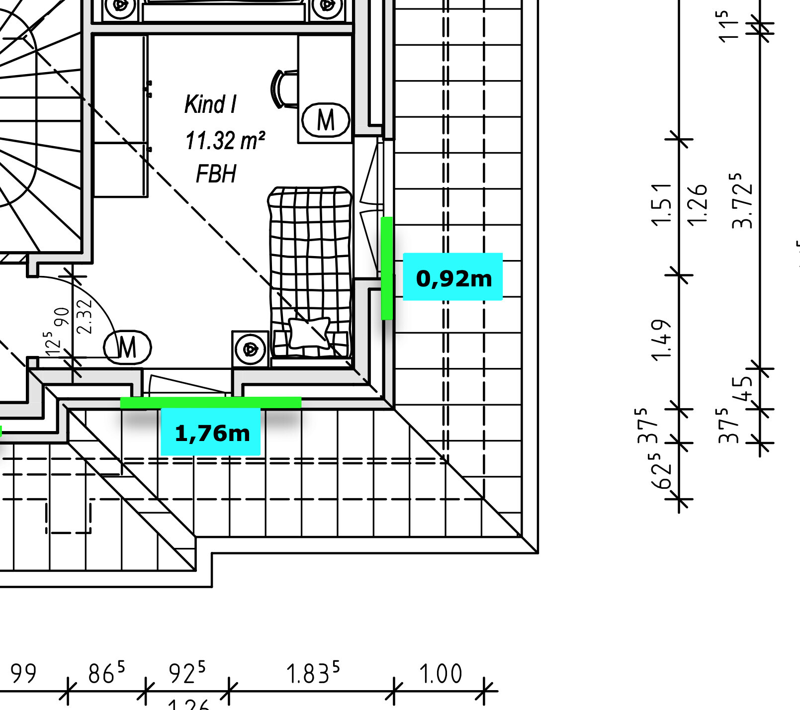
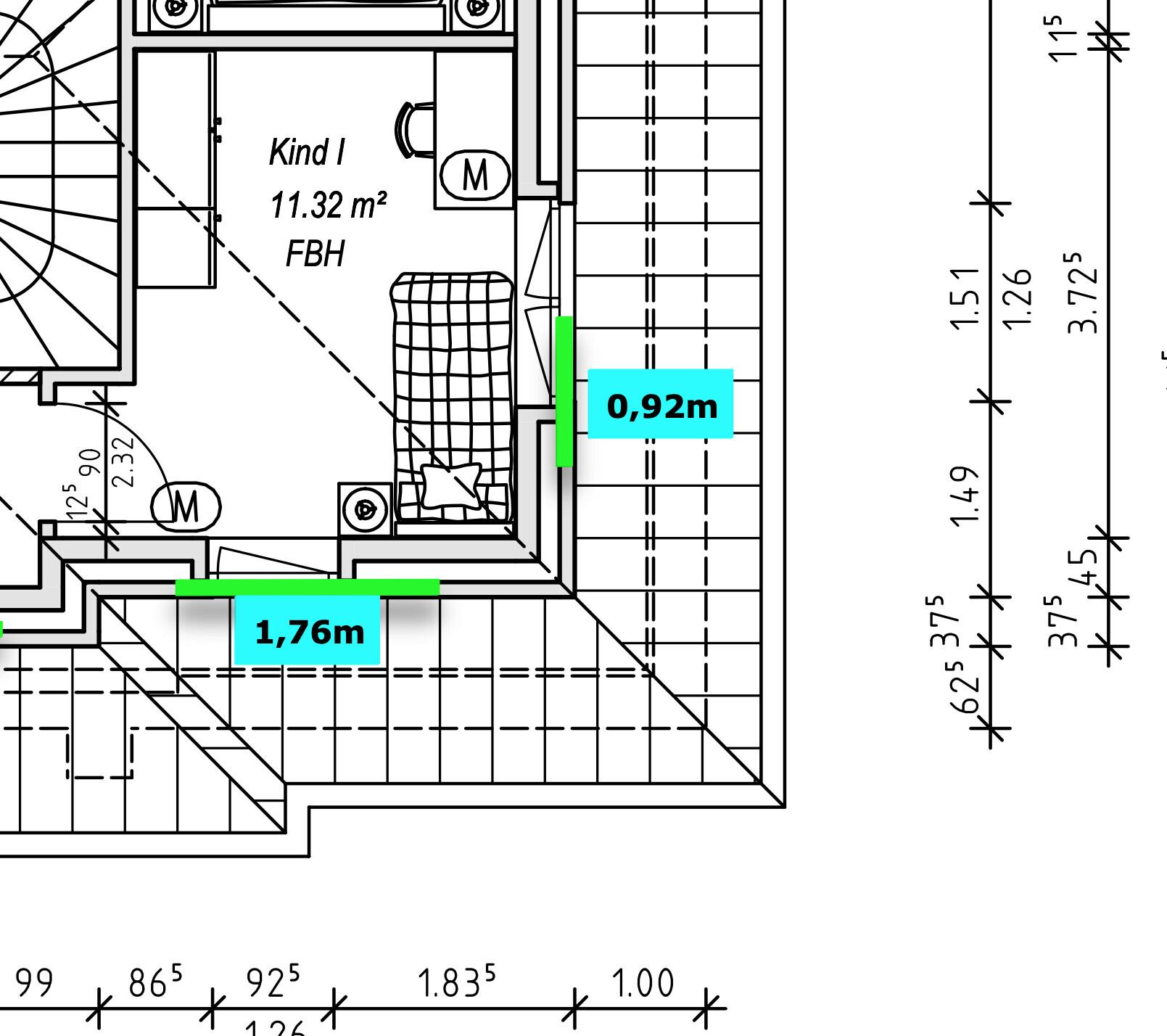
Wir bauen ein Staffelgeschoss und grübeln gerade über die Fenstergrößen in den Kinderzimmern.
Hat jemand vllt ähnliche Kinderzimmer? Und kann sagen, ob es zu viel Fensterfront ist? Immerhin sind die Kinderzimmer nicht riesengroß. Der Nordpfeil geht nach unten links!
Vielen Dank! 🙂


ich bin ein stiller Mitleser und hole mir sehr viele Ideen aus diesem Forum. Ich weiß nicht, ob das Thema hier richtig ist. Wenn nicht, bitte einmal verschieben.
Wir bauen ein Staffelgeschoss und grübeln gerade über die Fenstergrößen in den Kinderzimmern.
Hat jemand vllt ähnliche Kinderzimmer? Und kann sagen, ob es zu viel Fensterfront ist? Immerhin sind die Kinderzimmer nicht riesengroß. Der Nordpfeil geht nach unten links!
Vielen Dank! 🙂
O
Osnabruecker03.01.21 15:12Wir haben bei 16-18 m2 Zimmern je 1x1.76... reicht.
Bei 12 m2 wäre dann 1.50 wäre dann vergleichbar. Alles andere kann / kein Muss.
Bedenkt die möblierung.
Bei 12 m2 wäre dann 1.50 wäre dann vergleichbar. Alles andere kann / kein Muss.
Bedenkt die möblierung.
P
pagoni202003.01.21 20:55Ich sitze gerade in 14qm und da ist ein Fenster mit 160cm. Mehr wäre mMn zu viel. Wie schon bemerkt ist die Möblierung dadurch begrenzt.....auch für spätere Umgestaltungswünsche. Ich würde zwei "normale" Fenster als ausreichen ansehen (einflügeleig) oder ein großes, also z.B. 150-160).
Ich verstehe die Absicht dahinter aber mir wäre das aus heutiger Sicht also im Rückblick zu groß. Zwei Fenster ist schon viel, diese sollten aber dann nicht zu groß sein.
Ich verstehe die Absicht dahinter aber mir wäre das aus heutiger Sicht also im Rückblick zu groß. Zwei Fenster ist schon viel, diese sollten aber dann nicht zu groß sein.
Vielen Dank für eure Antworten 🙂 Es ist echt schwierig...
Also wir haben zweiflügelige Fenster mit Sprossen derzeit...
Unter dem Kinderzimmer haben wir das Gästezimmer mit zwei 88cm Fenstern...rein optisch klingt es besser 1.76m zu nehmen, aber das Argument mit Stellfläche ist natürlich immer da...und das zurecht 🙂
Die Frage die sich dann stellt...doppelflügel oder ein großes...der Pfosten in der Mitte nimmt ja Glasfläche ein beim Doppelflügler... 🙂
Also wir haben zweiflügelige Fenster mit Sprossen derzeit...
Unter dem Kinderzimmer haben wir das Gästezimmer mit zwei 88cm Fenstern...rein optisch klingt es besser 1.76m zu nehmen, aber das Argument mit Stellfläche ist natürlich immer da...und das zurecht 🙂
Die Frage die sich dann stellt...doppelflügel oder ein großes...der Pfosten in der Mitte nimmt ja Glasfläche ein beim Doppelflügler... 🙂
P
pagoni202003.01.21 22:28Ich würde das Fenster nicht zu breit machen, sonst öffnet man es nicht. Passt es nicht, wenn das Kinderzimmer nur EIN einflügeliges Fenster bekommt? Vlt. mal einzeichnen in den Plan, Außenansicht sollte auch nicht Kasteiung sein, von innen muss es passen.
Ähnliche Themen