Entwurf EHF mit Hanglage

4,80 Stern(e) 5 Votes
Zuletzt aktualisiert 21.11.2025
Sie befinden sich auf der Seite 2 der Diskussion zum Thema: Entwurf EHF mit Hanglage
>> Zum 1. Beitrag <<

WildThing

WildThing

Was haltet ihr eigentlich von diesem "Innenhof"? Bzw. dem Vorbei neben der Garage um dem Gebäude die Höhe zu nehmen? Gut oder schlecht?
 
WildThing

WildThing

Hallo kivaas,

nein das Haus steht noch nicht. Wir hatten erst noch ein altes Haus zum abreißen und konnten erst danach starten.
Aber seit 2 Wochen ist es endlich losgegangen und wir nächste Woche wird die Bodenplatte für den Keller gegossen. Es sieht aber inzwischen doch nochmal anders aus als in den Plänen angegeben. (Siehe mein Profilbild) .
Wir haben aber jetzt schon festgestellt das man bei einem Hanggrundstück wirklich mit Mehrkosten bei der Gründung (Erdaushub ist bei uns fast doppelt so viel gewesen wie bei "normalen" Einfamilienhaus) und der späteren Gartengestaltung rechnen muss. Und auch unser Flachdach auf der Garage ist teurer als ein normales Dach und als wir vermutet hätten. Dafür wurde es jetzt eben eine etwas günstigere Heizungsvariante ;-)
 
Kisska86

Kisska86

Übriegens, dass mit den Mehrkosten beim Haus am Hang, ist echt heftig. Das sollte jeder sich ganz genau überlegen. Gerade jetzt bei der Gartengestaltung merken wir es auch... Hier drückendens Wasser, da eine Drainage, da doch noch eine Sickergrube, und, und, und... *mussweg*
 
WildThing

WildThing

Hallo Kisska,

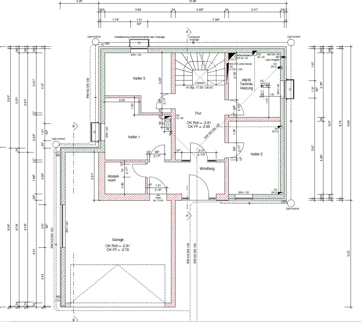
nein die endgültigen Werkpläne hatte ich noch nirgends gepostet. Ich hab sie gleich mal hier angehängt :)

Architektenzeichnung: Hausfassaden Sudosten und Sudwesten eines Einfamilienhauses

Architektonische Hausfassaden Nordwesten und Nordosten als Linienzeichnung


Grundrissplan eines Kellergeschosses mit Garage und Treppenhaus


Grundriss Erdgeschoss eines Hauses mit Wohnen, Essen, Kochen, Flur und Terrasse.


2D-Grundriss Obergeschoss mit Flur, Bad, Schlafzimmer und Kinderzimmer



Außerdem noch die fotorealistischen Ansichten unser Küche, die einfach hammermäßig ausschaut! Bin gespannt wie es dann in echt wird.:D:)

Moderne 3D-Küche mit Insel, weißen Schränken und Holz-Arbeitsplatten

Moderne helle Küche mit Holzelementen, Kochinsel und Essbereich


Der Rohbau inkl. Dach und Fenster steht nun. Auch das Flachdach auf der Garage ist seit gestern fertig. Die Elektrorohinstallation ist auch fertig. Wir haben inzwischen den Heizungsraum Verputzen lassen und nur dort den Estrich legen lassen. Sobald der in 2-3 Wochen trocken ist, können wir dort Fliesen legen und die Heizung installieren. Da machen wir dann auch die Sanitär Rohinstallation.

Beim Gartenbau sind wir noch gar nicht angelangt, bzw. nur so halb. Mussten hinter dem Haus als Hangabstützung schon Gabionen setzten, weil die direkt mit de Kran vom Rohbauer hingesetzt wurden. Der Rest vom Garten wird erst nächstes Jahr kommen (wenn wir da überhaupt schon Lust haben....)
 
Zuletzt aktualisiert 21.11.2025
Im Forum Grundrissplanung / Grundstücksplanung gibt es 2535 Themen mit insgesamt 87982 Beiträgen


Ähnliche Themen zu Entwurf EHF mit Hanglage
Nr.ErgebnisBeiträge
1Begehbare Garage (Terrasse) 11
2Grundriss mit Garage auf Grundstück realisierbar? - Seite 329
3Garage zu tief wegen Ortsgestaltungssatzung - Seite 213
4Werkplanung Einfamilienhaus 180qm Flachdach mit Keller & Doppelgarage 142
5Garage: Was heist "angebaut"? Dass das Mauerwerk verbunden ist? 15
6Feedback zum Grundriss - Einfamilienhaus Flachdach 34
7Grundriss Einfamilienhaus mit Flachdach auf 600m² Grundstück 19
8Grundrissplanung und Überdachung Garage 11
9Garage im Haus oder Carport daneben 10
10Grundriss Einfamilienhaus 2 Vollgeschosse 195 qm Satteldach in Bayern - Seite 225
11Kombination aus Pultdach und Flachdach 14
12Einfamilienhaus mit Flachdach - eure Meinungen? 15
13Alternative zum Flachdach 16
14Wasser auf Flachdach - doppelte Lagen Dachabdichtung 11
15Stattvilla mit "Satteldach" oder Flachdach 37
16Sat-Antenne auf Flachdach - Montage und Kabelverlegung 11
17kosten begehbares Flachdach - Seite 213
18Staffelgeschoss erlaubt wenn Bebauungsplan Flachdach gefordert? 15
19Sattel- oder Flachdach - Erfahrungen? 18
20Staffelgeschoss, Dachgeschoss, Satteldach, Flachdach 11

Oben