Elektroplanung zukunftssicher planen

4,80 Stern(e) 12 Votes
Zuletzt aktualisiert 21.11.2025
Sie befinden sich auf der Seite 13 der Diskussion zum Thema: Elektroplanung zukunftssicher planen
>> Zum 1. Beitrag <<

Araknis

Araknis

Elektriker nötigen, die CAT-Kabel in Keystones mit ausreichend Restkabel an geigneter freier Stelle (!) zu verpacken und dann selbst mit 19" Rack Hand anlegen und hübsch machen.
So und nicht anders. Elektriker sind in den seltensten Fällen der richtige Ansprechpartner für's aktive Netzwerk. Und drauf bestehen, dass dir der Elektriker nach der Leitungsinstallation auch alles ordentlich durchmisst, d.h. mindestens verifiziert und nicht nur die Belegung durchklingelt.
 
M

MBPassion

wie teuer ist eine Doppeldose im Vergleich zur Einzeldose. Und wenn das wie bei euch unwesentlich mehr ist, nehmen wir die Doppeldosen.
Nimm am besten gleich die Doppeldosen, wo möglich. Der Mehrpreis ist im Kontext des gesamten Hausbaus vernachlässigbar und so bietet es auch ein Maß an Ausfallsicherheit, falls ein Kabel doch mal beschädigt sein sollte. Ich persönlich würde nur schauen, dass es am Ende nicht mehr als 24 Verlegekabel sind, da die 19"-Patchpanels entweder 24 Ports oder dann gleich 48 Ports aufnehmen.

Beim TV tue ich mir total schwer. Die Zwischenwand wird Sichtbeton und soll entsprechend clean aussehen. Der Fernseher kommt an die Wand. Ich halte es daher für sinnvoll hinter den TV Strom, Sat und Netzwerk zu planen und darunter auf Lowboardhöhe nochmal Strom und Netzwerk.
Wie seht ihr das?
Wie das mit dem Sichtbeton ist, kann ich nicht sagen. Ich habe bei uns vom Elektriker gleich mal einen Kabelschacht in die Wand legen lassen, der dann vom Maler ordentlich verputzt wurde. Hier kann man es erkennen:


Anhang anzeigen renovierung-innenausbau-raum-hell-und-leer.jpg

Unten (auf Lowboard-Höhe) befinden sich dann einige Steckdosen, die Sat-Anschlüsse und eine LAN-Doppeldose. Alternativ könnte man sich das auch auf Höhe des TVs setzen lassen, aber die Kabel haben ja alle eine gewisse Länge und lassen sich dann nicht mehr so leicht hinter dem Fernseher quetschen.

Nachträglich gibt es auch die Möglichkeit, eine dekorative Holzwand auf die eigentliche Wand zu setzen, hinter der dann die Kabel verlaufen können.
 
Mycraft

Mycraft

Moderator
Der Fernseher kommt an die Wand. Ich halte es daher für sinnvoll hinter den TV Strom, Sat und Netzwerk zu planen und darunter auf Lowboardhöhe nochmal Strom und Netzwerk.
Wie seht ihr das?
Ja in der Nähe des Fernsehers 4 Anschlüsse planen. Man hat nie genug auch wenn Geräte kabellos ins Netz kommen, dann sind doch 2-3 an der Stelle mit Kabel und schon ist wieder alles voll. Dort wo an der Wand der Fernseher hinkommt einfach ein HT-Rohr/Installationsrohr einputzen bzw. im Betonwerk schon einlegen lassen.
Ausreichend im Durchmesser damit alle Medien und Strom durchgezogen werden können. ggf auch an HDMI-Kabel denken und natürlich auch Lautsprecher.

Zu den beiden Netzwerkdosen außen: Ich hatte eine für die Markise (App-Steuerung?) und eine für den Outdoor Accesspoint vorgesehen?
Und ggf. auch überlegen ob man Kameras anbauen mag. Nicht unbedingt wegen Einbruchschutz(aber auch). Diese sind mit POE meistens besser angebunden als alles andere.

Einen anderen TV Platz wird es im Hauswirtschaftsraum geben.
Ist nicht verkehrt.

@MBPassion
Schaut ordentlich aus :) ich habe auf dem Telefon erst gerätselt was denn das für ein Raum ist. Am Laptop war es dann klar dass die Sache unter der Betontreppe stattfindet :)
 
M

majuhenema

Deshalb: Elektriker nötigen, die CAT-Kabel in Keystones mit ausreichend Restkabel an geigneter freier Stelle (!) zu verpacken und dann selbst mit 19" Rack Hand anlegen und hübsch machen.
Ab diesem Schritt geht es im Prinzip "nur noch" darum die Kabel in den Netzwerkschrank zu legen, vom Patchpanel über den Switch zu verbinden und das Netzwerk mit der Fritzbox und den Accesspoint einzurichten und alles vernünftig zu bechriften, oder?

Nimm am besten gleich die Doppeldosen, wo möglich. Der Mehrpreis ist im Kontext des gesamten Hausbaus vernachlässigbar und so bietet es auch ein Maß an Ausfallsicherheit, falls ein Kabel doch mal beschädigt sein sollte.
Doppeldose bedeutet für den Elektriker in der Praxis einfach nur ein Duplexkabel zu verwenden und pro Seite 1x mehr zu belegen, oder?

Ich habe bei uns vom Elektriker gleich mal einen Kabelschacht in die Wand legen lassen, der dann vom Maler ordentlich verputzt wurde. Hier kann man es erkennen:
Das ist sehr schlau! Wie groß ist denn die Öffnung des Leerrohres und reicht dir diese? Ich muss ja irgendeine Vorgabe machen..

Ja in der Nähe des Fernsehers 4 Anschlüsse planen. Man hat nie genug auch wenn Geräte kabellos ins Netz kommen, dann sind doch 2-3 an der Stelle mit Kabel und schon ist wieder alles voll. Dort wo an der Wand der Fernseher hinkommt einfach ein HT-Rohr/Installationsrohr einputzen bzw. im Betonwerk schon einlegen lassen.
Ausreichend im Durchmesser damit alle Medien und Strom durchgezogen werden können. ggf auch an HDMI-Kabel denken und natürlich auch Lautsprecher.
Mit dem TV hast du recht. Mit TV und Alexa wären schon jetzt zwei Anschlüsse belegt und kein Platz mehr für weitere Geräte. Sound oder ähnliches haben wir aktuell gar nicht.

Einen überarbeiteten Plan hänge ich in einem weiteren Post an. Spoiler: 24 Ports reichen nicht.
 
M

majuhenema

Hier nun die überarbeiteten Pläne unter Berücksichtigung eurer Vorschläge und kurzer Erklärung.

Untergeschoss: 6 Anschlüsse
Büro mit Doppeldose belegt und Platz für Accesspoint an der Decke
Eingang für Türaußenstation (Kamera)
Garage Doppeldose für Wallbox
Technikraum halten wir Rücksprache


Grundriss eines Hauses mit Technik, Büro, Flur, Garderobe/Abstell, Doppelgarage, Terrasse.


Erdgeschoss: 11 Anschlüsse
2x Doppeldose am TV
2x Accesspoint (Übergang Wohnen/Essen)
Doppeldose in Hauswirtschaftsraum
2x außen für Markise/Beschattung und Accesspoint außen
1x für Türinnenstation


Grundriss eines Hauses: Flur, WC, HWR, Speis, Wohnen/Essen/Kochen und Terrasse mit WLAN-Symbolen.


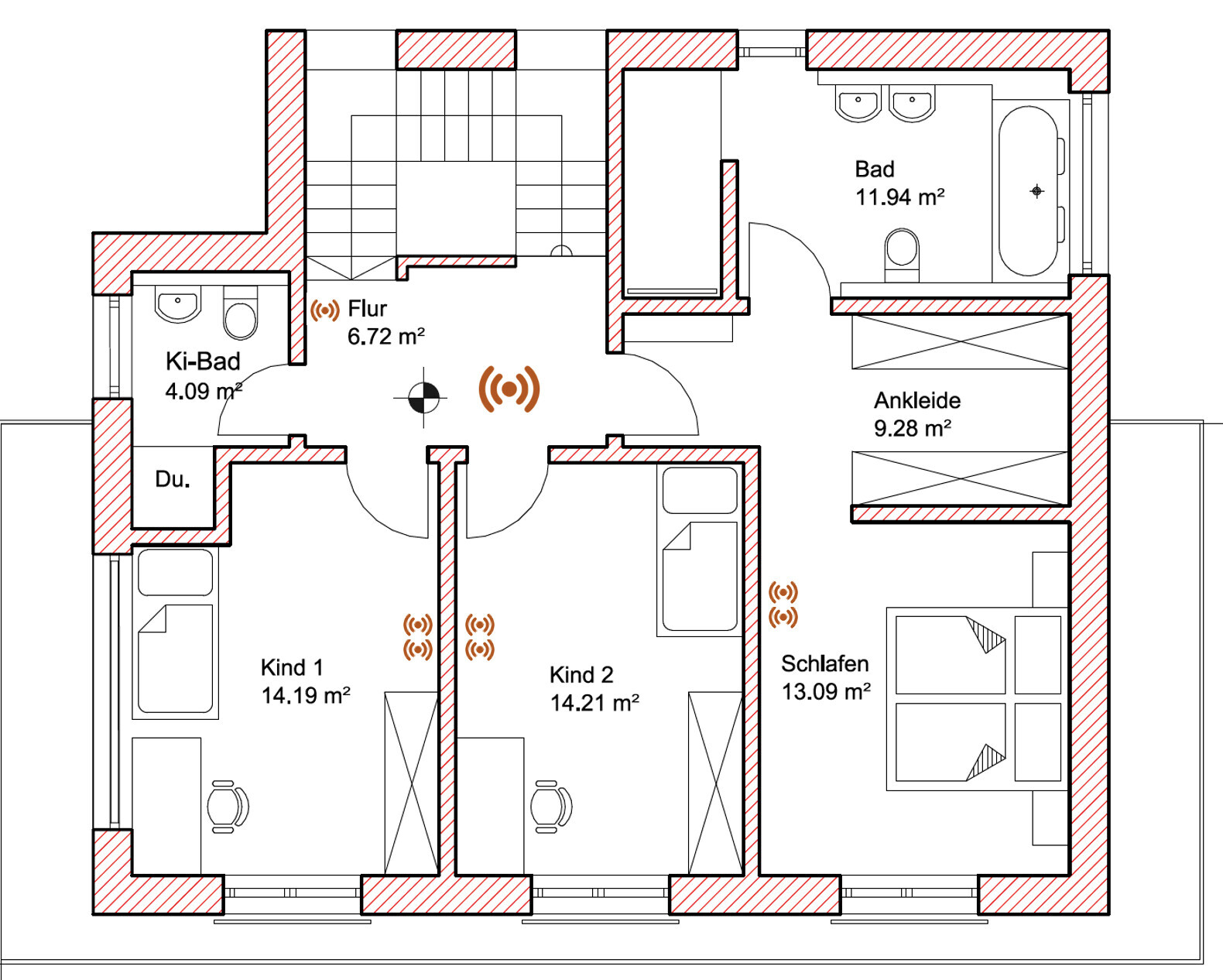
Obergeschoss: 8 Anschlüsse
Jeweils eine Doppeldose in den Kinderzimmern und Schlafzimmer
1x für Türinnenstation
1x für Accesspoint im Flur


Grundriss des Obergeschosses: Flur, Bad, Ankleide, Ki-Bad, Du., zwei Kinderzimmer, Schlafzimmer.


In der Summe ergeben das 25 Anschlüsse und ich frage mich:
1. Sollten wir doch den Accesspoint außen weglassen und den Accesspoint im Allraum Richtung Wohnzimmer verschieben?
2. Sollten wir von 4 auf 2 Anschlüsse am TV runtergehen?
3. Elternschlafzimmer nur mit einem Anschluss ausstatten, weil wir kaum TV schauen/streamen. Allerdings fehlt in der Berechnung auch noch der eventuelle Netzwerkanschluss der Heizung oder anderen Geräten im Technikraum. Was ist denn bei euch im Technikraum im Netz?
4. Größeres Patchpanel wählen und falls ja, hat das andere Nachteile und was kostet es ca. mehr?
 
Mycraft

Mycraft

Moderator
Das ist sehr schlau!
Das ist das übliche Vorgehen. Aber ja noch nicht bei allen Elektrikern angekommen.

1. Nein, weder noch
2. Nein, auch hier bei vier bleiben
3. Ja, im Schlafzimmer würde wahrscheinlich einer ausreichend sein.
4. 24 wird bei deinem Plan ausreichend sein.

Im Technikraum setzt du einfach gar keine Dosen. hier kann man immer direkt patchen da in den meisten Tehcnikräumen die mir untergekommen sind die Verkabelung soweiso Aufputz erfolgt und man jederzeit genügend Anschlüsse hat.

Bei mir z.B. haben ich am Netz im HAR:

1. Heizung
2. Hauselektrik
3. Homeserver
4. NAS
5. NVR
6. Raspbi
7. Kameras
8. Router

Bei manchen Hausbesitzern ist auch noch die Lüftung und Photovoltaik und sowas dran. Dafür jetzt Dosen extra zu setzen halte ich für überflüssig. Man kann auch alles direkt an den Switch anschließen(wenn er denn auch im HAR Platz findet).
 
Zuletzt aktualisiert 21.11.2025
Im Forum Elektrik / Elektroplanung gibt es 827 Themen mit insgesamt 13602 Beiträgen


Ähnliche Themen zu Elektroplanung zukunftssicher planen
Nr.ErgebnisBeiträge
1LAN- und W-LAN - "Geräte" je Stockwerk? - Seite 339
2Welchen Switch benötigen wir 16
3Türkontakt Kabel in den Technikraum verlegt - Seite 221
4Erfahrungen mit Cisco SG250X-24P-K9-EU Switch vorhanden? - Seite 557
5Fernseher an die Wand montieren 30
6TV / SAT-TV / Über das Netzwerk oder Verteiler und über Kabel im Neubau ? 14
7Das sichere, gehobene Netzwerk im Einfamilienhaus - Seite 259
8Cat. 7 Netzwerk von Haupthaus zu Anbau unter der Erde 27
9FTTH/Netzwerk/DECT/IPTV so richtig? - Seite 227
10Gas/Stromanschluss, wie kann man Anschlüsse legen lassen und wo 13
11Multimedia und W-LAN und Anschlüsse - Seite 322
12Anschlussdose in der Wand - Was sind das für Anschlüsse? 13
13Anschlüsse Strom etc. für Vorgarten und Garten - Seite 223
14 Elektriker-Rechnung nach 2,5 Jahren - Was sind meine Rechte? 18
15KNX vom Elektriker ohne Programmierung 67
16Abschlagszahlung Elektriker so rechtens? 23
17Ärger mit dem Elektriker / Toleranzbereich?! 42
18Was macht der Elektriker während der Rohbauphase? 19
19Baurecht: Elektriker weigert sich weiterzumachen 78
20Problem mit dem Elektriker - was würdet ihr unternehmen ? 78

Oben