S
shreyasagarwal22.02.22 23:37Hallo,
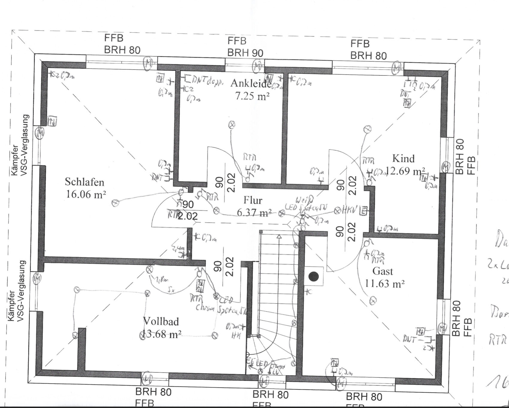
Aktuell arbeite ich an der Elektroplanung unseres Neubaus. Muss ehrlich sein, ich und meine Frau hatten uns noch nie mit diesen Dingen beschäftigt, daher würde ich mich sehr freuen, wenn Sie Ihre Meinung zur Positionierung und Anzahl der Steckdosen oder zu etwas, das in der Zeichnung fehlt oder unklar ist, schreiben würden.

Obergeschoss

Aktuell arbeite ich an der Elektroplanung unseres Neubaus. Muss ehrlich sein, ich und meine Frau hatten uns noch nie mit diesen Dingen beschäftigt, daher würde ich mich sehr freuen, wenn Sie Ihre Meinung zur Positionierung und Anzahl der Steckdosen oder zu etwas, das in der Zeichnung fehlt oder unklar ist, schreiben würden.
Obergeschoss
Was willst du denn hören?
Warum sind nicht an allen Fenstern Beschattungsmaßnahmen? Ist reine eigene Meinung, aber ich finde das irgendwie sinnlos. Entweder ganz oder gar nicht.
Bist du sicher dass zwei Steckdosen ausreichend sind am Fernseher im Wohnzimmer?
Generell schaltbare Steckdosen einplanen hier und da.
In der Küche imho zu wenig Arbeitssteckdosen, auch hier ggf. schaltbar.
Wohn-/Schlafzimmer Bad auch an andere Beleuchtungsszenarien denken und Wand- bzw. Stimmungslichter einplanen.
Beleuchtungs ums Haus und im Garten.
Garage/Carport/Tor/Gartentor/Schuppen überall auch Strom und ggf. Licht einplanen.
Warum sind nicht an allen Fenstern Beschattungsmaßnahmen? Ist reine eigene Meinung, aber ich finde das irgendwie sinnlos. Entweder ganz oder gar nicht.
Bist du sicher dass zwei Steckdosen ausreichend sind am Fernseher im Wohnzimmer?
Generell schaltbare Steckdosen einplanen hier und da.
In der Küche imho zu wenig Arbeitssteckdosen, auch hier ggf. schaltbar.
Wohn-/Schlafzimmer Bad auch an andere Beleuchtungsszenarien denken und Wand- bzw. Stimmungslichter einplanen.
Beleuchtungs ums Haus und im Garten.
Garage/Carport/Tor/Gartentor/Schuppen überall auch Strom und ggf. Licht einplanen.
Mycraft schrieb:
Garage/Carport/Tor/Gartentor/Schuppen überall auch Strom und ggf. Licht einplanen.Zusätzlich noch LAN in die Garage/Carport für eine evtl. kommende Wallbox.
So ein LAN Kabel für einen Outdoor Access Point für Terrasse und Garten hat auch was.
S
shreyasagarwal23.02.22 13:57Vielen Dank für Ihren Antwort.
Das sind die neuen Werte, die wir heute vom Elektriker bekommen haben. Wir empfinden den Daten-LAN-Ausgang für 161 Euro als sehr teuer. Wir könnten uns irren. Müssen wir irgendetwas mit dem Elektriker besprechen?




Wir werden draußen mehr LAN-Kabel hinzufügen, wollten aber wissen, ob der Preis in Ordnung ist?
Das sind die neuen Werte, die wir heute vom Elektriker bekommen haben. Wir empfinden den Daten-LAN-Ausgang für 161 Euro als sehr teuer. Wir könnten uns irren. Müssen wir irgendetwas mit dem Elektriker besprechen?
Wir werden draußen mehr LAN-Kabel hinzufügen, wollten aber wissen, ob der Preis in Ordnung ist?
draußen LAN kannst du auch später selber legen. Lass dir einfach nur ein Leerrohr mit Zugdraht anbieten in mind. 32
Die LAN Steckdosen/Leitungen sind immer so teuer weil man diese austauschbar mit Leerrohr und mit Hinblick auf die maximalen Radien verlegen muss. Inkl. Abständen zu den NYM-Leitungen.
Ein separater Stromkreis mit Steckdose kostet bei dir laut Liste ja auch knapp ~90 € und die ist dann einfach so gebohrt und das Kabel hingeworfen. Bei LAN gibt es halt wesentlich mehr zu beachten, daher auch der Preis. Wobei natürlich ~160 auch eine Hausnummer ist.
Die LAN Steckdosen/Leitungen sind immer so teuer weil man diese austauschbar mit Leerrohr und mit Hinblick auf die maximalen Radien verlegen muss. Inkl. Abständen zu den NYM-Leitungen.
Ein separater Stromkreis mit Steckdose kostet bei dir laut Liste ja auch knapp ~90 € und die ist dann einfach so gebohrt und das Kabel hingeworfen. Bei LAN gibt es halt wesentlich mehr zu beachten, daher auch der Preis. Wobei natürlich ~160 auch eine Hausnummer ist.
Ähnliche Themen