ᐅ Elektroplan Neubau Doppelhaushälfte Bewertung und Anmerkung
Erstellt am: 25.01.22 13:03
Hallo Community,
bereits viel hier gelesen und viele tolle Infos erhalten. Kurze Zusammenfassung meiner Situation:
Eigentlicher Bautermin Mai 22 -> vorverschoben auf Ende Februar / Anfang März 22. Bedeutet, Elektroplanung muss vorgezogen werden Tiefbau usw.
Hausbau kam etwas "ungünstig", da zwei Kleinkinder und Zeit sehr begrenzt. Das Angebot für ein Grundstück im Neubaugebiet um die Ecke mussten wir annehmen.
jetzt zum eigentlichen Thema: Elektroplan
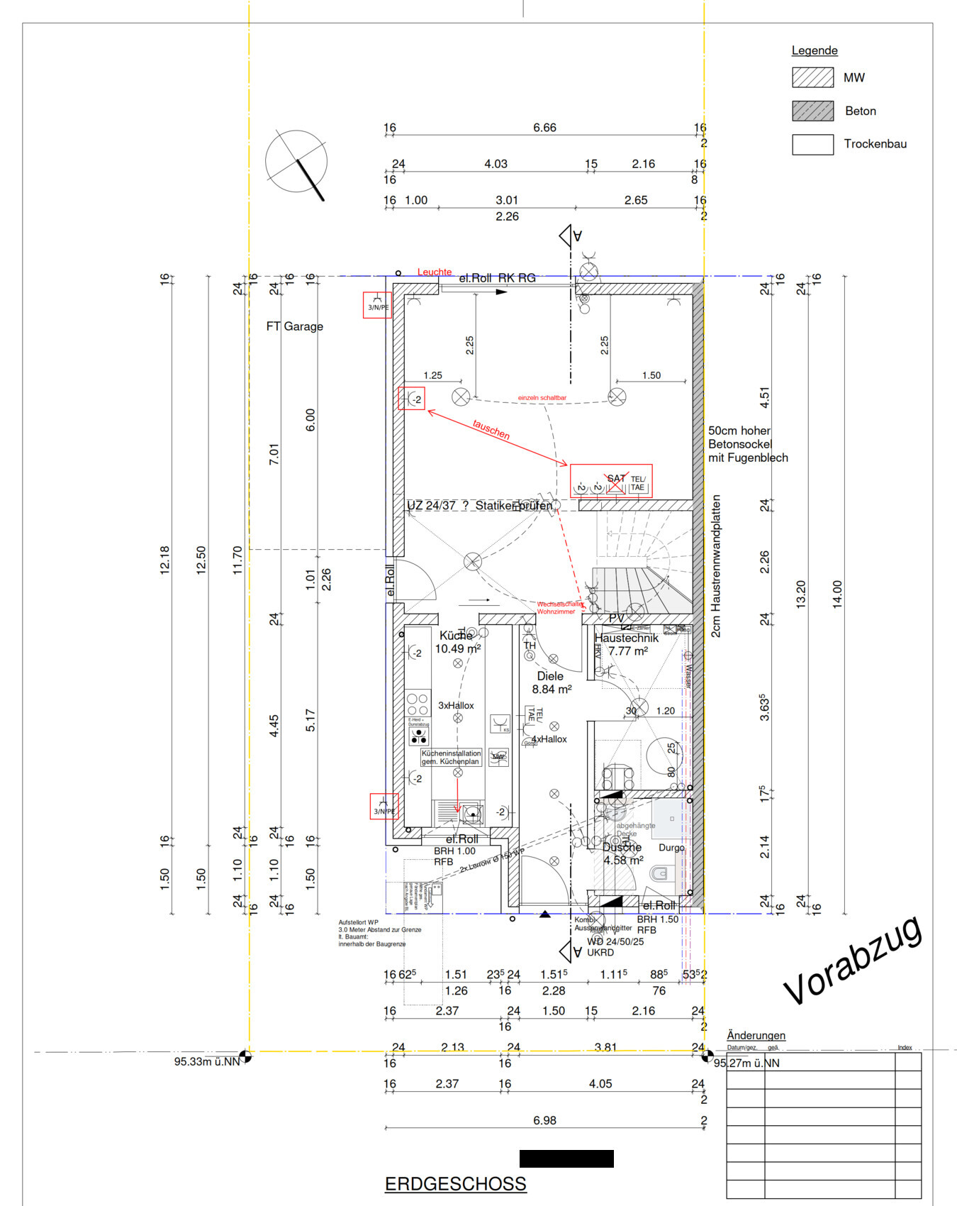
Da wir eigentlich ein schlüsselfertiges Haus gewählt haben, gibt es ein Paket indem bereits einiges an Elektroinstallation "inklusive" ist. Daher gibt es auch bereits ein Elektroplan, den ich nun nach meinen Wünschen ändern kann (Minder und Mehrkostenrechnung). Diesen hab ich angehängt, mit bereits in rot gekennzeichneten Änderungen. Zusätzlich die reine Aufzählung im Bau-und Leistungsverzeichnis des Bauträgers als Anhang.
Jetzt zu den eigentlichen Fragen:
Thema Sprechanlage:
- außen : CAT7 + 4 x0,8 Leitung zum Technikraum Damit wäre ich doch eigentlich für alle Arten von Anlagen bestückt, sodass ich mich darum später kümmern kann?
- Tür sollte per Ferne entriegelt werden können, daher sollte ich wohin ein Kabel verlegen? Tür Ecke oben Scharnier - zum Technikraum? 4x0.8 Leitung?
- Wohin mit der Gegensprechanlage im Erdgeschoss? An die Treppe, also praktisch direkt im Wohn/Essbereich? Ich habe keine Erfahrung wo es am sinnvollsten ist. Hier auch CAT7 + 4x0,8 zum Technikraum?
- Gegensprechanlage im Obergeschoss würde ich wohl mittig an die Wand vor dem Hauswirtschaftsraum platzieren.
- Der Rest dann per Handy. Hier möchte ich mich noch nicht festlegen welches System es am Ende wird.
Thema Netzwerkkabel:
- aus den verschiedenen Threads hab ich rausgelesen, dass man min. eine Doppeldose in jedes Zimmer installieren sollte.
-> Werde ich für alle Wohn/Kinder/Schlafzimmer und Büro berücksichtigen, alle anderen bekommen "nur" eine ( Küche/Bad/Flur)
- Zusätzlich noch pro Geschoss in die Decke für Accesspoint, hier kommen jedoch einige Fragen auf:
-> Da ich mit dem Mesh von Fritzbox sehr zufrieden bin, möchte ich dabei bleiben. Diese haben jedoch kein PoE.
Habe mir dazu dann überlegt, im Obergeschoss im Hauswirtschaftsraum über die Tür ein Accesspoint hinzustellen und dort CAT7 und Strom verlegen zu lassen. Gibt natürlich auch Möglichkeiten mit PoE Splitter zu agieren usw. aber wenn ich schon da einfach Strom legen lassen kann...
- Im Erdgeschoss bin ich aber etwas unschlüssig, wo ich den Accesspoint hinsetzen soll. Generell denke ich, dass der Router aus dem Technikraum das Erdgeschoss mit WLAN versorgen kann. Jedoch wird der Garten dann evtl. bereits ein Problem. Das könnte ich lösen, indem ich ein Accesspoint in die Fernsehwand integriere. Oder in die Garage. Was denkt ihr?
- im Dachgeschoss wird der Accesspoint falls nötig im Büro aufgestellt.
Thema SAT/Kabel:
- Da wir praktisch kein Fernsehen im klassischen Sinne schauen, und das schon seit Jahren, ist das Thema für mich ziemlich unwichtig. Trotzdem wollte ich eine "gewisse" Möglichkeit für alle Fälle schaffen:
-> KEINE Kabel in die Zimmer legen. SAT Kabel von Dach in den Technikraum. Von hier dann SAP over IP falls irgendwann doch unbedingt notwendig.
Thema Starkstrom/ Wallbox
- Einmal Starkstrom zur Garage plus noch normale Leitungen. Möchte das eher als kleine Werkstatt nutzen. (Hier evtl. auch noch CAT7)
- Starkstrom an die Hausecke/Einfahrt für zukünftigen Anschluss einer Wallbox. (Hier auch noch ein CAT7 Kabel)
Das waren erstmal so die Fragen/ Gedanken die aktuell im Kopf schwirren. Würde mich sehr freuen, wenn sich der ein oder andere Zeit nimmt und mir ein paar Tipps /Anmerkungen postet.
Gruß
Exili




bereits viel hier gelesen und viele tolle Infos erhalten. Kurze Zusammenfassung meiner Situation:
Eigentlicher Bautermin Mai 22 -> vorverschoben auf Ende Februar / Anfang März 22. Bedeutet, Elektroplanung muss vorgezogen werden Tiefbau usw.
Hausbau kam etwas "ungünstig", da zwei Kleinkinder und Zeit sehr begrenzt. Das Angebot für ein Grundstück im Neubaugebiet um die Ecke mussten wir annehmen.
jetzt zum eigentlichen Thema: Elektroplan
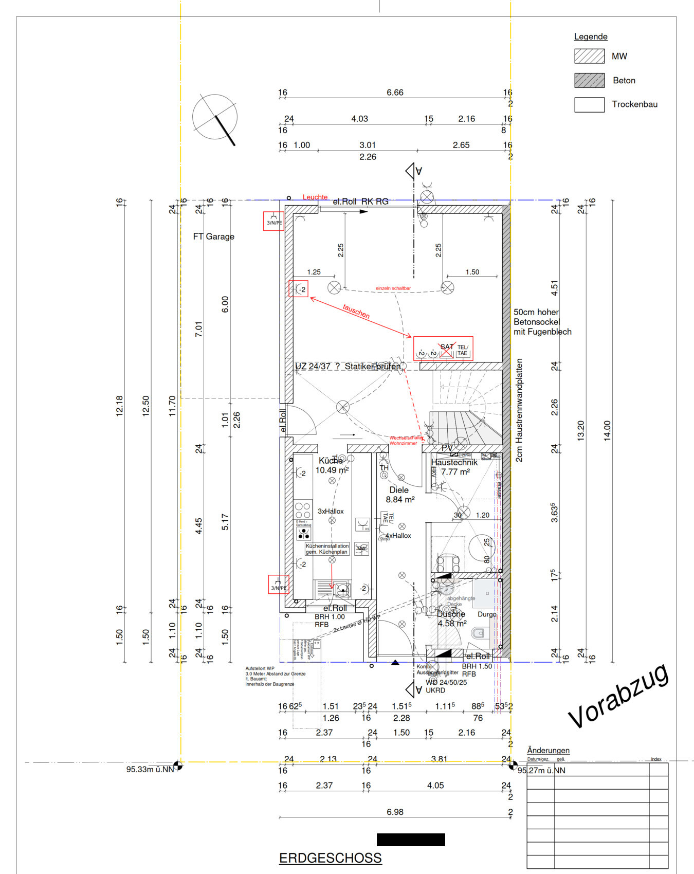
Da wir eigentlich ein schlüsselfertiges Haus gewählt haben, gibt es ein Paket indem bereits einiges an Elektroinstallation "inklusive" ist. Daher gibt es auch bereits ein Elektroplan, den ich nun nach meinen Wünschen ändern kann (Minder und Mehrkostenrechnung). Diesen hab ich angehängt, mit bereits in rot gekennzeichneten Änderungen. Zusätzlich die reine Aufzählung im Bau-und Leistungsverzeichnis des Bauträgers als Anhang.
Jetzt zu den eigentlichen Fragen:
Thema Sprechanlage:
- außen : CAT7 + 4 x0,8 Leitung zum Technikraum Damit wäre ich doch eigentlich für alle Arten von Anlagen bestückt, sodass ich mich darum später kümmern kann?
- Tür sollte per Ferne entriegelt werden können, daher sollte ich wohin ein Kabel verlegen? Tür Ecke oben Scharnier - zum Technikraum? 4x0.8 Leitung?
- Wohin mit der Gegensprechanlage im Erdgeschoss? An die Treppe, also praktisch direkt im Wohn/Essbereich? Ich habe keine Erfahrung wo es am sinnvollsten ist. Hier auch CAT7 + 4x0,8 zum Technikraum?
- Gegensprechanlage im Obergeschoss würde ich wohl mittig an die Wand vor dem Hauswirtschaftsraum platzieren.
- Der Rest dann per Handy. Hier möchte ich mich noch nicht festlegen welches System es am Ende wird.
Thema Netzwerkkabel:
- aus den verschiedenen Threads hab ich rausgelesen, dass man min. eine Doppeldose in jedes Zimmer installieren sollte.
-> Werde ich für alle Wohn/Kinder/Schlafzimmer und Büro berücksichtigen, alle anderen bekommen "nur" eine ( Küche/Bad/Flur)
- Zusätzlich noch pro Geschoss in die Decke für Accesspoint, hier kommen jedoch einige Fragen auf:
-> Da ich mit dem Mesh von Fritzbox sehr zufrieden bin, möchte ich dabei bleiben. Diese haben jedoch kein PoE.
Habe mir dazu dann überlegt, im Obergeschoss im Hauswirtschaftsraum über die Tür ein Accesspoint hinzustellen und dort CAT7 und Strom verlegen zu lassen. Gibt natürlich auch Möglichkeiten mit PoE Splitter zu agieren usw. aber wenn ich schon da einfach Strom legen lassen kann...
- Im Erdgeschoss bin ich aber etwas unschlüssig, wo ich den Accesspoint hinsetzen soll. Generell denke ich, dass der Router aus dem Technikraum das Erdgeschoss mit WLAN versorgen kann. Jedoch wird der Garten dann evtl. bereits ein Problem. Das könnte ich lösen, indem ich ein Accesspoint in die Fernsehwand integriere. Oder in die Garage. Was denkt ihr?
- im Dachgeschoss wird der Accesspoint falls nötig im Büro aufgestellt.
Thema SAT/Kabel:
- Da wir praktisch kein Fernsehen im klassischen Sinne schauen, und das schon seit Jahren, ist das Thema für mich ziemlich unwichtig. Trotzdem wollte ich eine "gewisse" Möglichkeit für alle Fälle schaffen:
-> KEINE Kabel in die Zimmer legen. SAT Kabel von Dach in den Technikraum. Von hier dann SAP over IP falls irgendwann doch unbedingt notwendig.
Thema Starkstrom/ Wallbox
- Einmal Starkstrom zur Garage plus noch normale Leitungen. Möchte das eher als kleine Werkstatt nutzen. (Hier evtl. auch noch CAT7)
- Starkstrom an die Hausecke/Einfahrt für zukünftigen Anschluss einer Wallbox. (Hier auch noch ein CAT7 Kabel)
Das waren erstmal so die Fragen/ Gedanken die aktuell im Kopf schwirren. Würde mich sehr freuen, wenn sich der ein oder andere Zeit nimmt und mir ein paar Tipps /Anmerkungen postet.
Gruß
Exili
Exili123 schrieb:
- außen : CAT7 + 4 x0,8 Leitung zum Technikraum Damit wäre ich doch eigentlich für alle Arten von Anlagen bestückt, sodass ich mich darum später kümmern kann?Das Cat 7 passt, zusätzlich würde ich - nur zur Sicherheit - 4x2x0,8 legen - kostet kaum mehr - und zwar zweimal ...Exili123 schrieb:
- Tür sollte per Ferne entriegelt werden können, daher sollte ich wohin ein Kabel verlegen? Tür Ecke oben Scharnier - zum Technikraum? 4x0.8 Leitung?... einmal auf die Bandseite und einmal auf die Schlossseite. Dann kannst Du nämlich auch noch einen Riegelkontakt anschließen, um zu sehen, ob die Tür auch wirklich zu ist.Exili123 schrieb:
- Wohin mit der Gegensprechanlage im Erdgeschoss? An die Treppe, also praktisch direkt im Wohn/Essbereich? Ich habe keine Erfahrung wo es am sinnvollsten ist. Hier auch CAT7 + 4x0,8 zum Technikraum?Wir haben überhaupt keine Sprechanlage fest installiert, weil es einfach nicht zu unserem Nutzungsverhalten passt. Das solltet Ihr erst mal hinterfragen. Der wichtigere Punkt wäre aus meiner Sicht, wo/wie es klingelt (konventionell oder über einen smarten Lautsprecher), damit Ihr dann zum Handy greifen könnt. Das funktioniert für uns bestens, weil ohnehin immer irgendwo ein Handy in der Nähe liegt, was garantiert näher ist als eine fest installierte Station.Exili123 schrieb:
- Gegensprechanlage im Obergeschoss würde ich wohl mittig an die Wand vor dem Hauswirtschaftsraum platzieren.s. o.Exili123 schrieb:
- Der Rest dann per Handy. Hier möchte ich mich noch nicht festlegen welches System es am Ende wird.Musst Du nichtExili123 schrieb:
-> Werde ich für alle Wohn/Kinder/Schlafzimmer und Büro berücksichtigen, alle anderen bekommen "nur" eine ( Küche/Bad/Flur)In der Küche ist so etwas aus meiner Sicht wirklich verzichtbar, weil zumindest alle smarten Küchengeräte, die ich kennen, ohnehin "nur" WLAN haben - wohl aus technischen Gründen. Selbiges gilt fürs Bad, und Flur? Na ja ... Ansonsten bringt es aus meiner Sicht kaum Einsparung, einen einzelnen statt doppelten Anschluss zu setzen, denn die Arbeit ist in etwa die gleiche, und das Material fällt nur wenig ins Gewicht.Exili123 schrieb:
-> Da ich mit dem Mesh von Fritzbox sehr zufrieden bin, möchte ich dabei bleiben. Diese haben jedoch kein PoE.Nur zur Sicherheit: Wir sprechen hier über die kabelgebundene Variante?Exili123 schrieb:
Generell denke ich, dass der Router aus dem Technikraum das Erdgeschoss mit WLAN versorgen kann.Wenn Du Dich da mal nicht täuschst ... mit 2,4 GHz mag das noch gut gehen, bei 5 GHz sehe ich da auch bei einer halbwegs mittigen Positionierung schon das ein oder andere Problem. Nur mal als Beispiel: Ich habe hier schon nach einer Betontreppe plus massiver Wand extreme Schwierigkeiten, stabilen Empfang zu bekommen - und das bei nur 2 m (!) Luftlinie. Von daher würde ich auf jeden Fall noch was an der Rückseite vorsehen, bspw. auch auf einer Kommode aufgestellt.Exili123 schrieb:
Jedoch wird der Garten dann evtl. bereits ein Problem.Mit ziemlicher Sicherheit sogarExili123 schrieb:
Das könnte ich lösen, indem ich ein Accesspoint in die Fernsehwand integriere. Oder in die Garage. Was denkt ihr?Wo ist die Fernsehwand? Rechts? Wenn Du im WZ guten Empfang möchtest, stell den Accesspoint da hin. Brauchst Du WLAN im Garten, dann nimm einen Outdoor-Accesspoint, denn allein die Außenwand + Fenster sind bereits ein enormes Hindernis. Garage? Nun, da wolltest Du ja eh eine Netzwerkdose vorsehen, also kannst Du dort auch einen Accesspoint platzieren. Wir haben keinen Accesspoint in der Garage, aber da passiert auch wenig mehr als Auto rein - Auto raus.Exili123 schrieb:
-> KEINE Kabel in die Zimmer legen. SAT Kabel von Dach in den Technikraum. Von hier dann SAP over IP falls irgendwann doch unbedingt notwendig.Wann soll das denn noch passieren? Wenn Du es heute nicht brauchst, brauchst Du es in der Zukunft erst recht nicht. Ich würde mir das sparen - bzw. habe es gar nicht erst verlegen lassen.Exili123 schrieb:
- Einmal Starkstrom zur Garage plus noch normale Leitungen. Möchte das eher als kleine Werkstatt nutzen. (Hier evtl. auch noch CAT7)??? Leg doch ein dickes (10 mm² oder noch besser 16 mm²) fünfadriges Kabel zur Garage und mach da eine kleine Unterverteilung. Dann bist Du später auch flexibel, wenn Du starke Maschinen betreiben möchtest oder eine 22-kW-Wallbox.Exili123 schrieb:
- Starkstrom an die Hausecke/Einfahrt für zukünftigen Anschluss einer Wallbox. (Hier auch noch ein CAT7 Kabel)Klingt gut. Achte auch hier auf "dick genug". Der Aufpreis für den größeren Querschnitt ist wie immer nicht so riesig. Ggf. solltest Du noch drüber nachdenken, eine Verbindung von dort zur Garage zu schaffen, damit Du bei zwei Wallboxen diese miteinander koppeln. kannst (wegen Lastverteilung/-steuerung). 4x2x0,8 ...Ach so, fast vergessen: Die Elektroausstattung ab Werk wird natürlich nicht reichen. Sie ist jetzt auch nicht ganz schlecht, aber da werdet Ihr sicherlich die ein oder andere Steckdose noch addieren wollen, genau wie Netzwerk (steht schon ja schon oben). Denkt ggf. auch an schaltbare Steckdosen. Das kann manchmal irre praktisch sein - nicht nur für die Außensteckdosen.
K1300S schrieb:
Das Cat 7 passt, zusätzlich würde ich - nur zur Sicherheit - 4x2x0,8 legen - kostet kaum mehr - und zwar zweimal ...Hast recht, werde ich so machen.K1300S schrieb:
... einmal auf die Bandseite und einmal auf die Schlossseite. Dann kannst Du nämlich auch noch einen Riegelkontakt anschließen, um zu sehen, ob die Tür auch wirklich zu ist.Vielen Dank für den Tipp, daran hab ich gar nicht gedacht. Ist ja sogar nach kurzer Recherche fast wichtiger.K1300S schrieb:
Wir haben überhaupt keine Sprechanlage fest installiert, weil es einfach nicht zu unserem Nutzungsverhalten passt. Das solltet Ihr erst mal hinterfragen. Der wichtigere Punkt wäre aus meiner Sicht, wo/wie es klingelt (konventionell oder über einen smarten Laustprecher), damit Ihr dann zum Handy greifen könnt. Das funktioniert für uns bestens, weil ohnehin immer irgendwo ein Handy in der Nähe liegt, was garantiert näher ist als eine fest installierte Station.Danke für diese Rückmeldung. Im EG möchte ich eine fest verbaute, falls auch mal die Oma zuhause mit den Kindern ist und ihr Handy nicht in die Hausatomatisierung eingebunden ist. Wobei man dann halt auch einfach an die Tür gehen kann 🙂 Aber für das Obergeschoss werde ich evtl. überdenken.K1300S schrieb:
In der Küche ist so etwas aus meiner Sicht wirklich verzichtbar, weil zumindest alle smarten Küchengeräte, die ich kennen, ohnehin "nur" WLAN haben - wohl aus technischen Gründen. Selbiges gilt fürs Bad, und Flur? Na ja ... Ansonsten bringt es aus meiner Sicht kaum Einsparung, einen einzelnen statt doppelten Anschluss zu setzen, denn die Arbeit ist in etwa die gleiche, und das Material fällt nur wenig ins Gewicht.Küche und Bad hast du Recht, werde ich mir evtl. noch überlegen. Flur/ Diele soll ja im Prinzip der Accesspoint angeschlossen werden. Ich frage mich halt die ganze Zeit, was man mit 2 Anschlüssen in einem Kinderzimmer / Schlafzimmer machen soll? Grundsätzlich läuft bei mir sowieso alles über WLAN. Aber wenn der Elektriker sagt, das es marginale Kosten sind, dann werdens wohl doch 2.K1300S schrieb:
Nur zur Sicherheit: Wir sprechen hier über die kabelgebundene Variante?JaK1300S schrieb:
Wenn Du Dich da mal nicht täuschst ... mit 2,4 GHz mag das noch gut gehen, bei 5 GHz sehe ich da auch bei einer halbwegs mittigen Positionierung schon das ein oder andere Problem. Nur mal als Beispiel: Ich habe hier schon nach einer Betontreppe plus massiver Wand extreme Schwierigkeiten, stabilen Empfang zu bekommen - und das bei nur 2 m (!) Luftlinie. Von daher würde ich auf jeden Fall noch was an der Rückseite vorsehen, bspw. auch auf einer Kommode aufgestellt.K1300S schrieb:
Wo ist die Fernsehwand? Rechts? Wenn Du im WZ guten Empfang möchtest, stell den Accesspoint da hin. Brauchst Du WLAN im Garten, dann nimm einen Outdoor-Accesspoint, denn allein die Außenwand + Fenster sind bereits ein enormes Hindernis. Garage? Nun, da wolltest Du ja eh eine Netzwerkdose vorsehen, also kannst Du dort auch einen Accesspoint platzieren. Wir haben keinen Accesspoint in der Garage, aber da passiert auch wenig mehr als Auto rein - Auto raus.Der Fernseher wäre dann "Links". Ich denke es wird dann ein Accesspoint in der Garage hin zum Garten. Damit sollte dann eigentlich alles abgedeckt sein.K1300S schrieb:
Wann soll das denn noch passieren? Wenn Du es heute nicht brauchst, brauchst Du es in der Zukunft erst recht nicht. Ich würde mir das sparen - bzw. habe es gar nicht erst verlegen lassen.Ich denke mir halt bei der ganzen Planung, dass das vielleicht nicht mein letztes Haus ist. Und wenn dann irgendwann verkauft wird, sollten die neuen Besitzer die Möglichkeit haben recht unkompliziert auch SAT nachrüsten zu können. Es kommt halt dann aber trotzdem auf die Kosten an. Wenn das jetzt ein paar Euro kostet, weil sowieso bereits etliche Kabel von oben nach unten laufen, dann lass ich es halt mit reinlegen. Sind wir bei einem Signifikanten Betrag, lass ich es weg.K1300S schrieb:
??? Leg doch ein dickes (10 mm² oder noch besser 16 mm²) fünfadriges Kabel zur Garage und mach da eine kleine Unterverteilung. Dann bist Du später auch flexibel, wenn Du starke Maschinen betreiben möchtest oder eine 22-kW-Wallbox.So werde ich es auch machen. DankeK1300S schrieb:
Klingt gut. Achte auch hier auf "dick genug". Der Aufpreis für den größeren Querschnitt ist wie immer nicht so riesig. Ggf. solltest Du noch drüber nachdenken, eine Verbindung von dort zur Garage zu schaffen, damit Du bei zwei Wallboxen diese miteinander koppeln. kannst (wegen Lastverteilung/-steuerung). 4x2x0,8 ...Mein Stromanschluss ans Haus wird mit max. einer Wallbox mit 11KW Leistung gelegt. Mehr gibt mir mein Energieversorger nicht "frei", da noch eine Wärmepumpe läuft. Maximalleistung von 30KW. Daher wird bei mir auf jeden fall nur eine Wallbox installiert.danke nochmals für die vielen Anregungen!
K1300S schrieb:
Ach so, fast vergessen: Die Elektroausstattung ab Werk wird natürlich nicht reichen. Sie ist jetzt auch nicht ganz schlecht, aber da werdet Ihr sicherlich die ein oder andere Steckdose noch addieren wollen, genau wie Netzwerk (steht schon ja schon oben). Denkt ggf. auch an schaltbare Steckdosen. Das kann manchmal irre praktisch sein - nicht nur für die Außensteckdosen.Ich möchte eigentlich alles notwendige per Shelly steuern. Dafür werde ich überall tiefere Dosen verbauen lassen.Ähnliche Themen