Hausbau - Ratgeber
Bauherrenhilfe
- Bauherrenhilfe vor Vertragsabschluss
-- Warum einen unabhängigen Baubetreuer?
-- Vertragsgrundlagen
-- Bausumme
-- Zahlungsplan zur Kostenkontrolle
-- Pflichten des Bauherren vor Vertragsabschluss
-- Unterlagen beim Hausbau vor Vertragsabschluss
- Bauherrenhilfe nach Vertragsabschluss
-- Bauantrag bei Behörden
-- Bau-Genehmigungsverfahren bei Baubehörden
-- Bauspezifische Versicherungen
-- Bauzeitenplan
-- Baubeginn - die Letzten Pflichten der Bauherrschaft
- Bauherrenhilfe während der Bauzeit
- Gewährleistungsansprüche
- Bauabnahme
Baufinanzierung
- Baufinanzierung - Allgemeine Fragen
- Kreditarten
- Kredit-Konditionen
- Bausparen
- Staatliche Förderungen
- Verkehrswert
- Haushaltsrechnung und Bonität
Hausbau Planung
- Haustypen
- Hausbau Vorbereitungsarbeiten
- Das Baugrundstück
- Baugrund beim Hausbau
- Baurecht
- Gebäudeschutz
- Erdarbeiten und Wasserhaltung
- Stützmauern
- Einfriedung
- Untergeschoss
- Kanalisation
- Tragende Elemente
- Nichttragende Innenwände
- Fundation / Fundament
- Deckenkonstruktionen
- Dächer
- Kaminanlagen
- Treppen Rampen Leitern
- Dachbeläge und Spengler
- Fenster
- Sonnen und Wetterschutz
- Aussenputze
- Einbauten, Küchen, Türen
- Bodenbeläge und Unterlagsböden
- Parkett
- Gips, Wand, Decke
Haustechnik und Energie
- Heiztechnik
- Lüftung und Klimatechnik
- Sanitärtechnik
- Elektrotechnik
- Erneuerbare Energie
Whirlpools / Jacuzzi
Hausbau Magazin
- Baufinanzierung trotz Krise?
- Das Blockhaus
- Moderne Dämmstoffe im Vergleich
- Erker Vor- und Nachteile
- Glasflächen beim Hausbau
- Günstig ein Haus Bauen
- Mediterraner Hausbaustil
- Mehrgenerationenhaus
- Moderne Architektur
- Gartengestaltung leicht gemacht
- Traditioneller Ziegelbau
- Villa als höchster Traum
- Im Eigenheim Ruhestand geniessen
- Altbau sanieren
- Kauf einer Holzgarage
- Immobilienmakler
- Arbeitshandschuhe für den Winter
- Zuhause verschönern
- Outdoor-Plissees
- Schlafzimmer planen
- Terrassenüberdachung
- Wohngebäudeversicherung
- Girokonto für Bauherren finden
- Hauseingang gestalten
- Zaunarten und Eigenschaften
- Der perfekte Grundriss
- Sparsamer heizen im Altbau
- Einfamilienhaus smart finanzieren
- Planung einer PV-Anlage
- Neues Haus
- Immobilienfinanzierung
- Installation einer Photovoltaikanlage
- Asbest erkennen und entfernen
- Gartenpflege im Frühling – worauf achten
- Sauna im Fokus - Wellness zuhause
- Erfolgreich vermieten
- Die perfekte Winterbekleidung
- Das Niedrigenergiehaus
- Der April und seine Stürme
- Architektonische Vielfalt
- Ökologisch und nachhaltig bauen
- Das perfekte Schlafzimmer
- Nachhaltige Energieversorgung
- Zukunftsorientiert bauen
- Nachhaltigkeit beim Hausbau
- Tiny Houses
- Wärmepumpen als nachhaltige Heizvariante
- Maßgeschneiderten Kleiderschrank
- Der richtige Baukredit
- Ratgeber für erfolgreichen Hausbau
- Haus als Altersvorsorge
Do-it-yourself Anleitungen
- Verlegeanleitung für Bodenbeläge und Parkett
- Bodenbeläge und Parkett reinigen und pflegen
- Malerarbeiten am Haus
- Garten Tipps
- Umzug und Reinigung

ᐅ Elektroplan in Ordnung - Erfahrungen

Erstellt am: 25.12.19 22:48
J
Jake12345
J
Jake12345
25.12.19 22:48
Hallo,

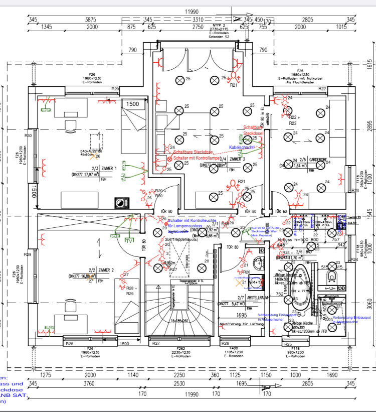
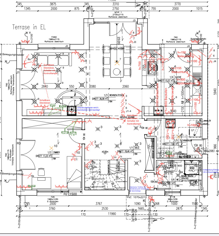
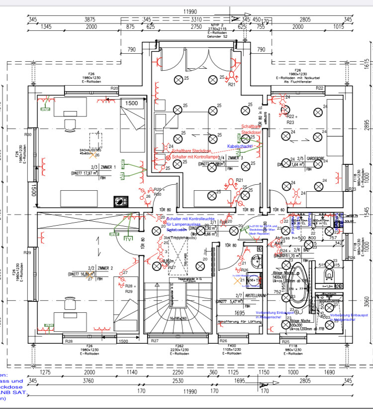
ich suche einen Elektriker, der mal über meinen Elektroplan schauen könnte. Schlaflose Nächte bereiten mir vor allem die Anordnung und die Menge der (LED-)Spots.

Ich bin für alle Anregungen offen......

Danke und viele Grüße

Grundriss eines Hauses mit mehreren Räumen, Türen, Treppen und roten Elektrohinweisen


Grundriss eines Hauses mit Räumen, Türen, Möbeln, Abmessungen und Symbolen.
O
Osnabruecker
25.12.19 22:58
Ganz ungewöhnlich ist die Anzahl der Spots nicht.
Wir wollen nächstes Jahr bauen und habe jetzt mal bei bekannten auf die Anzahl der Spots geachtet.

Im Bad zB 10 Spots, aber auch nötig wegen massiven Trennwänden (wie bei euch).
In den Schlafbereich/Garderobe würde ich ausm Bauch raus die Sache halbieren, bzw. im Schlafzimmer mag ich persönlich keine Spots.
Kommt in der Garderobe Planlinks auch Schränke? Die werden dann von oben beleuchtet...
B
Bookstar
25.12.19 23:25
wie immer viel zu viele Spots. Wird nie jemand anmachen spar dir einfach die Kohle!
K
kbt09
25.12.19 23:56
Was sollen die ganzen Spots im Schlafzimmer? Da ist es wichtiger ordentliche Wechselschalter zu haben.

  • Mittellicht vom Bett und von der Flurtür und der Garderobentür schaltbar
  • Nachttischlicht vom Bett und von der Flurtür und der Garderobentür schaltbar ... warum? Morgens klingelt der Wecker, Nachttischlicht am Bett geht an, man steht auf ... entweder Richtung Garderobe oder Flur .. und macht das Licht vom Nachttisch wieder aus

Garderobe ... da steht ein bisschen wenig Schrank

Küche, der Zeilenabstand zwischen Spüle und Kochfeld ist mit mehr als 200 cm sehr groß, die Spots an der Spülenzeile beleuchten wundervoll den vorgebeugten Kopf desjenigen, der da arbeitet, aber nicht die Arbeitsfläche
H
hanse987
26.12.19 00:13
Über 2 Downlights in der Dusche sage ich Mal nichts.Bei der Anzahl muss man hoffen dass alles dimmbar geplant ist.

Stehen die Leuchten schon fest?
T
Tego12
26.12.19 07:30
Noch weiße Wände und ihr habt Krankenhausfeeling mit den ganzen Spots.
garderobentürbettschlafzimmerflurtürschaltbarnachttischlicht