ᐅ Einschätzung Angebot Einfamilienhaus vom örtlichen Bauunternehmen
Erstellt am: 13.06.18 14:14
E
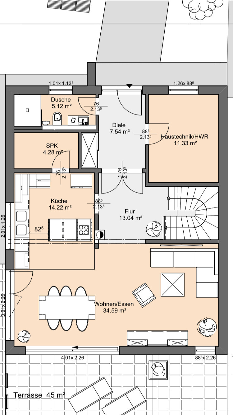
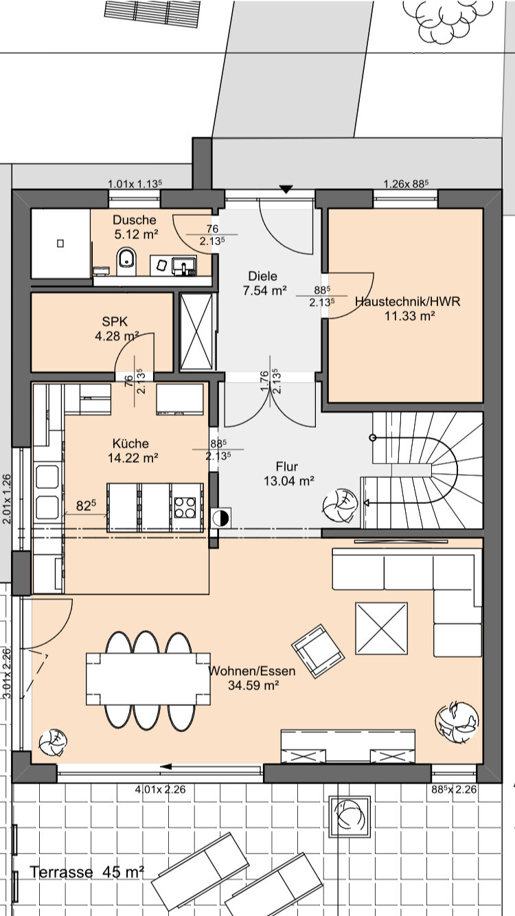
EgbertoIch bitte euch einmal um eine Einschätzung: Habe ein Angebot für ein Einfamilienhaus mit circa 175 m² Wohnfläche/ Nutzfläche vorliegen. Bau ohne Keller mit zwei Vollgeschossen.
Baukosten mit Kontrollierte-Wohnraumlüftung ca. 280.000 € inkl. Erdarbeiten. Angebot und Leistungsbeschreibung anbei. Das Unternehmen erstellt einige Häuser in unserer Region und ist hier ansässig.
Das Angebot erscheint mir recht günstig, sodass ich mich nach dem Haken frage. Sanitär und Fliesen ist ein Punkt, bei dem ich noch mit ca. 15.000 € zusätzlich rechne. Sind dort noch große weitere Posten bezüglich der reinen Baukosten unabhängig von den üblichen Baunebenkosten, die am Schluss aufgeschlagen werden? Architekt und Bauantragstellung sind enthalten.
Freue mich über Anregungen.




Baukosten mit Kontrollierte-Wohnraumlüftung ca. 280.000 € inkl. Erdarbeiten. Angebot und Leistungsbeschreibung anbei. Das Unternehmen erstellt einige Häuser in unserer Region und ist hier ansässig.
Das Angebot erscheint mir recht günstig, sodass ich mich nach dem Haken frage. Sanitär und Fliesen ist ein Punkt, bei dem ich noch mit ca. 15.000 € zusätzlich rechne. Sind dort noch große weitere Posten bezüglich der reinen Baukosten unabhängig von den üblichen Baunebenkosten, die am Schluss aufgeschlagen werden? Architekt und Bauantragstellung sind enthalten.
Freue mich über Anregungen.
Ja zusätzliche 50k€ oder mehr sind durchaus wahrscheinlich. Da Versorgung und Entsorgung u.a. Entwässerung nicht geklärt ist. Die Tiefbauarbeiten sind nicht geklärt (vielleicht hast du ja noch Schutt oder ein altes Fundament unter der Grasnarbe? Sogar das Scheißhaus musst du selbst bezahlen.
Elektro viel zu wenig, Fliesen ist zu gering, Fenster 2 oder 3-fach verglast?
Schon alleine bei Sanitär werden dich die Duschkabinen mehr ca. 3k€ kosten, je nach Ausführung.
Soviel Zeit habe ich gar nicht wie ich schreiben wollen würde.
Wie viel Budget hast du denn?
Elektro viel zu wenig, Fliesen ist zu gering, Fenster 2 oder 3-fach verglast?
Schon alleine bei Sanitär werden dich die Duschkabinen mehr ca. 3k€ kosten, je nach Ausführung.
Soviel Zeit habe ich gar nicht wie ich schreiben wollen würde.
Wie viel Budget hast du denn?
Wollte inkl. Baunebenkosten maximal 400.000 € anlegen zzgl. Grundstück. Fliesen muss mindestens 50 €/m2, sehe ich auch so. Das Grundstück ist Ackerland, da ist nichts drunter, Bodengutachten liegt vor. Was fällt unter Versorgung/Entsorgung = die Hausanschlüsse oder nicht? Was fehlt Deiner Meinung nach an Elektrik?
Aber schon mal vielen Dank, das sind die richtigen Denkanstöße
Aber schon mal vielen Dank, das sind die richtigen Denkanstöße
K
Knallkörper13.06.18 15:19Tiefbauarbeiten scheinen durch das Gutachten geklärt zu sein. Die Fenster sind 3-fach, sieht man am Profil.
Bei Elektro hat Zaba12 natürlich recht, das sind zu wenig Steckdosen etc. Für den Innenputz ist keine Qualität angegeben.
In Bädern kann man schnell von 5k bis 50k Euro versenken. Nimmst du günstige Objekte und Duschkabinen vom Glaser, würde ich für die Bäder 6-8k Mehrpreis einplanen.
Baustrom und Bauwasser könnten für dich teuer werden, vielleicht kannst du die Positionen noch als inklusive verhandeln.
Bei Elektro hat Zaba12 natürlich recht, das sind zu wenig Steckdosen etc. Für den Innenputz ist keine Qualität angegeben.
In Bädern kann man schnell von 5k bis 50k Euro versenken. Nimmst du günstige Objekte und Duschkabinen vom Glaser, würde ich für die Bäder 6-8k Mehrpreis einplanen.
Baustrom und Bauwasser könnten für dich teuer werden, vielleicht kannst du die Positionen noch als inklusive verhandeln.
Egberto schrieb:
Wollte inkl. Baunebenkosten maximal 400.000 € anlegen zzgl. Grundstück. Fliesen muss mindestens 50 €/m2, sehe ich auch so. Das Grundstück ist Ackerland, da ist nichts drunter, Bodengutachten liegt vor. Was fällt unter Versorgung/Entsorgung = die Hausanschlüsse oder nicht? Was fehlt Deiner Meinung nach an Elektrik?
Aber schon mal vielen Dank, das sind die richtigen DenkanstößeWas hat die Deklarationsanalyse ergeben? DK0 oder mehr? Musst du Erde entsorgen? Was machst du damit?Entwässerung: Alles was mit der Regen- und Hausentwässerung halt zu tun hat (KG Verrohrung, Revisionsschächte, Zisternen, etc.) Also der komplette hergestellte Weg vom Dach und WC bis zum Kanal. Das sind nicht die Anschlusskosten.
Elektro: Allgemein ist die Anzahl zu gering.
Die Summe ist ohne Keller welchen du nicht hast gut machbar *Daumen hoch*
Ähnliche Themen