Moin Allerseits,
durch den Lichtschachtthread von Cumpa bin ich überhaupt erst auf die Idee gekommen:
Wenn ich den Keller an die Kontrollierte-Wohnraumlüftung anschließe, könnte ich dann nicht auch auf die Kellerfenster verzichten?
Hintergrund: wir hatten zunächst keine Kontrollierte-Wohnraumlüftung eingeplant und von daher natürlich Fenster in den Kellerräumen. Nun nehmen wir aber doch eine Kontrollierte-Wohnraumlüftung rein und der Keller wird ebenfalls belüftet.
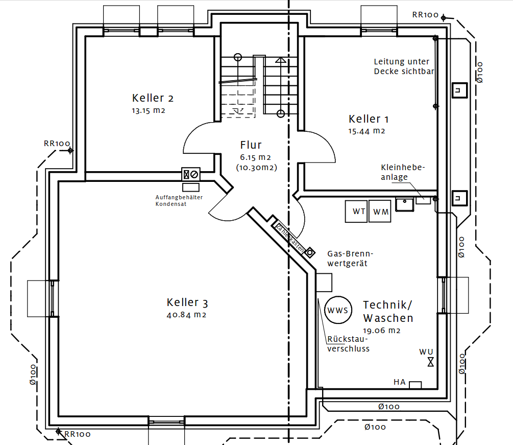
Es wäre nun die Frage, ob wir uns nicht im Keller 3 (Lagerraum) und Haustechnik die Fenster einfach einsparen. Da liegen uns die Lichtschächte ohnehin etwas im Weg….
Keller 2 wird allerdings ein Büroraum mit Lichtgraben, da sind die Fenster gesetzt und aufgrund unseres Bemessungswasserstands werden das auch hochwasserdichte Fenster nebst Entwässerung des Lichtgrabens.
Bei Keller 1 wäre ich unschlüssig, das wird meine Werkstatt werden, da lasse ich das Fenster vermutlich auch besser drin.
Ob sich das wirklich lohnt, weiß ich noch nicht. Für den Lichtgraben von Keller 2 brauche ich ohnehin eine Entwässerung und muss die bis zum Revisionsschacht ziehen. Von daher ist das Sparpotential ggf.. beschränkt auf die Hochwasserdichten Fenster in Keller 3 und Technik plus die Lichtschächte. Das werden zusammen aber auch schon 3-4 k€ sein.
Also die Frage an die Runde:
Habt ihr bei einem Keller mit Kontrollierte-Wohnraumlüftung noch Fenster eingebaut oder könnte man die echt weg lassen?
Viele Grüße,
Andreas

durch den Lichtschachtthread von Cumpa bin ich überhaupt erst auf die Idee gekommen:
Wenn ich den Keller an die Kontrollierte-Wohnraumlüftung anschließe, könnte ich dann nicht auch auf die Kellerfenster verzichten?
Hintergrund: wir hatten zunächst keine Kontrollierte-Wohnraumlüftung eingeplant und von daher natürlich Fenster in den Kellerräumen. Nun nehmen wir aber doch eine Kontrollierte-Wohnraumlüftung rein und der Keller wird ebenfalls belüftet.
Es wäre nun die Frage, ob wir uns nicht im Keller 3 (Lagerraum) und Haustechnik die Fenster einfach einsparen. Da liegen uns die Lichtschächte ohnehin etwas im Weg….
Keller 2 wird allerdings ein Büroraum mit Lichtgraben, da sind die Fenster gesetzt und aufgrund unseres Bemessungswasserstands werden das auch hochwasserdichte Fenster nebst Entwässerung des Lichtgrabens.
Bei Keller 1 wäre ich unschlüssig, das wird meine Werkstatt werden, da lasse ich das Fenster vermutlich auch besser drin.
Ob sich das wirklich lohnt, weiß ich noch nicht. Für den Lichtgraben von Keller 2 brauche ich ohnehin eine Entwässerung und muss die bis zum Revisionsschacht ziehen. Von daher ist das Sparpotential ggf.. beschränkt auf die Hochwasserdichten Fenster in Keller 3 und Technik plus die Lichtschächte. Das werden zusammen aber auch schon 3-4 k€ sein.
Also die Frage an die Runde:
Habt ihr bei einem Keller mit Kontrollierte-Wohnraumlüftung noch Fenster eingebaut oder könnte man die echt weg lassen?
Viele Grüße,
Andreas
S
Sebastian7912.02.16 11:34Habe Fenster eingebaut, allerdings haben wir keinerlei Grundwasserhöhe zu beachten.
Einmal Lichtgraben mit normalem Fenster und zwei Räume haben ein "normales" Lichtschachtfenster (100x80, 3fach verglast). Im Badezimmer und im Anschlussraum haben wir kein Fenster - in letzterem war es auch mal geplant, fand ich aber sinnfrei.
Kontrollierte-Wohnraumlüftung in allen Räumen vorhanden.
Einmal Lichtgraben mit normalem Fenster und zwei Räume haben ein "normales" Lichtschachtfenster (100x80, 3fach verglast). Im Badezimmer und im Anschlussraum haben wir kein Fenster - in letzterem war es auch mal geplant, fand ich aber sinnfrei.
Kontrollierte-Wohnraumlüftung in allen Räumen vorhanden.
Hi Sebastian,
wir haben leider Bemessungswasserstand = geländegleich = Grasnarbe. Das Grundwasser ist erst bei 7-8 m, aber der Boden versickert schlecht und somit hast du das Sickerwasser überall, wo du es nicht haben willst.
Hatte ich bei den sandigen Böden hier auch nicht erwartet aber ist wohl so....
Wohnst du schon im Haus? Wenn ja, bekommst du die Kellerräume ohne Fenster nur durch die Kontrollierte-Wohnraumlüftung ausreichend trocken?
Viele Grüße,
Andreas
wir haben leider Bemessungswasserstand = geländegleich = Grasnarbe. Das Grundwasser ist erst bei 7-8 m, aber der Boden versickert schlecht und somit hast du das Sickerwasser überall, wo du es nicht haben willst.
Hatte ich bei den sandigen Böden hier auch nicht erwartet aber ist wohl so....
Wohnst du schon im Haus? Wenn ja, bekommst du die Kellerräume ohne Fenster nur durch die Kontrollierte-Wohnraumlüftung ausreichend trocken?
Viele Grüße,
Andreas
S
Sebastian7912.02.16 13:29Nein, wohne ich nicht - der Keller ist aber vor Installation der Lüftung schon trockener als die anderen Ebenen gewesen.
Aber aufgrund des Bades und des Trockners im Anschlussraum halte ich die Kontrollierte-Wohnraumlüftung für unverzichtbar. Ebenso zur Temperaturdurchmischung.
Aber aufgrund des Bades und des Trockners im Anschlussraum halte ich die Kontrollierte-Wohnraumlüftung für unverzichtbar. Ebenso zur Temperaturdurchmischung.
Hallo,
ihr bringt mich hiermit auf einen interessanten Gedanken. Wir planen auch eine Kontrollierte-Wohnraumlüftung, der jetzige Entwurf sieht allerdings auch 4 Laibungsfenster vor. Ich dachte sogar, das sei gesetzlich vorgeschrieben, weiß aber nun überhaupt nicht, wie ich darauf gekommen bin.
Grüße
ihr bringt mich hiermit auf einen interessanten Gedanken. Wir planen auch eine Kontrollierte-Wohnraumlüftung, der jetzige Entwurf sieht allerdings auch 4 Laibungsfenster vor. Ich dachte sogar, das sei gesetzlich vorgeschrieben, weiß aber nun überhaupt nicht, wie ich darauf gekommen bin.
Grüße
Moin,
ich habe es mit meinem Planer noch nicht besprochen, der ist noch mit den Änderungen von letzter Woche beschäftigt... Hatte auch schon überlegt, ob da nicht irgendwelche Bauvorschriften (Fluchtwege o.ä. ?) dagegen sprechen. Aber es gibt ja auch genügend Häuser mit Abstellkammern oder Bädern ohne Fenster und somit ohne Fluchtwege, also warum keinen Kellerraum?
Ich werde es im Laufe der Woche mit meinem GÜ besprechen und dann mal rückmelden, was der sagt. Im Werkvertrag sind die Fenster nun drin. Es wird dann auch von der Rückvergütung abhängen, ob wir das näher in Betracht ziehen.
Viele Grüße,
Andreas
ich habe es mit meinem Planer noch nicht besprochen, der ist noch mit den Änderungen von letzter Woche beschäftigt... Hatte auch schon überlegt, ob da nicht irgendwelche Bauvorschriften (Fluchtwege o.ä. ?) dagegen sprechen. Aber es gibt ja auch genügend Häuser mit Abstellkammern oder Bädern ohne Fenster und somit ohne Fluchtwege, also warum keinen Kellerraum?
Ich werde es im Laufe der Woche mit meinem GÜ besprechen und dann mal rückmelden, was der sagt. Im Werkvertrag sind die Fenster nun drin. Es wird dann auch von der Rückvergütung abhängen, ob wir das näher in Betracht ziehen.
Viele Grüße,
Andreas
Ähnliche Themen