Hallo,
wir sind in der finalen Planung unseres EFHs mit Keller.
Durch die Neuerungen der KFW-Förderung ab 24.01.2020 bietet es sich an, dass wir im Keller eine Einliegerwohnung unterbringen. Für die Planung im Keller ist das kein Problem, allerdings stellt sich die Frage nach dem Zugang.
Aktuell ist der Zugang in den Keller über die Kellertreppe im Flur geplant. Hier befindet man sich aber schon mehr oder weniger innerhalb der Hauptwohnung.
Gibt es hier eine Einschränkung für die Definition einer Einliegerwohnung und KFW-Förderung?
Oder reicht es aus, wenn die Einliegerwohnung im Keller durch eine eigene Tür begehbar ist - egal wie man zu dieser Tür gelangt?
Ich habe bei der KFW angerufen, aber auf jegliche meiner Fragen hieß es: "Das müssen Sie ihren Energieberater fragen".
Der Energieberater ist noch im Urlaub, und ich möchte die Zeit währenddessen aber schon sinnvoll für weitere Planungen nutzen.
Mein Finanzierer sieht da kein Problem mit unserem Grundriss.
Da ich im Netz auch verschiedene und teils widersprüchliche Aussagen lese, erhoffe ich mir über diesen Post Klarheit.
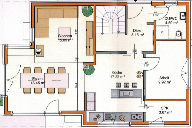
Im Anhang unser EG. Treppe rechts führt hinab zum Keller.
Weiß es hier jemand genauer?
Vielen Dank!

wir sind in der finalen Planung unseres EFHs mit Keller.
Durch die Neuerungen der KFW-Förderung ab 24.01.2020 bietet es sich an, dass wir im Keller eine Einliegerwohnung unterbringen. Für die Planung im Keller ist das kein Problem, allerdings stellt sich die Frage nach dem Zugang.
Aktuell ist der Zugang in den Keller über die Kellertreppe im Flur geplant. Hier befindet man sich aber schon mehr oder weniger innerhalb der Hauptwohnung.
Gibt es hier eine Einschränkung für die Definition einer Einliegerwohnung und KFW-Förderung?
Oder reicht es aus, wenn die Einliegerwohnung im Keller durch eine eigene Tür begehbar ist - egal wie man zu dieser Tür gelangt?
Ich habe bei der KFW angerufen, aber auf jegliche meiner Fragen hieß es: "Das müssen Sie ihren Energieberater fragen".
Der Energieberater ist noch im Urlaub, und ich möchte die Zeit währenddessen aber schon sinnvoll für weitere Planungen nutzen.
Mein Finanzierer sieht da kein Problem mit unserem Grundriss.
Da ich im Netz auch verschiedene und teils widersprüchliche Aussagen lese, erhoffe ich mir über diesen Post Klarheit.
Im Anhang unser EG. Treppe rechts führt hinab zum Keller.
Weiß es hier jemand genauer?
Vielen Dank!
für die steuer muss sie vermietet sein. als, du kannst du Erwerbskosten, die Zinsen, die Baukosten, die Gartenanlage, die abfuhr vom Erdaushub etc pp (und zwar Mann UND Material) nur von der steuer absetzen, wenn die Wohnung auch tatsächlich marktüblich vermietet ist, oder du die Bemühungen nachweisen kannst, zB durch Rechnungen von anzeigen in einer Zeitung... das ist das eine.
für die KFW brauchst du ZWINGEND einen eigenen getrennten Eingang. also, eine eigene Treppe. die whg muss alles haben, was eine whg so hat... Küche, dusche, Klo, Heizung, echte Haustüre, die passende Raumhöhe, die passende Belichtung mit Tageslicht - folglich dann natürlich auch leistungsstarke Hebewerke mit schredder. zweiter Fluchtweg. weiterer Stellplatz muss nachgewisen werden.
Die wand zwischen Keller und Einliegerwohnung muss Brandhemmend sein, die Rohrdurchführungen entsprechend auch, und rauchdicht. zusätzlich hat die Baufirma hier doppelt gearbeitet mit Kalksandsteinen Steinen hoher dichte und dicker ist die wand auch. die Waschmaschine von ihm hören wir nicht, und er unsere nicht.
Du gibst die ja als WHG im Bauantrag aus, und die Gemeinde achtet da dann entsprechend darauf, dass es auch eine WHG ist.
eigenen Strom/Wasser/Telefon braucht es nicht. es ist aber ganz nett mindestens geeichte Zwischenzähler zu haben. da Einliegerwohnung darf man als Vermieter nach m² umlegene.
wir vermieten jetzt tatsächlich auch, erst war das nur so als fördermittelabgreifidee geplant um da dann die Schwiegermutter mal einzuquartieren, oder die Kinder, wenn sie frech werden.
tatsächlich ist der Wohnungsmarkt hier so, dass man sich die Mieter aussuchen kann. hatten ohne anzeige nach ner Woche einen Mieter, über die Arbeit einer Nachbarin, Doktorand der Mathematik. TVöD 13 70% 3 Jahrs vertrag. braucht ruhe zum schreiben seiner Arbeit. check. wir merken nicht mal ob der da ist oder nicht. vermieten warm und möbliert.
bei fragen bzgl Grundriss und Tageslicht kann ich auch mal nen Bild posten.
für die KFW brauchst du ZWINGEND einen eigenen getrennten Eingang. also, eine eigene Treppe. die whg muss alles haben, was eine whg so hat... Küche, dusche, Klo, Heizung, echte Haustüre, die passende Raumhöhe, die passende Belichtung mit Tageslicht - folglich dann natürlich auch leistungsstarke Hebewerke mit schredder. zweiter Fluchtweg. weiterer Stellplatz muss nachgewisen werden.
Die wand zwischen Keller und Einliegerwohnung muss Brandhemmend sein, die Rohrdurchführungen entsprechend auch, und rauchdicht. zusätzlich hat die Baufirma hier doppelt gearbeitet mit Kalksandsteinen Steinen hoher dichte und dicker ist die wand auch. die Waschmaschine von ihm hören wir nicht, und er unsere nicht.
Du gibst die ja als WHG im Bauantrag aus, und die Gemeinde achtet da dann entsprechend darauf, dass es auch eine WHG ist.
eigenen Strom/Wasser/Telefon braucht es nicht. es ist aber ganz nett mindestens geeichte Zwischenzähler zu haben. da Einliegerwohnung darf man als Vermieter nach m² umlegene.
wir vermieten jetzt tatsächlich auch, erst war das nur so als fördermittelabgreifidee geplant um da dann die Schwiegermutter mal einzuquartieren, oder die Kinder, wenn sie frech werden.
tatsächlich ist der Wohnungsmarkt hier so, dass man sich die Mieter aussuchen kann. hatten ohne anzeige nach ner Woche einen Mieter, über die Arbeit einer Nachbarin, Doktorand der Mathematik. TVöD 13 70% 3 Jahrs vertrag. braucht ruhe zum schreiben seiner Arbeit. check. wir merken nicht mal ob der da ist oder nicht. vermieten warm und möbliert.
bei fragen bzgl Grundriss und Tageslicht kann ich auch mal nen Bild posten.
A
allstar8314.01.20 08:40fragg schrieb:
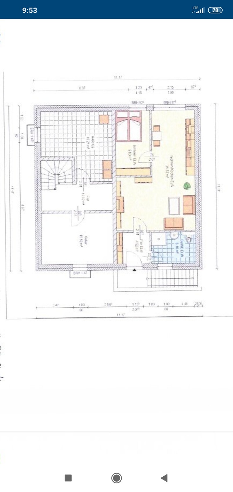
bei fragen bzgl Grundriss und Tageslicht kann ich auch mal nen Bild posten.Vielen Dank für die Infos. Bild von Grundriss und Licht wäre super nett.das ist eine kleine 10m² Südterrasse für den Mieter, da hatte der dieses Jahr Tomaten und Kräuter angepflanzt, gegossen hab ich das via perlschlauch. das rechte Fenster ist das Schlafzimmer, das linke eine risen Türe zum WZ. die Küche ist hinten in der dunklen ecke, das Bad hat Tageslicht zur Treppe der Einliegerwohnung.
im Grundriss links ist unser Keller, mein Zimmer, Hauswirtschaftsraum, Flur. Da nur Lichtschächte. reicht.
im Grundriss links ist unser Keller, mein Zimmer, Hauswirtschaftsraum, Flur. Da nur Lichtschächte. reicht.
Ähnliche Themen