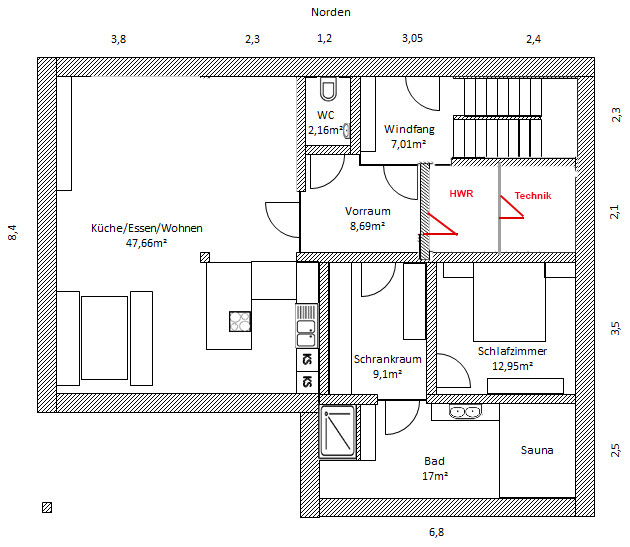
Es ist ein so großes Haus und darin befinden sich so viele kleine Zimmer, das es echt schon im Herzen weh tut. Es ist ein Labyrinth! Ins Schlafzimmer und ins Bad kommt man nur über den Schrankraum? Ich würde diesen Raum komplett weglassen und dafür die Küche und Schlafzimmer vergrößern.
Die Gästetoilette ist wirklich sehr klein, unbedingt größer planen!
Entfernung von der Couch bis zum TV Max. 3,80 ist zu gering...da passt keine große Couch hin und auch mit dem Couchtisch davor wird es eng.
Es muss natürlich euch gefallen, aber überdenkt ob ihr das Schachtel-System im Haus wirklich so haben wollt
Die Gästetoilette ist wirklich sehr klein, unbedingt größer planen!
Entfernung von der Couch bis zum TV Max. 3,80 ist zu gering...da passt keine große Couch hin und auch mit dem Couchtisch davor wird es eng.
Es muss natürlich euch gefallen, aber überdenkt ob ihr das Schachtel-System im Haus wirklich so haben wollt
Für einen ersten Entwurf nicht so schlecht, finde ich. Ob es allerdings wirklich lohnt, daran rumzubasteln, ist zweifelhaft.
Ich würde zunächst mal Treppe und Technik tauschen und den Hauswirtschaftsraum an die Technik dran hängen. Dann ist zumindest die Trennung einfacher.

Merkwürdig bleibt aber die Badgeschichte an der Terrasse. Möglicherweise tritt man ja von der Sauna an den Pool oder dergleichen. Falls nicht, liegt üblicherweise eher das Schlafzimmer an dieser Position. Auch ist ja bislang nicht mal ein WC integriert. Bleibt also die Frage, ob man damit weiter macht, oder lieber einen Architekten fragt.
Ich würde zunächst mal Treppe und Technik tauschen und den Hauswirtschaftsraum an die Technik dran hängen. Dann ist zumindest die Trennung einfacher.
Merkwürdig bleibt aber die Badgeschichte an der Terrasse. Möglicherweise tritt man ja von der Sauna an den Pool oder dergleichen. Falls nicht, liegt üblicherweise eher das Schlafzimmer an dieser Position. Auch ist ja bislang nicht mal ein WC integriert. Bleibt also die Frage, ob man damit weiter macht, oder lieber einen Architekten fragt.
Die Trennung zwischen EG und OG stelle ich mir so vor wie im Plan. Wir hätten gerne, dass man nicht durch den Schmutzbereich muss, um ins OG zu kommen.
Ganz generell sind aber die Glastüren zwischen Vorraum und Allraum bzw. Windfang und Vorraum noch nicht gesetzt.
Zum Bad: genau das ist der Plan, eine große Glasfront, mit Türe auf die Terrasse um nach dem Saunagang draußen liegen zu können.
Das Grundstück ist das letzte und in einigen Hundert Metern Entfernung kommt dann ein kleiner Wald. Von daher stellen wir uns das sehr nett vor

Ganz generell sind aber die Glastüren zwischen Vorraum und Allraum bzw. Windfang und Vorraum noch nicht gesetzt.
Zum Bad: genau das ist der Plan, eine große Glasfront, mit Türe auf die Terrasse um nach dem Saunagang draußen liegen zu können.
Das Grundstück ist das letzte und in einigen Hundert Metern Entfernung kommt dann ein kleiner Wald. Von daher stellen wir uns das sehr nett vor
Wer soll denn später oben wohnen?
Die dreckige Wäsche durchs WZ zu tragen, ist für ein neues Haus wirklich ein Armutszeugnis. Auch ist es wenig prickelnd, wenn zu Mozart aus dem Hi-Fi-Gerät dann die Waschmaschine mitrumpelt. So dick kannste die Wand gar nicht bauen, dass Ihr die nicht hört. Andere machen ja für Technik & Co auch einfach mal nen Anbau neben den Eingang, wenn der Platz nicht reicht...
Die dreckige Wäsche durchs WZ zu tragen, ist für ein neues Haus wirklich ein Armutszeugnis. Auch ist es wenig prickelnd, wenn zu Mozart aus dem Hi-Fi-Gerät dann die Waschmaschine mitrumpelt. So dick kannste die Wand gar nicht bauen, dass Ihr die nicht hört. Andere machen ja für Technik & Co auch einfach mal nen Anbau neben den Eingang, wenn der Platz nicht reicht...
Wenn ihr fest entschlossen seid, daß Haus so zu konzipieren, daß man es in zwei verschiedene Wohneinheiten trennen kann, dann macht der Vorschlag von Kaho zur Treppenverlegung mehr als Sinn.
Verlaßt euch nicht darauf, daß vor euch nicht mehr gebaut wird. Ich kenn hier einige, die noch vor 20 Jahren über ihre unverbaubare (!!) schöne Aussicht gejubelt haben und jetzt in Reihe 5 oder so wohnen... Als die dort gebaut haben hieß es aber: da wird ganz sicher nie und nimmer hingebaut werden!
Nix ist so sicher wie der Wandel.
Verlaßt euch nicht darauf, daß vor euch nicht mehr gebaut wird. Ich kenn hier einige, die noch vor 20 Jahren über ihre unverbaubare (!!) schöne Aussicht gejubelt haben und jetzt in Reihe 5 oder so wohnen... Als die dort gebaut haben hieß es aber: da wird ganz sicher nie und nimmer hingebaut werden!
Nix ist so sicher wie der Wandel.
G
Grantlhaua13.08.18 12:36kaho674 schrieb:
Andere machen ja für Technik & Co auch einfach mal nen Anbau neben den Eingang, wenn der Platz nicht reicht...Oder ihr legt das ganze in den Keller unter dem Carport wenns denn unbedingt der Keller außerhalb sein soll. So hats meine Tante gemacht. Da steht die Wärmepumpe im Keller, der nur über eine Außentreppe erreichbar ist.
Ähnliche Themen