ᐅ Einfamilienhaus ca. 180 m² - Was meint ihr dazu?
Erstellt am: 13.08.18 08:54
Hallo zusammen,
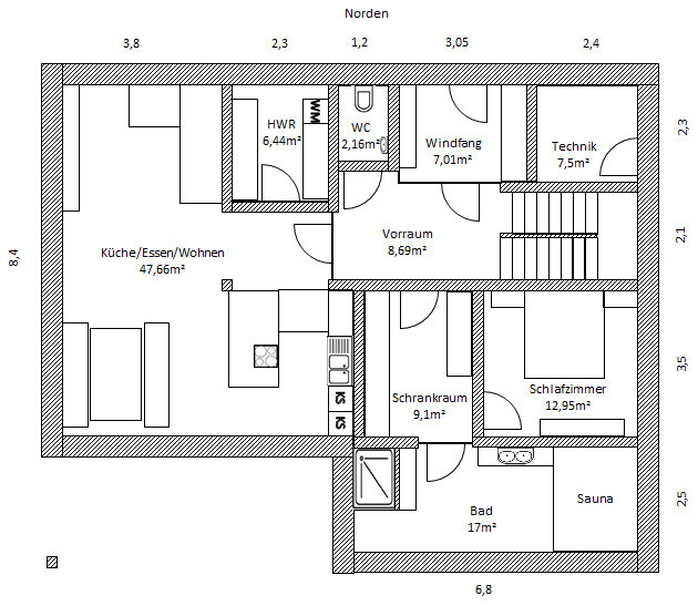
wir würden euch gerne unseren Grundriss vorstellen. Dieser basiert auf unseren Ideen und Vorstellungen und ist mal eine erster selbsterstellter Entwurf dazu. Wir planen auf einem nahezu ebenen Grundstück ohne Keller unter dem Haus.
Was uns wichtig ist, ist die einfache Erreichbarkeit der fixüberdachten Terrasse, ein Elternbereich, den wir auch im Alter benutzen können und die Möglichkeit, das OG auch recht einfach vom EG abzutrennen.
Wir freuen uns auf eure Meinungen!
Bebauungsplan/Einschränkungen
Größe des Grundstücks: ca. 1000 m² geplant, Aufteilung noch frei wählbar
Hang: geringe Neigung nach Süden
Grundflächenzahl: 0,2 – 0,3
Geschossflächenzahl
Baufenster, Baulinie und Grenze
Randbebauung
Anzahl Stellplatz
Geschossigkeit
Dachform: keine Einschränkungen
Stilrichtung: modern
Ausrichtung: siehe Anlage, unten ist Süden
Maximale Höhen/Begrenzungen:
weitere Vorgaben
Anforderungen der Bauherren
Stilrichtung, Dachform, Gebäudetyp: modern, Flachdach, Pultdach oder Walmdach
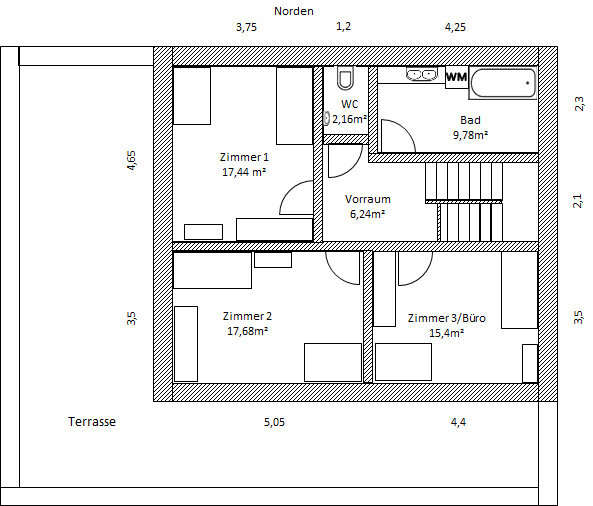
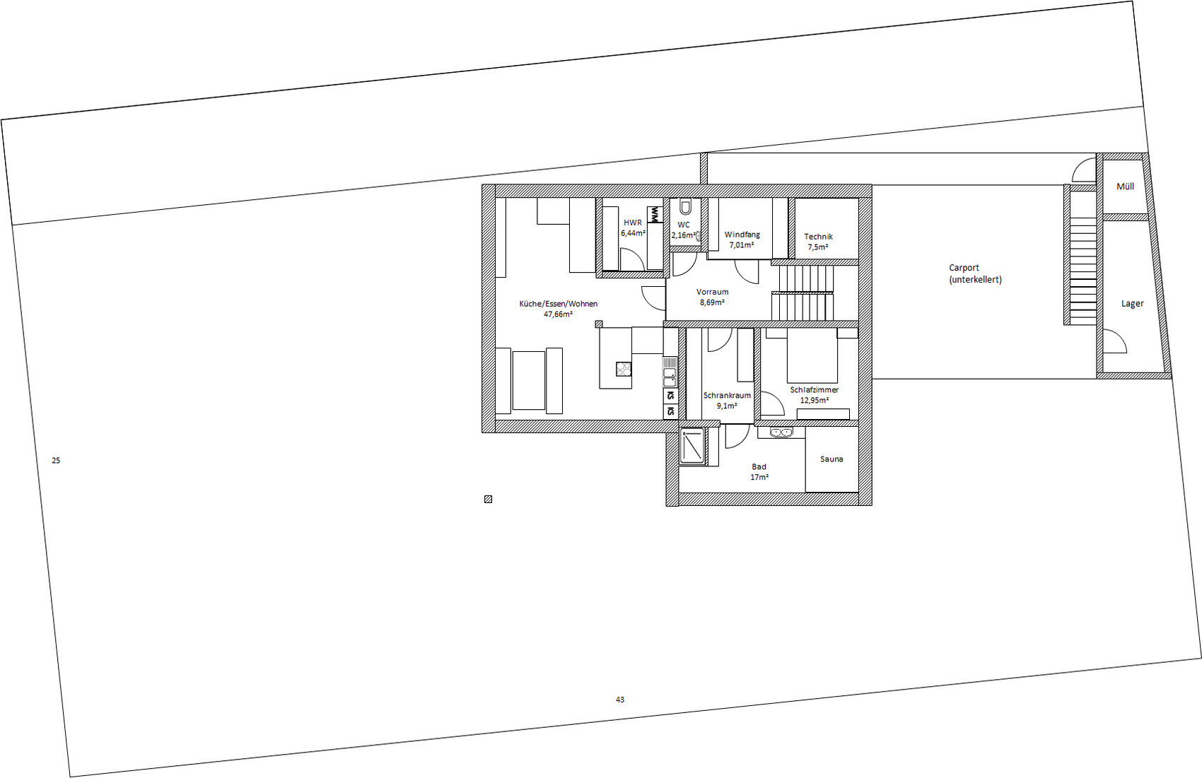
Keller, Geschosse: 2 Geschosse, Carport/Garage unterkellert
Anzahl der Personen, Alter: 4 Personen, 2 Erw., 2 Kinder, 3. Kind nicht ausgeschlossen
Raumbedarf im EG, OG:
Büro: Familiennutzung oder Homeoffice?
Schlafgäste pro Jahr
offene oder geschlossene Architektur
konservativ oder moderne Bauweise
offene Küche, Kochinsel: Kochinsel, Wohn-Essbereich zusammen
Anzahl Essplätze: mind. 6
Kamin: muss nicht sein
Balkon, Dachterrasse: ja
Garage, Carport: entweder oder
weitere Wünsche/Besonderheiten/Tagesablauf, gern auch Begründungen, warum dieses oder das nicht sein soll: wir möchten die Möglichkeit haben Erdgeschoss und Obergeschoss zu trennen. Im Obergeschoss soll es möglich sein, eine kleine Küchenzeile einzubauen und eine Waschmaschine im Bad unterzubringen. Erdgeschoss sollte auch fürs Alter gut nutzbar sein. Überdachte/windgeschützte Terrasse, leichte Zugänglichkeit von der Küche zur Terrasse
Hausentwurf
Von wem stammt die Planung:
-Do-it-Yourself mit Anregungen aus dem Internet
Was gefällt besonders? Warum?: Überdachte Terrasse, Elternbereich
Was gefällt nicht? Warum?: Wohnzimmer könnte größer sein
Preisschätzung lt Architekt/Planer:
Persönliches Preislimit fürs Haus, inkl Ausstattung: 450000
favorisierte Heiztechnik: Erd- oder Luftwärme
Wenn Ihr verzichten müsst,auf welche Details/Ausbauten
-könnt Ihr verzichten:
-könnt Ihr nicht verzichten:
Warum ist der Entwurf so geworden, wie er jetzt ist?ZB
Ein Gemisch aus vielen Beispielen aus div. Magazinen...
Was ist die grundlegende Frage zum Grundriss in 130 Zeichen zusammengefasst?
Wie gefällt euch der Grundriss? Was sind aus eurer Sicht absolute No-Go’s? Ich freue mich über Anregungen und Kritiken. Vielen Dank schon mal!!



wir würden euch gerne unseren Grundriss vorstellen. Dieser basiert auf unseren Ideen und Vorstellungen und ist mal eine erster selbsterstellter Entwurf dazu. Wir planen auf einem nahezu ebenen Grundstück ohne Keller unter dem Haus.
Was uns wichtig ist, ist die einfache Erreichbarkeit der fixüberdachten Terrasse, ein Elternbereich, den wir auch im Alter benutzen können und die Möglichkeit, das OG auch recht einfach vom EG abzutrennen.
Wir freuen uns auf eure Meinungen!
Bebauungsplan/Einschränkungen
Größe des Grundstücks: ca. 1000 m² geplant, Aufteilung noch frei wählbar
Hang: geringe Neigung nach Süden
Grundflächenzahl: 0,2 – 0,3
Geschossflächenzahl
Baufenster, Baulinie und Grenze
Randbebauung
Anzahl Stellplatz
Geschossigkeit
Dachform: keine Einschränkungen
Stilrichtung: modern
Ausrichtung: siehe Anlage, unten ist Süden
Maximale Höhen/Begrenzungen:
weitere Vorgaben
Anforderungen der Bauherren
Stilrichtung, Dachform, Gebäudetyp: modern, Flachdach, Pultdach oder Walmdach
Keller, Geschosse: 2 Geschosse, Carport/Garage unterkellert
Anzahl der Personen, Alter: 4 Personen, 2 Erw., 2 Kinder, 3. Kind nicht ausgeschlossen
Raumbedarf im EG, OG:
Büro: Familiennutzung oder Homeoffice?
Schlafgäste pro Jahr
offene oder geschlossene Architektur
konservativ oder moderne Bauweise
offene Küche, Kochinsel: Kochinsel, Wohn-Essbereich zusammen
Anzahl Essplätze: mind. 6
Kamin: muss nicht sein
Balkon, Dachterrasse: ja
Garage, Carport: entweder oder
weitere Wünsche/Besonderheiten/Tagesablauf, gern auch Begründungen, warum dieses oder das nicht sein soll: wir möchten die Möglichkeit haben Erdgeschoss und Obergeschoss zu trennen. Im Obergeschoss soll es möglich sein, eine kleine Küchenzeile einzubauen und eine Waschmaschine im Bad unterzubringen. Erdgeschoss sollte auch fürs Alter gut nutzbar sein. Überdachte/windgeschützte Terrasse, leichte Zugänglichkeit von der Küche zur Terrasse
Hausentwurf
Von wem stammt die Planung:
-Do-it-Yourself mit Anregungen aus dem Internet
Was gefällt besonders? Warum?: Überdachte Terrasse, Elternbereich
Was gefällt nicht? Warum?: Wohnzimmer könnte größer sein
Preisschätzung lt Architekt/Planer:
Persönliches Preislimit fürs Haus, inkl Ausstattung: 450000
favorisierte Heiztechnik: Erd- oder Luftwärme
Wenn Ihr verzichten müsst,auf welche Details/Ausbauten
-könnt Ihr verzichten:
-könnt Ihr nicht verzichten:
Warum ist der Entwurf so geworden, wie er jetzt ist?ZB
Ein Gemisch aus vielen Beispielen aus div. Magazinen...
Was ist die grundlegende Frage zum Grundriss in 130 Zeichen zusammengefasst?
Wie gefällt euch der Grundriss? Was sind aus eurer Sicht absolute No-Go’s? Ich freue mich über Anregungen und Kritiken. Vielen Dank schon mal!!
Warum wollt ihr das Carport unterkellern?
Was versteht ihr unter im alter nutzbar?
Rollator? Pflegedienst z.b für Hilfe beim Anziehen, Stützstrümpfe, Schiene anlegen oder nur die Füße nicht heben müssen.
Wo kommt die Waschmaschine und der Trockner hin?
Wollt ihr vermieten oder für eines der Kinder.
Bedenkt man muss im alter nicht zwangsläufig unten wohnen. Treppenlifte sind relativ günstig und es gibt sogar Aufzüge die nachträglich angebaut werden können. In dem Bereich wird sich die nächsten Jahre noch viel tun.
Was mir nicht gefällt auf die schnelle
Allraum zu klein
Mini WC
Verschachtelter Elternbereich
Zu kleiner Haustechnikraum
Was versteht ihr unter im alter nutzbar?
Rollator? Pflegedienst z.b für Hilfe beim Anziehen, Stützstrümpfe, Schiene anlegen oder nur die Füße nicht heben müssen.
Wo kommt die Waschmaschine und der Trockner hin?
Wollt ihr vermieten oder für eines der Kinder.
Bedenkt man muss im alter nicht zwangsläufig unten wohnen. Treppenlifte sind relativ günstig und es gibt sogar Aufzüge die nachträglich angebaut werden können. In dem Bereich wird sich die nächsten Jahre noch viel tun.
Was mir nicht gefällt auf die schnelle
Allraum zu klein
Mini WC
Verschachtelter Elternbereich
Zu kleiner Haustechnikraum
G
Grantlhaua13.08.18 10:33Ich würde den Hauswirtschaftsraum niemals von der Küche aus betretbar machen. Hier soll er zwar mit als Speisekammer dienen aber dafür ist er fast zu klein und ich will meine dreckige Wäsche ja nicht immer durch meinen "schönen" Wohnraum tragen müssen.
Die Badewanne im OG finde ich fehlplatziert. Wenn dann gehört sie ja ins Elternbad und da hat sie keinen Platz.
Die Badewanne im OG finde ich fehlplatziert. Wenn dann gehört sie ja ins Elternbad und da hat sie keinen Platz.
Und zum Pinkeln gehen die Eltern durch den Schmutzbereich...oder kriegt das Elternbad doch auch noch eine eigene Schüssel?
Was ist der Block zwischen beiden Küchenzeilen? Wenn der Hauswirtschaftsraum die Speis sein soll, dann darf man da immer um den ganzen Küchenblock herum rennen. Dann lieber zwei separate Küchenzeilen planen, dann würde das Sinn machen.
Gebe Grantlhaua recht: Waschmaschine würde ich in den TK-Raum nehmen, dafür ist der aber definitiv zu klein.
Wohnbereich wäre mir so zu klein und gedrängt - wollt ihr wirklich zwei Bänke am Esstisch? So wie eine Biertischgarnitur? Finde ich persönlich unpraktisch. Aber wenn ihr das so wollt...
Wieso das WC im OG extra? Würde ich zum Bad dazu nehmen, dann ist das auch nicht so eine Winzkammer.
Den Carport unterkellert, das Haus nicht? Was ist da der Sinn dahinter???
Was ist der Block zwischen beiden Küchenzeilen? Wenn der Hauswirtschaftsraum die Speis sein soll, dann darf man da immer um den ganzen Küchenblock herum rennen. Dann lieber zwei separate Küchenzeilen planen, dann würde das Sinn machen.
Gebe Grantlhaua recht: Waschmaschine würde ich in den TK-Raum nehmen, dafür ist der aber definitiv zu klein.
Wohnbereich wäre mir so zu klein und gedrängt - wollt ihr wirklich zwei Bänke am Esstisch? So wie eine Biertischgarnitur? Finde ich persönlich unpraktisch. Aber wenn ihr das so wollt...
Wieso das WC im OG extra? Würde ich zum Bad dazu nehmen, dann ist das auch nicht so eine Winzkammer.
Den Carport unterkellert, das Haus nicht? Was ist da der Sinn dahinter???
Hallo,
danke für die ersten Rückmeldungen.
Der Plan ist auf der einen Seite, das OG für die Kinder zu verwenden bzw. auf der anderen Seite so zu adaptieren, dass man es tatsächlich vermieten könnte / für Hauspflege zu verwenden ist.
Waschmaschine/Trockner sollen in den Hauswirtschaftsraum, Technik sollte die Technik beinhalten, wobei wir hier auch den Raum unter der Stiege nützen würden. Was meinst du dazu? Das Thema, die Schmutzwäsche nicht durch den Wohnraum zu tragen, sehe ich nicht wirklich, muss ich sagen. Das haben wir jetzt auch so, und der Raum hinter der Küche ist schon sehr gut nutzbar
Der Allraum ist uns auch noch zu klein, vor allem der Bereich um die Couch. Die Bänke sind zur Zeit nur so eingezeichnet, um ein Gefühl für den Platzbedarf zu bekommen. Ich denke, ganz generell, sollte der Raum doch um ein paar m² größer werden
Zu den WC: findet ihr ein WC mit 1,2 x 1,8 m wirklich zu klein? Wie groß sollte es eurer Meinung nach sein?
Zur Unterkellerung: wir hätten hier ca. 110 m² Keller, da sind wir der Meinung, dass wir das nicht brauchen und auch nicht wollen. Das Carport hat ca. 50 m² in denen man doch einige Dinge lagern kann. Das ist der Grund der Überlegung.
danke für die ersten Rückmeldungen.
Der Plan ist auf der einen Seite, das OG für die Kinder zu verwenden bzw. auf der anderen Seite so zu adaptieren, dass man es tatsächlich vermieten könnte / für Hauspflege zu verwenden ist.
Waschmaschine/Trockner sollen in den Hauswirtschaftsraum, Technik sollte die Technik beinhalten, wobei wir hier auch den Raum unter der Stiege nützen würden. Was meinst du dazu? Das Thema, die Schmutzwäsche nicht durch den Wohnraum zu tragen, sehe ich nicht wirklich, muss ich sagen. Das haben wir jetzt auch so, und der Raum hinter der Küche ist schon sehr gut nutzbar
Der Allraum ist uns auch noch zu klein, vor allem der Bereich um die Couch. Die Bänke sind zur Zeit nur so eingezeichnet, um ein Gefühl für den Platzbedarf zu bekommen. Ich denke, ganz generell, sollte der Raum doch um ein paar m² größer werden
Zu den WC: findet ihr ein WC mit 1,2 x 1,8 m wirklich zu klein? Wie groß sollte es eurer Meinung nach sein?
Zur Unterkellerung: wir hätten hier ca. 110 m² Keller, da sind wir der Meinung, dass wir das nicht brauchen und auch nicht wollen. Das Carport hat ca. 50 m² in denen man doch einige Dinge lagern kann. Das ist der Grund der Überlegung.
emundem schrieb:
Das haben wir jetzt auch soWahhhhhhh! Mein Haßargument. Da könnt ich schreien!!! Ihr baut euer Haus, plant das Optimum und nicht "das geht schon, das haben wir jetzt auch so". Abstriche muß man immer machen, aber schon mal einen Kompromiss planen ist einfach doof.emundem schrieb:
findet ihr ein WC mit 1,2 x 1,8 m wirklich zu klein?JA!Und um in den Keller zu kommen müßt ihr immer raus? Ist doch blöd! Dann lieber über eine Teilunterkellerung nachdenken. Aber wenn es einen Keller gibt, dann sinnvollerweise unterm Haus. Und laßt euch ein Angebot für Teilunterkellert und Vollkeller geben. Es wird nicht viel Unterschied sein. Die (anfangs?) ungenutzten Kellerräume kann man ja auch erst mal im Rohbau lassen und nur bei Bedarf irgendwann mal ausbauen.
Falls ihr das OG tatsächlich vermieten solltet, sollen die Mieter dann immer durch euren Flur laufen um in die Whg zu kommen?
Und, wenn es keinen Keller gibt, wo haben die dann Stauraum?
Die eierlegende Wollmilchsau gibt's meist nicht. Entscheidet euch für ein Haus für eure JETZIGE Situation, allerhöchstens mit der Option das ggf. mal später gut umbauen zu können. Aber Hauptaugenmerk darauf, daß es jetzt bestmöglich paßt!
Jetzt seh ich da 180qm und eigentlich keinen schönen Wohnbereich, viel zu enge WCs, keinen richtig guten Platz für Waschmaschine/Trockner und insgesamt (ohne Keller) zu wenig Stauraum, keine schönen Bäder.
Dafür wäre mir mein Geld zu schade. Da gibt es Standardentwürfe die besser und funktionaler sind.
Dürft ihr wirklich so nah an die Grundstücksgrenze (planoben) hinbauen?
Ähnliche Themen