Moin moin!
Nachdem ich gestern einen Entwurf vom Architekten bekommen habe wende ich mich verzweifelt an euch!
Bebauungsplan/Einschränkungen
Größe des Grundstücks 819m²
Hang nein
Grundflächenzahl -
Geschossflächenzahl -
Baufenster, Baulinie und -grenze -
Randbebauung -
Anzahl Stellplatz 2
Geschossigkeit -
Dachform -
Stilrichtung -
Ausrichtung -
Maximale Höhen/Begrenzungen -
weitere Vorgaben -
Anforderungen der Bauherren
Stilrichtung, Dachform, Gebäudetyp zeitlos, klassisch, schlicht, verklinkert, Satteldach
Keller, Geschosse nein, 1,5
Anzahl der Personen, Alter 2 aktuell (26,23) zzgl. Vierbeiner (Golden Retriever), Kinder in Kürze
Raumbedarf im EG: Küche, Wohnzimmer, Esszimmer, Hauswirtschaftsraum, Bad mit Dusche evtl. Büro OG: Eltern, Kind I+II, Badezimmer, Büro wenn nicht im EG, Wäscheraum wäre schön
Büro: Familiennutzung oder Homeoffice? Homeoffice
Schlafgäste pro Jahr 0
offene oder geschlossene Architektur semi
konservativ oder moderne Bauweise ?
offene Küche, Kochinsel Kochinsel
Anzahl Essplätze Alltag 4, Besuch 8
Kamin nein
Musik/Stereowand nein
Balkon, Dachterrasse nein
Garage, Carport Carport
Nutzgarten, Treibhaus nein
weitere Wünsche/Besonderheiten/Tagesablauf, gern auch Begründungen, warum dieses oder das nicht sein soll:
- Carport angrenzend an Hauswirtschaftsraum
- Hauswirtschaftsraum angrenzend an Küche
- Küche halboffen an Wohn-/Essbereich angrenzend
- Möglichkeit 2 Wohneinheiten daraus zu machen bspw. durch Treppe beim Haupteingang und Windfang im Flur (wenn die Kinder erwachsen sind, Vermietung etc.)
Hausentwurf
Von wem stammt die Planung: Architekt
Was gefällt besonders? Warum? Nichts so wirklich, leider
Was gefällt nicht? Warum? Raumausrichtung total dämlich bspw. Wohnzimmer im Nordosten, Hauswirtschaftsraum im Südwesten und dann auch noch vom Carport weit entfernt, 170m² statt 150m²
Preisschätzung lt Architekt/Planer: -
Persönliches Preislimit fürs Haus, inkl Ausstattung: 275000€
favorisierte Heiztechnik: Erdwärme mit Ringgrabenkollektor
Wenn Ihr verzichten müsst, auf welche Details/Ausbauten
-könnt Ihr verzichten: Kochinsel, Büro im EG, Wäscheraum
-könnt Ihr nicht verzichten: halboffener Wohn-/Kochbereich, Möglichkeit 2 Wohneinheiten daraus zu machen
Warum ist der Entwurf so geworden, wie er jetzt ist? ZB
Standardentwurf vom Planer? Nein, er hat uns aber einen ähnlichen Grundriss im Gespräch präsentiert
Entsprechende/Welche Wünsche wurden vom Architekten umgesetzt? 4 Wände
Was macht ihn in Euren Augen besonders gut oder schlecht? Es wurde kaum auf unsere Wünsche eingegangen und das Haus ist viel zu groß
Was ist die wichtigste/grundlegende Frage zum Grundriss in 130 Zeichen zusammengefasst?
Wir waren mit unserem eigenen Grundriss bei zwei Bauunternehmern die uns das so angeboten haben. Waren aber nicht so richtig zufrieden und wollten den Profi ranlassen. Die Zeichnung vom Architekten war aber eine echte Enttäuschung. Dinge die ich als Laie sehe werden anscheinend nicht erkannt oder ignoriert. Unsere Wünsche sollten sich doch auf 150m² verwirklichen lassen oder? Das Problem mit dem Grundriss hällt uns enorm auf, der Architekt hat nämlich fast einen Monat gebraucht um uns seinen Mist zuzuschicken. Statik, Energieeinsparverordnung eetc. warten darauf das es weitergeht und ich weiß nicht was ich machen soll
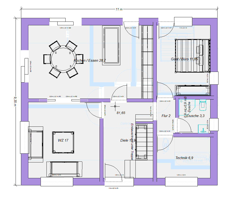
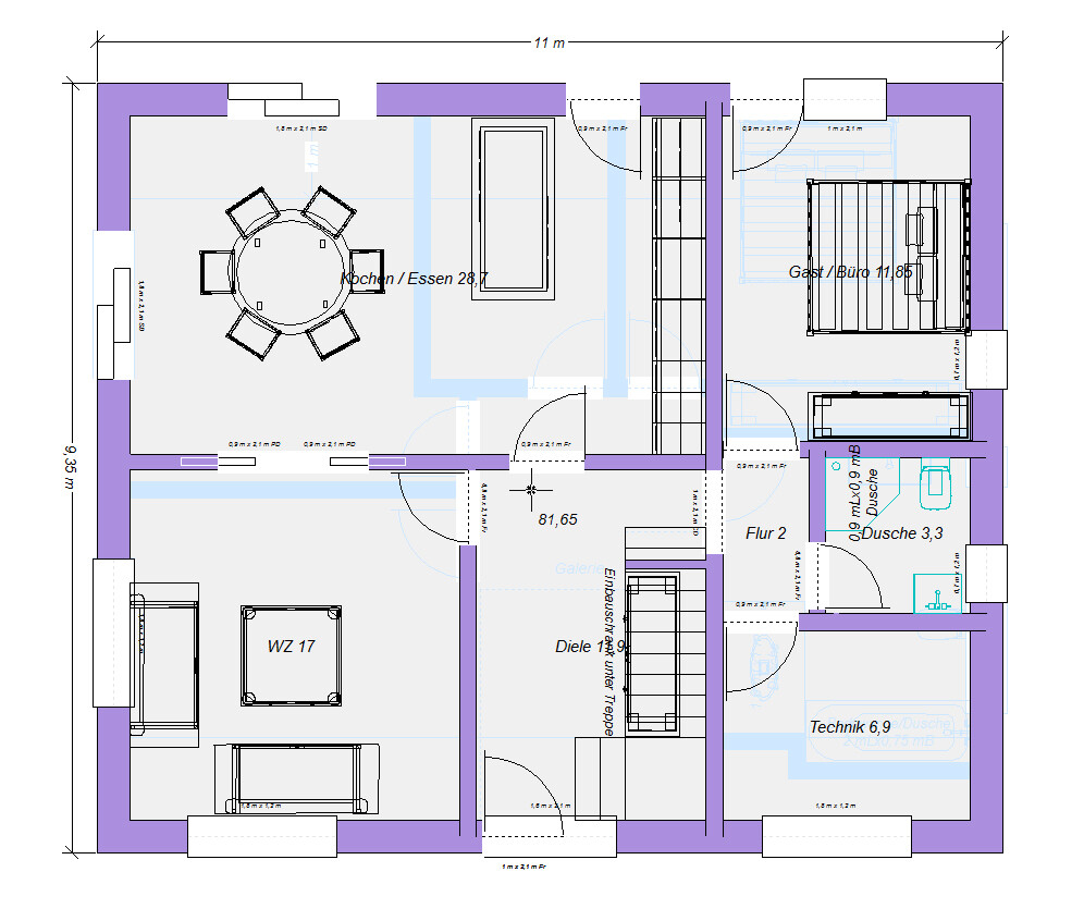
Es handelt sich um das Haus mit der Nummer 25 (blau in der Mitte) im Lageplan.
Liebe Grüße
André


Nachdem ich gestern einen Entwurf vom Architekten bekommen habe wende ich mich verzweifelt an euch!
Bebauungsplan/Einschränkungen
Größe des Grundstücks 819m²
Hang nein
Grundflächenzahl -
Geschossflächenzahl -
Baufenster, Baulinie und -grenze -
Randbebauung -
Anzahl Stellplatz 2
Geschossigkeit -
Dachform -
Stilrichtung -
Ausrichtung -
Maximale Höhen/Begrenzungen -
weitere Vorgaben -
Anforderungen der Bauherren
Stilrichtung, Dachform, Gebäudetyp zeitlos, klassisch, schlicht, verklinkert, Satteldach
Keller, Geschosse nein, 1,5
Anzahl der Personen, Alter 2 aktuell (26,23) zzgl. Vierbeiner (Golden Retriever), Kinder in Kürze
Raumbedarf im EG: Küche, Wohnzimmer, Esszimmer, Hauswirtschaftsraum, Bad mit Dusche evtl. Büro OG: Eltern, Kind I+II, Badezimmer, Büro wenn nicht im EG, Wäscheraum wäre schön
Büro: Familiennutzung oder Homeoffice? Homeoffice
Schlafgäste pro Jahr 0
offene oder geschlossene Architektur semi
konservativ oder moderne Bauweise ?
offene Küche, Kochinsel Kochinsel
Anzahl Essplätze Alltag 4, Besuch 8
Kamin nein
Musik/Stereowand nein
Balkon, Dachterrasse nein
Garage, Carport Carport
Nutzgarten, Treibhaus nein
weitere Wünsche/Besonderheiten/Tagesablauf, gern auch Begründungen, warum dieses oder das nicht sein soll:
- Carport angrenzend an Hauswirtschaftsraum
- Hauswirtschaftsraum angrenzend an Küche
- Küche halboffen an Wohn-/Essbereich angrenzend
- Möglichkeit 2 Wohneinheiten daraus zu machen bspw. durch Treppe beim Haupteingang und Windfang im Flur (wenn die Kinder erwachsen sind, Vermietung etc.)
Hausentwurf
Von wem stammt die Planung: Architekt
Was gefällt besonders? Warum? Nichts so wirklich, leider
Was gefällt nicht? Warum? Raumausrichtung total dämlich bspw. Wohnzimmer im Nordosten, Hauswirtschaftsraum im Südwesten und dann auch noch vom Carport weit entfernt, 170m² statt 150m²
Preisschätzung lt Architekt/Planer: -
Persönliches Preislimit fürs Haus, inkl Ausstattung: 275000€
favorisierte Heiztechnik: Erdwärme mit Ringgrabenkollektor
Wenn Ihr verzichten müsst, auf welche Details/Ausbauten
-könnt Ihr verzichten: Kochinsel, Büro im EG, Wäscheraum
-könnt Ihr nicht verzichten: halboffener Wohn-/Kochbereich, Möglichkeit 2 Wohneinheiten daraus zu machen
Warum ist der Entwurf so geworden, wie er jetzt ist? ZB
Standardentwurf vom Planer? Nein, er hat uns aber einen ähnlichen Grundriss im Gespräch präsentiert
Entsprechende/Welche Wünsche wurden vom Architekten umgesetzt? 4 Wände
Was macht ihn in Euren Augen besonders gut oder schlecht? Es wurde kaum auf unsere Wünsche eingegangen und das Haus ist viel zu groß
Was ist die wichtigste/grundlegende Frage zum Grundriss in 130 Zeichen zusammengefasst?
Wir waren mit unserem eigenen Grundriss bei zwei Bauunternehmern die uns das so angeboten haben. Waren aber nicht so richtig zufrieden und wollten den Profi ranlassen. Die Zeichnung vom Architekten war aber eine echte Enttäuschung. Dinge die ich als Laie sehe werden anscheinend nicht erkannt oder ignoriert. Unsere Wünsche sollten sich doch auf 150m² verwirklichen lassen oder? Das Problem mit dem Grundriss hällt uns enorm auf, der Architekt hat nämlich fast einen Monat gebraucht um uns seinen Mist zuzuschicken. Statik, Energieeinsparverordnung eetc. warten darauf das es weitergeht und ich weiß nicht was ich machen soll
Es handelt sich um das Haus mit der Nummer 25 (blau in der Mitte) im Lageplan.
Liebe Grüße
André
Ich muss gestehen, dass mir nicht so ganz klar ist, was Ihr Euch wünscht. Vielleicht ging es dem Architekt ähnlich. Man sieht nur, was Ihr nicht wollt. Mangelt es an Vorschlägen? Das Netz ist voll damit.
Hier mal einer als Beispiel (planoben ist Süden / Treppe kein Podest!):


KN: 1m
Dach: 45°
Wegen der Umwelt selbstverständlich Dach zur Sonne ausgerichtet.
Wohnräume mehr zum Garten, damit die nicht an der Straße sind. Terrasse über Eck macht flexibel. Fenster / Terrassentüren wären auch als Eckvariante gut vorstellbar.
Mal abgesehen vom Budget, habt Ihr bei dem Grundstück sehr gute Möglichkeiten. Solange nicht fest steht, wo die Terrasse hin soll, kann man Euch nicht helfen. Vermutlich müsst Ihr solche Sachen einfach mal festlegen. Dann geht's auch vorwärts.
Hier mal einer als Beispiel (planoben ist Süden / Treppe kein Podest!):
KN: 1m
Dach: 45°
Wegen der Umwelt selbstverständlich Dach zur Sonne ausgerichtet.
Wohnräume mehr zum Garten, damit die nicht an der Straße sind. Terrasse über Eck macht flexibel. Fenster / Terrassentüren wären auch als Eckvariante gut vorstellbar.
Mal abgesehen vom Budget, habt Ihr bei dem Grundstück sehr gute Möglichkeiten. Solange nicht fest steht, wo die Terrasse hin soll, kann man Euch nicht helfen. Vermutlich müsst Ihr solche Sachen einfach mal festlegen. Dann geht's auch vorwärts.
WA / I / o / ED / Grundflächenzahl 0,4 / Geschossflächenzahl 0,6 - der Lageplan ist ansonsten (u.a. Höhen) kaum lesbar und offenbar ein Ausschnitt aus einem Grundstücksangebot, aber kein Bebauungsplan (oder zumindest fehlen Legende und Textteil).
Du solltest also m.E. noch nachliefern: 1. Euren eigenen Entwurf; 2. wie der Bebauungsplan heißt ("Posemuckel Nr. 12 in Hansens Garten", nicht als Link).
In Eurem Alter halte ich für vollständigen Quatsch, eine Teilbarkeit des Hauses nach dem Auszug erst noch geplanter Kinder zu erwägen. Wenn Ihr so jung schon baut, dann vermutlich noch zwei weitere Male.
Die Preisvorstellung ist nicht erfüllbar - ganz gewiß nicht mit Friesengiebel, Verklinkerung und ähnlichen Firlefänzen. Das geht schon als Flair nur mit lediglich vorgerüstetem Dachgeschoss.
https://www.instagram.com/11antgmxde/
https://www.linkedin.com/company/bauen-jetzt/
snowfollows schrieb:Warum sehen wir dann hier nur die Vorschläge von Bauunternehmer und Architekt (und ein Beispiel von Town & Country) , aber nicht Euer eigenes Muster (von dem wir nun also nicht mehr wissen, als daß es beide Fachleute mangelhaft bis verfehlt umgesetzt hätten) ?
Wir waren mit unserem eigenen Grundriss bei zwei Bauunternehmern die uns das so angeboten haben.
Du solltest also m.E. noch nachliefern: 1. Euren eigenen Entwurf; 2. wie der Bebauungsplan heißt ("Posemuckel Nr. 12 in Hansens Garten", nicht als Link).
In Eurem Alter halte ich für vollständigen Quatsch, eine Teilbarkeit des Hauses nach dem Auszug erst noch geplanter Kinder zu erwägen. Wenn Ihr so jung schon baut, dann vermutlich noch zwei weitere Male.
Die Preisvorstellung ist nicht erfüllbar - ganz gewiß nicht mit Friesengiebel, Verklinkerung und ähnlichen Firlefänzen. Das geht schon als Flair nur mit lediglich vorgerüstetem Dachgeschoss.
https://www.instagram.com/11antgmxde/
https://www.linkedin.com/company/bauen-jetzt/
H
hampshire07.10.19 10:00kaho674 schrieb:
Ich muss gestehen, dass mir nicht so ganz klar ist, was Ihr Euch wünscht.Beim ersten Post hatte ich bereits diesen Eindruck und er bestätigte sich im Verlauf des Threads. Hier müsst ihr ansetzen.Nehmt Eure eigenen kritischen und Kommentierungen und formuliert und sortiert konkrete Anforderungen daraus. Es geht ja darum wie ihr leben wollt. Das weiß kein anderer. Je konkreter ein Auftraggeber ist, desto besser wird der Entwurf. Ein Architekt sollte allerdings in der Lage sein das mit Euch gemeinsam herauszukristallisieren.
Abstriche werdet Ihr sicherlich aufgrund Grundstück, Formatvorlage und Budget machen. Das ist völlig OK. Wichtig ist es Prioritäten zu setzen.
Der Entwurf vom Architekten mag nicht zu Euch passen, ist aber kein schlechter Entwurf.
snowfollows schrieb:
Wie gesagt ich habe kein Problem mit den Meinungen anderer und lasse mich auch gerne eines besseren belehren. Ich habe aber keine Lust mich dafür verteidigen zu müssen was welche Position kostet vor allem wenn das hier in der Gegend übliche Preise sind...
50€ netto, Standard ist bei den meisten 30€. 130€? Was wollt ihr denn einsetzen? Als meine Eltern vor 3 Jahren renoviert haben sind die bei 50€ brutto gelandet und das war schon was ordentliches...30€ ist der reine Fliesenpreis, dafür bekommt ihr aber auch schon nichts dolles...geh mal in ein Fliesenstudio, dann werden dir nur teurere Fliesen gefallen. Wir haben etwa 60€, dazu kommt noch Verlegen und Designfuge und Abschlüsse, großes Fliesenformat etc., am Ende sind wir bei 150€ netto gelandet..Das ging uns auch bei vielen anderen Positionen so...Elektro war bei uns auch drin..paar Wechselschalter mehr, Funkschalter etc, schon waren 6000€ weg für wenig Zusatzleistung...Q2 Spachtelung kannst du auch vergessen z.B. Bei jedem Gewerk kommt noch mal so viel darauf, weil es eben dann erst gut aussieht.
Zaba12 schrieb:
Ein 3,76m breites Wohnzimmer . Hihi. Jo kann man machenKann man... aber das sollte natürlich in keinem Neubau so sein. Ich denke unter 4m sollte man nicht bauen
Ähnliche Themen