ᐅ Deckenauslässe für Kontrollierte-Wohnraumlüftung, ist das korrekt ?
Erstellt am: 02.06.19 13:22
T
tumaaHallo zusammen,
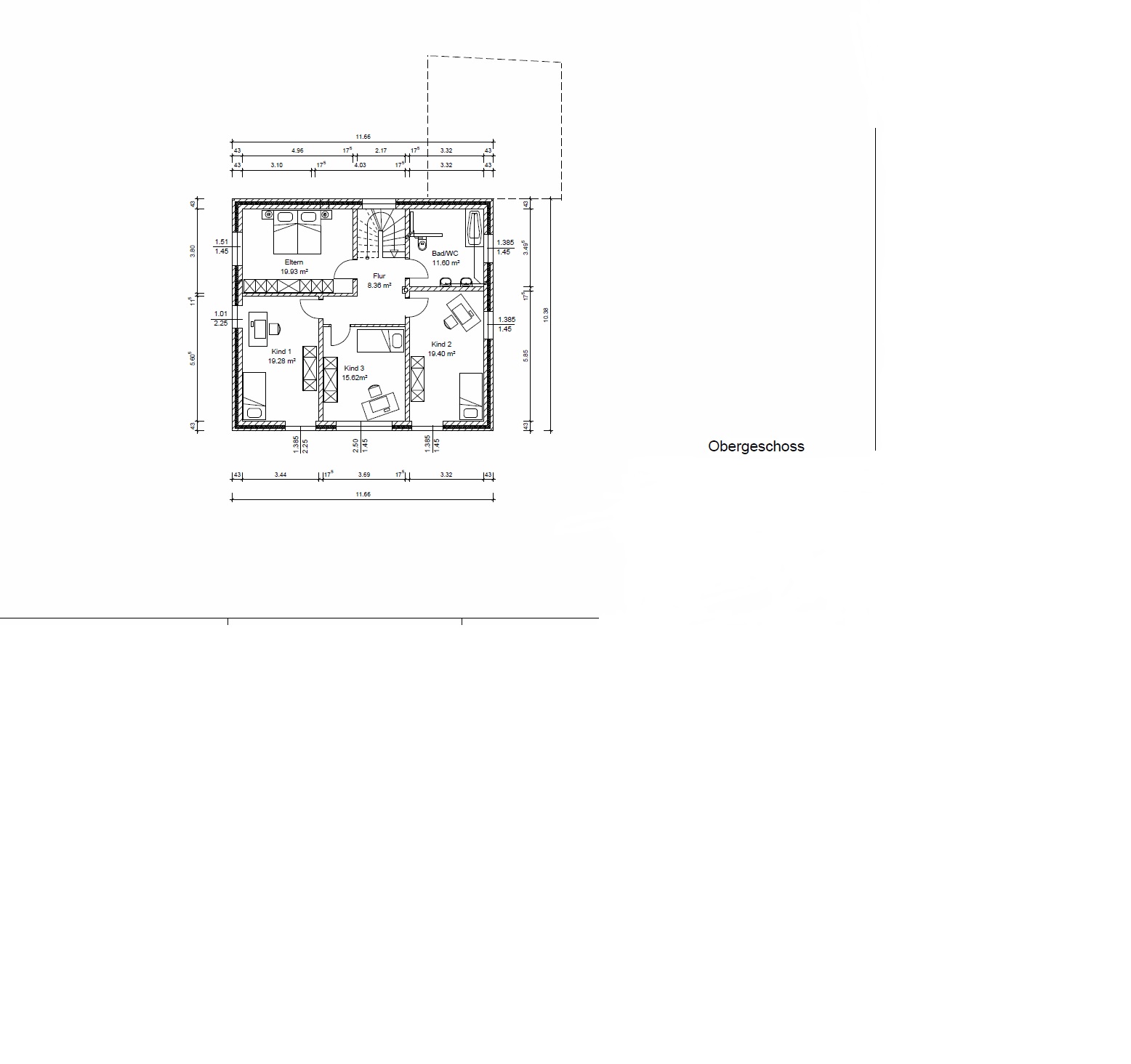
die Betondecke muss bestellt werden und ich soll dem Bauleiter mitteilen, wo die Auslässe für die Kontrollierte-Wohnraumlüftung sein sollen.
Anfangs waren 100er Wickelfalzrohre geplant, doch dadurch wird die Betondecke teurer etc........jetzt plane ich es mit Flachkanäle.
Der Dachboden soll auch ausgebaut werden.
Es jetzt mit 6 Zuluft und 6 Abluft geplant.
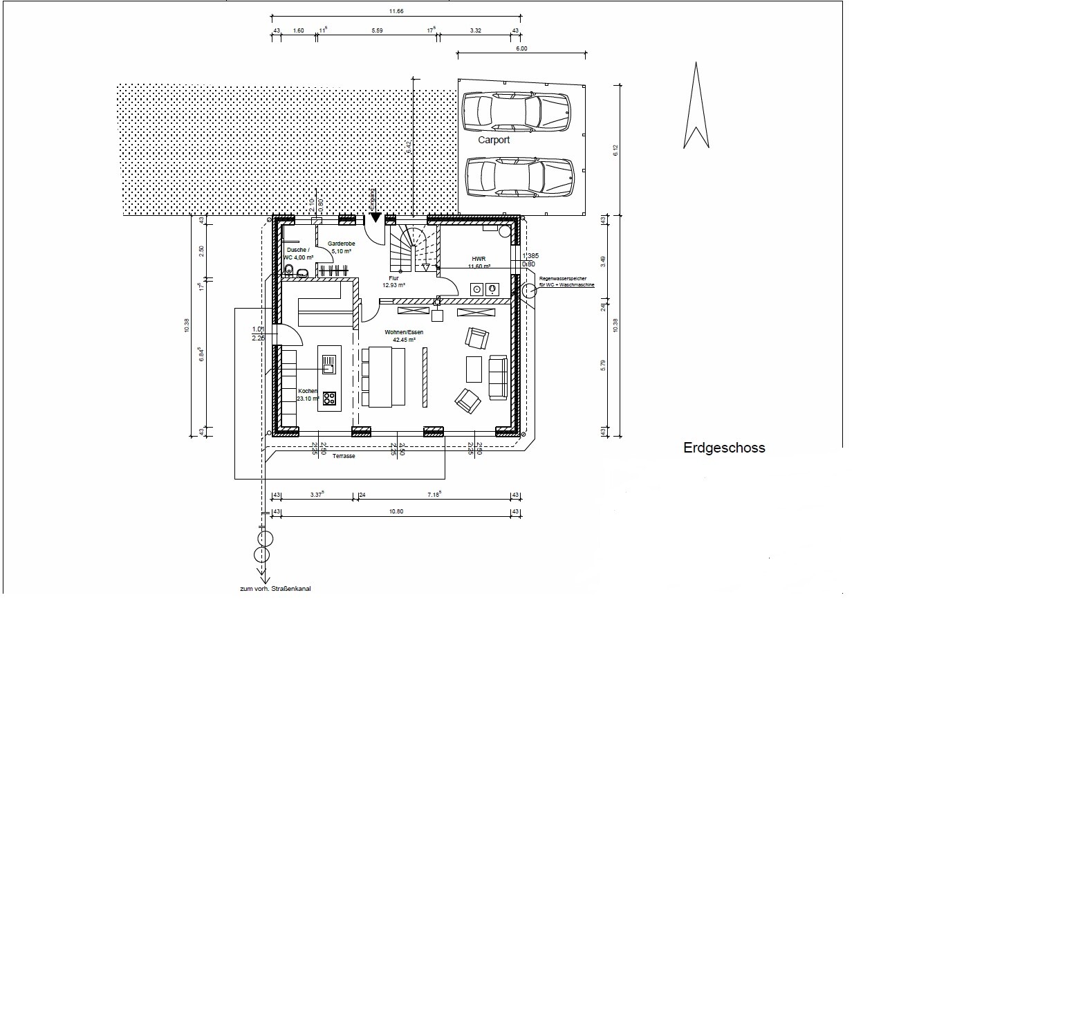
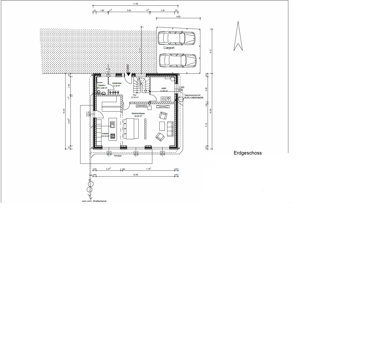
EG:
1 Abluft wird direkt im Hauswirtschaftsraum sein
2 Abluft (Gäste-Wc und Küche)
1 Zuluft (Wohnbereich)
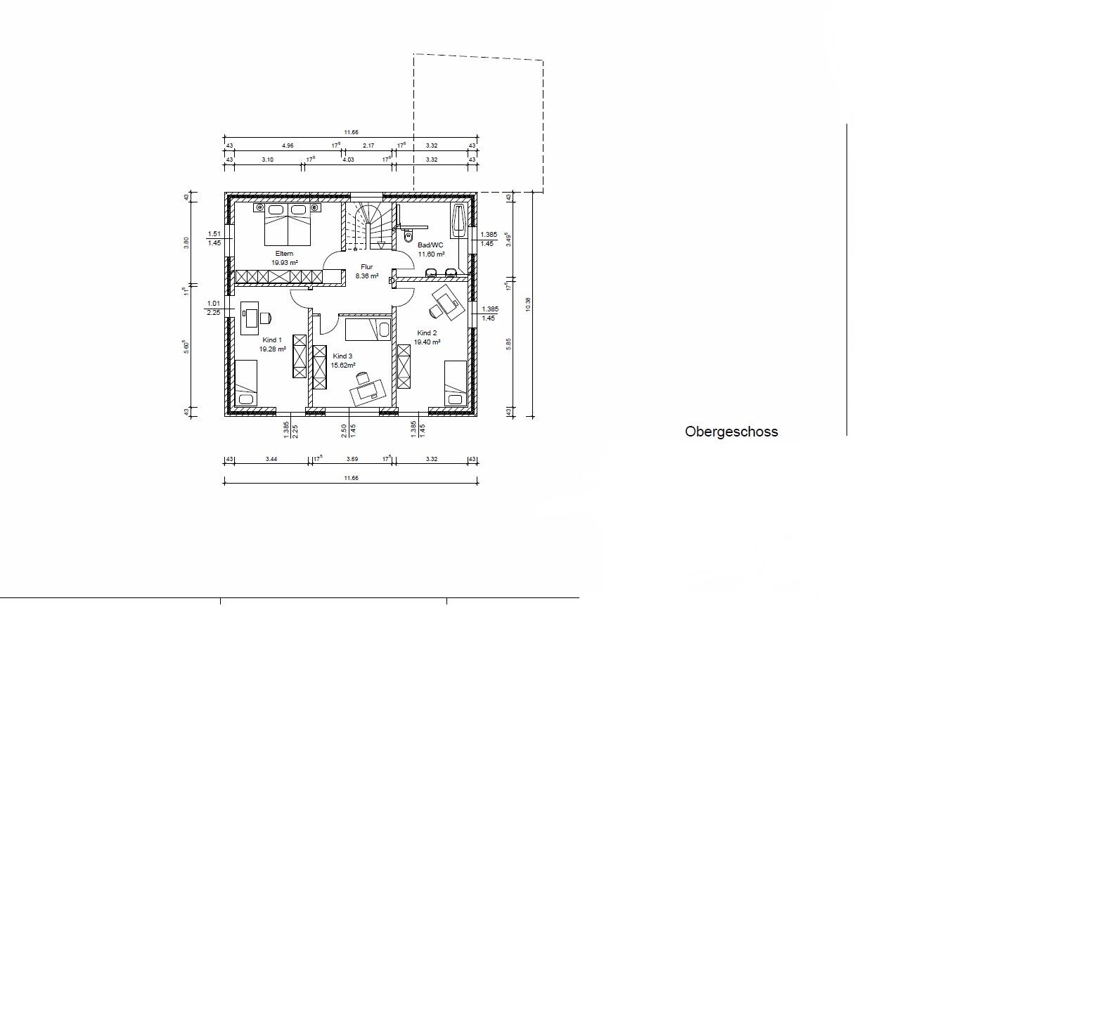
OG:
1 Abluft für Bad
4 Zuluft für Schlafzimmer
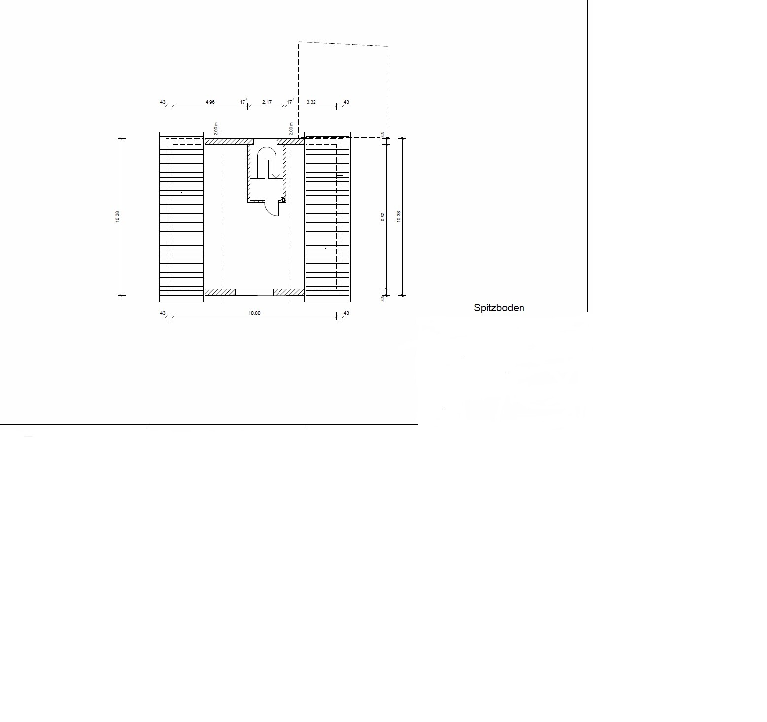
Dachboden:
2 Abluft (Abstellraum und Bad)
1 Zuluft für Zimmer
Passt das ? Danke!







die Betondecke muss bestellt werden und ich soll dem Bauleiter mitteilen, wo die Auslässe für die Kontrollierte-Wohnraumlüftung sein sollen.
Anfangs waren 100er Wickelfalzrohre geplant, doch dadurch wird die Betondecke teurer etc........jetzt plane ich es mit Flachkanäle.
Der Dachboden soll auch ausgebaut werden.
Es jetzt mit 6 Zuluft und 6 Abluft geplant.
EG:
1 Abluft wird direkt im Hauswirtschaftsraum sein
2 Abluft (Gäste-Wc und Küche)
1 Zuluft (Wohnbereich)
OG:
1 Abluft für Bad
4 Zuluft für Schlafzimmer
Dachboden:
2 Abluft (Abstellraum und Bad)
1 Zuluft für Zimmer
Passt das ? Danke!
B
boxandroof02.06.19 13:25Bei Eltern mach zwei Ventile und bei Wohn vielleicht auch eher zwei. Und bei Waschmaschine/Trockner auch Abluft.
Hat das jmd. berechnet oder woher kommt der Plan?
Hat das jmd. berechnet oder woher kommt der Plan?
boxandroof schrieb:
Bei Eltern mach zwei Ventile und bei Wohn vielleicht auch eher zwei. Und bei Waschmaschine/Trockner auch Abluft.Wäre die Position egal ?
Der Aussparung wird dann breiter , muss die Waschbecken mitberücksichtigen, ob das dann noch klappt ?
B
boxandroof02.06.19 13:30Naja, möglichst weit weg von der Ab-/ bzw. ZUluftventilen.
boxandroof schrieb:
Bei Eltern mach zwei Ventile und bei Wohn vielleicht auch eher zwei. Und bei Waschmaschine/Trockner auch Abluft.
Hat das jmd. berechnet oder woher kommt der Plan?Im Hauswirtschaftsraum ist das Tellerventil direkt am Verteiler.....
Habe das mit einem Freund gemacht, haben erst mal überlegt, welcher Raum was benötigt, von der Anzahl pro Raum, sind wir immer Max. von einem Abluft/Zuluft ausgegangen.
B
boxandroof02.06.19 21:37Es hängt ja vom Bedarf ab. Wie gesagt, Schlafzimmer mit zwei Personen zwei, sonst muss zu viel Luft durch ein Ventil. Wohnzimmer das selbe.
Abluft darf auch mehr Luft durch ein Ventil, da Lautstärke oder Zug dort nicht so kritisch.
Abluft darf auch mehr Luft durch ein Ventil, da Lautstärke oder Zug dort nicht so kritisch.
Ähnliche Themen