ᐅ Dämmung Terrasse von außen oder innen? (2)
Erstellt am: 29.12.25 20:16
S
SebastianHe29.12.25 20:16Liebes Forum,
Wir werden uns eine Doppelhaushälfte BJ1920 kaufen mit einem Anbau aus den 60er Jahren.
Im Folgenden ein Parr Zeichnungen / Bilder:




Der Zustand ist rel. gepflegt für das Alter.
Das Haupthaus (8x8m Bruchsteinwände, kalter Keller, EG, 1.Og, 2.OG) hat eine Dämmung mit 8cm Styropor, die ggf. erneuert wird. Mehr Detail ist an dieser Stelle nicht nötig, wenn doch, schreibe ich natürlich mehr.
Anbau:
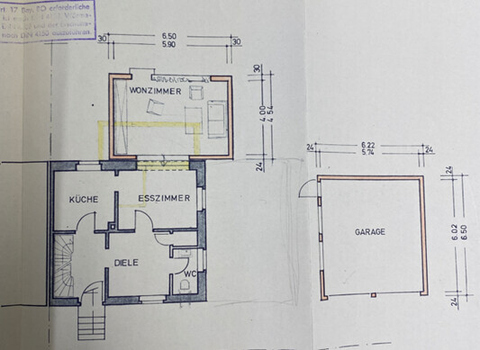
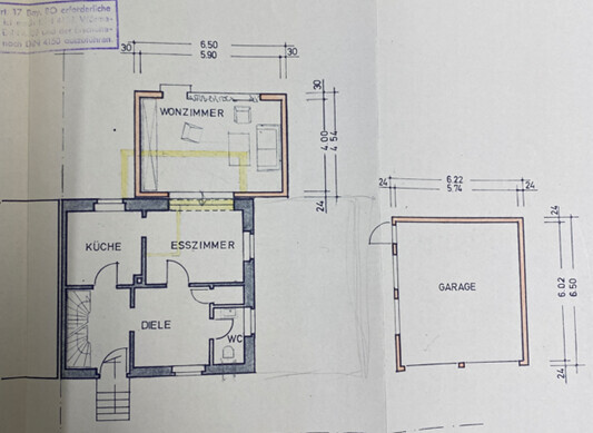
Der Anbau aus den 60ern hat eine Größe von etwa 6,5x4,5m und ist an das alte Haus angebaut.


Bzgl. des Anbaus bin ich mir nicht sicher, ob überall isoliert wurde. Hier sind des Hohlblockziegel für die Fassade.
Der Anbau besteht aus einem Keller, vermutlich nicht nach oben gedämmt. Im Keller ist aktuell ein Hobbyraum, der aber „kalt“ bleiben, soll.
Im EG ist der Anbau im Wohnzimmer in das Haupthaus durch eine großen Wanddurchbruch integriert. Gleiche Holzboden. Der Boden des Anbaus ist aber Beton, während der des Haupthauses aus Holzbalken besteht.

Im 1.OG ist der Anbau eine Terrasse, die von oben mit Platten eingedeckt und sicherlich versiegelt ist:

Ich vermute der Anbau ist eine der energetischen „Schwachstellen“ des Hauses. Hier möchte ich ggf. noch vor Einzug die Fassade und möglichst auch die Decke zw. EG und Terrasse dämmen. Im Keller denke ich kommt eine Kellerdeckendämmung rein.
Ob Eine Fußbodenheizung im EG reinkommt oder ggf. eine Deckenheizung werde ich mit meiner Frau noch „besprechen“.
Zu meinen Fragen:
Wie würdet die Dämmung zw. Decke im EG und Terrasse ausführen? (innen vs. außen)l
Ähnliche Frage für die Fassade. Eine Außen-Dämmung auf der Seite zum Garten ist eher schwer, da hier eine Tür zum Wintergarten dann nicht mehr zum Öffnen wäre. Auch kann die Wand zum Wintergarten auch nicht so einfach von außen gedämmt werden…
Folgendes Bilder ist auf der Südseite des Anbaus. Hier hat der Putz einen Riss unterhalb des Fensters.

Denk ihr das kommt von Feuchtigkeit, die ggf. auf dem Boden „hochgezogen ist“?
Ich vermute keine Horizontalsperren oder Isolierungen zum Erdreich bzw. der Treppe, die man rechts auf dem Bild sieht.
Ich hoffe mit den Infos komme ich hier weiter, ansonsten Schreibe ich natürlich mehr, sofern ich es weiß.
Danke und Gruß,
Sebastian
Wir werden uns eine Doppelhaushälfte BJ1920 kaufen mit einem Anbau aus den 60er Jahren.
Im Folgenden ein Parr Zeichnungen / Bilder:
Der Zustand ist rel. gepflegt für das Alter.
Das Haupthaus (8x8m Bruchsteinwände, kalter Keller, EG, 1.Og, 2.OG) hat eine Dämmung mit 8cm Styropor, die ggf. erneuert wird. Mehr Detail ist an dieser Stelle nicht nötig, wenn doch, schreibe ich natürlich mehr.
Anbau:
Der Anbau aus den 60ern hat eine Größe von etwa 6,5x4,5m und ist an das alte Haus angebaut.
Bzgl. des Anbaus bin ich mir nicht sicher, ob überall isoliert wurde. Hier sind des Hohlblockziegel für die Fassade.
Der Anbau besteht aus einem Keller, vermutlich nicht nach oben gedämmt. Im Keller ist aktuell ein Hobbyraum, der aber „kalt“ bleiben, soll.
Im EG ist der Anbau im Wohnzimmer in das Haupthaus durch eine großen Wanddurchbruch integriert. Gleiche Holzboden. Der Boden des Anbaus ist aber Beton, während der des Haupthauses aus Holzbalken besteht.
Im 1.OG ist der Anbau eine Terrasse, die von oben mit Platten eingedeckt und sicherlich versiegelt ist:
Ich vermute der Anbau ist eine der energetischen „Schwachstellen“ des Hauses. Hier möchte ich ggf. noch vor Einzug die Fassade und möglichst auch die Decke zw. EG und Terrasse dämmen. Im Keller denke ich kommt eine Kellerdeckendämmung rein.
Ob Eine Fußbodenheizung im EG reinkommt oder ggf. eine Deckenheizung werde ich mit meiner Frau noch „besprechen“.
Zu meinen Fragen:
Wie würdet die Dämmung zw. Decke im EG und Terrasse ausführen? (innen vs. außen)l
Ähnliche Frage für die Fassade. Eine Außen-Dämmung auf der Seite zum Garten ist eher schwer, da hier eine Tür zum Wintergarten dann nicht mehr zum Öffnen wäre. Auch kann die Wand zum Wintergarten auch nicht so einfach von außen gedämmt werden…
Folgendes Bilder ist auf der Südseite des Anbaus. Hier hat der Putz einen Riss unterhalb des Fensters.
Denk ihr das kommt von Feuchtigkeit, die ggf. auf dem Boden „hochgezogen ist“?
Ich vermute keine Horizontalsperren oder Isolierungen zum Erdreich bzw. der Treppe, die man rechts auf dem Bild sieht.
Ich hoffe mit den Infos komme ich hier weiter, ansonsten Schreibe ich natürlich mehr, sofern ich es weiß.
Danke und Gruß,
Sebastian
Sie sollten das Objekt nur nach einer Begutachtung durch einen altbauerfahrenen Architekten/Bauingenieur für einen Kauf in Erwägung ziehen. Neben dem Erhaltungszustand der Bausubstanz und den daraus resultierenden (energetischen) Sanierungsanfortderungen bleiben bei solchen Objekten auch einige baurechtlich relevante Punkte zu prüfen:
- hat der Anbau eine Baugenehmigung ?
- wahrt der Anbau die 3,00m Grenzabstand ? Wenn nicht : gibt es eine nachbarschaftliche Einigung oder eine Baulasteintragung ?
- ist die Terrassennutzung des Anbaudaches statisch nachgewiesen und baurechtlich genehmigt - siehe Grenzabstand
- ist der Wintergarten beheizt oder unbeheizt ? Ist er in den Abstandsflächen zur Nachbargrenze grundsätzlich genehmigungsfähig ?
- ist der große Wanddurchbruch zwischen Esszimmer + Wohnzimmer statisch nachgewiesen und baurechtlich genehmigt ?
S
SebastianHe30.12.25 14:28Danke für die Punkte.
Ja, ich war oberflächtlich mit einem Architekten und einer Baugutachterin durch das Haus gegangen. Hier kam kein kritisches Feedback.
Bauuntrelagen des alten Hauses sind keine mehr Vorhanden.
Statische Berechnungen des Anbau sind vorhanden und wohl alle ok und genehmigt.
Bzgl. einer Einigung mit dem Nachbarn sehe ich keine Probleme, kann das aber nochmal besprechen.
Macht es ggf. Sinn, das Bauamt zu komtaktieren, ob sie weiter Informationen zu dem Haus haben?
Ja, ich war oberflächtlich mit einem Architekten und einer Baugutachterin durch das Haus gegangen. Hier kam kein kritisches Feedback.
Bauuntrelagen des alten Hauses sind keine mehr Vorhanden.
Statische Berechnungen des Anbau sind vorhanden und wohl alle ok und genehmigt.
Bzgl. einer Einigung mit dem Nachbarn sehe ich keine Probleme, kann das aber nochmal besprechen.
Macht es ggf. Sinn, das Bauamt zu komtaktieren, ob sie weiter Informationen zu dem Haus haben?
S
SebastianHe30.12.25 14:36Welche konkretern Sanierungspflichten kämen denn mindestens mich zu?
Mein Stand:
Mein Stand:
- Dämmung der Kellerdecke und Warmwasser-Rohre isolieren
- Dämmung der obersten Geschossdecke
- Neue Heizung (Alte Gasheizung nach WP)
- Diverse oder gar alle Fenster
- Fassade: Erstmal nur der Anbau aus den 60ern.
- Dach. (vgl. andere Forumseintrag von mir). https://www.hausbau-forum.de/threads/altes-dach-sanieren-oder-innendaemmung-erneuern-entscheidungshilfe-bei-bj-1920.49967/
Ähnliche Themen