D
daniels8703.02.16 07:49Hallo!
Ich bin gerade auf der Suche nach einem Carport.
Holz möchte ich eigentlich nicht, da unsere Terrassenüberdachung auch Aluminium in anthrazit ist.
Diverse Angebote Für Doppelcarports mit Geräteraum waren mir mit über 25t€ doch fürs das erste zu viel. Auch wenn die Qualität sicher stimmig wäre.
Im Internet gibt es diverse Anbieter mit relativ einfachen Aluminium-Carports mit Polycarbonat Stegplatten auf dem Dach. Z.B. unter "Verona 5000" zu finden. Nur hab ich bedenken dass die doch etwas zu wackelig sind.
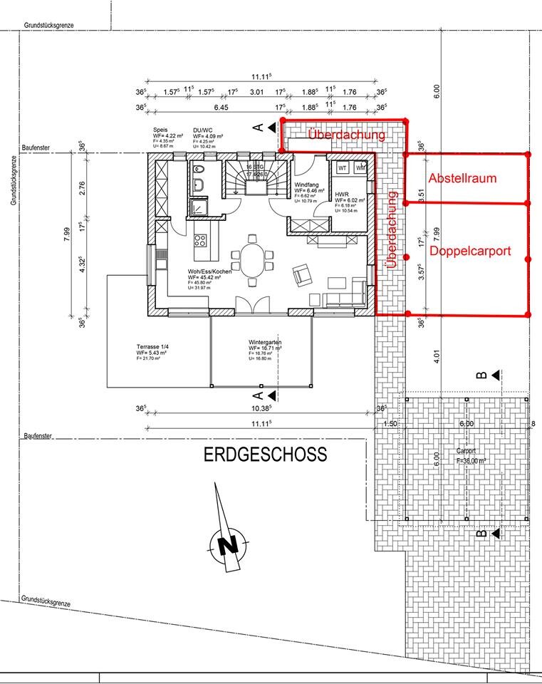
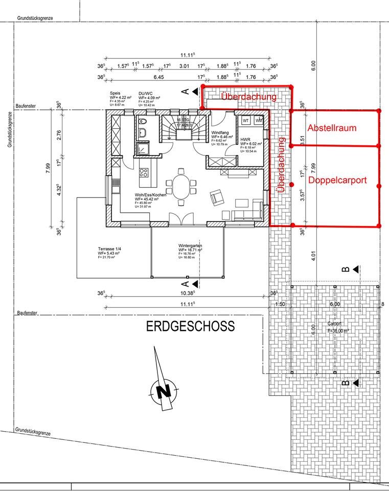
Ich hab mal zwei Bilder angehängt. Einmal mit Überdachung zum Haus (die teure Variante).
und einmal mit zwei Einzelcarports und einer günstigen Wellblechhütte als Fahrrad/Geräteraum.
Variante 1 wäre schon schön, aber dann ist fast unser ganze Puffer für den Hausbau weg. Ich denke soviel wird eh nicht mehr übrig sein, bis das Haus steht. Es muss ja auch erst die ganze Einfahrt gemacht werden, und die Terrasse hat auch Priorität vor den Carports.
Oder doch einen Holz-Doppelcarport? Bin mir nicht sicher ob das zu dem Haus passt.
Viel Glück
Daniel



Ich bin gerade auf der Suche nach einem Carport.
Holz möchte ich eigentlich nicht, da unsere Terrassenüberdachung auch Aluminium in anthrazit ist.
Diverse Angebote Für Doppelcarports mit Geräteraum waren mir mit über 25t€ doch fürs das erste zu viel. Auch wenn die Qualität sicher stimmig wäre.
Im Internet gibt es diverse Anbieter mit relativ einfachen Aluminium-Carports mit Polycarbonat Stegplatten auf dem Dach. Z.B. unter "Verona 5000" zu finden. Nur hab ich bedenken dass die doch etwas zu wackelig sind.
Ich hab mal zwei Bilder angehängt. Einmal mit Überdachung zum Haus (die teure Variante).
und einmal mit zwei Einzelcarports und einer günstigen Wellblechhütte als Fahrrad/Geräteraum.
Variante 1 wäre schon schön, aber dann ist fast unser ganze Puffer für den Hausbau weg. Ich denke soviel wird eh nicht mehr übrig sein, bis das Haus steht. Es muss ja auch erst die ganze Einfahrt gemacht werden, und die Terrasse hat auch Priorität vor den Carports.
Oder doch einen Holz-Doppelcarport? Bin mir nicht sicher ob das zu dem Haus passt.
Viel Glück
Daniel
Hi Daniel,
hast du dir mal die Carports von Siebau angesehen? Die sind zwar aus Stahl und nicht Aluminium, liefern aber in allen RAL Farben.
Wir wollten ursprünglich auch ein Carport mit integrierten Schuppen. Aus baurechtlichen und Platzgründen trennen wir aber nun Carport und Schuppen. Es gibt von Biohort sehr schicke Gerätehäuser aus einbrennlackiertem Stahlblech. In 3*3m bekommst du die für etwa 2500 €, das ist billiger als jede Carporterweiterung.
Viele Grüße,
Andreas
hast du dir mal die Carports von Siebau angesehen? Die sind zwar aus Stahl und nicht Aluminium, liefern aber in allen RAL Farben.
Wir wollten ursprünglich auch ein Carport mit integrierten Schuppen. Aus baurechtlichen und Platzgründen trennen wir aber nun Carport und Schuppen. Es gibt von Biohort sehr schicke Gerätehäuser aus einbrennlackiertem Stahlblech. In 3*3m bekommst du die für etwa 2500 €, das ist billiger als jede Carporterweiterung.
Viele Grüße,
Andreas
D
daniels8705.02.16 08:25Ich hab mal eine Anfrage gestellt.
Langsam bin ich doch etwas am grübeln, ob Holz auch eine Option wäre.
Habe jetzt schon ein paar Carports gesehen, die in einem hellen grau oder anthrazit gestrichen waren. Das hat mir eigentlich auch ganz gut gefallen.
Aber wenn Holz, welche Ausführung? Fichte Kesseldruckimprägniert oder Konstruktionsvollholz? Lässt sich imprägniertes Holz überhaupt lasieren?
Wie oft muss das Holz dann nach gestrichen werden?
Ist eine Lasur besser, oder eher ein deckender Anstrich? (blättert mit der Zeit ab?)
Langsam bin ich doch etwas am grübeln, ob Holz auch eine Option wäre.
Habe jetzt schon ein paar Carports gesehen, die in einem hellen grau oder anthrazit gestrichen waren. Das hat mir eigentlich auch ganz gut gefallen.
Aber wenn Holz, welche Ausführung? Fichte Kesseldruckimprägniert oder Konstruktionsvollholz? Lässt sich imprägniertes Holz überhaupt lasieren?
Wie oft muss das Holz dann nach gestrichen werden?
Ist eine Lasur besser, oder eher ein deckender Anstrich? (blättert mit der Zeit ab?)
Bei Holz muss ich passen. Ich habe mich direkt nur nach Stahl/Aluminium Carports umgesehen weil mich die größeren Konstruktionsdicken beim Holzcarport stören. Die Holzbalken sind doch einiges dicker als ein Stahlträger. Holzcarports passen imho herrlich zu einem alten Bauernhaus oder wenigstens zu einem Klinkerhaus. Zu den verputzten Häusern, die man hier in Bayern ja meist baut, passt das einfach nicht.
Und Darüber hinaus wäre das Streichen auch ein No Go für mich! Dazu habe ich einfach keine Lust...
Viele Grüße,
Andreas
Und Darüber hinaus wäre das Streichen auch ein No Go für mich! Dazu habe ich einfach keine Lust...
Viele Grüße,
Andreas
E
EveundGerd06.02.16 00:22Wir haben ein Carport 6x9m aus Holz.
Daneben eine Blockbohlengarage als Geräteschuppen.
Warum soll ein Holzcarport nicht zu einem modernen Haus passen?
Sauber aufgebaut und lasiert, dunkelt es im Laufe der Zeit.
Wer es lieber 100% modern mag, der streicht eben in RAL-Farben.
Unseres ist vom Fachhandel und kostete knapp 3.000 € ohne Aufbau.
Ich rate allerdings dazu, die Anschaffung bis zur Fertigstellung des Hauses oder bis zum finalen Kassensturz zu verschieben.
Daneben eine Blockbohlengarage als Geräteschuppen.
Warum soll ein Holzcarport nicht zu einem modernen Haus passen?
Sauber aufgebaut und lasiert, dunkelt es im Laufe der Zeit.
Wer es lieber 100% modern mag, der streicht eben in RAL-Farben.
Unseres ist vom Fachhandel und kostete knapp 3.000 € ohne Aufbau.
Ich rate allerdings dazu, die Anschaffung bis zur Fertigstellung des Hauses oder bis zum finalen Kassensturz zu verschieben.
Ähnliche Themen