Hausbau - Ratgeber
Bauherrenhilfe
- Bauherrenhilfe vor Vertragsabschluss
-- Warum einen unabhängigen Baubetreuer?
-- Vertragsgrundlagen
-- Bausumme
-- Zahlungsplan zur Kostenkontrolle
-- Pflichten des Bauherren vor Vertragsabschluss
-- Unterlagen beim Hausbau vor Vertragsabschluss
- Bauherrenhilfe nach Vertragsabschluss
-- Bauantrag bei Behörden
-- Bau-Genehmigungsverfahren bei Baubehörden
-- Bauspezifische Versicherungen
-- Bauzeitenplan
-- Baubeginn - die Letzten Pflichten der Bauherrschaft
- Bauherrenhilfe während der Bauzeit
- Gewährleistungsansprüche
- Bauabnahme
Baufinanzierung
- Baufinanzierung - Allgemeine Fragen
- Kreditarten
- Kredit-Konditionen
- Bausparen
- Staatliche Förderungen
- Verkehrswert
- Haushaltsrechnung und Bonität
Hausbau Planung
- Haustypen
- Hausbau Vorbereitungsarbeiten
- Das Baugrundstück
- Baugrund beim Hausbau
- Baurecht
- Gebäudeschutz
- Erdarbeiten und Wasserhaltung
- Stützmauern
- Einfriedung
- Untergeschoss
- Kanalisation
- Tragende Elemente
- Nichttragende Innenwände
- Fundation / Fundament
- Deckenkonstruktionen
- Dächer
- Kaminanlagen
- Treppen Rampen Leitern
- Dachbeläge und Spengler
- Fenster
- Sonnen und Wetterschutz
- Aussenputze
- Einbauten, Küchen, Türen
- Bodenbeläge und Unterlagsböden
- Parkett
- Gips, Wand, Decke
Haustechnik und Energie
- Heiztechnik
- Lüftung und Klimatechnik
- Sanitärtechnik
- Elektrotechnik
- Erneuerbare Energie
Whirlpools / Jacuzzi
Hausbau Magazin
- Baufinanzierung trotz Krise?
- Das Blockhaus
- Moderne Dämmstoffe im Vergleich
- Erker Vor- und Nachteile
- Glasflächen beim Hausbau
- Günstig ein Haus Bauen
- Mediterraner Hausbaustil
- Mehrgenerationenhaus
- Moderne Architektur
- Gartengestaltung leicht gemacht
- Traditioneller Ziegelbau
- Villa als höchster Traum
- Im Eigenheim Ruhestand geniessen
- Altbau sanieren
- Kauf einer Holzgarage
- Immobilienmakler
- Arbeitshandschuhe für den Winter
- Zuhause verschönern
- Outdoor-Plissees
- Schlafzimmer planen
- Terrassenüberdachung
- Wohngebäudeversicherung
- Zaunarten und Eigenschaften
- Hauseingang gestalten
- Der perfekte Grundriss
- Sparsamer heizen im Altbau
- Einfamilienhaus smart finanzieren
- Planung einer PV-Anlage
- Neues Haus
- Immobilienfinanzierung
- Installation einer Photovoltaikanlage
- Asbest erkennen und entfernen
- Gartenpflege im Frühling – worauf achten
- Sauna im Fokus - Wellness zuhause
- Erfolgreich vermieten
- Die perfekte Winterbekleidung
- Das Niedrigenergiehaus
- Der April und seine Stürme
- Architektonische Vielfalt
- Ökologisch und nachhaltig bauen
- Das perfekte Schlafzimmer
- Nachhaltige Energieversorgung
- Zukunftsorientiert bauen
- Nachhaltigkeit beim Hausbau
- Tiny Houses
- Wärmepumpen als nachhaltige Heizvariante
- Maßgeschneiderten Kleiderschrank
- Der richtige Baukredit
- Ratgeber für erfolgreichen Hausbau
- Haus als Altersvorsorge
Do-it-yourself Anleitungen
- Verlegeanleitung für Bodenbeläge und Parkett
- Bodenbeläge und Parkett reinigen und pflegen
- Malerarbeiten am Haus
- Garten Tipps
- Umzug und Reinigung

ᐅ Brüstungshöhen im gleichen Raum unterschiedlich?

Erstellt am: 03.11.17 11:32
K
KingSong
KingSong03.11.17 11:32
Ich hab mal kurz eine kleine Frage wie Ihr das so seht. Wir sind kurz davor unseren Plan komplett frei zu geben, also das Bemusterungsprotokoll zu unterschreiben.

Jetzt haben wir bislang folgende Situation, in den Räumen im OG haben wir im Schlafzimmer zum Beispiel ein bodentiefes Fenster mit festem Kämpfer und an der anschließenden Wand ein großes 2,50m breites und 85cm hohes Fenster. Der Architekt meint nun das es komisch aussieht wenn man die Brüstungshöhe des langen Fensters niedriger macht weil dann die Oberkanten des bodentiefen Fensters und des langen Fensters nicht auf einer Linie sind. Wenn ich aber die Oberkante des langen Fensters auf die gleiche Höhe wie das des bodentiefen mache dann ergibt sich folgende Brüstungshöhe:

223cm Oberkante - 85cm Fensterhöhe = 138cm Brüstungshöhe

Macht man das so oder kann man das lange Fenster tiefer setzen ohne das es komisch aussieht?

Ich hoffe Ihr habt verstanden was ich meine....

Vielen Dank schon mal, greetz Ecko
W
Wickie
03.11.17 12:10
Die Fenster sind also auf zwei unterschiedlichen Wänden?

Bilder sagen mehr... versuch doch einfach mal mit ein bisschen PowerPointEngineering das bildlich gegenüber zu stellen. Hilft bei der Entscheidung meistens schon (mir zumindest )
Y
ypg
03.11.17 12:17
Ich verstehe es - ehrlich gesagt - nicht so ganz.
Letztendlich zählt der Gesamteindruck, und man kann es nicht pauschal sagen.

Unser Küchenfenster in 2 Meter Breite ist auch sehr tief, also ein Fensterband auf fast Arbeitshöhe. Da allerdings die Küchenzeile bzw die Möbel zum Eindruck dazugehören, sieht es dann nicht komisch aus. Der Maurer hat uns auf dem Bau auch mehrmals angeboten, das Fenster auf "normale" Höhe zu mauern.
Von außen wirkt das Fensterband als eigenständiges Fensterband. Es gibt an der Hausseite allerdings nur noch Terrassentüren, entsprechend passt es.
Wenn dort jetzt ein Nebenraum mit normalem Fenster wäre, würde es ggf. merkwürdig aussehen.
KingSong03.11.17 12:26
Ja schwierig zu erklären für mich. Also es geht um die Oberkante der Fenster im gleichen Raum. An der Westseite ist es bodentief womit sich eine Oberkante Fenster von 223cm ergibt. Auf der Nordseite des gleichen Raumes soll eben ein 250cm x 85cm Fenster hin. Architekt meint es soll die gleiche Oberkante wie das West Fenster sein weil es im Raum sonst komisch aussieht. Diese beiden Fenster liegen nur jeweils 50cm von der Außenecke entfernt, sind also relativ nah beisammen.
A
Alex85
03.11.17 12:28
Hast du Gebäudeansichten?
Aber ja, ich denke der Architekt hat absolut recht - das sieht nicht aus.
KingSong03.11.17 12:55

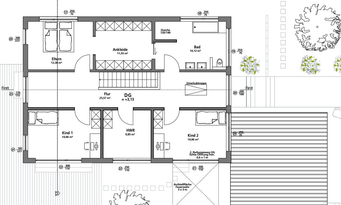
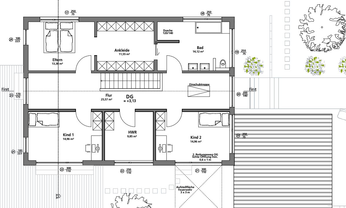
Grundriss Dachgeschoss: Flur, Eltern, Kind 1, Kind 2, HWR, Ankleide, Bad, Dusche, Treppen


Es geht um Fenster Nr. 26 und 17

Das gleiche Problem stellt sich auch bei Fenster Nr. 24 und 23 dar.
fensterbandoberkantearchitektbrüstungshöhe