ᐅ Bitte Tipps zum Grundriss
Erstellt am: 24.03.14 22:01
Hallo Profis,
wir sind gerade mitten auf der Zielgeraden... Und hoffen bald mit unserem Träumchen loslegen zu können.
Jetzt würde ich ganz gerne noch ein paar Tipps zur Raumgestaltung bzw. Änderungen entgegen nehmen. vor allem bin ich mir sehr unsicher ob der Wohnbereich mit den vorgegebenen Maßen schön bzw. einladend und stimmig wirken wird. Habe das Thema schon 1000x mit Familie/Freunden durchgekaut, aber die können es nicht mehr hören 😉. Bin eine unentschlossene Frau u hoffe hier jetzt noch den ein oder anderen Ratschlag entgegen zu nehmen.
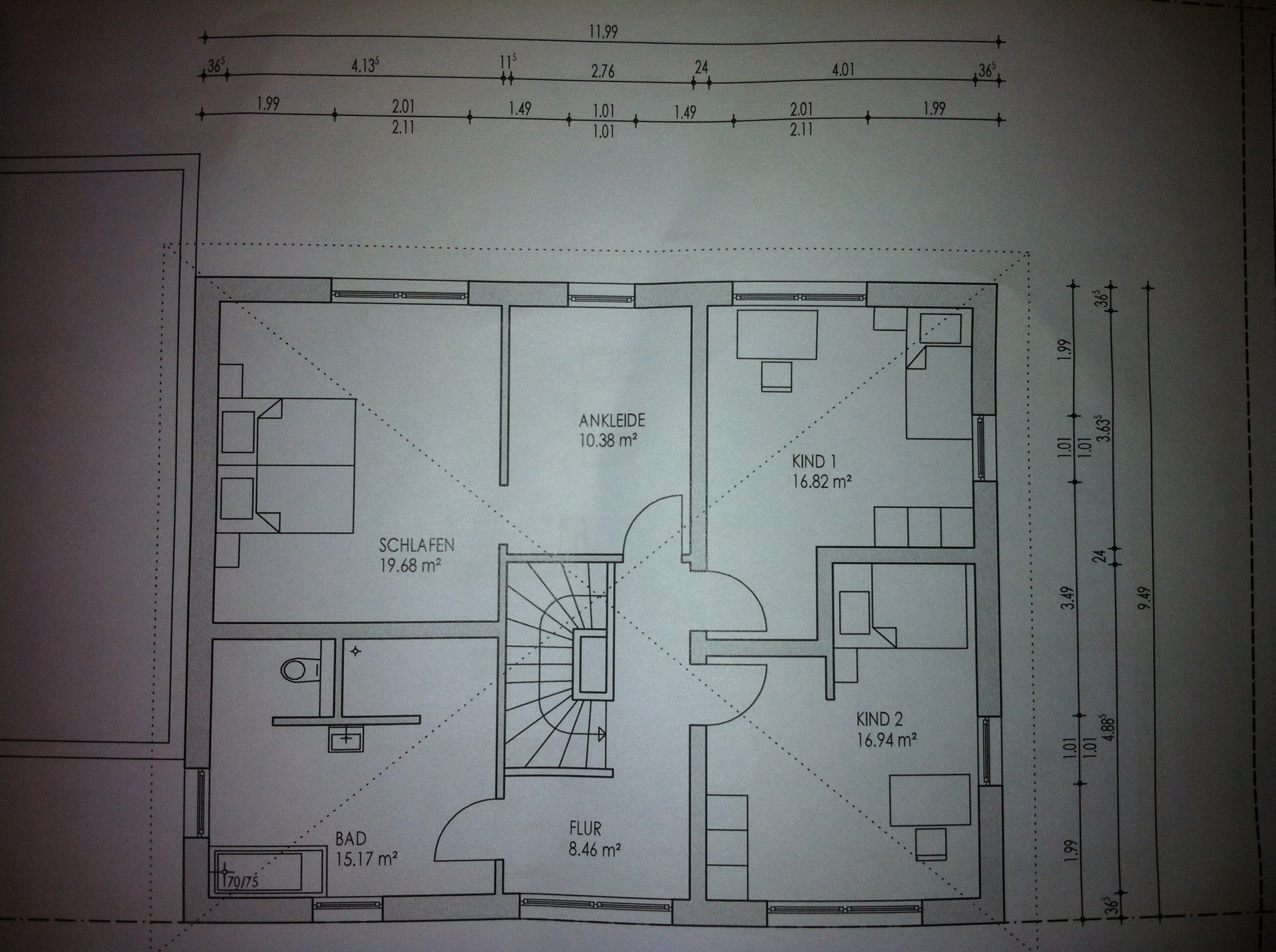
Zudem fehlt noch ein kleiner Abstellraum im OG, dieser soll noch im Schlafzimmer Bereich untergebracht werden, denn dort ist so viel verschwendeter Raum.


wir sind gerade mitten auf der Zielgeraden... Und hoffen bald mit unserem Träumchen loslegen zu können.
Jetzt würde ich ganz gerne noch ein paar Tipps zur Raumgestaltung bzw. Änderungen entgegen nehmen. vor allem bin ich mir sehr unsicher ob der Wohnbereich mit den vorgegebenen Maßen schön bzw. einladend und stimmig wirken wird. Habe das Thema schon 1000x mit Familie/Freunden durchgekaut, aber die können es nicht mehr hören 😉. Bin eine unentschlossene Frau u hoffe hier jetzt noch den ein oder anderen Ratschlag entgegen zu nehmen.
Zudem fehlt noch ein kleiner Abstellraum im OG, dieser soll noch im Schlafzimmer Bereich untergebracht werden, denn dort ist so viel verschwendeter Raum.
M
mellid110824.03.14 22:17Mir fällt zu allererst auf, dass ich für euch hoffe ,dass ihr nachts nicht auf das klo müsst.
Der weg ist ja ewig weit
Der weg ist ja ewig weit
Ich denke, der Wohnraum wird nicht das Problem sein.
Eher der lange Weg mit den Einkäufen zum Hauswirtschaftsraum, die Wäsche vom OG zum Hauswirtschaftsraum und (wie von mellid schon angesprochen) der Weg vom Bett ins Bad.
Persönlich gefällt mir die Treppenvariante, dass der Antritt nicht am Eingang ist.
Garderobe vlt doch in einer Nische zum Arbeitszimmer und Hauswirtschaftsraum-Zutritt in der geplanten Garderobe?!
Hauswirtschaftsraum hat kein Fenster! Zum Wäsche waschen oder irgendwas mal arbeitstechnisch dort zu machen, würde mir Tageslicht fehlen.
Vlt mal Lageplan und Ansichten mit posten, vlt hat hier jmd eine Idee, diese Problematik zu umgehen???? 🙂
Eher der lange Weg mit den Einkäufen zum Hauswirtschaftsraum, die Wäsche vom OG zum Hauswirtschaftsraum und (wie von mellid schon angesprochen) der Weg vom Bett ins Bad.
Persönlich gefällt mir die Treppenvariante, dass der Antritt nicht am Eingang ist.
Garderobe vlt doch in einer Nische zum Arbeitszimmer und Hauswirtschaftsraum-Zutritt in der geplanten Garderobe?!
Hauswirtschaftsraum hat kein Fenster! Zum Wäsche waschen oder irgendwas mal arbeitstechnisch dort zu machen, würde mir Tageslicht fehlen.
Vlt mal Lageplan und Ansichten mit posten, vlt hat hier jmd eine Idee, diese Problematik zu umgehen???? 🙂
Hey, die angesprochene Problematik der Pipibox haben wir bis jetzt ignoriert bzw schön geredet (Training der beckenmuskulatur etc ). Eine zweite Tür wäre zwar möglich aber sonst eher unpraktisch, Kinder bzw wir müssten immer 2 Türen zusperren. Mmh mal gucken...
Kann man eigentlich Platz für eine Sauna lassen u wenn ja wie viel?
Der Hauswirtschaftsraum ist unmittelbar an der Garage! Vielleicht wäre eine lösung eine Tür von der Garage zum Hauswirtschaftsraum, denn das Fenster ist sehr schwierig. Man könnte auch mal wäsche in der garage trocknen. Der weg von oben in den Hauswirtschaftsraum ist wirklich 😕 die Tür in der Garderobe ist genau das Richtige.
Und das Wohnzimmer ist nicht zu schmal?
Kann man eigentlich Platz für eine Sauna lassen u wenn ja wie viel?
Der Hauswirtschaftsraum ist unmittelbar an der Garage! Vielleicht wäre eine lösung eine Tür von der Garage zum Hauswirtschaftsraum, denn das Fenster ist sehr schwierig. Man könnte auch mal wäsche in der garage trocknen. Der weg von oben in den Hauswirtschaftsraum ist wirklich 😕 die Tür in der Garderobe ist genau das Richtige.
Und das Wohnzimmer ist nicht zu schmal?
Judy12 schrieb:
Und das Wohnzimmer ist nicht zu schmal?Wozu dient das Wohnzimmer? Rückzug, kuscheln, TV. Ich würde selbst Couch nicht unter Fenster stellen, eher in die Nische. 4 x 5 sollte ansonsten reichen 🙂
Wegen derAnordnung des Gebäudes/Garage (Fenster Hauswirtschaftsraum) ja auch Lageplan und Ansichten.
Ähnliche Themen