Hausbau - Ratgeber
Bauherrenhilfe
- Bauherrenhilfe vor Vertragsabschluss
-- Warum einen unabhängigen Baubetreuer?
-- Vertragsgrundlagen
-- Bausumme
-- Zahlungsplan zur Kostenkontrolle
-- Pflichten des Bauherren vor Vertragsabschluss
-- Unterlagen beim Hausbau vor Vertragsabschluss
- Bauherrenhilfe nach Vertragsabschluss
-- Bauantrag bei Behörden
-- Bau-Genehmigungsverfahren bei Baubehörden
-- Bauspezifische Versicherungen
-- Bauzeitenplan
-- Baubeginn - die Letzten Pflichten der Bauherrschaft
- Bauherrenhilfe während der Bauzeit
- Gewährleistungsansprüche
- Bauabnahme
Baufinanzierung
- Baufinanzierung - Allgemeine Fragen
- Kreditarten
- Kredit-Konditionen
- Bausparen
- Staatliche Förderungen
- Verkehrswert
- Haushaltsrechnung und Bonität
Hausbau Planung
- Haustypen
- Hausbau Vorbereitungsarbeiten
- Das Baugrundstück
- Baugrund beim Hausbau
- Baurecht
- Gebäudeschutz
- Erdarbeiten und Wasserhaltung
- Stützmauern
- Einfriedung
- Untergeschoss
- Kanalisation
- Tragende Elemente
- Nichttragende Innenwände
- Fundation / Fundament
- Deckenkonstruktionen
- Dächer
- Kaminanlagen
- Treppen Rampen Leitern
- Dachbeläge und Spengler
- Fenster
- Sonnen und Wetterschutz
- Aussenputze
- Einbauten, Küchen, Türen
- Bodenbeläge und Unterlagsböden
- Parkett
- Gips, Wand, Decke
Haustechnik und Energie
- Heiztechnik
- Lüftung und Klimatechnik
- Sanitärtechnik
- Elektrotechnik
- Erneuerbare Energie
Whirlpools / Jacuzzi
Hausbau Magazin
- Baufinanzierung trotz Krise?
- Das Blockhaus
- Moderne Dämmstoffe im Vergleich
- Erker Vor- und Nachteile
- Glasflächen beim Hausbau
- Günstig ein Haus Bauen
- Mediterraner Hausbaustil
- Mehrgenerationenhaus
- Moderne Architektur
- Gartengestaltung leicht gemacht
- Traditioneller Ziegelbau
- Villa als höchster Traum
- Im Eigenheim Ruhestand geniessen
- Altbau sanieren
- Kauf einer Holzgarage
- Immobilienmakler
- Arbeitshandschuhe für den Winter
- Zuhause verschönern
- Outdoor-Plissees
- Schlafzimmer planen
- Terrassenüberdachung
- Wohngebäudeversicherung
- Zaunarten und Eigenschaften
- Hauseingang gestalten
- Der perfekte Grundriss
- Sparsamer heizen im Altbau
- Einfamilienhaus smart finanzieren
- Planung einer PV-Anlage
- Neues Haus
- Immobilienfinanzierung
- Installation einer Photovoltaikanlage
- Asbest erkennen und entfernen
- Gartenpflege im Frühling – worauf achten
- Sauna im Fokus - Wellness zuhause
- Erfolgreich vermieten
- Die perfekte Winterbekleidung
- Das Niedrigenergiehaus
- Der April und seine Stürme
- Architektonische Vielfalt
- Ökologisch und nachhaltig bauen
- Das perfekte Schlafzimmer
- Nachhaltige Energieversorgung
- Zukunftsorientiert bauen
- Nachhaltigkeit beim Hausbau
- Tiny Houses
- Wärmepumpen als nachhaltige Heizvariante
- Maßgeschneiderten Kleiderschrank
- Der richtige Baukredit
- Ratgeber für erfolgreichen Hausbau
- Haus als Altersvorsorge
Do-it-yourself Anleitungen
- Verlegeanleitung für Bodenbeläge und Parkett
- Bodenbeläge und Parkett reinigen und pflegen
- Malerarbeiten am Haus
- Garten Tipps
- Umzug und Reinigung

ᐅ Baugrundstück mit 2172m2 und Waldgrenze

Erstellt am: 13.07.20 13:36
R
Rendsburger
R
Rendsburger
13.07.20 13:36
Hallo,
wir haben jetzt nach langem Suchen endlich ein Baugrundstück gefunden und wollten mal fragen was ihr davon haltet!? Bebaut werden soll es mit einem Bungalow oder einer Stadtvilla, die Tendenz geht allerdings zur Stadtvilla mit DoppelGarage.
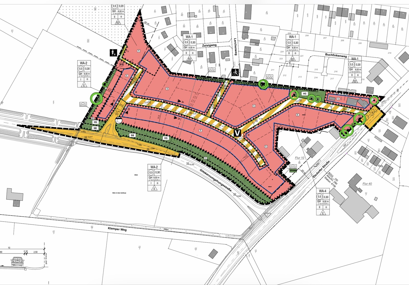
Es handelt sich um die Nr. 5 (oben links)
Katasterplan einer Siedlung mit Parzellen, Grenzlinien und Straßennetz.
O
Octrineddy
13.07.20 13:39
Wichtig zur Beurteilung ist der Bebauungsplan, der kann den Wunsch nach einer Stadtvilla ganz schnell sterben lassen. Ansonsten ist das sicherlich kein schlechtes Grundstück. Wird bei der Größe sicherlich nicht umsonst, aber das sollte einem ja klar sein.
R
Rendsburger
13.07.20 13:56
Octrineddy schrieb:

Wichtig zur Beurteilung ist der Bebauungsplan, der kann den Wunsch nach einer Stadtvilla ganz schnell sterben lassen. Ansonsten ist das sicherlich kein schlechtes Grundstück. Wird bei der Größe sicherlich nicht umsonst, aber das sollte einem ja klar sein.
Sorry Den Bebauungsplan hatte ich vergessen.
Ja ganz günstig wird es nicht, aber der Quadratmeterpreis ist ok.
Die Stadtvilla könnte in der Tat knapp werden.

Mehrteiliger Bebauungsplan mit Planzeichen-Erklärungen, Textteil und Kartenübersicht.

Lageplan eines Baugebiets mit roten Gebäudeflächen, gelben Straßen und grünem Baumbestand.
O
Octrineddy
13.07.20 14:05
Njoa, mit nem Flachdach dürfte es wohl hinhauen, ansonsten wird die Höhe irgendwann ein Problem.
R
Rendsburger
13.07.20 14:10
Ja mal gucken, ein Flachdach wollten wir eigentlich nicht. Haben gleich einen Termin beim Bauträger, mal schauen was der sagt.
Ansonsten wird es ein Bungalow, Platz ist ja genug vorhanden.
T
T_im_Norden
13.07.20 15:22
Schau dir mal die Hinweise betreffend Artenschutz an.
Deshalb sind auch die Krötentunnel an der Umgehung.

Du weißt das das Gebiet relativ feucht sein kann ?
stadtvillabungalowflachdach