Hausbau - Ratgeber
Bauherrenhilfe
- Bauherrenhilfe vor Vertragsabschluss
-- Warum einen unabhängigen Baubetreuer?
-- Vertragsgrundlagen
-- Bausumme
-- Zahlungsplan zur Kostenkontrolle
-- Pflichten des Bauherren vor Vertragsabschluss
-- Unterlagen beim Hausbau vor Vertragsabschluss
- Bauherrenhilfe nach Vertragsabschluss
-- Bauantrag bei Behörden
-- Bau-Genehmigungsverfahren bei Baubehörden
-- Bauspezifische Versicherungen
-- Bauzeitenplan
-- Baubeginn - die Letzten Pflichten der Bauherrschaft
- Bauherrenhilfe während der Bauzeit
- Gewährleistungsansprüche
- Bauabnahme
Baufinanzierung
- Baufinanzierung - Allgemeine Fragen
- Kreditarten
- Kredit-Konditionen
- Bausparen
- Staatliche Förderungen
- Verkehrswert
- Haushaltsrechnung und Bonität
Hausbau Planung
- Haustypen
- Hausbau Vorbereitungsarbeiten
- Das Baugrundstück
- Baugrund beim Hausbau
- Baurecht
- Gebäudeschutz
- Erdarbeiten und Wasserhaltung
- Stützmauern
- Einfriedung
- Untergeschoss
- Kanalisation
- Tragende Elemente
- Nichttragende Innenwände
- Fundation / Fundament
- Deckenkonstruktionen
- Dächer
- Kaminanlagen
- Treppen Rampen Leitern
- Dachbeläge und Spengler
- Fenster
- Sonnen und Wetterschutz
- Aussenputze
- Einbauten, Küchen, Türen
- Bodenbeläge und Unterlagsböden
- Parkett
- Gips, Wand, Decke
Haustechnik und Energie
- Heiztechnik
- Lüftung und Klimatechnik
- Sanitärtechnik
- Elektrotechnik
- Erneuerbare Energie
Whirlpools / Jacuzzi
Hausbau Magazin
- Baufinanzierung trotz Krise?
- Das Blockhaus
- Moderne Dämmstoffe im Vergleich
- Erker Vor- und Nachteile
- Glasflächen beim Hausbau
- Günstig ein Haus Bauen
- Mediterraner Hausbaustil
- Mehrgenerationenhaus
- Moderne Architektur
- Gartengestaltung leicht gemacht
- Traditioneller Ziegelbau
- Villa als höchster Traum
- Im Eigenheim Ruhestand geniessen
- Altbau sanieren
- Kauf einer Holzgarage
- Immobilienmakler
- Arbeitshandschuhe für den Winter
- Zuhause verschönern
- Outdoor-Plissees
- Schlafzimmer planen
- Terrassenüberdachung
- Wohngebäudeversicherung
- Zaunarten und Eigenschaften
- Hauseingang gestalten
- Der perfekte Grundriss
- Sparsamer heizen im Altbau
- Einfamilienhaus smart finanzieren
- Planung einer PV-Anlage
- Neues Haus
- Immobilienfinanzierung
- Installation einer Photovoltaikanlage
- Asbest erkennen und entfernen
- Gartenpflege im Frühling – worauf achten
- Sauna im Fokus - Wellness zuhause
- Erfolgreich vermieten
- Die perfekte Winterbekleidung
- Das Niedrigenergiehaus
- Der April und seine Stürme
- Architektonische Vielfalt
- Ökologisch und nachhaltig bauen
- Das perfekte Schlafzimmer
- Nachhaltige Energieversorgung
- Zukunftsorientiert bauen
- Nachhaltigkeit beim Hausbau
- Tiny Houses
- Wärmepumpen als nachhaltige Heizvariante
- Maßgeschneiderten Kleiderschrank
- Der richtige Baukredit
- Ratgeber für erfolgreichen Hausbau
- Haus als Altersvorsorge
Do-it-yourself Anleitungen
- Verlegeanleitung für Bodenbeläge und Parkett
- Bodenbeläge und Parkett reinigen und pflegen
- Malerarbeiten am Haus
- Garten Tipps
- Umzug und Reinigung

ᐅ Baufenster und Grenzbebauung Neubaugebiet

Erstellt am: 01.02.25 13:34
M
maxritter
H
hanghaus2023
02.02.25 13:16
Ja wenn die Ausfahrt in der Kurve erlaubt ist. Habe da keine Einschränkung im Bebauungsplan gesehen.
M
maxritter
03.02.25 10:59
hanghaus2023 schrieb:

Ja wenn die Ausfahrt in der Kurve erlaubt ist. Habe da keine Einschränkung im Bebauungsplan gesehen.

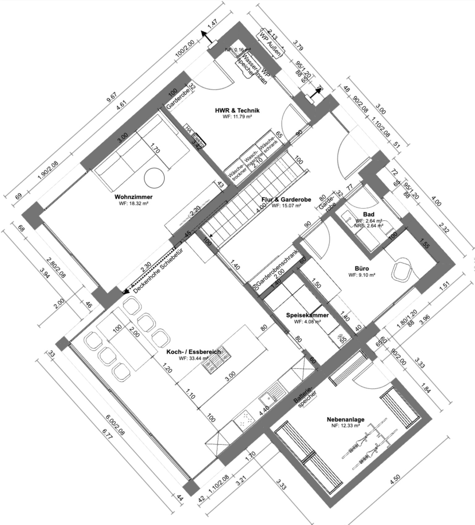
Dann werden wir wohl diese Variante nehmen und den Hauswirtschaftsraum / Technikraum mit dem Büro tauschen, sodass wir seitlich am Carport einen Nebeneingang haben:


Grundriss eines Hauses mit Wohnzimmer, Küche, Flur, Garderobe, Bad, Büro und Speisekammer


Danke für eure Beratung und den Input an dieser Stelle, ihr habt uns vor einem größeren Disaster bewahrt, in das wir ansonsten unwissend hinein gelaufen wären!
D
derdietmar
03.02.25 11:34
Hallo,

ist die Nebenanlage gemauert und gedeckt im Stil des Hauptgebäudes? Das könnte zu Problemen führen, da der Anbau dann als Teil des Hauptgebäudes gewertet werden könnte und damit innerhalb der Baugrenzen liegen müsste. Die Bewertung ist sicher stark abhängig vom Bearbeiter im Bauamt.

Ich würde das Risiko nicht eingehen und den Abstellschuppen vermutlich gar nicht in die Genehmigungsplanung aufnehmen und stattdessen im Nachgang als Gartenhaus in Holzbauweise errichten.

Viele Grüße
M
maxritter
03.02.25 12:08
derdietmar schrieb:

Hallo,

ist die Nebenanlage gemauert und gedeckt im Stil des Hauptgebäudes? Das könnte zu Problemen führen, da der Anbau dann als Teil des Hauptgebäudes gewertet werden könnte und damit innerhalb der Baugrenzen liegen müsste. Die Bewertung ist sicher stark abhängig vom Bearbeiter im Bauamt.

Ich würde das Risiko nicht eingehen und den Abstellschuppen vermutlich gar nicht in die Genehmigungsplanung aufnehmen und stattdessen im Nachgang als Gartenhaus in Holzbauweise errichten.

Viele Grüße

Danke für den Input, dann gehen wir lieber kein Risiko ein und nehmen es aus der Genehmigung raus! Da wird sich schon ein entsprechender Abstellschuppen aus Holz oder Metall finden, den wir nachträglich errichten können.
H
hanghaus2023
03.02.25 17:29
Ich kann Dir nur raten die Grundrisse hier wie bereits von @ypg vorgeschlagen in eiunem gesonderten Beitrag vorzustellen.
abstellschuppen