ᐅ Badplanung: 6,4qm Du/Bad und 14,5qm Bad
Erstellt am: 23.08.2018 13:38
ivenh0 23.08.2018 13:38
Guten Tag zusammen,
wir sind mitten in der Werkplanung und wollen die Bäder noch finalisieren. Da der Rohbau schon in 3 Wochen beginnt, läuft die Zeit.
Habt ihr noch Ideen/ Verbesserungsvorschläge zur Planung der zwei Bäder?
Anbei meine Planung:
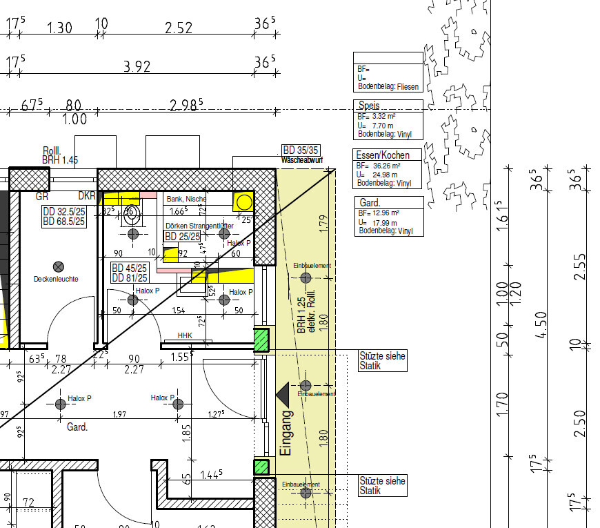
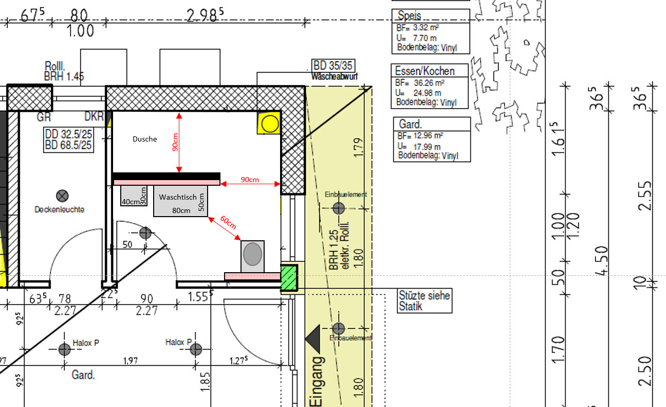
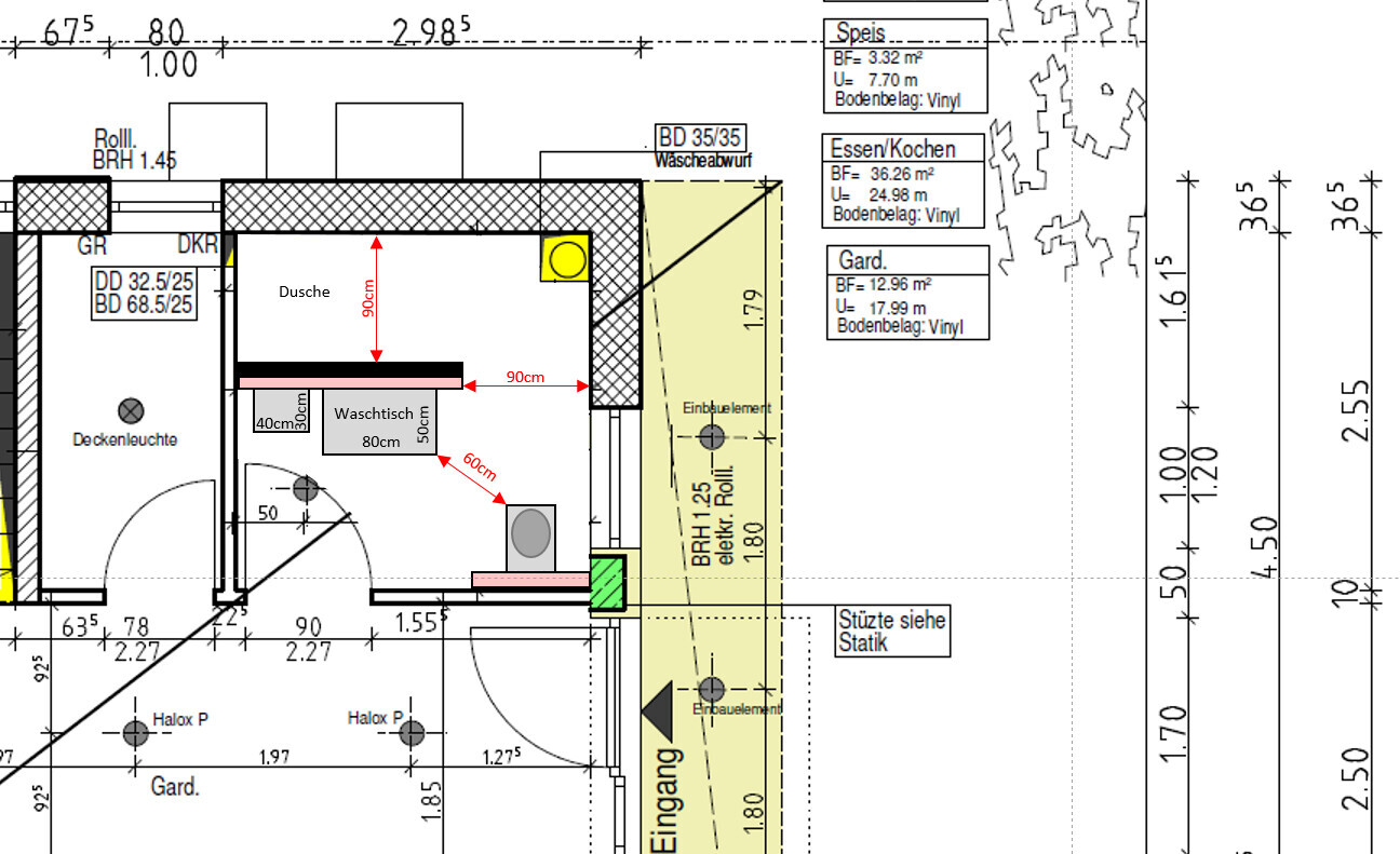
Du/Bad im EG
- Wäscheabwurf im Eck
- WC-Nische
- begehbare Dusche mit Bank und Nische für Duschgel etc
- waschtisch in der Flucht des Fensters

Bad in OG
- TV an Wand Planoben
- Wäscheabwurf in Lowboard/ Sitzbank integriert
- WC in Nische mit Fenster zur Lüftung
- begehbare Dusche
- freistehende Badewanne mit Ablagebrett an T-Wand
- Waschbecken in Fensterflucht
- genügend Stellplatz für zus. schrank
- möglicherweise beheizbarer Handtuchhalter Planunten

Gruß
ivenh0
wir sind mitten in der Werkplanung und wollen die Bäder noch finalisieren. Da der Rohbau schon in 3 Wochen beginnt, läuft die Zeit.
Habt ihr noch Ideen/ Verbesserungsvorschläge zur Planung der zwei Bäder?
Anbei meine Planung:
Du/Bad im EG
- Wäscheabwurf im Eck
- WC-Nische
- begehbare Dusche mit Bank und Nische für Duschgel etc
- waschtisch in der Flucht des Fensters
Bad in OG
- TV an Wand Planoben
- Wäscheabwurf in Lowboard/ Sitzbank integriert
- WC in Nische mit Fenster zur Lüftung
- begehbare Dusche
- freistehende Badewanne mit Ablagebrett an T-Wand
- Waschbecken in Fensterflucht
- genügend Stellplatz für zus. schrank
- möglicherweise beheizbarer Handtuchhalter Planunten
Gruß
ivenh0
niri09 23.08.2018 14:06
ich finde diese Skizzen total verwirrend, überall stehen irgendwelche Zahlen die aber nicht zu den Abmessungen passen. Bad im EG kann man noch einigermaßen nachvollziehen, beim Bad oben bin ich raus. Wie lang ist die Badewanne? Was ist das gelbe quer in der Dusche? was ist das blaue mit dem gelben Kasten?viieeeeel zu viele Zahlen...
vllt kannst du mal diese Halox P löschen und dann verschwinden ein paar Zahlen
vllt kannst du mal diese Halox P löschen und dann verschwinden ein paar Zahlen
Snowy36 23.08.2018 14:08
Bad EG: ich würde Dusche und Toilette tauschen weil ich es nicht mag wenn man die Tür aufmacht und auf die Toilette schaut....ausserdem müsstest du das Fenster aus Milchglas machen sonst sieht dich jeder beim duschen.
Den Plan OG verstehe ich nicht ganz, was ist das gelbe rechts von der Badewanne? Und der Wäscheschacht ist in der Dusche? Ist der dann durchgehend durch das Bad im EG? Weil da ist er ja an der Außenwand oder im OG dann aber nicht?
Den Plan OG verstehe ich nicht ganz, was ist das gelbe rechts von der Badewanne? Und der Wäscheschacht ist in der Dusche? Ist der dann durchgehend durch das Bad im EG? Weil da ist er ja an der Außenwand oder im OG dann aber nicht?
niri09 23.08.2018 14:11
ich glaube in der Dusche ist der gelbe Kasten Ablage für das Duschgel wie im EG
Snowy36 23.08.2018 14:29
Dann verstehe ich nicht wo der Schacht dann sein soll....in dem roten Kasten links???Das gelbe oben rechts??? Bitte mal gscheid beschriften....(-:
Dein Architekt scheint sich schon was gedacht zu haben bei dem was er tat....
Bad EG hatte er nämlich schon so eingezeichnet dass die Dusche nicht vorm Fenster is.
Dein Architekt scheint sich schon was gedacht zu haben bei dem was er tat....
Bad EG hatte er nämlich schon so eingezeichnet dass die Dusche nicht vorm Fenster is.
ivenh0 23.08.2018 14:30
niri09 schrieb:
ich finde diese Skizzen total verwirrend, überall stehen irgendwelche Zahlen die aber nicht zu den Abmessungen passen. Bad im EG kann man noch einigermaßen nachvollziehen, beim Bad oben bin ich raus. Wie lang ist die Badewanne? Was ist das gelbe quer in der Dusche? was ist das blaue mit dem gelben Kasten?viieeeeel zu viele Zahlen...
vllt kannst du mal diese Halox P löschen und dann verschwinden ein paar ZahlenLeider sind es PDFs aus denen sich das nicht löschen lässt. Die Vermaßungen der Pläne sind für den Rohbau, sprich Deckendurchbrüche, Einbauspots, etc.
Das gelbe quer in der Dusche ist die Entwässerung von Badewanne und Dusche.
Die Badewanne ist aktuell 1,75m - das ist wohl zu klein, lässt sich aber locker auf 2m entlang der T-Wand vergrößern.
Der blaue Kasten ist ein Fernseh. Darunter soll in ein Lowboard der Wäscheabwurf (gelb (Deckendurchbruch)) integriert werden
Snowy36 schrieb:
Bad EG: ich würde Dusche und Toilette tauschen weil ich es nicht mag wenn man die Tür aufmacht und auf die Toilette schaut....ausserdem müsstest du das Fenster aus Milchglas machen sonst sieht dich jeder beim duschen.
Den Plan OG verstehe ich nicht ganz, was ist das gelbe rechts von der Badewanne? Und der Wäscheschacht ist in der Dusche? Ist der dann durchgehend durch das Bad im EG? Weil da ist er ja an der Außenwand oder im OG dann aber nicht?Wir haben auch überlegt ob wir WC und Dusche im EG tauschen. Allerdings wollen wir den Wäscheabwurf (welcher im Keller landet) nicht neben dem WC, sondern lieber am Ende der Dusche.
Das mit dem Fenster haben wir auch wenn die Position der Dusche getauscht wird. Hier werden wir sowieso kein Klarglas einsetzen.
Das mit dem Wäscheabwurf ist etwas verwirrend, weil das OG ca. 1m auskragt. Den Verlauf der Wand im EG erkennst du an der gestrichelten Linie.
Ähnliche Themen