Hausbau - Ratgeber
Bauherrenhilfe
- Bauherrenhilfe vor Vertragsabschluss
-- Warum einen unabhängigen Baubetreuer?
-- Vertragsgrundlagen
-- Bausumme
-- Zahlungsplan zur Kostenkontrolle
-- Pflichten des Bauherren vor Vertragsabschluss
-- Unterlagen beim Hausbau vor Vertragsabschluss
- Bauherrenhilfe nach Vertragsabschluss
-- Bauantrag bei Behörden
-- Bau-Genehmigungsverfahren bei Baubehörden
-- Bauspezifische Versicherungen
-- Bauzeitenplan
-- Baubeginn - die Letzten Pflichten der Bauherrschaft
- Bauherrenhilfe während der Bauzeit
- Gewährleistungsansprüche
- Bauabnahme
Baufinanzierung
- Baufinanzierung - Allgemeine Fragen
- Kreditarten
- Kredit-Konditionen
- Bausparen
- Staatliche Förderungen
- Verkehrswert
- Haushaltsrechnung und Bonität
Hausbau Planung
- Haustypen
- Hausbau Vorbereitungsarbeiten
- Das Baugrundstück
- Baugrund beim Hausbau
- Baurecht
- Gebäudeschutz
- Erdarbeiten und Wasserhaltung
- Stützmauern
- Einfriedung
- Untergeschoss
- Kanalisation
- Tragende Elemente
- Nichttragende Innenwände
- Fundation / Fundament
- Deckenkonstruktionen
- Dächer
- Kaminanlagen
- Treppen Rampen Leitern
- Dachbeläge und Spengler
- Fenster
- Sonnen und Wetterschutz
- Aussenputze
- Einbauten, Küchen, Türen
- Bodenbeläge und Unterlagsböden
- Parkett
- Gips, Wand, Decke
Haustechnik und Energie
- Heiztechnik
- Lüftung und Klimatechnik
- Sanitärtechnik
- Elektrotechnik
- Erneuerbare Energie
Whirlpools / Jacuzzi
Hausbau Magazin
- Baufinanzierung trotz Krise?
- Das Blockhaus
- Moderne Dämmstoffe im Vergleich
- Erker Vor- und Nachteile
- Glasflächen beim Hausbau
- Günstig ein Haus Bauen
- Mediterraner Hausbaustil
- Mehrgenerationenhaus
- Moderne Architektur
- Gartengestaltung leicht gemacht
- Traditioneller Ziegelbau
- Villa als höchster Traum
- Im Eigenheim Ruhestand geniessen
- Altbau sanieren
- Kauf einer Holzgarage
- Immobilienmakler
- Arbeitshandschuhe für den Winter
- Zuhause verschönern
- Outdoor-Plissees
- Schlafzimmer planen
- Terrassenüberdachung
- Wohngebäudeversicherung
- Girokonto für Bauherren finden
- Hauseingang gestalten
- Zaunarten und Eigenschaften
- Der perfekte Grundriss
- Sparsamer heizen im Altbau
- Einfamilienhaus smart finanzieren
- Planung einer PV-Anlage
- Neues Haus
- Immobilienfinanzierung
- Installation einer Photovoltaikanlage
- Asbest erkennen und entfernen
- Gartenpflege im Frühling – worauf achten
- Sauna im Fokus - Wellness zuhause
- Erfolgreich vermieten
- Die perfekte Winterbekleidung
- Das Niedrigenergiehaus
- Der April und seine Stürme
- Architektonische Vielfalt
- Ökologisch und nachhaltig bauen
- Das perfekte Schlafzimmer
- Nachhaltige Energieversorgung
- Zukunftsorientiert bauen
- Nachhaltigkeit beim Hausbau
- Tiny Houses
- Wärmepumpen als nachhaltige Heizvariante
- Maßgeschneiderten Kleiderschrank
- Der richtige Baukredit
- Ratgeber für erfolgreichen Hausbau
- Haus als Altersvorsorge
Do-it-yourself Anleitungen
- Verlegeanleitung für Bodenbeläge und Parkett
- Bodenbeläge und Parkett reinigen und pflegen
- Malerarbeiten am Haus
- Garten Tipps
- Umzug und Reinigung

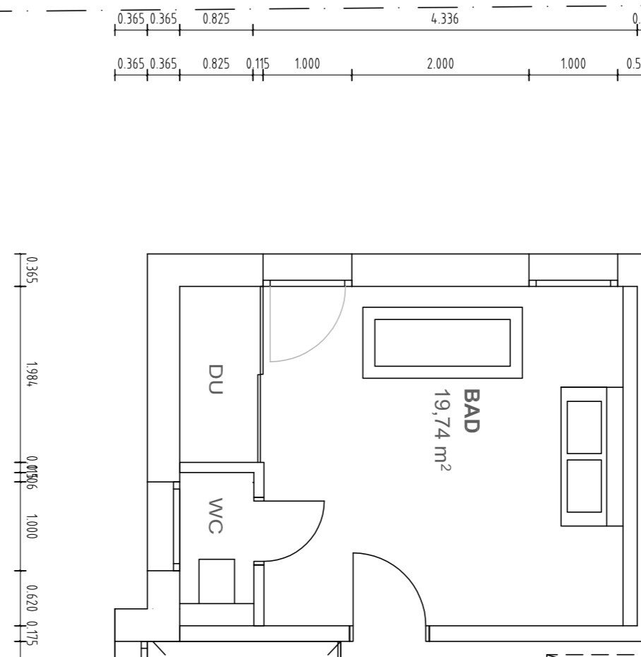
ᐅ Badezimmer Familienbad Stadtvilla - Badplanungs Ideen?

Erstellt am: 29.06.18 23:52
M
mrs_bauherrin
M
mrs_bauherrin
29.06.18 23:52
Hat jemand Ideen für unsere Badplanung - diese soll optimiert werden.

Was bleiben muss:
Dusche und WC (wird noch auf 1m Tiefe vergrößert)
Fenster bodentief - Anzahl und Anordnung kann man aber ändern.

Alles andere ist Änderbar:
Badewanne
Waschtisch mit Aufsatzwaschbecken
etc,

Jemand eine Idee ?

Grundriss eines Badezimmers mit Dusche und WC, Türöffnung und Möbel sichtbar
E
Eldea
30.06.18 20:29
Ein Waschbecken bei der Toilette. Ich persönlich kann das echt nicht nachvollziehen wie man eine Tür beim WC haben möchte, aber kein Waschbecken dort hat. Ich hoffe die Tür bleibt immer offen.
Ich würde das Fenster verschieben und den Duschbereich sowie WC tiefer machen. Dann noch ein Waschbecken hin.
C
Curly
30.06.18 21:03
Ein WC hinter einer Tür ohne Waschbecken? Finde das nicht gerade sehr hygienisch, das würde ich nicht machen.

LG
Sabine
M
munger71
01.07.18 06:45
Würde ich definitiv auch so machen ... Wenn der Platz da ist muss das WC hinter eine Tür ... und irgendwas muss man ja als erstes anfassen ... auch den Wasserhahn.
A
Alex85
01.07.18 08:51
Die Toilette ist aber wirklich maximal weit vom Waschbecken weg. Hygiene hin oder her, das ist einfach unpraktisch.
Wie kommen die Handtücher griffbereit zur Dusche?
Bodentiefe Fenster im Bad nehmen natürlich Stellmöglichkeiten und sind eh permanent verschattet bzw. mit Sichtschutz (Plissee etc.) ausgestattet. Kann man sich eigentlich sparen, hat keinen Mehrwert. Oder geht um die Außenoptik?

Auch Aufsatzwaschbecken will man nur einmal im Leben, danach nicht mehr. Aber die Erfahrung muss man selber machen (oder man lässt putzen).

Generell finde ich das Bad bisher eher ungut. Ein riesiger Raum in dem halbwegs prominent eine Badewanne platziert ist. Die Einrichtungen die man aber häufig braucht (Dusche zumeist häufiger als Badewanne, WC) sind irgendwie untergeordnet platziert.
Die Ecke hinter den beiden Türen ist auch verloren.
C
Curly
01.07.18 09:41
munger71 schrieb:
... und irgendwas muss man ja als erstes anfassen ... auch den Wasserhahn.

Einen Wasserhahn kann man auch ganz bequem mit dem Handgelenk oder dem Ellenbogen andrehen, eine abgeschlossene Tür bekommt man nicht so leicht auf. Für mich wäre das auch beim Putzen der Toilette unpraktisch, wenn man durch das ganze Bad laufen muss um zum Wasserhahn zu gelangen.

LG
Sabine
aufsatzwaschbeckentürduschefensterbadewannetoilettewasserhahn