Wieso sollte die Kontrollierte-Wohnraumlüftung ausgeschaltet sein?
Die läuft bei mir bei heißen temperaturen lediglich im Abwesenheitsmodus mit ~70m³/h Stunde.
Da ist die Absaugung natürlich nicht ganz so stark, allerdings konnte ich da noch nicht feststellen, dass es dadurch überhaupt nicht mehr funktionieren würde.
Würde die Kontrollierte-Wohnraumlüftung komplett ausgeschaltet, würde logischerweise halt auch nichts am Klo abgesaugt werden, also wäre es so, als gäbe es die Geruchsabsaugung nicht. 😉
Man sollte allerdings auch dazu sagen, dass das ja nicht die Einzige absaugung im Klo/Bad ist. Dazu kommt ja noch das reguläre Gitter in der Decke über die der Hauptteil der Abluft abgesaugt wird, wie in jedem anderen Haus auch.
Die läuft bei mir bei heißen temperaturen lediglich im Abwesenheitsmodus mit ~70m³/h Stunde.
Da ist die Absaugung natürlich nicht ganz so stark, allerdings konnte ich da noch nicht feststellen, dass es dadurch überhaupt nicht mehr funktionieren würde.
Würde die Kontrollierte-Wohnraumlüftung komplett ausgeschaltet, würde logischerweise halt auch nichts am Klo abgesaugt werden, also wäre es so, als gäbe es die Geruchsabsaugung nicht. 😉
Man sollte allerdings auch dazu sagen, dass das ja nicht die Einzige absaugung im Klo/Bad ist. Dazu kommt ja noch das reguläre Gitter in der Decke über die der Hauptteil der Abluft abgesaugt wird, wie in jedem anderen Haus auch.
M
mrs_bauherrin04.07.18 11:56Vielen Dank Matte,
das werde ich genauso gleich mal unserem Kontrollierte-Wohnraumlüftung -Bauer weitergeben. Habt ihr zufällig auch eine von Zehnder?
Naja, ich denke wir werden ein kleines waschbecken beim WC mit einbauen lassen. Somit macht es auch nichts, wenn die großen Waschbecken etwas weit entfernt vom WC sind.
das werde ich genauso gleich mal unserem Kontrollierte-Wohnraumlüftung -Bauer weitergeben. Habt ihr zufällig auch eine von Zehnder?
Naja, ich denke wir werden ein kleines waschbecken beim WC mit einbauen lassen. Somit macht es auch nichts, wenn die großen Waschbecken etwas weit entfernt vom WC sind.
matte1987 schrieb:
Wieso sollte die Kontrollierte-Wohnraumlüftung ausgeschaltet sein?
Die läuft bei mir bei heißen temperaturen lediglich im Abwesenheitsmodus mit ~70m³/h Stunde.
Da ist die Absaugung natürlich nicht ganz so stark, allerdings konnte ich da noch nicht feststellen, dass es dadurch überhaupt nicht mehr funktionieren würde.
Würde die Kontrollierte-Wohnraumlüftung komplett ausgeschaltet, würde logischerweise halt auch nichts am Klo abgesaugt werden, also wäre es so, als gäbe es die Geruchsabsaugung nicht. 😉
Man sollte allerdings auch dazu sagen, dass das ja nicht die Einzige absaugung im Klo/Bad ist. Dazu kommt ja noch das reguläre Gitter in der Decke über die der Hauptteil der Abluft abgesaugt wird, wie in jedem anderen Haus auch.TCO 2.5 von Tecalor bzw. LWZ 604 von Stiebel Eltron hat einen Sommerbypass und stellt sich selber auf 0 sobald die Außenluft 1 Stunde mehr als 1 Grad wärmer ist als die Innentemperatur und schaltet sich dann wieder ein, wenn die Außenluftemperatur gleich Innenlufttemperatur hat.
Läuft im Moment tagsüber nicht.
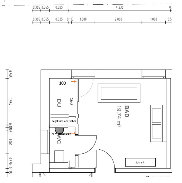
Da die Wände von WC und Dusche noch verschoben werden, fällt das bodentiefe Fenster links oben in dieser Form weg. Entweder es muss schmaler werden oder ganz weichen. Die tote Ecke oben rechts ist auch sehr Ärgerlich.
Wenn Dusche und WC gesetzt sind, könnte man auch das allseits beliebte T vollenden. Dafür Doppeltür als Fenster in die Mitte und Wanne könnte man gegenüber mit Möbeln einrahmen.
Badtür müsste versetzt werden. Da man den Flur nicht sieht, geh ich mal davon aus, dass es möglich ist.
Nur um Alternativen zu zeigen.

Wenn Dusche und WC gesetzt sind, könnte man auch das allseits beliebte T vollenden. Dafür Doppeltür als Fenster in die Mitte und Wanne könnte man gegenüber mit Möbeln einrahmen.
Badtür müsste versetzt werden. Da man den Flur nicht sieht, geh ich mal davon aus, dass es möglich ist.
Nur um Alternativen zu zeigen.
M
mrs_bauherrin04.07.18 12:25Danke Katja,
das wäre eine sehr gute Idee, könnte ich mich mit der "allseits beliebten" T -Aufteilung anfreunden.
Da habe ich mich einfach schon zu sehr satt gesehen, sodass mir das einfach nicht mehr gefällt.
Zudem ist die Dampf-Dusche eine "Fertigteil" - d.h. Türen etc. lassen sich hierbei nicht verschieben und eine T-Lösung würde die Türe verdecken.
Die Türe zum Bad, sollte dort bleiben wo sie ist.
Ich hab mal eine Alternative angehängt, bitte verzeiht - ich hab das schnell in Word gemacht.
Verändert hat sich nicht viel.... hm

das wäre eine sehr gute Idee, könnte ich mich mit der "allseits beliebten" T -Aufteilung anfreunden.
Da habe ich mich einfach schon zu sehr satt gesehen, sodass mir das einfach nicht mehr gefällt.
Zudem ist die Dampf-Dusche eine "Fertigteil" - d.h. Türen etc. lassen sich hierbei nicht verschieben und eine T-Lösung würde die Türe verdecken.
Die Türe zum Bad, sollte dort bleiben wo sie ist.
Ich hab mal eine Alternative angehängt, bitte verzeiht - ich hab das schnell in Word gemacht.
Verändert hat sich nicht viel.... hm
Ähnliche Themen