Ausrichtungsfragen Hanglage Einfamilienhaus Neubau

4,50 Stern(e) 4 Votes
Zuletzt aktualisiert 03.01.2026
Sie befinden sich auf der Seite 2 der Diskussion zum Thema: Ausrichtungsfragen Hanglage Einfamilienhaus Neubau
>> Zum 1. Beitrag <<

E

euro910

Nabend,

wir möchten den Balkon/Terrasse gerne auf Nord-West, mit Rücksprung für Schattenplatz im Sommer
mit dem Stellplatz ist echt ein Thema, zumal das Dreieck vor dem Haus sich da quasi anbieten würde, laut Amt darf die Garage/Carport ohne Befreiung nur ins Baufenster. die 20m klangen Anfangs ok, aber 3m links zum Nachbar und dann Haus mit Garage daneben, ist es schon knapp
 
E

euro910


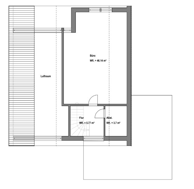
Grundriss eines Büros (46,14 m²) mit Flur, Abstellraum und Luftraum.


ach ja, in diesem Entwurf war auch über der Nord/Ostseite ein nutzbarer Dachboden eingeplant, zwecks weiterer Räume
(hoffe das Bild funktioniert, aus der Zwischenablage eingefügt)
Sprich Luftraum über Wohn/Essbereich. Somit wäre dort für Hobby und Co eigentlich Platz genug
 
Zuletzt aktualisiert 03.01.2026
Im Forum Grundrissplanung / Grundstücksplanung gibt es 2564 Themen mit insgesamt 88727 Beiträgen


Ähnliche Themen zu Ausrichtungsfragen Hanglage Einfamilienhaus Neubau
Nr.ErgebnisBeiträge
1Garage direkt an Einfamilienhaus. Fundament ausreichend? 20
2Hausfinanzierung - Haus, Garage und Bodenplatte ca. 290.000 EUR 11
3Technikraum in Garage einbauen? Ist dies möglich? - Seite 335
4Beheizung Garage. Was ist die beste / günstigste Lösung? 10
5Wo stellen wir Haus und Garage hin? 10
6Kostenschätzung Einfamilienhaus mit Garage 11
7Erstes Angebot, 157m2 mit Keller, KFW 70, Garage 14
8Grundrissentwurf eines Passivhauses 170m² mit Garage - Seite 218
9Garage: Gestaltungsmöglichkeit des Daches, Erscheinungsbild 14
10Begehbare Garage (Terrasse) 11
11Planung optimale Anordnung Haus, Garage und Einfahrt 13
12Grundriss mit Garage auf Grundstück realisierbar? - Seite 229
13Entwurf Einfamilienhaus mit Garage/Carport - bitte um Bewertung 22
14Wo günstige Garage beziehen? - Seite 211
15Regenspeicher in der Garage? 11
16Einfamilienhaus mit Einliegerwohnung & Garage 14
17Garage - Bauantrag - Verwirrung - Seite 636
18 2 Vollgeschosse, Durchgang Garage, Hauswirtschaftsraum unter Treppe - Seite 325
19Tür Haus/Garage: Nebeneingangstür als Brandschutztür? 27
20Bau Garage auf Grenze geht lt. Architekt nicht. 11

Oben