ᐅ Aufteilung?! Kleines Zimmer / starke Schräge / Heizkörper
Erstellt am: 02.01.20 18:00
2
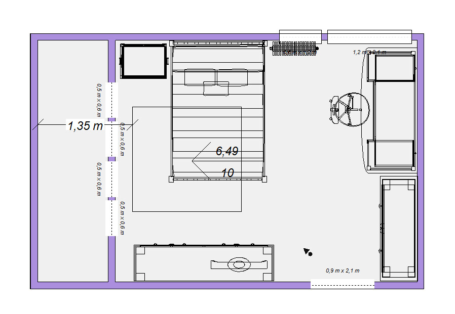
2linkehände2Man kann auch ein Schiebetürsystem verwenden. Ich bin im Moment auch am überlegen wie man vernünftig mehr Raum schaffen kann am Kniestock. Wir haben im ausgebauten Dachboden lediglich 20cm. Vermutlich wird es auf sowas wie in den Fotos rauslaufen.
2,5m kosten mit Lackglas (farbig) 1500€ ohne Montage. Gibt auch etwas günstigere Lösungen, die aber das selbe Prinzip haben. Auch bei Baushaus (?) habe ich so ein System gesehen, aber da ist die Farbvielfalt nicht wirklich vorhanden.
Die Schränke/Regale hinter der Tür kann man günstig bei Ikea kaufen.


2,5m kosten mit Lackglas (farbig) 1500€ ohne Montage. Gibt auch etwas günstigere Lösungen, die aber das selbe Prinzip haben. Auch bei Baushaus (?) habe ich so ein System gesehen, aber da ist die Farbvielfalt nicht wirklich vorhanden.
Die Schränke/Regale hinter der Tür kann man günstig bei Ikea kaufen.
Ähnliche Themen