ᐅ Küche mit zwei Schiebetüren abtrennen?
Erstellt am: 15.02.22 14:55
Hallo,
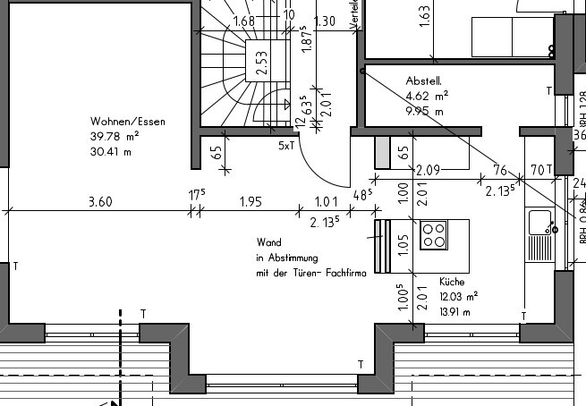
unsere Küchenplanung steht im Prinzip schon fest. Grundstück. haben wir eine geschlossene Küche geplant, da mögliche Gerüche und die Lautstärke des Geschirrspülers oder der Haube nicht im WZ stören sollen. Daher sind momentan zwei Schiebetüren eingeplant, die vom Essbereich aus genutzt werden können (Bilder). An sich finden wir die Idee der Küchenfirma interessant.
Jetzt, wo wir im Rohbau stehen, wirkt eine offene Küche aber doch schicker und großzügiger. Das ist eben nochmal etwas Anderes als auf der 3D-Planung. Wie findet ihr die Lösung mit zwei Schiebetüren und dazwischen der Küchenblock?
Vielleicht wäre auch nur eine Wand in der Mitte vor dem Küchenblock schick? Die Schiebetüren würden damit entfallen.
Danke für eure Tipps!



unsere Küchenplanung steht im Prinzip schon fest. Grundstück. haben wir eine geschlossene Küche geplant, da mögliche Gerüche und die Lautstärke des Geschirrspülers oder der Haube nicht im WZ stören sollen. Daher sind momentan zwei Schiebetüren eingeplant, die vom Essbereich aus genutzt werden können (Bilder). An sich finden wir die Idee der Küchenfirma interessant.
Jetzt, wo wir im Rohbau stehen, wirkt eine offene Küche aber doch schicker und großzügiger. Das ist eben nochmal etwas Anderes als auf der 3D-Planung. Wie findet ihr die Lösung mit zwei Schiebetüren und dazwischen der Küchenblock?
Vielleicht wäre auch nur eine Wand in der Mitte vor dem Küchenblock schick? Die Schiebetüren würden damit entfallen.
Danke für eure Tipps!
Belasst es bei offener Lösung und ihr werdet überwiegend die Vorteile davon genießen und zufrieden sein.
Ist zwar letztlich eine Geschmacksache, so dass es hier viele Leute "für und wider" geben wird (gab es einige Diskussionen in der Vergangenheit), aber auch wir haben ursprünglich mit Schiebetüren geplant (aus gleichen Gründen/Bedenken wir ihr) und letztlich doch die offene Version realisiert. Sind zufrieden und haben sogar Geld gespart 🙂
Ist zwar letztlich eine Geschmacksache, so dass es hier viele Leute "für und wider" geben wird (gab es einige Diskussionen in der Vergangenheit), aber auch wir haben ursprünglich mit Schiebetüren geplant (aus gleichen Gründen/Bedenken wir ihr) und letztlich doch die offene Version realisiert. Sind zufrieden und haben sogar Geld gespart 🙂
W
WilderSueden15.02.22 17:03Schiebetüren sind normalerweise weder geruchsdicht noch halten sie Geräusche besonders gut ab. Entsprechend würde ich mir das sparen und gleich auf die offene Küche gehen
H
Hausbautraum2015.02.22 17:21Kann meinen Vorredner nicht zustimmen.
Wir haben eine große Schiebetür und sind sehr zufrieden.
Wir machen die Tür zu, wenn einer kocht und der andere Fernseh schaut, wenn was nicht aufgeräumt ist, wenn was geruchsintensives gekocht wird...
Ich habe mir aber auch schonmal gedacht, dass eine noch größere Schiebetür bzw 2 Türen noch toller gewesen wären, weil man dann alle Vorteile der offenen Küche auch noch hätte.
Aber insgesamt ist das natürlich individuell.
Ich finde Küchen nicht gemütlich und muss die nicht den ganzen Tag sehen.
Wir haben eine große Schiebetür und sind sehr zufrieden.
Wir machen die Tür zu, wenn einer kocht und der andere Fernseh schaut, wenn was nicht aufgeräumt ist, wenn was geruchsintensives gekocht wird...
Ich habe mir aber auch schonmal gedacht, dass eine noch größere Schiebetür bzw 2 Türen noch toller gewesen wären, weil man dann alle Vorteile der offenen Küche auch noch hätte.
Aber insgesamt ist das natürlich individuell.
Ich finde Küchen nicht gemütlich und muss die nicht den ganzen Tag sehen.
N
Nice-Nofret15.02.22 19:07Ich habe eine Schiebetüre zur Küche, und bin froh, dass ich sie habe - auch wenn sie nicht so dicht & schalldämmend ist.
Ähnliche Themen